NPM-W2 - 第99页
NPM-W2 2018.0416 - 93 - 项 目 规 格 基板缺口条件 基板缺口尺寸必需满足以下 2 个条件。 条件 A 基板缺口尺寸必需满足以下条件。 L L1 50 mm ≦ L ≦ 350 mm 不超过 L/4 350 mm < L ≦ 750 mm L/4 或者 100 mm 的较小的一个 W W1 50 mm ≦ W ≦ 260 mm W/3 或者 30 m m 的较小的一个 260 mm < W ≦ 550 mm 请另…

NPM-W2 2018.0416
- 92 -
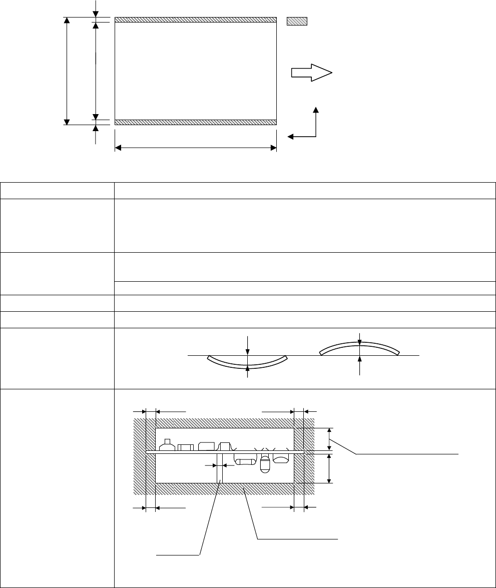
■ 双轨传送带规格
( ) 内的数値 : 单轨模式时
项 目 规 格
基板尺寸 双轨模式 : 50 × 50 mm ~ 750 × 260 mm
单轨模式
※1
: 50 × 50 mm ~ 750 × 510 mm
※ 基板为 L 350 mm 以下时,可以夹钳 2 张基板。
(
在双轨模式下进行交替实装时,不能夹钳 2 张基板。)
贴装/检查可能范围 双轨模式 : 50 × 44 mm ~ 750 × 254 mm
单轨模式
※1
: 50 × 44 mm ~ 750 × 504 mm
※ 有关点胶范围的详细情况请参照「4.4 有关点胶范围的限制」。
基板厚度
0.3 mm ~ 8.0 mm
基板重量 3.0 kg以下
※2
基板弯曲容许
基板断面
贴装前基板状态
※1 单轨模式生产时,需要单轨模式对应的基板支撑块(选购件)。
※
2 基板重量(包括载体重量)超过 3.0 kg 的情况时,请另行联络。
※3 使用支撑销自动更换功能的情况时,支撑销形状、销的配置条件等有异。
详细请参阅「9. 选购件: 支撑销的自动更换」。
※ 有关陶瓷基板的对应请另行联络。
禁止有元件的范围
支撑销
※
3
(
设置在与反面元件距离隔开
2 mm
以上的位置。
)
28 mm
3 mm
3 mm
3 mm
φ
3
3 mm
16
吸嘴贴装头
: 6.5 mm
12
吸嘴贴装头
: 6.5 mm
8
吸嘴贴装头
: 12 mm
3
吸嘴贴装头
: 30 mm
点胶头
: 28 mm
Max. 0.5 mm
Max. 0.5 mm
50 mm ~ 260 mm
(50 mm ~ 510 mm)
44 mm ~ 254 mm
(44 mm ~ 504 mm)
Y
X
固定侧
3 mm
50 mm ~ 750 mm
3 mm
流向
禁止有元件
(
或者锡膏等
)
的范围

NPM-W2 2018.0416
- 93 -
项 目 规 格
基板缺口条件 基板缺口尺寸必需满足以下 2 个条件。
条件 A
基板缺口尺寸必需满足以下条件。
L L1
50 mm ≦ L ≦ 350 mm 不超过 L/4
350 mm < L ≦ 750 mm L/4 或者 100 mm 的较小的一个
W W1
50 mm ≦ W ≦ 260 mm W/3 或者 30 mm 的较小的一个
260 mm < W ≦ 550 mm 请另行商洽。
※ 以上是在基板厚度为 1.6 mm 以下时的情况。
基板厚度超过 1.6 mm 时,请另行商洽。
条件 B
下图 领域内必须保证没有缺口(包括缝隙)。
※ 以上是前基准时的情况。后基准时,基准轨道在后侧。
基板端面的元件伸出条
件
请另行商洽。
L1
L
W1
W1
W
只限任意一处
流向
A
A
10 mm
30 mm
10 mm
基准轨道侧
流向
B

NPM-W2 2018.0416
- 94 -
7.2 识别标记
基板识别标记,需要基板的 2 个对角位置。
■ 基板识别标记规格
标准标记形状和尺寸 标记形状 尺 寸
○
φ0.5 mm ~ φ1.6 mm
△(正三角形)
一边长度是 0.5 mm ~ 1.6 mm
□
纵横 0.5 mm ~ 1.6 mm
纵横 0.5 mm ~ 1.6 mm (线宽度: 0.3 mm 以上)
所谓尺寸的纵横,指标记所外接的四角形的尺寸
标记材质和
电路图形
基板识别补正,根据与标记和电路图形(导电体图形)的位置关系而定。因此,对补正精度
来讲,标记必须与电路图形的工程材质相同。
标记材质和
基板质地的画像条件
基本上,标记识别依靠照明的反射光强度来进行,因此标记材质和基板质地需要具有一
定的对比度。
此反差,会因电镀状态,氧化状态,表面高度,偏差,镜面性,保护物质,干扰光大变
化,需要评价对象标记。
标记尺寸和背景
标记的背景,需要与标记所相异的一定尺寸以上的不干涉区域。
7.3 基板待机条件
基板长度: L 内 容
50 mm ≦ L
≦ 220 mm
※1
NPM-W2 NPM-W2
上游、下游可待机基板各 1 片。(合计 2 片)
※1 基板长度 L 超过 220 mm 的情况时,请另行咨询。
※2 在双规模式下进行独立实装时。 进行交替实装时,上游实装位置为基板待机位置。
不干涉区域
a
≧
0.2 mm
以上
标记不一定必须为黑色。
标记
a
a
a
a
贴装位置
※2
待机基板
贴装位置
※2