PANASONIC贴片机NPM-D说明书 - 第75页
NPM-D 2010.1201 - 69 - 7. 印刷基板设计基准 7.1 印刷基板规格概要 项 目 规 格 双轨模式 Min. 50 mm × 50 mm ~ Max. 510 mm × 300 mm 能够使用的基板尺寸 单轨模式 Min. 50 mm × 50 mm ~ Max. 510 mm × 590 mm 双轨模式 Min. 50 mm × 43 mm ~ Max. 510 mm × 293 mm 贴装 / 检查可能范围 单…

NPM-D 2010.1201
- 68 -
6.
其他标准规格
6.1
程序功能
数据编制都是在数据编制系统
NPM-DGS
进行。在
NPM-DGS
作成的生产数据,通过
LNB
下载于设备。
但是,部分数据修正也可在机器主体上进行。
在设备主体修正的数据以及校正内容被保存,可以再利用。
※
NPM-DGS
用的硬件,请客户准备。
(NPM-DGS
是其他产品。
)
有关
NPM-DGS
的详细情况,请参照别册的「
NPM-DGS
规格说明书」。
6.2
信号塔
信号灯的颜色和亮灯标准
信号灯
颜色
分 类
亮灯标准
红色
紧急停止错误
・ 电机等的轴异常
・ 空气压力下降
・ 基板支撑部异常
・ 贴装头故障
・ 编带故障
等
黄色
中途停止错误
・ 吸着错误
・ 贴装错误
・ 基板传送错误
・ 无工件
・ 吸嘴更换错误
等
绿色
运转中
自动运转等动力为
ON
时
(
但是,红色和黄色闪烁时熄灯
)
蓝色或者
红色
连接的设备中,成为瓶颈的设备
(
循环时间最长的设备
)
蓝色灯亮。
另外,按紧急停止开关,红色灯亮。
※亮灯规格,可以变更设定。
数据编制系统 NPM-DGS
设备设定 PCB 数据
元件数据
最佳化
生产数据
标准
:
横置
距离地面
1 514 mm
红
黄
绿
(
蓝色或者红色
)
红
黄
绿
距离地面
1 629 mm
也可以纵置。
高度从地面起是
1 629 mm
。
(
蓝色或者红色
)

NPM-D 2010.1201
- 69 -
7.
印刷基板设计基准
7.1
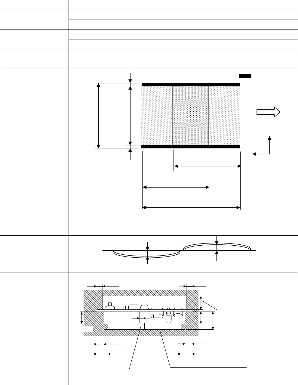
印刷基板规格概要
项 目
规 格
双轨模式
Min. 50 mm × 50 mm
~
Max. 510 mm × 300 mm
能够使用的基板尺寸
单轨模式
Min. 50 mm × 50 mm
~
Max. 510 mm × 590 mm
双轨模式
Min. 50 mm × 43 mm
~
Max. 510 mm × 293 mm
贴装
/
检查可能范围
单轨模式
Min. 50 mm × 43 mm
~
Max. 510 mm × 583 mm
双轨模式
Min. 50 mm × 41 mm
~
Max. 510 mm × 291 mm
点胶可能范围
单轨模式
Min. 50 mm × 41 mm
~
Max. 510 mm × 581 mm
基板厚度
0.3 mm
~
8.0 mm
基板的重量
最大
1.5
㎏以下
※
2
基板弯曲容许
贴装前基板状态
※
1
上面死角小于
3.5 mm
的情况时,请另行联络。
※
2
基板重量
(
包括载体重量
)
超过
1.5
㎏的情况时,请另行联络。
※ 有关陶瓷基板的对应请另行联络。
28 mm
22 mm
4 mm
4 mm
7 mm
7 mm
22 mm
3.5 mm
※
1
3.5 mm
※
1
φ
3
最大
0.5 mm
基板断面
最大
0.5 mm
禁止有元件的范围
16
吸嘴贴装头
:
最大
6.5 mm
12
吸嘴贴装头
:
最大
6.5 mm
8
吸嘴贴装头
:
最大
12 mm
2
吸嘴贴装头
:
最大
28 mm
点胶头
:
最大
28 mm
支撑销
(
设置在与背面元件距离隔开
2 mm
以上的位置。
)
分割实装时的贴装范围
350 mm
基板流向
Y
X
固定侧
双轨模式
43 mm
~
293 mm
单轨模式
43 mm
~
583 mm
3.5 mm
3.5 mm
双轨模式
50 mm
~
300 mm
单轨模式
50 mm
~
590 mm
50 mm
~
510 mm
禁止有元件
(
或者
锡膏等
)
的范围
3.5 mm
※
1
※
1
分割实装时的贴装范围
350 mm

NPM-D 2010.1201
- 70 -
7.2
识别标记
基板识别标记,需要基板的
2
个对角位置。
■ 基板识别标记规格
标记形状
尺 寸
○ φ
0.5 mm
~
φ
1.6 mm
△
(
正三角形
)
一边长度是
0.5 mm
~
1.6 mm
□ 纵横
0.5 mm
~
1.6 mm
纵横
0.5 mm
~
1.6 mm
标准标记形状和尺寸
所谓尺寸的纵横,指标记所外接的四角形的尺寸
标记材质和
电路图形
基板识别补正,根据与标记和电路图形
(
导电体图形
)
的位置关系而定。因此,对
补正精度来讲,标记必须与电路图形的工程材质相同。
标记材质和
基板质地的画像条件
基本上,标记识别依靠照明的反射光强度来进行,因此标记材质和基板质地需要
具有一定的对比度。
此反差,会因电镀状态,氧化状态,表面高度,偏差,镜面性,保护物质,干扰
光大变化,需要评价对象标记。
标记尺寸和背景
标记的背景,需要与标记所相异的一定尺寸以上的不干涉区域。
■ 分割实装时有关基板识别标记的传送方向尺寸
基板识别标记,需要基板的
2
个对角位置。
传送方向尺寸
(L)
超过
350 mm
的基板,通过分割实装进行对应。
分割实装中也需要对角
2
点有基板识别标记,推荐下图所示的位置有基板识别标记。
(
只有在单轨传送带时可以。双轨传送带时没有分割实装。
)
推荐例
)
不干涉区域
标记
a
≧
0.2 mm
以上
标记不一定必须为黑色。
a
a
a
a
基板流向
350 mm
<
L
≦
510 mm
基板识别标记
必要范围
基板识别标记
(
在分割实装①使用
)
基板识别标记
(
在分割实装②使用
)
进行分割实装①的范围
进行分割实装②的范围
350 mm
350 mm