JUKI_KE-2050-2060_SVC_CH安装要领 - 第27页
Rev.1.00 安装要领书 11-2. EN 机 < 程序 > 1. 与标准机相同,确认配电盘的断路器的关闭等,连接电源的电源电路的电源被切断。 同时,卸下护罩 RBL 上安装的安装护罩。 2. 把电源电缆穿过插入口安 装的锁定器,把一字形螺丝刀插到装置内部的接线端子座拧紧,把电 源的各线连接到接线端子座上。 FG 线连接到底座上的 FG 线接线柱上。 ( 电源电缆线和保护接地 用电线请参照表 1 ,请适合电缆长度的电缆。 ) 3. …

Rev.1.00
安装要领书
3. 请把一字形螺丝刀插到装置内部的接线端子座上,把电源的各线路连接到接线端子台。FG 线连
接到底架上的 FG 连接柱上。(电源电缆和 FG 线请参照表 1,请使用适合电缆长度的电缆线。)
端子台
接线端子座
電源ケーブル挿入口
电源电缆插入口
表 1 电缆长度的适合断面积
导体断面积[mm
2
]
电缆长度[m]
200V系列 400V系列
20以下 6 6
30 8 6
40 10 6
50 12 6
※变更电源电压时,请变更「变压器(伺服马达用)」「变压器(DC 电源用)」「AC 电源输入装置」的 3
个接线柱。
22

Rev.1.00
安装要领书
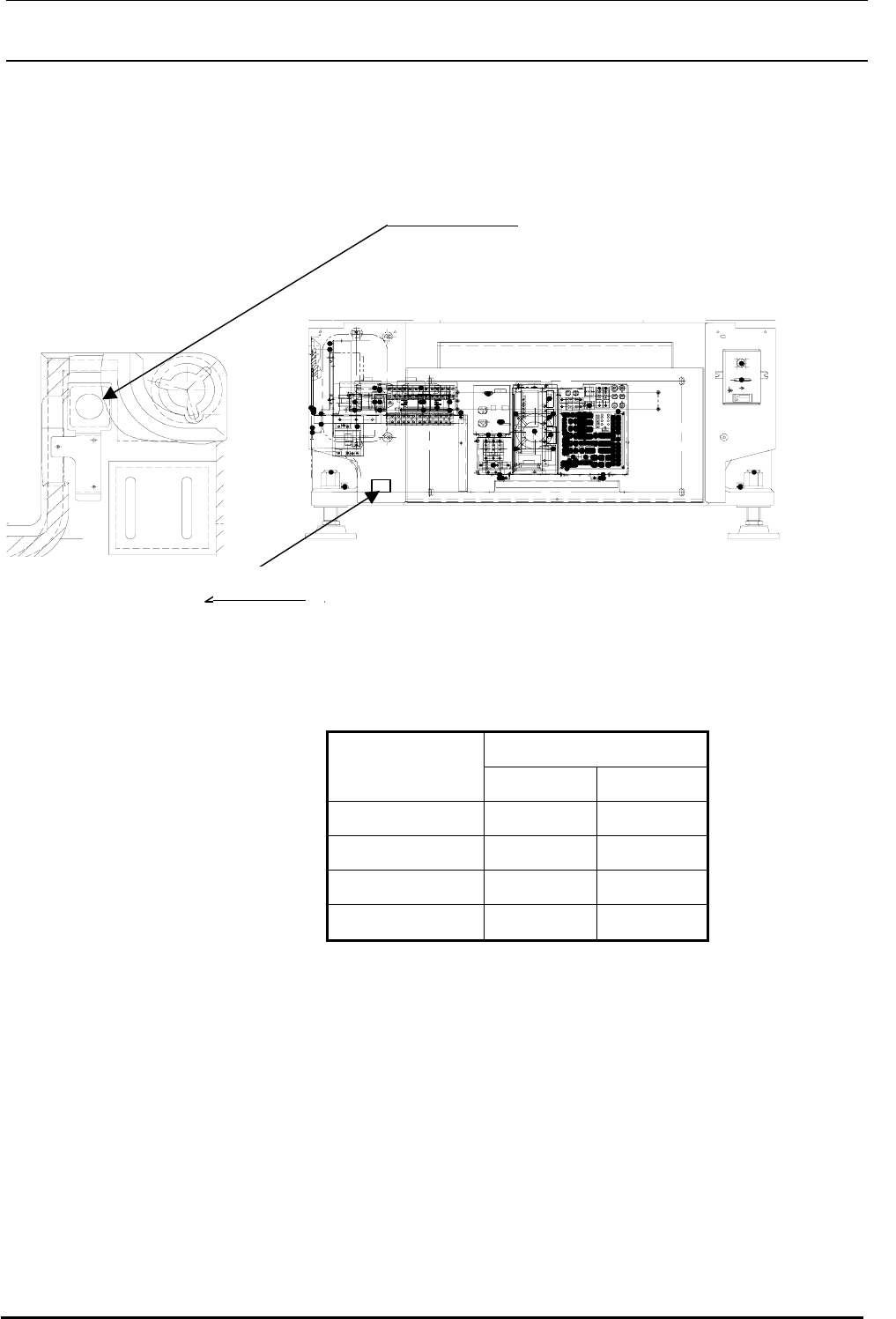
11-2. EN 机
<程序>
1. 与标准机相同,确认配电盘的断路器的关闭等,连接电源的电源电路的电源被切断。
同时,卸下护罩 RBL 上安装的安装护罩。
2. 把电源电缆穿过插入口安装的锁定器,把一字形螺丝刀插到装置内部的接线端子座拧紧,把电
源的各线连接到接线端子座上。FG 线连接到底座上的 FG 线接线柱上。(电源电缆线和保护接地
用电线请参照表 1,请适合电缆长度的电缆。)
3. 请用电源电缆插入口上的锁定装置从侧面固定好电缆并拧紧。
※变更电源电压时,请变更「变压器(伺服马达用)」「变压器(DC 电源用)」「AC 电源输入装置」的
3 个接线柱。
危险
请确保工厂充分的供电电流容量。
危险
请绝对不能连接到不符合电压规格的电源上。
23

Rev.1.00
安装要领书
12. 附属品的连接
12-1. 信号灯
1. 把信号等插到护罩 RUR 上部的孔上。
2. 把附属的螺母、平垫片如图所示,固定到支架后,从支架上穿
过,不要让电缆向下松垂,然后连接好插头。
〈注意〉 组装后,把信号灯的上面调整到离机械设置地面 2000mm。
但是,基板传送高度为 950mm 规格的机器时,调整高度为
2050mm。
12-2. 视觉监视器
1. 请从台座中央的孔把视觉监视器的电源电缆线插入主机内,然后把视觉监视器的机头固定到台座
上。
此时,把过长的电缆按照监视器的长度折叠起来,不要过长的电缆进入机体内。
〈注意〉 请确认台座的抓头上头部应该突起。
2. 从机头后部拉出图像监视器电缆线,连接到 VIDEO IN 的接线柱上。
3. 电源电缆线插头电缆不要松垂,请在图像监视器下连接电源连接电缆线。
图 12-2-1
图像电缆
线接线端
子
拨头
台座
头部
24