TR6SNR_TR6SNV_TR6SNX-Rev05 - 第12页
- 9 - 5. ELECTRIC A PPARATUS COMPONENTS (2) 電装関係(2) 1 2 3 56 4 57 5 58 6 79 8 12 13 11 10 50 1 5 17 14 16 34 35 36 23 24 2 1 22 19 20 18 29 32 30 32 31 32 33 26 28 37 38 39 42 43 44 25 45 46 47 49 51 52 53 54 55 40 41

- 8 -
NOTE( 注記 ) #01....FOR EN EN 用
#02....EXCEPT EN EN を除く
#03....FOR TR6SNX,TR6SXLX, TR 6 SNX,TR 6 SXLX,
TR6SNV TR 6 SNV 用
REF.NO NOTE PART NO D E S C R I P T I O N
品 名
Qty
1 400-48865 X IL BR
X IL BR
1
2 SL-4040891-SC SCREW M4 L=8
座金付きなべ小ねじ M4 L=8
2
3 400-48716 X INTERLOCK BR
Xインターロック BR
1
4 SL-6030892-TN SCREW
座金付き六角穴ボルト
2
5 SM-6030602-TN HEX SCREW M3 X 6
六角穴ボルト M3X0.5 L=6
1
6 SL-4030691-SC SCREW M3X6
なべ小ねじセムス M3X0.5 L=6
2
7 PS-0200062-KH SPRING PIN 2X6
スプリングピン 2X6
1
8 E2039-723-000 X INTERLOCK LEVER
Xインターロックレバー
1
9 E1038-871-000 PLATEN LOCK CAM SCREW
プラテン ロックカム スクリュウ
1
10 E1055-717-000 DOOR LOCK SP
ドアロックSP
1
11 HD-0005700-0A PHOTO SENSOR
フォトセンサ
1
12 SL-4031081-SC SCREW M3 X 10
なべねじセムス M3 L=10
1
13 HA-0037900-0A MICRO SW
マイクロSW
1
14
#02
400-48718 DOOR SW CV
ドアSW CV
1
15 SL-4040891-SC SCREW M4 L=8
座金付きなべ小ねじ M4 L=8
1
16 HX-0009600-0A BUSH
エッジングブッシュ
0.08
17 WS-0310002-KN SPRING WASHER M3
ばね座金 3.1X5.9X0.7
1
18 PJ-3080600-03 Y UNION
ユニオンワイ
3
19 SL-4030891-SC SCREW M3X8
なべ小ねじセムス M3 L=8
2
20 SM-6032502-TN SCREW M3 L=25
六角穴ボルト M3 L=25
1
21
#01
E2411-723-000 BREAKER COVER B
ブレーカカバーB
1
22 E2039-723-000 X INTERLOCK LEVER
Xインターロックレバー
1
23 400-45095 COVER SENSOR CABLE ASM.
カバーセンサケーブル組
1
24 400-45102 COVER LOCK SOLENOID ASM.
カバ−ロックソレノイド組
1
25 400-48716 X INTERLOCK BRACKET ASM.
XインターロックBR組
1
26 400-48895 HOOK
フック
1
27 400-48775 MAIN SW BRACKET
メインSWブラケット
1
28
#03
400-94908 MAIN_SW_BR_6D
メインスイッチブラケット_6D
1
29 HA-0058500-00 CIRCUIT PROTECTOR
サーキットプロテクタ
1
30 400-45008 POWER LAMP ASM
パワーランプ組
1
31 400-45200 I/F CABLE ASM
I/F ケーブル組
1
32
#03
400-94573 I/F CABLE ASM
I/F ケーブル組
1
33 400-44994 AC POWER INPUT CABLE ASM
ACパワー入力ケーブル組
1
34
#01
E2410-723-000 BREAKER COVER A
ブレーカカバーA
1
35 SL-4030881-SC SCREW M3 L=8
座金付きなべ小ねじ M3 L=8
4
36 SL-4035091-SC SCREW M3 L=50
座金付きなべ小ねじ M3 L=50
2
37 400-49165 BREAKER COV
ブレーカーCOV
2
38 PV-0100060-00 HAND VALVE
ハンドバルブ
1
39
#01
E9641-040-000 RELAY MY-2 DC-24V
リレ− MY−2 DC−24V
3
40
#01
400-45206 COVER OPEN SW ASM. (CE)
カバーオープンスイッチ組(CE)
1
41
#01
400-50013 CARRIER RAIL
キャリアレール
1
42
#01
HK-0498900-00 CONECTOR PARTS
コネクタパーツ
1
43
#01
HK-0498500-10 TERMINAL BASE
端子台
10
44
#01
HK-0498900-0D CONNECTOR PARTS
コネクタパーツ
4
45 400-48832 E BASE COVER 6S
Eベースカバー6S
1
46
#01
HB-0014300-00 SAFETY RELAY UNIT
セーフティリレーユニット
1
47
#01
HB-0013900-00 RELAY
リレー
4
48
#01
400-48833 SAFETY SENSOR BR
セーフティセンサBR
1
49
#01
400-46165 DOOR M OPEN SW ASM
ドアMオープンSW組
1
50
#01
E2423-723-000 MTC DOOR SW KEY BR
MTCドアSWキーBR
1
51
#01
HA-0045500-30 SWITCH
ドアスイッチ操作キー
1
52
#02
SL-4041281-SC SCREW M4X0.7 L=12
なべ小ねじセムス M4 L=12
1
53 400-48896 DOOR LOCK LV
ドアロック LV
1
54 E1038-871-000 PLATEN LOCK CAM SCREW
プラテン ロックカム スクリュウ
1
55 400-45098 DOOR M INTERLOCK SOLENOID ASM.
ドアMインターロックソレノイド組
1
56 PS-0200062-KH SPRING PIN 2X6
スプリングピン 2X6
1
57 SL-4030691-SC SCREW M3X6
なべ小ねじセムス M3X0.5 L=6
4
58 E1055-717-000 DOOR LOCK SP
ドアロックSP
1
59 SM-6032002-TN SCREW M3X0.5 L=20
六角穴ボルト M3X0.5 L=20
1
60 NM-6030001-SC NUT M3
六角ナット M3X0.5 1種
2
61 SM-6031402-TN SCREW M3X0.5 L=8
六角穴ボルト
1
62 400-48895 HOOK
フック
1
63 SM-0040601-SC SCREW M4X0.7 L=6
トラス小ねじ M4X0.7 L=6
3
64 NM-6030001-SC NUT M3
六角ナット M3X0.5 1種
3
65 E1401-726-000 TRAY CHUCK PIN
トレイチャックピン
1
66 RE-0300000-K0 E-RING 3
E形止め輪 3
2
67
#02
HD-0017100-00 SENSOR
フォトインタラプタ
1
68 HX-0034400-00 HARNESS PARTS
束線パーツ
2
69 HX-0015000-0A CABLE CLAMP
ケーブルクリップ
1
70 SL-4030891-SC SCREW M3X8
なべ小ねじセムス M3 L=8
1
71 SM-0040601-SC SCREW M4X0.7 L=6
トラス小ねじ M4X0.7 L=6
3
72 NM-6030001-SC NUT M3
六角ナット M3X0.5 1種
3
73 400-48743 DOOR LOCK CV
ドアロック CV
1
74 SM-0040601-SC SCREW M4X0.7 L=6
トラス小ねじ M4X0.7 L=6
2
75 SL-4040891-SC SCREW M4 L=8
座金付きなべ小ねじ M4 L=8
1
76 HX-0009600-0A BUSH
エッジングブッシュ
0.07
77 400-48897 DOOR LOCK BR
ドアロックBR
1
78 HD-0005700-0A PHOTO SENSOR
フォトセンサ
1
79 SL-4030881-SC SCREW M3 L=8
座金付きなべ小ねじ M3 L=8
2
80
#03
SM-4860501-SB SCREW M2.6 L=5
なべねじ M2.6 L=5
2

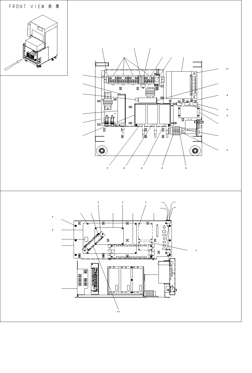
- 9 -
5. ELECTRIC APPARATUS COMPONENTS (2)
電装関係(2)
1
2
3
56 4 57 5 58
6
798
12
13
11
10
50 1 5
17
14
16
34
35
36
23
24 21 22
19
20
18
29
32
30
32
31
32
33
26
28
37
38
39
42
43 44
25
45
46
47
49
51
52
53
54
55
40
41

- 10 -
NOTE( 注記 ) #01....FOR EN EN 用
#02....FOR TR6SNR TR 6 SNR 用
#03....EXCEPT TR6SNR TR 6 SNR を除く
#04....FOR TR6SNR,TR6SNX TR 6 SNR,TR 6 SNX
(UNTIL M/C REV.E), (マシン REV.E 以前),
TR6SNV(UNTIL M/C REV.F) TR 6 SNV(マシン REV.F 以前)用
#05....FOR TR6SNX(AFTER M/C REV.F), TR 6 SNX(マシン REV.F 以降),
TR6SNV(AFTER M/C REV.G) TR 6 SNV(マシン REV.G 以降)用
REF.NO NOTE PART NO D E S C R I P T I O N
品 名
Qty
1 400-40687 Z SERVO DRV ASM
ZサーボDRV組
1
2 400-45704 REGENERATING RESISTOR
回生抵抗
1
3
#04
400-45711 X STEPPING MOTOR DRIVER
Xステッピングモータドライバー
1
4
#04
400-45711 Y STEPPING MOTOR DRIVER
Yステッピングモータドライバー
1
5
#04
400-45711 SHUTTLE STEPPING MOTOR DRIVER
シャトルステッピングモータドライバー
1
6 400-45714 NOISE FILTER
ノイズフィルタ
1
7 HB-0014200-00 RELAY
リレー
4
8 HB-0014000-00 RELAY
リレー
1
9 400-45025 SURGE ABSORBER ASM
サージアブソーバ組
1
10 HX-0055000-00 POWER SUPPLY UNIT
電源ユニット
1
11 400-45016 AC FAN MOTOR ASM
ACファンモータ組
1
12
#03
400-95247 MAIN PCB ASM(6S)
メイン基板組(6S)
1
13
#02
401-37757 MAIN PCB A ASM(6S)
メイン基板A組(6S)
1
14 HK-0498900-0D CONNECTOR PARTS
コネクタパーツ
2
15 HK-0498900-00 CONNECTOR PARTS
コネクタパーツ
1
16 400-50015 CARRIER RAIL
キャリアレール
1
17 400-45701 TRANSFORMER
トランス
1
18 400-50012 CARRIER RAIL
キャリアレール
1
19 HK-0498900-0D CONNECTOR PARTS
コネクタパーツ
3
20
#01
HK-0498900-0D CONNECTOR PARTS
コネクタパーツ
2
21 HK-0498900-00 CONNECTOR PARTS
コネクタパーツ
2
22
#01
HK-0498900-00 CONNECTOR PARTS
コネクタパーツ
1
23 HK-0498500-10 TERMINAL BASE
端子台
8
24
#01
HK-0498500-10 TERMINAL BASE
端子台
4
25 400-49173 PCB PLATE 6S
基板プレート6S
1
26 SM-9081423-SC SCREW M8 L=14
六角ボルト M8 L=14
4
27 WS-0820002-KN SPRING WASHER M8
ばね座金 M8
4
28 WP-0841601-SC WASHER 8.4X17.4X1.6
平座金みがき丸 M8
4
29 400-45000 TF INPUT CABLE (240V) ASM
TF入力ケーブル(240V)組
1
30 400-45001 TF INPUT CABLE (220V) ASM
TF入力ケーブル(220V)組
1
31 400-45002 TF INPUT CABLE (200V) ASM
TF入力ケーブル(200V)組
1
32 SL-4030691-SC SCREW M3X6
なべ小ねじセムス M3X0.5 L=6
3
33 400-49168 BR 6S
BR6S
1
34 400-49171 Z DRIVER BR
ZドライバBR
1
35 400-49175 E BASE 6S
Eベース6S
1
36 400-49166 DRIVER BR
ドライバBR
1
37 SL-4030891-SC SCREW M3X8
なべ小ねじセムス M3 L=8
4
38 HX-0035400-0G BOARD PARTS
基板パーツ
4
39 SL-4030891-SC SCREW M3X8
なべ小ねじセムス M3 L=8
4
40 400-49169 FAN BR
ファンBR
1
41 SL-4030891-SC SCREW M3X8
なべ小ねじセムス M3 L=8
2
42 400-41117 SCN PCB ASM
SCN基板組
1
43 HX-0035400-0G BOARD PARTS
基板パーツ
4
44 SL-4030891-SC SCREW M3X8
なべ小ねじセムス M3 L=8
4
45 HX-0035400-0G BOARD PARTS
基板パーツ
4
46 SL-4030891-SC SCREW M3X8
なべ小ねじセムス M3 L=8
4
47
#01
HM-0003300-30 FAN GUARD
ファンガード
2
48 SL-4033091-SC SCREW M3 L=30
なべ小ねじセムス M3X0.5 L=30
2
49 SL-4030891-SC SCREW M3X8
なべ小ねじセムス M3 L=8
2
50 HK-0498500-10 TERMINAL BASE
端子台
6
51 400-49170 FUSE BR
ヒューズBR
1
52 400-49173 PCB PLATE 6S
基板プレート6S
1
53 400-00478 STUD 110
スタッド110
6
54 SL-4030891-SC SCREW M3X8
なべ小ねじセムス M3 L=8
4
55
#02
400-72503 ROM 6S6D5SR ASM
ロム6S6D5SR梱包組
1
56
#05
402-22208 STEPPING MOTOR DRIVER
Xステッピングモータドライバー
1
57
#05
402-22208 STEPPING MOTOR DRIVER
Yステッピングモータドライバー
1
58
#05
402-22208 STEPPING MOTOR DRIVER
シャトルステッピングモータドライバー
1