PTS-GPX-04JE - 第26页
1 2 3 4 5 2 9 10 10 1 1 1 1 12 12 13.1 13 14 3 4 5 6 7 7 8 8 16 17 18 19 20 21 20 21 20 21 22 23 24 25 20 26 26 27 27 28 29 30 31 32 33 34 36 36 37 38 39 40 40 41 42 45 47 48 49 50 51 52 53 54 55 56 57 58 59 46 43 44 44 …

This page intentionally blank.
25
PTS-GPX-04JE

1
2
3
4
5
2
9
10
10
11
11
12
12
13.1
13
14
3
4
5
6
7
7
8
8
16
17
18
19
20
21
20
21
20
21
22
23
24
25
20
26
26
27
27
28
29
30
31
32
33
34
36
36
37
38
39
40
40
41
42
45
47
48
49
50
51
52
53
54
55
56
57
58
59
46
43
44
44
41
37
38
39
32
33
35
28
29
30
31
21
20
21
20
21
18
19
16
17
15
45
47
48
49
50
51
52
53
54
55
46
60
60.1
61
62
63
UJ01308
26
PTS-GPX-04JE

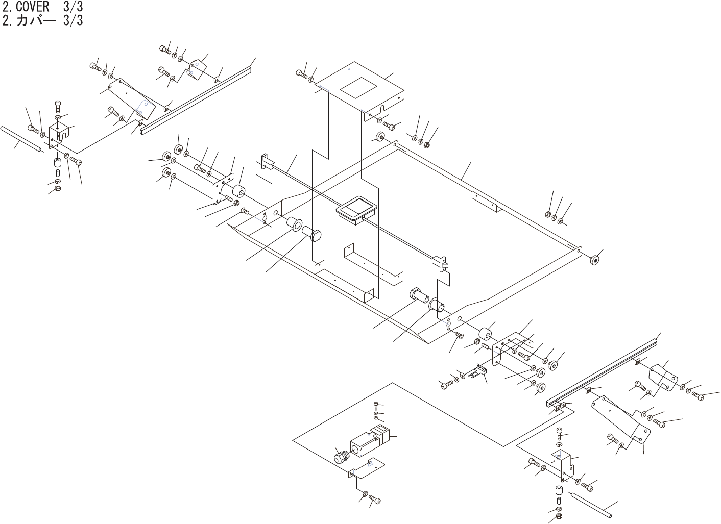
2.COVER3/3
2.カバー3/3
UJ01308
No. Drg.No.&CodeNo. QTY Description Rating Materials Remarks
番号 図番&コード番号 個数 品名 規格 材質 備考
1 PB54040 1 COVER,LOWER カバー下 FE
2
R50018
2 ROLLER ローラ TM-86-A-4 OT
3 N1086A 2 NUT,HEX ナット六角 M6P=1.03シュ FE
4 W1024A 2 WASHER,LOCK ワッシャスプリング 6M/M FE
5 W1051A 2 WASHER,FLAT ワッシャ平 6M/MX1.6X125(1W-6) FE
6 PB54010 1 BKT BKT FE
7 H5287A 4 BOLT,HEXSOCKET ボルト六角穴 M04X008 FE
8 W1022A 4 WASHER,LOCK ワッシャスプリング 4M/M FE
9 PZ22181 1 HANDLE ハンドル OT
10 K5357T 4 SCREW,HEXSOCKETCOUNTERSUNK 小ネジ六角穴皿 M03X008 FE
11
H20140
2 PIN ピン HCLBM10-20 OT
12
H3053E
2 BUSHING ブシュ JZF10-15 OT
13
K11352
1 COLLAR カラー CLJJ12-25-16.5 OT
13.1
K11359
1 COLLAR カラー CLJJ12-25-16 OT
14 PB53930 1 BKT BKT FE
15 PB53940 1 BKT BKT FE
16 H5322A 2 BOLT,HEXSOCKET ボルト六角穴 M06X015 FE
17 W1024A 2 WASHER,LOCK ワッシャスプリング 6M/M FE
18
N4008E
2 SCREW,CLAMP ネジクランプ SCS-M5x12-N OT
19 N1082A 2 NUT,HEX ナット六角 M5P=0.8 FE
20 W1045A 6 WASHER,FLAT ワッシャ平 4W-6 FE
21
R50018
6 ROLLER ローラ TM-86-A-4 OT
22 S3193R 1 SW,LIMIT SWリミット D4DS-K2 OT
23 H5288A 2 BOLT,HEXSOCKET ボルト六角穴 M04X010 FE
24 W1022A 2 WASHER,LOCK ワッシャスプリング 4M/M FE
25 W1041A 2 WASHER,FLAT ワッシャ平 4M/MX0.8X9(1W-4) FE
26
H32602
2 FRAME フレーム HFSPURE5-8516-420 OT
27 PB53970 2 BKT BKT FE
28
N1002D
2 NUT ナット
SFN-TX5
OT
29 H5299A 2 BOLT,HEXSOCKET ボルト六角穴 M05X012 FE
30 W1023A 2 WASHER,LOCK ワッシャスプリング 5M/M FE
31 W1050A 2 WASHER,FLAT ワッシャ平 5M/MX1.0X10(1W-5) FE
32 H5322A 4 BOLT,HEXSOCKET ボルト六角穴 M06X015 FE
33 W1024A 4 WASHER,LOCK ワッシャスプリング 6M/M FE
34 PB53981 1 BKT BKT FE
35 PB53991 1 BKT BKT FE
36
N1002D
4 NUT ナット
SFN-TX5
OT
27
PTS-GPX-04JE