PTS-GPX-04JE - 第68页
A A Cleaning Pad for 3000 Frame OPTION Cleaning Pad for L550xW650 Frame OPTION L=410 L=350 L=510 UI00106 68 PTS-GPX-04JE

This page intentionally blank.
67
PTS-GPX-04JE

A
A
Cleaning Pad for 3000 Frame
OPTION
Cleaning Pad for L550xW650 Frame
OPTION
L=410
L=350
L=510
UI00106
68
PTS-GPX-04JE

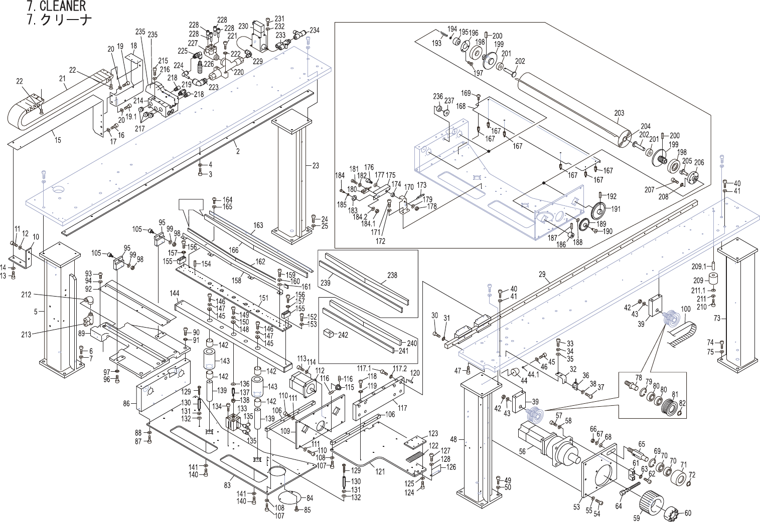
7.CLEANER
7.クリーナ
UI00106
No. Drg.No.&CodeNo. QTY Description Rating Materials Remarks
番号 図番&コード番号 個数 品名 規格 材質 備考
2 PB38131 1 PLATE プレート FE
3 H5299A 10 BOLT,HEXSOCKET ボルト六角穴 M05X012 FE
4 W1023A 10 WASHER,LOCK ワッシャスプリング 5M/M FE
5
PM67197
1 LEG 脚 FE
6 H5342A 4 BOLT,HEXSOCKET ボルト六角穴 M08X025 FE
7 W1025A 4 WASHER,LOCK ワッシャスプリング 8M/M FE
10 PB38065 1 BKT BKT FE
11 H5321A 2 BOLT,HEXSOCKET ボルト六角穴 M06X012 FE
12 W1024A 2 WASHER,LOCK ワッシャスプリング 6M/M FE
13 H5320A 2 BOLT,HEXSOCKET ボルト六角穴 M06X010 FE
14 W1024A 2 WASHER,LOCK ワッシャスプリング 6M/M FE
15 PB50282 1 BKT,SUPPORT BKT支え FE
16 H5322A 2 BOLT,HEXSOCKET ボルト六角穴 M06X015 FE
17 W1024A 2 WASHER,LOCK ワッシャスプリング 6M/M FE
18 PB50292 1 BKT BKT FE
19 H5298A 1 BOLT,HEXSOCKET ボルト六角穴 M05X010 FE
19.1 H5297A 1 BOLT,HEXSOCKET ボルト六角穴 M05X008 FE
20 W1023A 2 WASHER,LOCK ワッシャスプリング 5M/M FE
21
K41626
1 FLEXIBLETRACK ケーブルベア 09-50-038-0-33-080.50.12 OT
22 K5357M 6 SCREW,HEXSOCKETCOUNTERSUNK 小ネジ六角穴皿 M03X006 FE
23
PM67205
1 LEG 脚 FE
24 H5342A 3 BOLT,HEXSOCKET ボルト六角穴 M08X025 FE
25 W1025A 3 WASHER,LOCK ワッシャスプリング 8M/M FE
29 XG00691 1 GUIDE,RAIL ガイドレール OT
30 H5290A 21 BOLT,HEXSOCKET ボルト六角穴 M04X015 FE
31 W1011A 21 WASHER,CONICAL ワッシャ皿 M-4-L FE
32 PB41861 1 BKT,SENSOR BKTセンサ FE
33 H5289A 2 BOLT,HEXSOCKET ボルト六角穴 M04X012 FE
34 W1022A 2 WASHER,LOCK ワッシャスプリング 4M/M FE
35 W1043A 2 WASHER,FLAT ワッシャ平 4W-4 FE
36 S4077W 1 SENSOR,PHOTO センサフォト PM-R44P OT
37 H5274A 2 BOLT,HEXSOCKET ボルト六角穴 M03X006 OT
38 W1021A 2 WASHER,LOCK ワッシャスプリング 3M/M OT
39 PM67272 2 BLOCK ブロック FE
40 H5343A 4 BOLT,HEXSOCKET ボルト六角穴 M08X030 FE
41 W1025A 4 WASHER,LOCK ワッシャスプリング 8M/M FE
42
N1096A
2 NUT,HEX ナット六角
M12P=1.75
FE
69
PTS-GPX-04JE