KE-3020_KE-3020R-Rev04 - 第19页
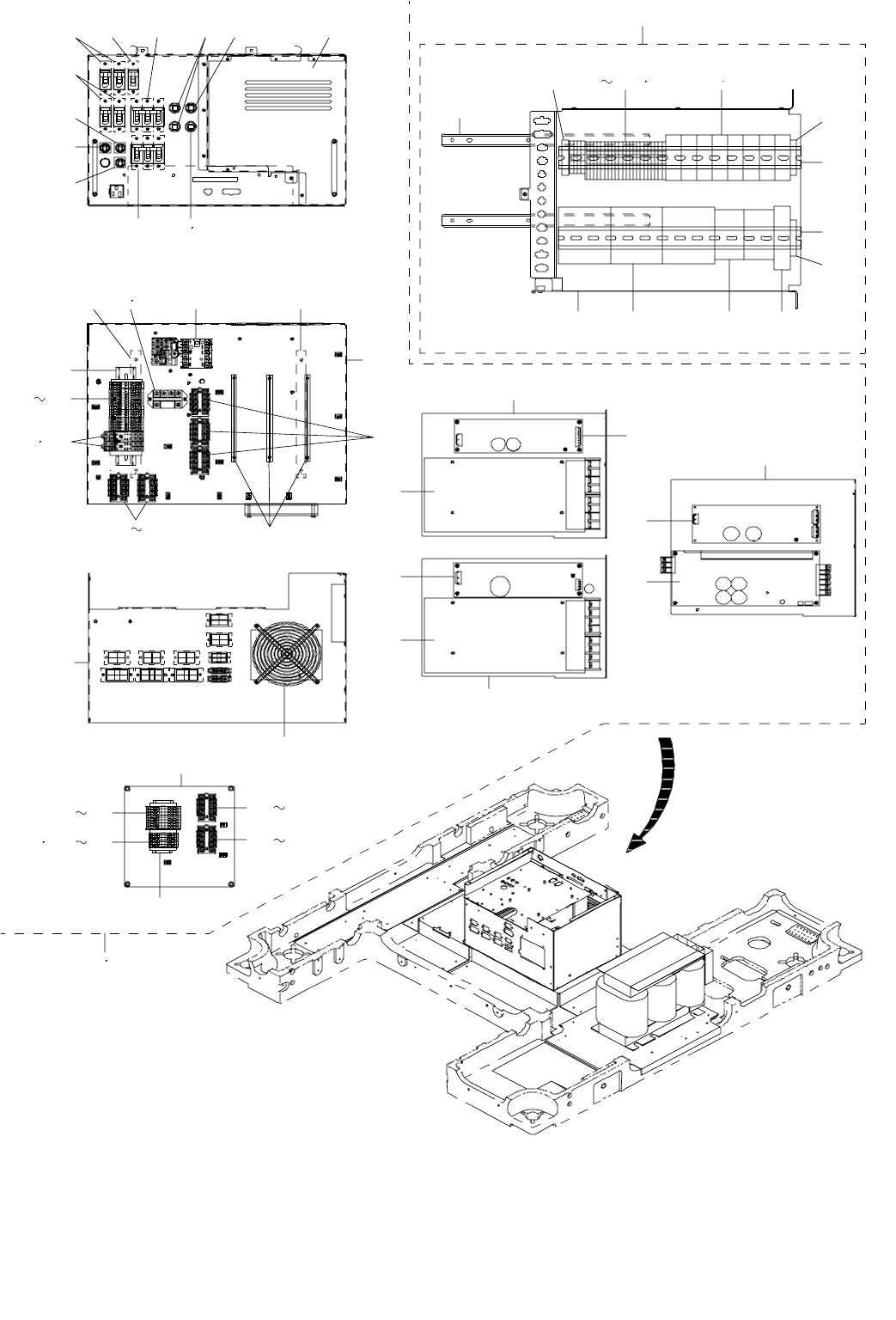
- 12 - NO TE ( 注記 ) #01 .. ..FO R EN EN 用 #0 2 .... FOR 3020 3020用 # 0 3. .. . F OR S T S T 用 RE F.NO NOTE PART NO D E S C R I P T I O N 品 名 Q ty 1 401 -137 39 POWE R U NI T 電源ユニット 1 2 #01 401 - 137 40 P OWE R UN IT EN 電…

- 11 -
6. BASE FRAME ELECTRIC APPARATUS COMPONENTS(2)
ベースフレーム電装関係(2)
MC1 R L 4
RL1
RL5 RL6
RL 7
RL 8
RL3RL2
CN02EN
CO PL A PS
CN14B
CN14A
CN03
CN1 3CN12CN11
CN0 1 CN 0 4 A CN0 4B
CN039 MONI
CP1 4
CP 4 CP1 0CP 9
CP 8 CP 6
CP 5CP7
CP 1 2CP1 1CP1
CP 3
CP 2
CP13
SC1
TB3
TB 2
RL9
RL10
52
45
10
40
44
33
35 37
25
28
25
28
14
5
4
25
13
25
28
31
32
33
39
11
12 29
30 3 12
17
15
50
16
20
19 18 24 23 22
21
22
9
6
46
7
49
46
47
48
8
62
58
60 64 56 5761
61
63
63
61
53555465
1
2
51

- 12 -
NOTE( 注記 ) #01....FOR EN EN 用
#02....FOR 3020 3020用
#03....FOR ST ST 用
REF.NO NOTE PART NO D E S C R I P T I O N
品 名
Qty
1 401-13739 POWER UNIT
電源ユニット
1
2
#01
401-13740 POWER UNIT EN
電源ユニット_ EN
1
3 400-34328 MAGNETIC CONTACTOR(THERMAL)
サーマルリレー付電磁開閉器
(1)
4 400-94407 PSU_MAIN_BRACKET
PSU メインブラケット
(1)
5 400-94408 PSU_SIDE_COVER
PSU サイドカバー
(1)
6 401-22403 PSU_BRACKET_A_XL PSU ブラケット_ A _ XL (1)
7 400-47070 PSU_BRACKET_B
PSU _ブラケット B
(1)
8 400-94411 PSU_BRACKET_C
PSU ブラケット C
(1)
9 400-94415 PSU_F_COVER
PSU _ F カバー
(1)
10 400-94412 RELAY_PLATE
リレープレート
(1)
11 400-47075 DIN_RAIL
ディンレール
(1)
12 400-00477 PSU SLIDE BAR
PSU スライドバー
(2)
13 HX-0002600-0A BASE PARTS
基板パーツ
(3)
14 HM-0003300-30 FAN GUARD
ファンガード
(1)
15 HA-0052400-0B CIRCUIT PROTECTOR
サーキットプロテクタ
(1)
16 HA-0052400-0E CIRCUIT PROTECTOR
サーキットプロテクタ
(1)
17 HA-0052500-00 CIRCUIT PROTECTOR
サーキットプロテクタ
(1)
18 HA-0052700-0A CIRCUIT PROTECTOR
サーキットプロテクタ
(1)
19 HA-0052700-0E CIRCUIT PROTECTOR サーキットプロテクタ (2)
20 HA-0052700-0C CIRCUIT PROTECTOR
サーキットプロテクタ
(2)
21 HA-0054200-0A CIRCUIT PROTECTOR
サーキットプロテクタ
(1)
22
#01
HA-0054200-0A CIRCUIT PROTECTOR
サーキットプロテクタ
(2)
23 HA-0054200-0D CIRCUIT PROTECTOR
サーキットプロテクタ
(2)
24 HA-0056000-00 CIRCUIT PROTECTOR
サーキットプロテクタ
(1)
25
#03
HB-0005800-10 RELAY
リレー 止め金具
(7)
26
#01
HB-0005800-10 RELAY
リレー 止め金具
(4)
27
#03
HB-0012800-0C RELAY
リレー
(7)
28
#01
HB-0012800-0C RELAY
リレー
(4)
29
#02
HB-0011000-00 RELAY
リレー
(1)
30 #02 HB-0011000-10 RELAY COVER 関連パーツ (1)
31 HB-0015400-00 RELAY
リレー
(2)
32 HB-0015400-10 RELAY
リレーソケット
(2)
33 HK-0696500-10 BLOCK TERMINAL
ブロックターミナル
(1 2)
34 HK-0693500-10 BLOCK TERMINAL
ブロックターミナル
(6)
35 HK-0696900-00 BLOCK TERMINAL
ブロックターミナル
(1)
36 HK-0691900-0B BLOCK TERMINAL
ブロックターミナル
(5)
37 HK-0696900-0A BLOCK TERMINAL
ブロックターミナル
(1)
38 HK-0696900-0B BLOCK TERMINAL
ブロックターミナル
(1)
39 HK-0696900-30 BLOCK TERMINAL
ブロックターミナル
(4)
40 HK-0695500-10 BLOCK TERMINAL
ブロックターミナル
(1 4)
41
#01
HK-0695500-10 BLOCK TERMINAL
ブロックターミナル
(1 7)
42 HK-0695900-00 BLOCK TERMINAL
ブロックターミナル
(2)
43 HK-0695900-20 BLOCK TERMINAL ブロックターミナル (5)
44 HK-0695900-0A BLOCK TERMINAL
ブロックターミナル
(2)
45 400-63473 DIN_RAIL
ディンレール
(1)
46 HX-0068800-00 POWER SUPPLY
パワーサプライ
(2)
47 HX-0054300-0A POWER SUPPLY 24V
電源24 V
(1)
48 HX-0057700-0A POWER SUPPLY
電源
(1)
49 KX-0000001-50 POWER SOURCE 6V
電源6 V
(1)
50
#01
HA-0052400-00 CIRCUIT PROTECTOR
サーキットプロテクタ
(1)
51
#01
HX-0054200-0B POWER SOURCE 24V
電源24 V
(1)
52
#01
400-94921 SAFETY UNIT ASSY(EN)
セーフティユニット組(EN)
1
53 HB-0015800-00 RELAY
セーフティリレーユニット
(1)
54 HA-0063000-00 MAGNETIC CONTACTOR
電磁開閉器
(3)
55 HA-0063200-00 MAGNETIC CONTACTOR
電磁開閉器
(2)
56 HB-0013900-00 RELAY リレー (8)
57 HB-0013900-10 RELAY SOCKET
リレー用ウソケット
(8)
58 HK-0696500-10 BLOCK TERMINAL
ブロックターミナル
(2 2)
59 HK-0692500-10 BLOCK TERMINAL
ブロックターミナル
(4)
60 HK-0691900-00 BLOCK TERMINAL
ブロックターミナル
(1)
61 HK-0691900-0B BLOCK TERMINAL
ブロックターミナル
(3)
62 400-00488 SLIDE RAIL
スライドレール
(1)
63 400-00529 CARRIER RAIL 350
キャリアレール 350
(2)
64 HK-0696900-00 BLOCK TERMINAL
ブロックターミナル
(1)
65 400-94695 SAFETY_UNIT_BR
セーフティユニットブラケット
(1)

- 13 -
7. BASE FRAME ELECTRIC APPARATUS COMPONENTS(3)
ベースフレーム電装関係(3)
14
18
13
BK
SP
RL
K1
K2
TF
TB 2
TB1
LF
RFRF
22
19
20
23
22
21
2
32 323
2
3
4
5
4
5
4
5
6
7
8
9
112
10
11
1618 18
17
17
17 18
15
37
28
24
26
26
26
24
25
26
27
24
32
31
33
34
35
29
30
36
38
39