KE-3020_KE-3020R-Rev04 - 第65页
- 58 - REF .NO N O T E PA RT NO D E S C R I P T I O N 品 名 Q ty 1 400-71319 Y_MOT OR_ F R AME Y モータフレーム 2 2 SL-6 062 092 -TN SCREW M6 L=20 座金付き六角穴ボルト 8 3 40 0-76 136 SARV O MO T O R 1 500 W サーボモータ 1500 W 2 4 SM- 60 825 02…

- 57 -
29.X-Y COMPONENTS(5)(TYPE XL)
X − Y 関係(5)(XL 仕様)
62
64
63
58
57
59
60
65
61
56
67
68
69
71
72
73
70
74
74
75
75
76
76
78
79
80
81
81
79
80
77
82
82
77
81
78
79
80
82
82
77
80
79
81
78
83
83
83
66
83
86
85
85
78
76
84
84
2
4
5
6
7
2
1
4
6
7
9
9
8
11
11
12
12
13
14
14
20
18
21
34
34
33
33
22
28
32
23
32
24
24
31
31
30
29
30
31
31
29
32
32
28
25
35 38
25
35 38
39
5
10
39
41
10
41
39
39
41
39
41
41
39
41
41
41
41
41
41
41
41
40
40
41
41
41
39
8
41
41
19
16
15
17
1
3
3
42
41
41
39
41
41
41
41
42
43
26
27
20
18
19
46
48
46
48
48
47
49
50
50
50
45
51
52
53
54
55
76
86
77
13
A
A
B
B
44

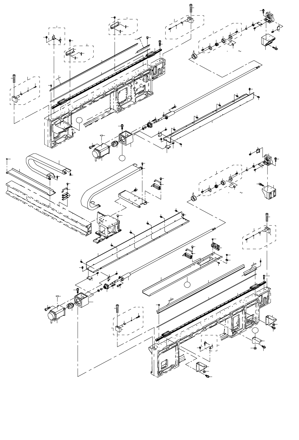
- 58 -
REF.NO NOTE PART NO D E S C R I P T I O N
品 名
Qty
1 400-71319 Y_MOTOR_FRAME
Y モータフレーム
2
2 SL-6062092-TN SCREW M6 L=20 座金付き六角穴ボルト 8
3 400-76136 SARVO MOTOR 1500W
サーボモータ 1500 W
2
4 SM-6082502-TN BOLT
六角穴ボルト
8
5 400-93855 FIXED_SUPPORT_UNIT
フィックス_サポート_ユニット
2
6 SM-6052002-TN BOLT
六角穴ボルト
4
7 400-93856 COUPRING_Y カップリング_ Y 2
8 400-71323 Y_SPT_BLOCK
Y サポートブロック
2
9 SL-6062592-TN SCREW
座金付き六角穴ボルト
8
10 400-71321 Y_BALLSCREW_FRAME
Y ボールねじフレーム
2
11 SL-6052092-TN SCREW
座金付き六角穴ボルト
8
12 400-93857 O_RING_Y O _リング_ Y 4
13 400-98048 Y_BALL_SCREW_XL
Y _ボールねじ_ XL
2
14 SM-6062002-TN SCREW M6 L=20
六角穴ボルト M 6 L =20
8
15 400-93858 FC_SUPPORT_X
FC _サポート_ X
1
16 L153E-321-000 FC RUBBER
FC ルーバー
3
17 SM-3051052-TN SCREW M5 L=10 丸ねじ M 5 L =10 2
18 400-98051 FC_SUPPORT_Y
FC _サポート_ Y
2
19 400-98052 FC_RUBBER_Y
FC _ラバー_ Y
6
20 SM-3061052-TN SCREW
丸ねじ M 6 L =10
4
21 400-98058 X_PLASTIC_RAIL_SUPPORT_XL
X _プラスチック_レール_サポート_ XL
1
22 400-98059 X_PLASTIC_RAIL_XL X _プラスチック_レール_ XL 1
23 SM-3040652-TN SCREW M4 L=6
丸ねじ M 4 L =6
1
24 SM-6041002-TN BOLT
六角穴ボルト
8
25 400-93888 BEARING_SHIM_100
ベアリングシム100
1
26 400-98060 Y_PLASTIC_RAIL_XL
Y _プラスチック_レール_ XL
1
27 SM-6041002-TN BOLT 六角穴ボルト 8
28 400-93894 Y_BEARING_ASM
Y ベアリング組
2
29 400-93873 BEARING_HOLDER
ベアリング_ホルダ
(1)
30 400-93874 ANGULAR_BEARING
アンギュラ_ベアリング
(1)
31 400-93875 BEARING_PLATE
ベアリング_プレート
(2)
32 SL-6041092-TN SCREW 座金付き六角穴ボルト (8)
33 400-93876 BEARING_LOCK_NUT
ベアリング_ロック_ナット
2
34 400-93877 BEARING_SPACER
ベアリング_スペーサ
2
35 400-93885 BEARING_SHIM_10
ベアリングシム10
2
36 400-93886 BEARING_SHIM_20
ベアリングシム20
2
37 400-93887 BEARING_SHIM_50
ベアリングシム50
2
38 400-93888 BEARING_SHIM_100 ベアリングシム100 2
39 400-93883 Y_OIL_GUARD_BR
Y _オイル_ガード_ BR
8
40 400-98057 Y_OIL_GUARD_XL
Y _オイル_ガード_ XL
2
41 SL-6040892-TN BOLT
座金付き六角穴ボルト
42
42 CM-3003000-03 HIGH TEMPARATURE CAUTION LABEL 2 (31.5)
高温注意シール2(31.5)
2
43 400-98061 Y_PLASTIC_RAIL_BR_XL Y _プラスチック_レール_ブラケット_ XL 1
44 SM-3061052-TN SCREW M6 L=10
丸ねじ M 6 L =10
3
45 SL-6061292-TN SCREW
座金付き六角穴ボルト
2
46 400-98066 Y_PLA_RAIL_SUP_BR_A
Y プラレールサポート BR _ A
2
47 400-98067 Y_PLA_RAIL_SUP_BR_B
Y プラレールサポート BR _ B
1
48 SL-6061692-TN BOLT 座金付き六角穴ボルト 6
49 400-98069 Y_PLA_RAIL_SUPPORT_XL
Y プラレールサポート_ XL
1
50 NM-3060810-SF NUT M6
フランジ付きナット
6
51 SM-6040602-TN BOLT
六角穴ボルト
4
52 400-98068 CONNECTOR_BR_XL
コネクタブラケット_ XL
1
53 SM-3040652-TN SCREW M4 L=6 丸ねじ M 4 L =6 4
54 HX-0029400-00 FIXED BASE
固定ベース
6
55 SM-4040601-SC SCREW M4X0.7 L=6
なべ小ねじ M 4 X 0.7 L =6
6
56 400-93895 Y_SENSOR_BR_F_ASM
Y センサブラケット F 組
1
57 400-93878 Y_SENSOR_BR
Y _センサ_ BR
(1)
58 400-92477 Y- LMT SENSOR ASM Y マイナスリミットセンサ組 (1)
59 400-92480 Y NEAR SENSOR ASM
Y 近傍センサ組
(1)
60 SL-6040892-TN BOLT
座金付き六角穴ボルト
2
61 400-93896 Y_SENSOR_BR_R_ASM
Y センサブラケット R 組
1
62 400-93878 Y_SENSOR_BR
Y _センサ_ BR
(1)
63 400-92478 Y+ LMT SENSOR ASM Y プラスリミットセンサ組 (1)
64 400-92479 Y++ LMT SENSOR ASM
Y プラスプラスリミットセンサ組
(1)
65 SL-6040892-TN BOLT
座金付き六角穴ボルト
2
66 400-93897 YL_ORG_SENSOR_BR_ASM
YL 原点センサブラケット組
1
67 400-93880 Y_ORG_SENSOR_BR
Y _原点_センサ_ BR
(1)
68 400-02171 YL ORG SENS ASM YL 原点センサ組 (1)
69 SL-6040892-TN BOLT
座金付き六角穴ボルト
2
70 400-93898 YR_ORG_SENSOR_BR_ASM
YR 原点センサブラケット組
1
71 400-93880 Y_ORG_SENSOR_BR
Y _原点_センサ_ BR
(1)
72 400-02172 YR ORG SENS ASM
YR 原点センサ組
(1)
73 SL-6040892-TN BOLT 座金付き六角穴ボルト 2
74 400-48080 MAGNETIC SCALE Y XL マグネスケール Y XL 2
75 400-93881 Y_MSC_GUARD_L
Y マグネスケールガード L
2
76 SM-6040602-TN BOLT
六角穴ボルト
14
77 400-93899 Y_STOPPER_ASM
Y ストッパ組
4
78 400-93882 Y_STOPPER
Y _ストッパ
(1)
79 400-63714 X_STOPPER_RUBBER X ストッパラバー (2)
80 E2779-721-000 STOPPER COLLAR
ストッパカラー
(8)
81 SL-6031492-TN SCREW M3 L=14
座金付き六角穴ボルト M 3 L =14
(4)
82 SM-6126002-TN SCREW M12 L=60
六角穴ボルト M 12 L =60
8
83 E2333-715-000 CAUTION SEAL
注意シール
4
84 400-98054 Y_MSC_GUARD_XL Y _ MSC _ガード_ XL 2
85 400-98046 Y_LM_GUIDE_XL
Y _ LM ガイド_ XL
2
86 SM-6052002-TN BOLT
六角穴ボルト
56

- 59 -
30.HEAD COMPONENTS(1)
ヘッド関係(1)
78 81
4
13
A
A
B
B
5
3
82
83
83
83
15
16
16
17
36
22
25
26
26
27
28
29
32
33
34
37
38
38
39
40
41
42
43
44
45
46
47
48
49
50
51
52
53
54
55
56
57
58
59
60
61
62
63
63
63
64
64
64
64
65
72
73
99
101
100
102
103
92
93
93
94
96
97
17
C
C
66
71
31
102
100
100
102
18
98
83
83
83
74
75
77
91
104
14
35
20
76
84
85
86
87
10
9
8
24
7
88
30
95
11
1
2
12
10
9
8
90
75
77
76
6
19
21
23
89