2500_Users_Manual- - 第307页
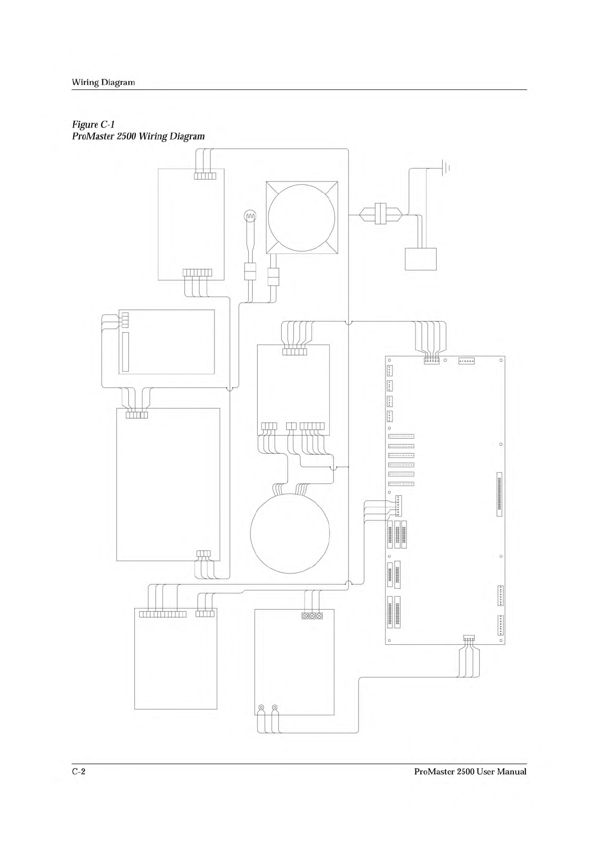
C Wiring Diagram The wiring diagram and handler controller board layout are included in this section. ProMaster 2500 User Manual C-l

Firmware
Keys
and
STOP
Commands
B-6
ProMaster
2500
User
Manual

C
Wiring
Diagram
The
wiring
diagram
and
handler
controller
board
layout
are
included
in
this
section.
ProMaster
2500
User
Manual
C-l

HANDLER
CONTROLLER
POWER SUPPLY
7
6
5
4
3
2
1
3
2
1
P2
P1
RED
YEL
BLUE
BLK
GRN
WHT
BLK
ORN
YEL
RED
VIOL
PROGRAMMING
ELECTRONICS
ASSEMBLY
1
J1
24 VOLT
POWER SUPPLY
TOROIDAL
TRANSFORMER
DISK DRIVE
MOTOR
POWER
SUPPLY
BOARD
RED
YEL
BLUE
RED
BLK
DRIVE
FAN
RED
YEL
BLUE
1
J2
PROGRAMMING
ELECTRONICS
POWER SUPPLY
BOARD
RED
RED
BLK
BLK
NC
NC
NC
NC
8
1
BLK
WHT
GRN
6
1
AC IN
BLK
RED
RED
BLK
RED
BLK
RED
BLK
PILOT LIGHT
FAN
1
J1
1
J2
1
J3
RED
VIOL
YEL
ORN
BLK
WHT
WHT
BRN
BLK
BLUE
GRAY
J4
RED
GRN
BLUE
BLUE
BLK
BLK
GRN
WHT
BLK
BLUE
YEL
RED
NC
GRN
GRN
WHT
WHT
-24V DC
+24V DC
GND
AC (L)
AC (N)
WHT
BLK
GRN
BLUE
YEL
RED
BLK
1
WHT
WHT
GRN
GRN
J27
1
1
J2
J11
HANDLER CONTROLLER BOARD
AC
IN
CHASSIS GND
WHT
GRN
BLK
WHT
GRN
BLK
GRN
GRN
TB - 1
1
Wiring
Diagram
1 1 1 1 1 1 1 1 1 1
i
rn
rrTnl
C-2
ProMaster
2500
User
Manual