KE-3010_KE-3020V_KE-3020VR-Rev06PDFA - 第111页
- 102 - NOTE( 注記 ) #01....TY PE M M 仕様 #02....TYPE L L 仕 様 *INSTALLATION POSITION AND DIRE CTION VARY IF THE P WB TRANSFER REFERENCE IS DIFFER ENT. 基板搬送基準が異なると取 付位置、方向が変わります。 REF.NO NOTE PART NO D E S C R I P T I O N 品 名…

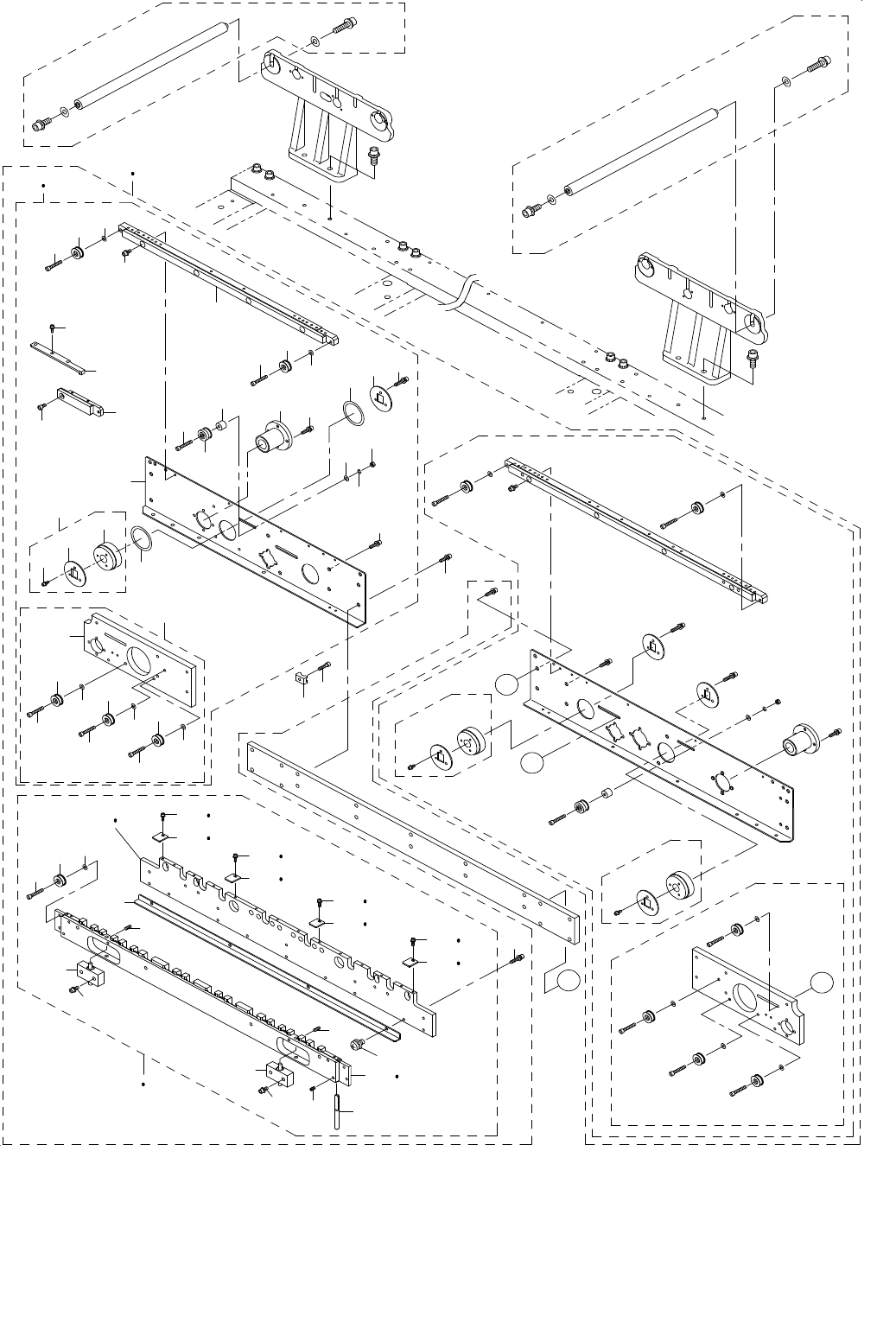
- 101 -
51.PWB CONVEYOR COMPONENTS(3)
基板搬送関係(3)
5
8
8
9
9
8
6
9
A
36
37
53
45
47
48
43
55
42
54
43
55
43
55
43
55
43
55
1
2
B
57
56
43
55
43
55
46
58
40
41
38
39
50
49
53
51
52
50
49
35
34
33
32
17
3
4
31
28
31
29
24
59
14
15
16
18
22
23
21
10
10
27
26
25
21
20
19
B
A
12
13
11
30
30
7
7
7
44

- 102 -
NOTE( 注記 ) #01....TYPE M M 仕様
#02....TYPE L L 仕様
*INSTALLATION POSITION AND DIRECTION VARY IF THE PWB TRANSFER
REFERENCE IS DIFFERENT.
基板搬送基準が異なると取付位置、方向が変わります。
REF.NO NOTE PART NO D E S C R I P T I O N
品 名
Qty
1
#02
401-14264 CONVEYOR RAIL R ASM L
コンベアレールR組L
1
2
#01
401-10196 CONVEYOR RAIL R ASM
コンベアレールR組
1
3
#02
401-14266 RAIL PLATE RL ASM L
レールプレートRL組L
(1)
4
#01
401-10202 RAIL PLATE RL ASM
レールプレートRL組
(1)
5 400-01059 SUPPORT PLATE RL ASM(L)
サポートプレートRL組(L)
(1)
6 400-01064 SUPPORT PLATE RL(L)
サポートプレートRL(L)
(1)
7 E2111-715-0A0 CONVEYOR PULLEY ASM.
搬送プーリ(組)
(3)
8 WP-0430800-SC WASHER M4
平座金小形丸 M4
(3)
9 SM-4040855-SC SCREW
なべ小ねじ M4 L=8
(3)
10 SM-4040855-SC SCREW
なべ小ねじ M4 L=8
(2)
11 E2089-721-0A0 CONVEYOR PULLEY B ASM.
搬送プーリB組
(1)
12 E2055-721-000 PULLEY SPACER
プーリスペーサ
(1)
13 SM-4042501-SC SCREW M4X0.7 L=25
なべ小ねじ M4X0.7 L=25
(1)
14 WP-0430801-SC WASHER M4
平座金 M4
(1)
15 WS-0410002-KN SPRING WASHER M4
ばね座金 M4
(1)
16 NM-6040001-SC NUT M4X0.7 TYPE1
六角ナット M4X0.7 1種
(1)
17 400-00839 DRIVE PULLEY R ASM
ドライブプーリ R組
(1)
18 400-00840 DRIVE PULLEY R
ドライブプーリ R
(1)
19 E2160-721-000 PULLEY FLANGE
プーリフランジ
(1)
20 SL-6030892-TN SCREW M3 L=8
座金付き六角穴ボルト M3 L=8
(3)
21 E3931-750-000 PULLEY WASHER
プーリスラストワッシャ
(2)
22 E2160-721-000 PULLEY FLANGE
プーリフランジ
(1)
23 SL-6030892-TN SCREW M3 L=8
座金付き六角穴ボルト M3 L=8
(3)
24 SB-8160001-00 BEARING
ころがり軸受
(2)
25 400-01063 RAIL PLATE RL(L)
レールプレートRL(L)
(1)
26 400-00828 CONVEYOR RAIL
コンベアレール
(1)
27 SL-6031492-TN SCREW M3 L=14
座金付き六角穴ボルト M3 L=14
(4)
28 SM-6040802-TN SCREW
六角穴ボルト M4X0.7 L=8
(8)
29 SL-6041092-TN SCREW
座金付き六角穴ボルト
(2)
30 E2111-715-0A0 CONVEYOR PULLEY ASM.
搬送プーリ(組)
(2)
31 WP-0430800-SC WASHER M4
平座金小形丸 M4
(2)
32
#01
401-13947 CONVEYOR RAIL M
コンベアレールM
(1)
33
#01
SM-6040802-TN SCREW M4X0.7 L=8
六角穴ボルト M4X0.7 L=8
(1)
34
#01
401-13948 PWB GUIDE M A
PWBガイドM A
(1)
35
#01
SL-6031092-TN SCREW M3 L=10
座金付き六角穴ボルト M3 L=10
(3)
36
#02
401-14265 CONVEYOR RAIL RC ASM L
コンベアレールRC組L
(1)
37
#01
401-10201 CONVEYOR RAIL RC ASM
コンベアレールRC組
(1)
38 400-00812 RAIL GUIDE SHAFT
レールガイドシャフト
(2)
39 SM-8040602-TP SCREW M4X0.7 L=6
止めねじ
(2)
40 401-10109 SAFETY BAR
安全バー
(1)
41 SL-4040841-SE SCREW M4 L=8
なべねじセムス M4 L=8
(4)
42
#01
401-22129 PWB_GUIDE_PLATE_RA_EPV
PWBガイドプレートRA_EPV
(10)
43 SL-6030892-TN SCREW M3 L=8
座金付き六角穴ボルトM3 L=8
(10)
44 E2111-715-0A0 CONVEYOR PULLEY ASM.
搬送プーリ(組)
(4)
45 WP-0430800-SC WASHER M4
平座金小形丸 M4
(4)
46 SM-4040855-SC SCREW
なべ小ねじ M4 L=8
(4)
47
#02
401-10106 RAIL GUIDE R
レールガイドR
(1)
48
#01
401-13941 RAIL GUIDE R
レールガイドR
(1)
49 E4105-729-0A0 SHAFT SUPPORT B ASM.
シャフトサポート組
(2)
50 SM-8030302-TP SCREW M3X0.5 L=3
止めねじ M3X0.5 L=3
(2)
51
#02
401-10105 CONVEYOR RAIL RC
コンベアレールRC
(1)
52
#01
401-13946 CONVEYOR RAIL RC M
コンベアレールRC M
(1)
53 SL-6041092-TN SCREW
座金付き六角穴ボルト
(4)
54
#02
401-22129 PWB_GUIDE_PLATE_RA_EPV
PWBガイドプレートRA_EPV
(12)
55
#02
SL-6030892-TN SCREW M3 L=8
座金付き六角穴ボルト M3 L=8
(12)
56 HX-0029400-00 FIXED BASE
固定ベース
(1)
57 SM-6042002-TN BOLT
六角穴ボルト
(1)
58 SL-6041692-TN SCREW M4 L=16
座金付き六角穴ボルトM4 L=16
(10)
59 SL-6042092-TN SCREW M4 L=20
座金付き六角穴ボルト
(3)

- 103 -
52.PWB CONVEYOR COMPONENTS(4)
基板搬送関係(4)
33
34
32
31
10
19
3
8
1
2
23
17
13
13
12
9
10
11
26
25
25
26
26
25
27
30
B
A
A
44
4
17
18
14
15
16
14
18
16
15
9
11
6
7
8
29
5
22
5
22
20
38
39
38
39
41
B
40
36
46
40
42
43
43
41
35
37
43
43
42
45
24
24
24
28
21
21