KE-3010_KE-3020V_KE-3020VR-Rev06PDFA - 第212页
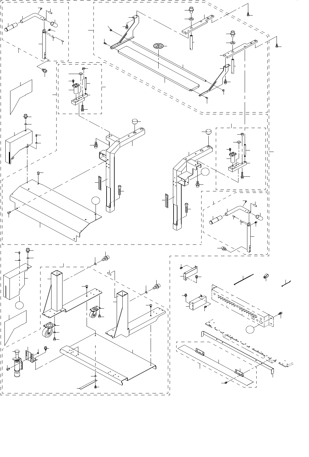
- 203 - 102.M REPLACING OVERALL CHANGER T RUCK COMPONENTS(WITH CONN ECTOR BRACKET)(1) メカ一括交換台車関係(コネクタブラ ケット有り) (1) 3 4 5 6 6 8 9 7 10 11 12 13 15 16 14 23 23 24 24 22 25 26 26 27 27 37 31 39 38 29 44 41 33 44 40 42 32 34…

- 202 -
REF.NO NOTE PART NO D E S C R I P T I O N
品 名
Qty
1 400-93575 E_BANK_ASSY
Eバンク組
1
2 400-93576 E_BANK_SUB_ASSY
Eバンクサブ組
(1)
3 401-03923 E_BANK_BASE
Eバンクベース
(1)
4 E2602-721-000 BANK LOCATE BUSH A
バンクロケートブッシュ A
(2)
5 E2609-721-000 BANK LOCATE PIN A
バンクロケートピンA
(1)
6 E2610-721-000 BANK LOCATE PIN B
バンクロケートピンB
(1)
7 NM-6080003-SC NUT M8
六角ナット M8 3種
(2)
8 WS-0820002-KN SPRING WASHER M8
ばね座金 M8
(2)
9 WP-0841601-SC WASHER 8.4X17.4X1.6
平座金みがき丸 M8
(2)
10 400-71337 MARK_STAND
マークスタンド
(1)
11 E2505-729-0A0 MARK ASM.
マーク組
(1)
12 E2505-729-000 MARK BASE
マークベース
(1)
13 E2601-725-000 MARK
マーク
(1)
14 SL-6041292-TN SCREW
座金付き六角穴ボルト
(2)
15 SL-6052092-TN SCREW
座金付き六角穴ボルト
(2)
16 401-03746 FIXING_PLATE
フィキシングプレート
(4)
17 SM-3041052-TN SCREW M4 L=10
丸ねじ M4 L=10
(12)
18 401-03747 FIXING_BLOCK
フィキシングブロック
(4)
19 SM-6041402-TN SCREW M4X0.7 L=14
六角穴ボルト M4X0.7 L=14
(12)
20 400-84713 E_BANK_SHIM_0.02
Eバンクシム0.02
(8)
21 400-84714 E_BANK_SHIM_0.03
Eバンクシム0.03
(8)
22 400-84715 E_BANK_SHIM_0.05
Eバンクシム0.05
(8)
23 400-84699 E_BANK_SHIM_0.10
Eバンクシム0.10
(12)
24 SM-8040612-TP SCREW M4 L=6
止めねじ M4 L=6
(8)
25 SM-8030602-TP SCREW M3X0.5 L=6
止めねじ M3X0.5 L=6
(8)
26 SM-8041852-TP SCREW M4 L=18
六角穴付き止めねじ M4 L=18
(8)
27 WP-0430801-SC WASHER M4
平座金 M4
(12)
28 E3074-729-000 BEARING SHIM D
ベアリングシム D
(2)
29 401-03748 RAIL_GUIDE_9
レールガイド9
(3)
30 401-03749 RAIL_GUIDE_10
レールガイド10
(1)
31 SM-6040802-TN SCREW
六角穴ボルト M4X0.7 L=8
(16)
32 400-97553 GUIDE_PLATE
ガイドプレート
(41)
33 SM-3030552-TN SCREW M3 L=5
丸ねじ M3 L=5
(82)
34 SM-1030552-TN PLATE SCREW M3 L=5
皿ねじ M3 L=5
(41)
35 400-93588 LOCK_SHAFT
ロックシャフト
(1)
36 SM-6040802-TN SCREW
六角穴ボルト M4X0.7 L=8
(16)
37 401-38827 E_BANK_BASE_COVER
E_バンク_ベース_カバー
(1)
38 SM-0040601-SC SCREW M4X0.7 L=6
トラス小ねじ M4X0.7 L=6
(8)
39 HX-0029400-00 FIXED BASE
固定 ベース
(8)
40 SL-4030881-SC SCREW M3 L=8
座金付きなべ小ねじ M3 L=8
(8)
41 EA-9500B02-00 CABLE BAND 150
結束バンド 150
(10)
42 400-93577 FDC_BRACKET_ASSY
FDCブラケット組
(1)
43 HX-0022300-0A BUSHING
ブッシュ
(0.14)
44 401-28140 FDC_BRACKET
FDCブラケット
(1)
45 SL-6051092-TN BOLT
座金付き六角穴ボルト
(4)
46 400-93594 ETF_POSITION_LABEL(40)
ETFポジションラベル(40)
(1)
47 400-92647 EF IF CBL 1-5 ASM
電動フィーダーIF1−5組
(1)
48 400-92648 EF IF CBL 6-10 ASM
電動フィーダーIF6−10組
(1)
49 400-92649 EF IF CBL 11-15 ASM
電動フィーダーIF11−15組
(1)
50 400-92650 EF IF CBL 16-20 ASM
電動フィーダーIF16−20組
(1)
51 400-92651 EF IF CBL 21-25 ASM
電動フィーダーIF21−25組
(1)
52 400-92652 EF IF CBL 26-30 ASM
電動フィーダーIF26−30組
(1)
53 400-92653 EF IF CBL 31-35 ASM
電動フィーダーIF31−35組
(1)
54 400-92654 EF IF CBL 36-40 ASM
電動フィーダーIF36−40組
(1)
55 HK-0791900-00 CONNECTOR
コネクタネジ
(80)
56 400-93590 FDC_BRACKET_STAY_L
FDCブラケットステーL
(1)
57 400-93591 FDC_BRACKET_STAY_R
FDCブラケットステーR
(1)
58 SL-6061292-TN SCREW
座金付き六角穴ボルト
(4)
59 400-93578 BANK_PCB_BOX_ASSY
バンク基板ボックス組
(1)
60 SL-4030691-SC SCREW M3 L=6
座金付きなべ小ねじ M3 L=6
(6)
61 401-28042 E_BANK_PCB_BASE
Eバンク基板ベース
(1)
62 HX-0067100-00 GROMMET
グロメット
(0.21)
63 401-87551 ELEC BANK 10 PCB ASM V2
電動バンク10基板組 V2
(1)
64 HX-0067100-0A GROMMET
グロメット
(0.36)
65 HX-0029400-00 FIXED BASE
固定ベース
(6)
66 SL-4030691-SC SCREW M3 L=6
座金付きなべ小ねじ M3 L=6
(7)
67 400-93593 BANK_PCB_COVER
バンク基板カバー
(1)
68 SL-6030892-TN SCREW
座金付き六角穴ボルト M3 L=8
(4)
69 EA-9500B01-00 CABLE BAND
束線バンド
(30)
70 EA-9500B02-00 CABLE BAND 150
結束バンド 150
(30)
71 HX-0035400-0E BOARD PARTS
基板パーツ
(4)
72 SL-6051092-TN BOLT
座金付き六角穴ボルト
(4)

- 203 -
102.M REPLACING OVERALL CHANGER TRUCK COMPONENTS(WITH CONNECTOR BRACKET)(1)
メカ一括交換台車関係(コネクタブラケット有り)(1)
3
4
5
6
6
8
9
7
10
11
12
13
15
16
14
23
23
24
24
22
25
26
26
27
27
37
31
39
38
29
44
41
33
44
40
42
32
34
35
43
46
45
46
45
49
51
52
53
53
55
55
54
56
57
57
58
71
72
76
73
75
76
75
62
63
64
21
30
A
A
48
83
81
2
B
B
85
84
86
86
87
87
92
90
89
88
91
17
19
18
28
36
50
50
59
60
59
60
66
68
70
64
63
62
66
68
69
65
74
73
74
77
82
82
61
20
61
1
70
47
67
69
67
69
69
65
80
93
78
79

- 204 -
NOTE( 注記 ) #01....FOR EN EN 用
REF.NO NOTE PART NO D E S C R I P T I O N
品 名
Qty
1 400-21958 FLOOR TROLLEY SUB UNIT
フロアトロリーサブユニット
1
2 400-21959 TROLLEY BOTTOM ASSY
トロリーボトム組
(1)
3 400-21912 TROLLEY FRAME BL
トロリーフレームBL
(1)
4 400-21913 TROLLEY FRAME BR
トロリーフレームBR
(1)
5 400-21914 TROLLEY BASE PLATE
トロリーベースプレート
(1)
6 SM-3061252-TN SCREW M6 L=12
丸ねじ M6 L=12
(6)
7 400-21957 TROLLEY CASTER (75)
トロリーキャスタ(75)
(2)
8 WP-0612516-SD WASHER 6.1X15.2X2.5
平座金 6.1X15.2X2.5
(8)
9 SM-6060802-TN BOLT
六角穴ボルト
(8)
10 400-21956 TROLLEY CASTER (50)
トロリーキャスタ(50)
(2)
11 SM-6060802-TN BOLT
六角穴ボルト
(8)
12 E2711-721-000 TROLLEY STOPPER
トロリーストッパー
(2)
13 E2710-721-000 STOPPER ATTACHMENT
ストッパーアタッチメント
(2)
14 SM-6060802-TN BOLT
六角穴ボルト
(8)
15 SL-6061242-TN BOLT
座金付き六角穴ボルト
(4)
16 NM-6060003-SC NUT M6
六角ナット M6
(4)
17 WP-0430801-SC WASHER M4
平座金 M4
(2)
18 400-23476 FG GUM SHEET
FGゴムシート
(1)
19 SM-6040802-TN SCREW
六角穴ボルト M4X0.7 L=8
(1)
20 400-21960 TROLLEY UPPER ASSY
トロリーアッパー組
(1)
21 400-58933 TROLLEY FRAME L
トロリーフレームL
(1)
22 400-58934 TROLLEY FRAME R
トロリーフレームR
(1)
23 SM-6125052-TR SCREW
六角穴ボルト M12 L=50
(2)
24 400-01730 SCALE MARKS SEAL
メモリシール
(2)
25 400-58935 TROLLEY UPPER PLATE
トロリーアッパープレート
(1)
26 SM-3061252-TN SCREW M6 L=12
丸ねじ M6 L=12
(6)
27 400-01731 TROLLEY RUBBER B
トロリーラバーB
(4)
28 400-22464 STOPPER PLATE L ASSY
ストッパープレートL組
(1)
29 400-53180 TROLLEY STOPPER PLATE L
トロリーストッパプレートL
(1)
30 400-01748 TROLLEY SUB GUIDE
トロリーサブガイド
(1)
31 SL-6063092-TN SCREW M6 L=30
座金付き六角穴ボルトM6 L=30
(1)
32 E2703-721-000 TROLLEY SHAFT
トロリーシャフト
(1)
33 S1021-710-000 ST RUBBER FOOT
STゴム足
(1)
34 SB-8160005-C0 BEARING
ころがり軸受
(1)
35 SL-6041042-TN BOLT
座金付き六角穴ボルト
(4)
36 400-22465 STOPPER PLATE R ASSY
ストッパープレートR組
(1)
37 400-01735 TROLLEY STOPPER PLATE
トロリーストッパープレート
(1)
38 400-01748 TROLLEY SUB GUIDE
トロリーサブガイド
(1)
39 SL-6063092-TN SCREW M6 L=30
座金付き六角穴ボルトM6 L=30
(1)
40 E2703-721-000 TROLLEY SHAFT
トロリーシャフト
(1)
41 S1021-710-000 ST RUBBER FOOT
STゴム足
(1)
42 SB-8160005-C0 BEARING
ころがり軸受
(1)
43 SL-6041042-TN BOLT
座金付き六角穴ボルト
(4)
44 SL-6082092-TN BOLT
座金付き六角穴ボルト
(4)
45 WP-1052001-SC WASHER 10,5X21X2
平座金みがき丸 M10
(4)
46 SL-6102042-TN SCREW
座金付き六角穴ボルト
(4)
47 400-21961 TROLLEY SLIDE ASSY
トロリースライド組
(1)
48 400-21916 BANK PLATE L
バンクプレートL
(1)
49 400-21917 BANK PLATE R
バンクプレートR
(1)
50 400-23221 SUPPORT SHAFT
サポートシャフト
(2)
51 400-01736 FS BRACKET L
FSブラケットL
(1)
52 400-01737 FS BRACKET R
FSブラケットR
(1)
53 SL-6061692-TN BOLT
座金付き六角穴ボルト
(4)
54 400-01739 FS PLATE
FSプレート
(1)
55 SM-3040652-TN SCREW M4 L=6
丸ねじ M4 L=6
(4)
56 400-21918 TAPE GUIDE
テープガイド
(1)
57 400-68308 SET SCREW M4 L=8
化粧ねじ M4×8
(2)
58 E5721-729-000 LABEL
荷重禁止シール
(1)
59 SL-6102042-TN SCREW
座金付き六角穴ボルト
(2)
60 WP-1052001-SC WASHER 10,5X21X2
平座金みがき丸 M10
(2)
61 400-21962 TROLLEY HANDLE ASSY
トロリーハンドル組
(2)
62 400-21920 TROLLEY HANDLE
トロリーハンドル
(1)
63 E2641-729-000 HANDLE CLIP
ハンドルグリップ
(1)
64 E2635-729-000 HANDLE SLIDER
ハンドルスライダ
(1)
65 400-21919 HANDLE SHAFT
ハンドルシャフト
(1)
66 SL-6030642-TN SCREW M3 L=6
座金付き六角穴ボルト
(1)
67 SL-6040642-TN BOLT
座金付き六角穴ボルト
(1)
68 PS-0600182-KP SPRING PIN
スプリングピン 6X18
(1)
69 PS-0400122-KP SPRING PIN
スプリングピン
(2)
70 SL-6082092-TN BOLT
座金付き六角穴ボルト
(4)
71 400-58936 TROLLEY COVER AL
トロリーカバーAL
(1)
72 400-58937 TROLLEY COVER AR
トロリーカバーAR
(1)
73 SM-3040652-TN SCREW M4 L=6
丸ねじ M4 L=6
(4)
74 WP-0430801-SC WASHER M4
平座金 M4
(4)
75 WP-0841601-SC WASHER 8.4X17.4X1.6
平座金みがき丸 M8
(2)
76 SL-6081242-TN BOLT
座金付き六角穴ボルト
(2)
77 E4981-700-000 LABEL
EPR0M用ブランクラベル
(1)
78 400-58938 SIDE TAPE L
サイドテープL
(1)
79 400-58939 SIDE TAPE R
サイドテープR
(1)
80 HX-0006500-0B CABLE BAND
束線バンド
6
81 HX-0015000-0K CABLE CLIP
ケーブルクリップ
1
82 400-01734 SCREW
段ねじ
4
83 SL-6051492-TN BOLT
座金付き六角穴ボルト
4
84
#01
E1173-725-000 PLATE STAND COVER L
プレートスタンドカバーL
1
85
#01
E1174-725-000 PLATE STAND COVER R
プレートスタンドカバーR
1
86 SL-6040892-TN BOLT
座金付き六角穴ボルト
2
87 SL-6051092-TN BOLT
座金付き六角穴ボルト
2
88
#01
400-01749 BANK FLAP ASSY
バンクフラップ組
1
89 400-18388 BUTT HINGE
平型蝶番
(2)
90 400-18389 BANK FLAP
バンクフラップ
(1)
91
#01
400-01750 BANK COVER
バンクカバー
1
92
#01
SL-6040892-TN BOLT
座金付き六角穴ボルト
4
93 HX-0067400-00 CABLE BAND
ケーブルバンド
4