1OM-1609-004_w - 第171页
1OM-1609 4-1 4 章 1. 仕 様 1 103-004 1. 仕 様 1.1 SIGMA-G4 チップマウンタ仕様 項 目 内 容 1. 型式名 SIGMA-G4 2. 装置概要 本装置は、片面操作方式を採用しており、 基板の搬送はデュアル搬送となりま す。 3. スループット 高速ヘッド 多機能ヘッド 70,000 CPH / モジュール 注 : 最適条件時で基板移載時間含まず。 チップ部品 : 9,000 CP…

1OM-1609
1007-003 4-B

1OM-1609
4-1
4 章 1. 仕 様
1103-004
1. 仕 様
1.1 SIGMA-G4 チップマウンタ仕様
項 目 内 容
1.
型式名 SIGMA-G4
2. 装置概要
本装置は、片面操作方式を採用しており、基板の搬送はデュアル搬送となりま
す。
3.
スループット
高速ヘッド 多機能ヘッド
70,000 CPH / モジュール
注 : 最適条件時で基板移載時間含まず。
チップ部品
: 9,000 CPH / 2 ヘッド
注 : 最適条件時で基板移載時間含ま
ず。
4.
装着精度
高速ヘッド 多機能ヘッド
0603 / 0402
: 40μm
(
3
σ
)
IC : 30μm
(
3
σ
)
5.基板流れ方向と
搬送基準
基板流れ方向 :左から右/右から左( 工場出荷時選択 )
搬送基準 :手前左
/手前右( 工場出荷時選択 )
6.対象基板 モード デュアル搬送モード シングル搬送モード
大きさ
X × Y
5
0 ×
50 ~ 610 × 2
16 mm 50 × 50 ~ 610 × 381 mm
注 : 四隅は R1 ~ R1.5
mm
厚 さ
0.3 ~ 5
.0 mm
質 量
Max. 1.5
kg
(
50 <= X <= 260 mm
)
Max. 2.5 kg
(
260 < X <= 610 mm
)
材 質 ガラスエポキシ
セラミック ( オプション )
注 : (
a) ガラスエポキシの色が淡色のものについては、当社営
業部または販売代理店にご相談ください。
(
b
)
基板の材質、形状、反り、質量、表面状態
( 光沢 )
などによっては、正常に基板搬送や部品装着ができ
るかどうかを、テストで確認する必要があります。
反 り 単位長さ 50 mm
あたり 0.2 mm 以下
上:Max. 1.0 mm
下:Max. 1.0 mm
• 単位長さ 50 mm
あたり 0.2 mm 以下
例 :
基板の大きさ
200 mm の場合、反りは 0.8 mm 以下。
• Max. 1.0 mm
例 :
基板の大きさが 250 mm を超える場合は、反りは 1.0 mm
以下。

1OM-1609
4-2
4 章 1. 仕 様
1007-003
項 目 内 容
7.
基板の切欠き
および穴の制限
3 0 .5
1 5
9
2 55
基板流れ方向
右 → 左
1 5
3 0 .5
9
2 55
1 5
基板流れ方向
左 → 右
1 5
基板ストッパ
単位
: mm
注
:
斜線部が、切欠き不可の範囲です。
斜線部に切欠きおよび穴がある場合は、基板位置決めティーチングモー
ドで正常に基板が位置決めできるか確認してください。
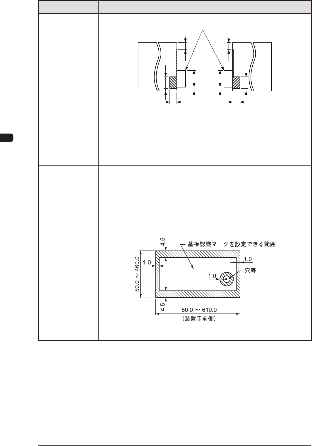
8.基板位置補正
方法
基板認識
•
基板認識マークを基板認識カメラで認識することにより、基板全体の位置
ズレ量および基板印刷パターンの伸びを補正します。
•
基板全体補正用には、基板上 ( ゾーン
1
~
5
) に
2
か所または
3
か所基板
認識マークを設定
( 多面取り基板の場合は各基板毎に
2
か所 ) します。
•
部品装着点補正用には、基板上に
1
~
2
か所基板認識マークを設定します。
この場合には、点対称となる基板認識マーク
2
か所の重心位置が部品装着
点中心となるように設定することを推奨します。
単位
: mm