QP-351E-MM-03 - 第90页
18.2.本体(DBAC) 18.2.Body(DBAC) 番号 図番 & コード番号 個数 品名 規格 備考 材質 No. Drg.No. & Code No. QTY Description Rating Remarks Materials 1 DBAB0441 2 GUIDE, RAIL ガイド レール OT 2 H5346A 6 BOLT, HEX SOCKET ボルト 六角穴 M8X45L FE 3 W…

18 - 6
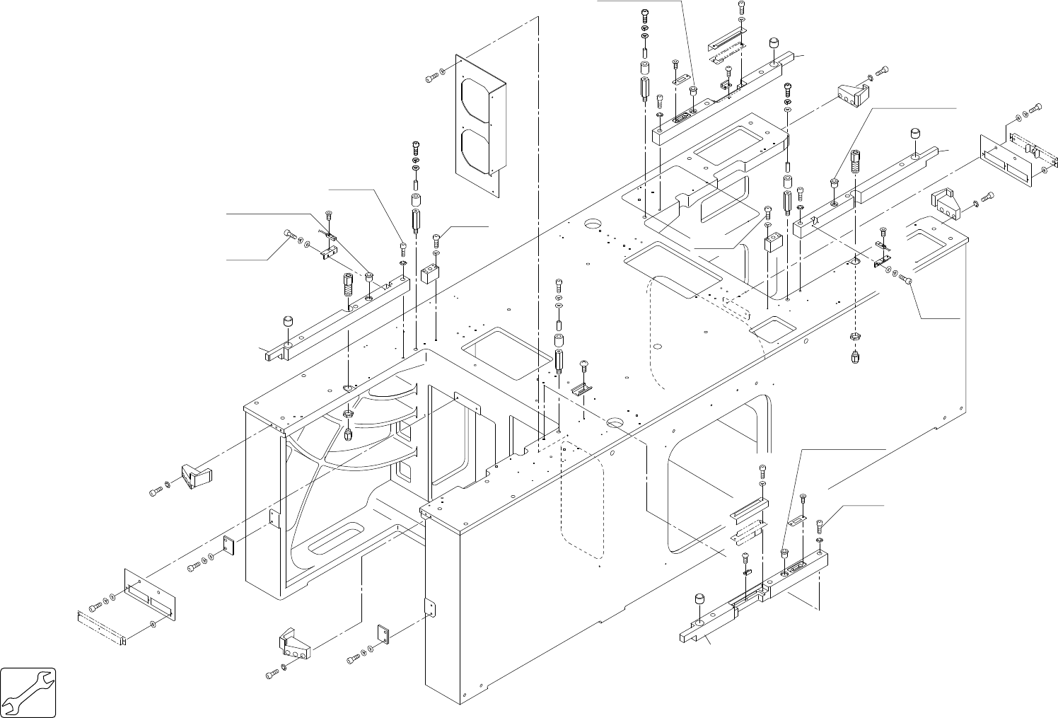
18.2.本体(DBAC)
18.2.Body(DBAC)
18.2.本体(DBAC)
18.2.Body(DBAC)
QP-351E-MM PARTS LIST
1.1.ノズル一覧 (DBPN)
1.1.ノズル一覧 (DBPN)
6.1.基板クランプ(CSSS)
6.1.Board clamping unit(CSSS)
タテx173.205
Ref.31-1
Ref.31-1
Ref.31-1
Ref.33-7
Ref.31-1
B
A
x12
B
A
ThreeBond1390E
ThreeBond1373B
ThreeBond1390E
ThreeBond1373B
3.9N・m
32.4N・m
3.9N・m
3.9N・m
3.9N・m
ThreeBond1390E
ThreeBond1373B
ThreeBond1390E
ThreeBond1373B
32.4N・m

18.2.本体(DBAC)
18.2.Body(DBAC)
番号 図番 & コード番号 個数 品名 規格 備考 材質
No. Drg.No. & Code No. QTY Description Rating Remarks Materials
1 DBAB0441 2 GUIDE, RAIL ガイド レール OT
2 H5346A 6
BOLT, HEX SOCKET
ボルト 六角穴
M8X45L FE
3 W1014A 6
WASHER, CONICAL
ワッシャ 皿
M-8-H FE
4 DBAB0451 2 GUIDE, RAIL ガイド レール OT
5 H5346A 6
BOLT, HEX SOCKET
ボルト 六角穴
M8X45L FE
6 W1014A 6
WASHER, CONICAL
ワッシャ 皿
M-8-H FE
7 DBAB0110 4 BUSHING, GUIDE ブッシュ ガイド FE
8 DBAB0120 2 BKT, RETAINER BKT 押え FE
9 K5357M 2
SCREW, HEX SOCKET COUNTERSUNK
小ネジ 六角穴皿
M3X6L FE
10 DBAB0130 2 COVER, CONNECTOR カバー コネクタ FE
11 H5289A 2
BOLT, HEX SOCKET
ボルト 六角穴
M4X12L FE
12 W1022A 2
WASHER, LOCK
ワッシャ スプリング 4M/M FE
13 DBAB0140 2 BLOCK, BACKUP ブロック バックアップ PL
14 K5255T 4 SCREW, HEX SOCKET BUTTON 小ネジ 六角穴ボタン M3X6L FE
15 DBAB0150 4 BKT, STOPPER BKT ストッパ FE
16 DBAB0160 4 STOPPER ストッパ PL
17 DBAB0170 4 COLLAR カラー OT
18 H5346A 4
BOLT, HEX SOCKET
ボルト 六角穴
M8X45L FE
19 W1025A 4
WASHER, LOCK
ワッシャ スプリング 8M/M FE
20 W1052A 4 WASHER, FLAT ワッシャ 平 8M/MX1.6X17(1W-8) FE
21 DBAB0180 2 PLATE, STIFFENING プレート 当て FE
22 H5323A 8
BOLT, HEX SOCKET
ボルト 六角穴
M6X18L FE
23 W1024A 8
WASHER, LOCK
ワッシャ スプリング 6M/M FE
24 W1045A 8 WASHER, FLAT ワッシャ 平 4W-6 FE
25 DBAB0201 2 PLATE プレート FE
26 H5322A 4
BOLT, HEX SOCKET
ボルト 六角穴
M6X15L FE
27 W1024A 4
WASHER, LOCK
ワッシャ スプリング 6M/M FE
28 W1045A 4 WASHER, FLAT ワッシャ 平 4W-6 FE
29 W1087A 6 WASHER ワッシャ CC-5-10-5.3-0.8 FE
34 BHUF0020 4 BUSHING, GUIDE ブッシュ ガイド FE
35 BHAB0660 2 BKT, SENSOR BKT センサ FE
36 H5289A 4
BOLT, HEX SOCKET
ボルト 六角穴
M4X12L FE
37 W1022A 4
WASHER, LOCK
ワッシャ スプリング 4M/M FE
38 W1043A 4 WASHER, FLAT ワッシャ 平 4W-4 FE
39 H10517 2 VALVE, CHECK バルブ チェック IN-334-97 OT
40 S3099M 2 SW, PROXIMITY SW 近接 TL-W1R5MC1 OT
41 K5357T 2
SCREW, HEX SOCKET COUNTERSUNK
小ネジ 六角穴皿
M3X8L FE
QP-351E-MM PARTS LIST
18 - 7
18.2.本体(DBAC)
18.2.Body(DBAC)

18.2.本体(DBAC)
18.2.Body(DBAC)
番号 図番 & コード番号 個数 品名 規格 備考 材質
No. Drg.No. & Code No. QTY Description Rating Remarks Materials
42 DBAB0241 1 RAIL レール OT
43 K5209A 2
SCREW, TRUSS
小ネジ トラス M4X8L FE
44 DBAB0250 2 BLOCK, REFERENCE ブロック 基準 FE
45 H5291A 4
BOLT, HEX SOCKET
ボルト 六角穴
M4X18L FE
46 W1022A 4
WASHER, LOCK
ワッシャ スプリング 4M/M FE
47 DBAB0421 1 GUIDE ガイド OT
48 H5342A 3 BOLT, HEX SOCKET ボルト 六角穴 M8X25L FE
49 W1014A 3 WASHER, CONICAL ワッシャ 皿 M-8-H FE
50 DBAB0431 1 GUIDE ガイド OT
51 H5342A 3 BOLT, HEX SOCKET ボルト 六角穴 M8X25L FE
52 W1014A 3 WASHER, CONICAL ワッシャ 皿 M-8-H FE
53 DBAB0321 1 PLATE プレート FE
54 H5298A 2 BOLT, HEX SOCKET ボルト 六角穴 M5X10L FE
55 W1023A 2
WASHER, LOCK
ワッシャ スプリング M5/M FE
56 DBAC0100 1 GUID ガイド OT
57 H5341A 3 BOLT, HEX SOCKET ボルト 六角穴 M8X20L FE
58 W1014A 3 WASHER, CONICAL ワッシャ 皿 M-8-H FE
59 DBAC0110 1 GUID ガイド OT
60 H5341A 3 BOLT, HEX SOCKET ボルト 六角穴 M8X20L FE
61 W1014A 3 WASHER, CONICAL ワッシャ 皿 M-8-H FE
QP-351E-MM PARTS LIST
18 - 8
18.2.本体(DBAC)
18.2.Body(DBAC)