KE-2050_2060_Specifications_Rev11_C - 第44页
39 10-2. 与前后装置的连接规格 信号接口与连接端子 10-3. 电气接口 电气信号的种类与意 义 下面的 “电气信号连接概念 图” ,是 贴片机与配套机器的电气信号的 连接概念图。 在下图里,贴 片机与 上游装置之间的电气信号为①②,贴 片机与下游装置之间的电气信号 为③④。 a)电气信号①称为“输入信号要求搬 出”(或“Board Available In”),是贴片机收到上 游装置要求 搬出印刷基板的信号。 b)电气信号②称…

37
8. 安全规格
8-1. 标准规格
紧急停止
紧急停止时可按前后 2 处的紧急停止开关。按下紧急停止开关后,各轴立即停止,伺服马达的驱动
电源即被切断。
安全盖
机器前后各配备一个安全盖,前后均可通过打开安全盖开关,检测打开与关闭状态。打开安全盖时,
会暂时停止连续运行。在保持打开的状态下起动时,会进入低速运行状态。安全盖打开时,对侧的
操作面板上的 START 键与 SERVO FREE 键变为无效。
8-2. CE标记规格
依据下列 EC(European Committee)指令制定。
· EC 机械指令 89/392/EEC+91/368/EEC+93/44/EEC
· EC 低电压指令 72/23/EEC+93/68/EEC
· ECEMC 指令 89/336/EEC+92/31/EEC+93/68/EEC
9. 可靠性规格
9-1. 装置的使用寿命
5 年:但易损件或定期更换元件(详情请在购买装置时向本公司垂询)除外。
寿命计算标准:
22 小时/天
300 天/年
22×300×5=33,000 小时/5 年

38
10. 其他规格
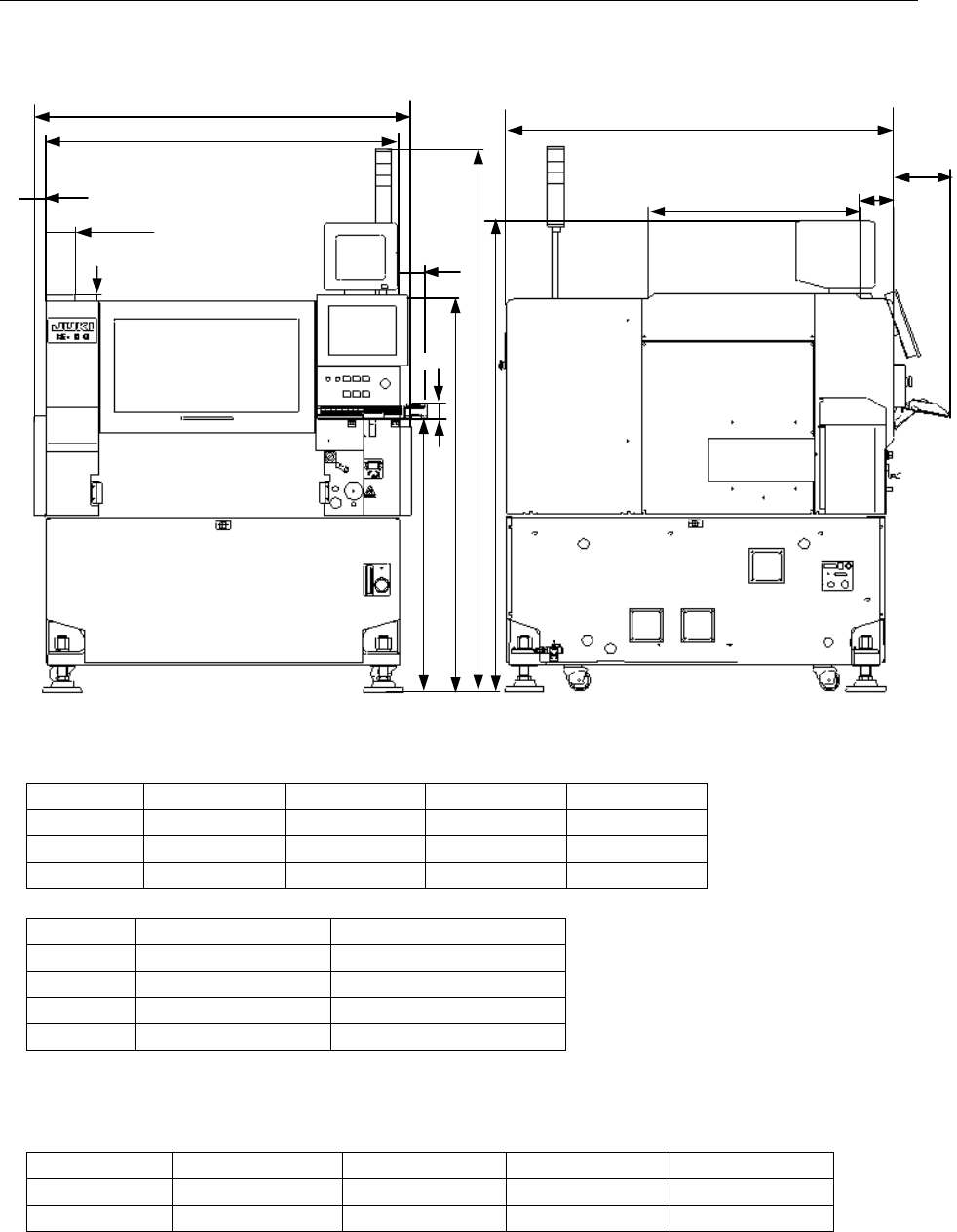
10-1. 机器尺寸
KE-2050/2060
外形尺寸(最大凸起部位除外)
(单位:mm)
尺寸 M 基板规格 L 基板规格 L-wide 基板规格 E 基板规格
A 1400 1500 1730 1730
C 1393 1500 1500 1600
H 50 125 240 240
(单位:mm)
尺寸 传送高度 900mm 传送高度 950mm
D 1005 1055
E 1440 1490
F 1725 1775
G 2000 2050
*
M 基板规格、L 基板规格以及 L-wide 基板规格的 D~G 尺寸都是通用的。
主体重量
(单位:kg)
机型 M 基板规格 L 基板规格 L-wide 基板规格 E 基板规格
KE-2050 约 1400 约 1460 约 1460 -
KE-2060 约 1410 约 1470 约 1470 约 1530
A
1300mm
18mm
D
E
G
235mm
C
F
780mm
120mm
20mm
106mm
H
70mm

39
10-2. 与前后装置的连接规格
信号接口与连接端子
10-3. 电气接口
电气信号的种类与意义
下面的“电气信号连接概念图”,是贴片机与配套机器的电气信号的连接概念图。在下图里,贴片机与
上游装置之间的电气信号为①②,贴片机与下游装置之间的电气信号为③④。
a)电气信号①称为“输入信号要求搬出”(或“Board Available In”),是贴片机收到上游装置要求
搬出印刷基板的信号。
b)电气信号②称为“输出信号许可搬出”(或“Ready Out”),是贴片机向上游装置发出允许搬出印刷
基板的信号。
c)电气信号③称为“输出信号要求搬出”(或“Board Available Out”),是贴片机向下游装置发出要
求搬出印刷基板的信号。
d)电气信号④称为“输入信号许可搬出”(或“Ready In”),是贴片机收到下游装置允许搬出印刷基
板的信号。
电气信号连接概念图
下游装置 贴片机 上游装置
③
④
①
②
针号:1
输入信号要求搬出
针号:2
要求搬出信号公用
继电器接点
下游装置
贴片机
上游装置
针号:1
输出信号要求搬出
针号:2
要求搬出信号公用
继电器接点
针号:3
输出信号许可搬出
针号:4
许可搬出信号公用
针号:3
输入信号许可搬出
针号:4
许可搬出信号公用