NR_Mechanischer_Stopper - 第198页
Assembly Instructions PCB Stopper Sin gle Conveyor SIPLACE S-27HM / HS-60 / D4 / D3 / HF- / X-Series Edition 06/2007 198 15.1.1 Gesamtübersicht Fig. 177 Overview HF-/X-Series/D3 (Fig. 1) Single conveyor

Assembly Instructions PCB Stopper Single Conveyor SIPLACE S-27HM / HS-60 / D4 / D3 / HF- / X-Series
Edition 06/2007
197
15 Retrofitting SIPLACE HF-Series / X-
Series / D3
Caution: Before the stopper is mounted in the machine, it should be adjusted with the guide strip
and the shims. Care should be taken to ensure that the stopper is not too loose or too tight. The
graduation of the shims is 0.1mm.
(See also Fig. 209, page - 232.)
15.1 Preparatory work
O Start with the installation of the stoppers in placement area 1.
O Change over to the SITEST.
O Select "Conveyor" and "Conveyor width".
O Adjust the conveyor width to maximum.
O Undock the component trolley onto locations 1 and 3.
O Shut down the operating system and switch off the placement machine at the main switch.
O Remove all the lifting table plates.
O Remove the cover of the conversion board.
O Detach the metal cover of the cable duct.
O Remove the cable duct covers.

Assembly Instructions PCB Stopper Single Conveyor SIPLACE S-27HM / HS-60 / D4 / D3 / HF- / X-Series
Edition 06/2007
198
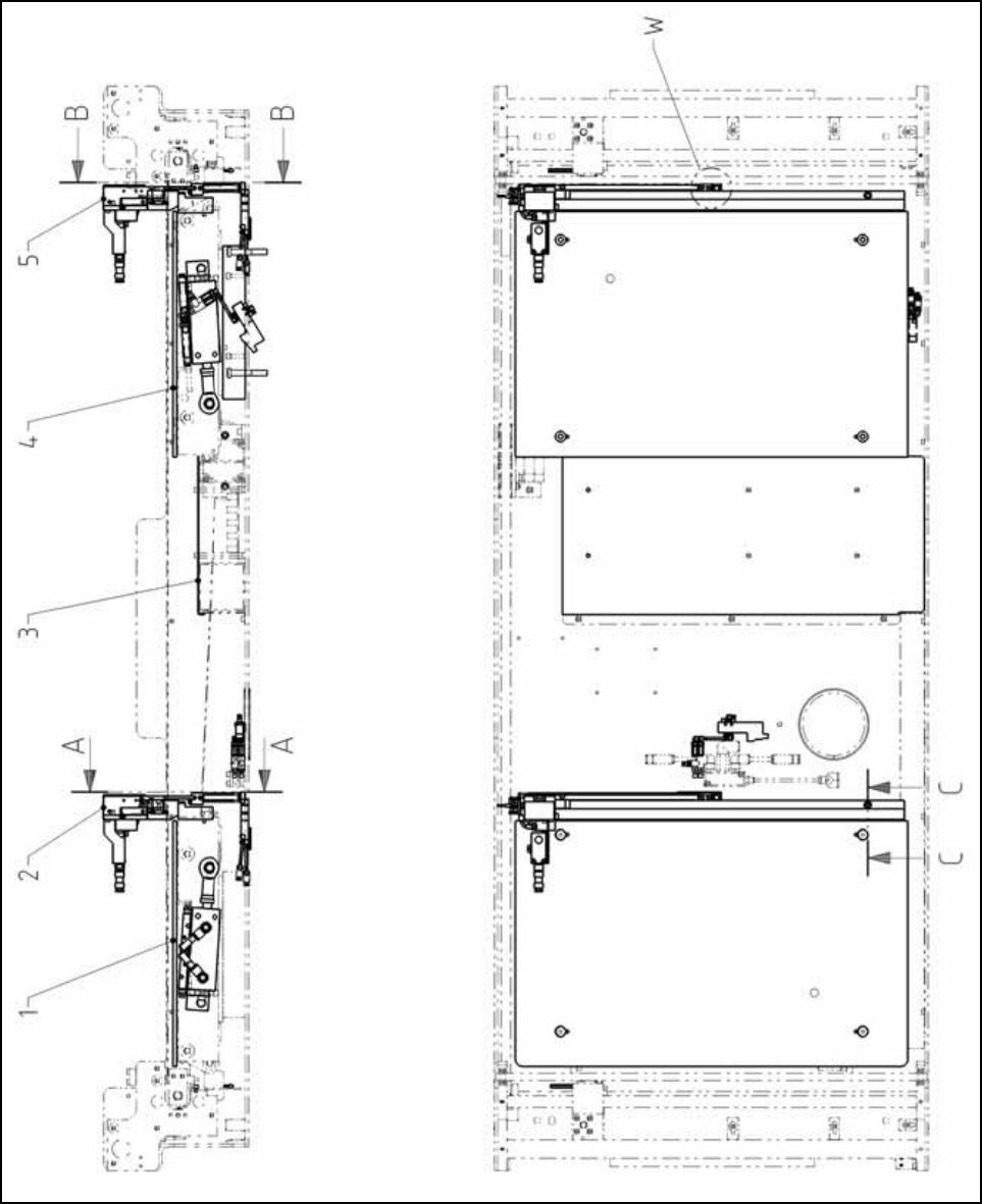
15.1.1 Gesamtübersicht
Fig. 177 Overview HF-/X-Series/D3 (Fig. 1) Single conveyor

Assembly Instructions PCB Stopper Single Conveyor SIPLACE S-27HM / HS-60 / D4 / D3 / HF- / X-Series
Edition 06/2007
199
Fig. 178 Overview HF-/X-Series/D3 (Fig. 2) Single conveyor
Legend (Figs. 1 and 2) Single conveyor 15
1 Lifting table plate Option PCB Stopper
SC
8 Energy chain E04
2 Basic unit stopper HS/HF PA1 9 Guide strip HF
3 Basic unit stopper HS/HF PA2 10 ISO 4762 - M5 x 20-8.8, chem. nickel
plat.
4 Holder for guide strip PA1 HF 11 ISO 4762 - M4 x 40-8.8, chem. nickel
plat.
5 Holder for guide strip PA2 HF 12 DIN EN ISO 7380-M3 x 6-A2
6 Distance block for energy chain, compl. 13 Energy chain holder
7 Distance block for energy chain, compl. 14 ISO 4032 - M3-8