88226624-01-07 - Flex Neo LPiX Tech Spec - 第14页
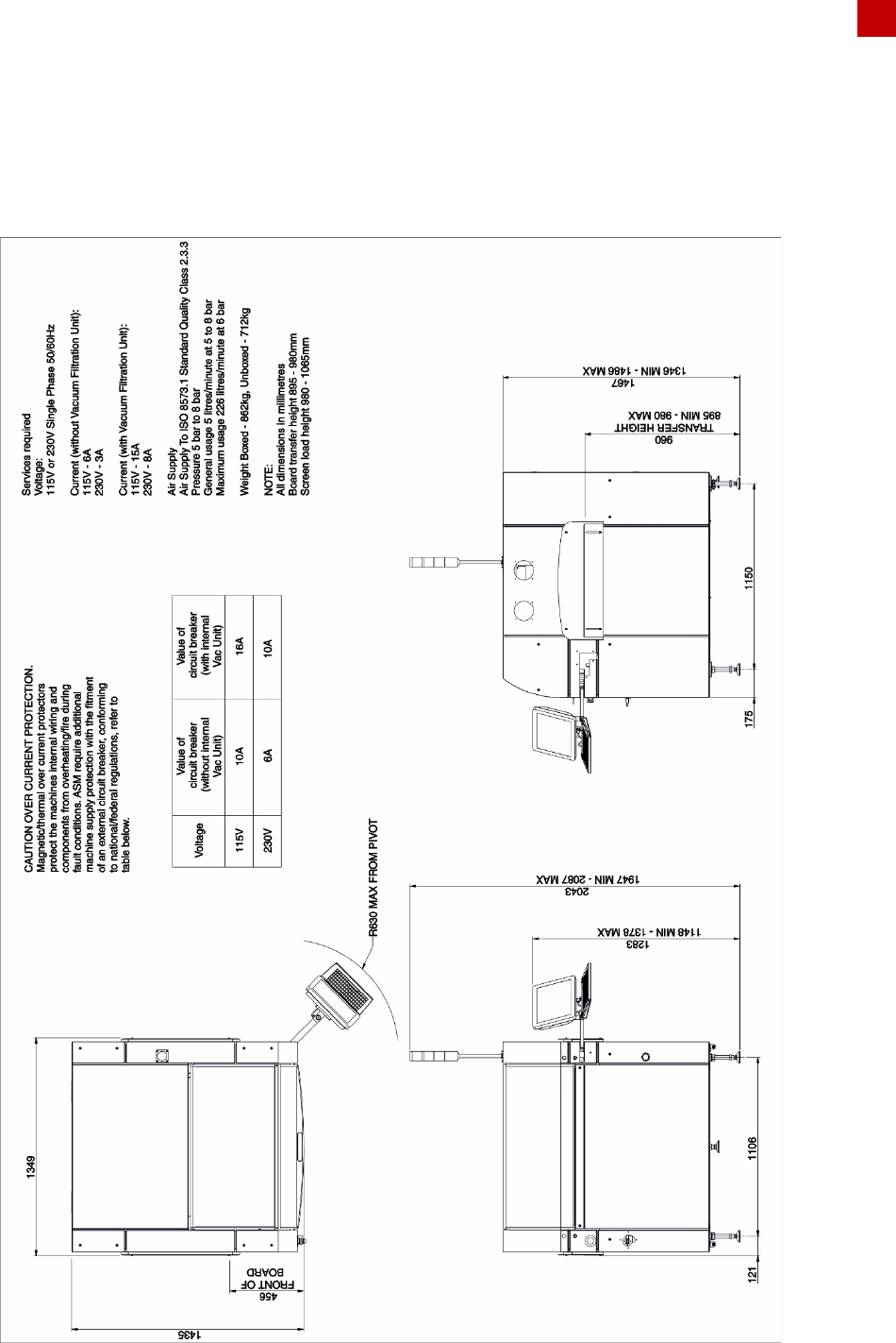
14 DEK FLEX NeoHorizon LP iX Machine Foot print Bac k to Back

13
DEK FLEX NeoHorizon LPiX
Machine Footprint

14
DEK FLEX NeoHorizon LPiX
Machine Footprint Back to Back

15
Disclaimer
In line with ASMAS Group Policy of continual improvement, this specification is periodically up-
issued to reflect the latest product enhancements and it is provided with an issue state, which
is displayed at the bottom of the rear page.
Please note the following:
• This information is provided in good faith; it is believed to be accurate and sufficient for the
intended purpose
• This information remains the property of ASMAS Group
• ASMAS Group are not liable for the consequences of applying this information
• ASMAS Group are free to alter this information without notice
The legal form of this notice can be read at http://www.asm-smt.com/disclaimer