KE-1070_KE-1080-Rev03 - 第64页
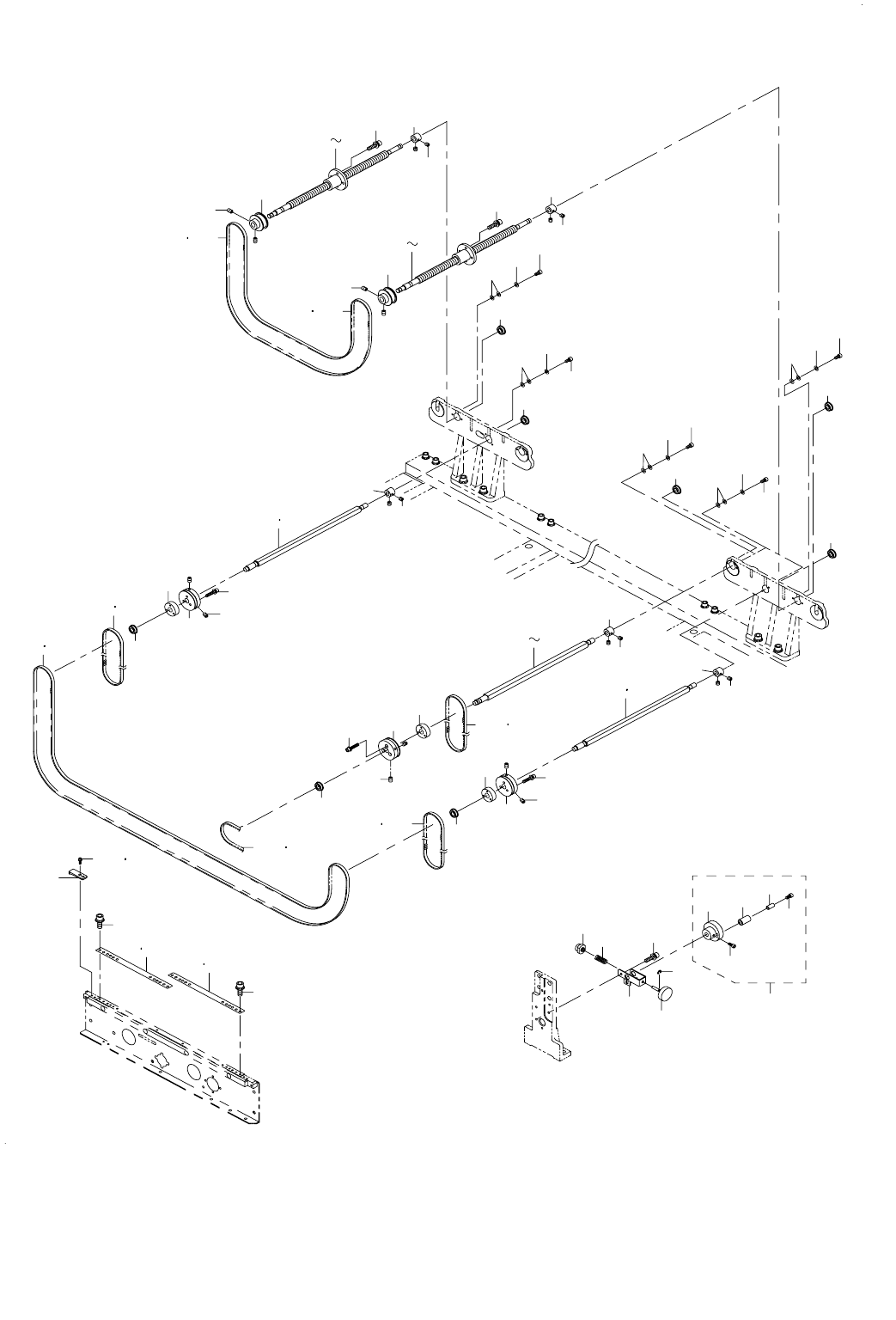
- 59 - 30. PWB CONVEYOR COMPONENTS (5) 基板搬送関係 (5) 3 21 20 9 21 9 22 22 25 23 24 14 16 3 14 16 17 19 22 25 23 48 49 27 28 7 5 26 26 8 20 10 8 51 54 6 11 24 12 13 11 12 13 10 4 21 20 22 25 23 24 26 51 54 30 52 31 33 37 38 …

- 58 -
NOTE( 注記 ) #01....FOR 1070L,1070CL,1080L 1070 L,1070 CL,1080 L 用
#02....FOR 1070L,1070CL,1080L,1080E 1070 L,1070 CL,1080 L,1080 E 用
#03....FOR 1080E 1080 E 用
*INSTALLATION PSITION AND DIRECTION VARY IF THE PWB TRANSFER
REFERENCE IS DIFFERENT.
基板搬送基準が異なると取付位置、方向が変わります。
REF.NO NOTE PART NO D E S C R I P T I O N
品 名
Qty
1 400-00843 RAIL PLATE RR
レールプレート RR
1
2
#01
400-01061 RAIL PLATE RR(L)
レールプレート RR(L)
1
3
#03
400-01850 RAIL PLATE RR(E)
レールプレート RR(E)
1
4 SL-6031492-TN SCREW M3 L=14
座金付き六角穴ボルト M 3 L =14
4
5 SL-6041092-TN SCREW
座金付き六角穴ボルト
2
6 SB-8160001-00 BEARING
ころがり軸受
1
7
#01
SB-8160001-00 BEARING
ころがり軸受
2
8
#03
SB-8200001-00 BEARING
ころがり軸受
2
9 400-00841 SUPPORT PLATE S
サポートプレート S
1
10
#01
400-01069 SUPPORT PLATE RR(L)
サポートプレート RR(L)
1
11
#03
400-01852 SUPPORT PLATE RR(E)
サポートプレート RR(E)
1
12 E2111-715-0A0 CONVEYOR PULLEY ASM.
搬送プ−リ(組)
3
13 WP-0430800-SC WASHER M4
平座金小形丸 M 4
3
14
#02
WP-0430800-SC WASHER M4
平座金小形丸 M 4
6
15 SM-4040855-SC SCREW
なべ小ねじ M 4 L =8
2
16 SM-4042501-SC SCREW M4X0.7 L=25
なべ小ねじ M 4 X 0.7 L =25
1
17 WP-0430801-SC WASHER 4.3X9X0.8
平座金 4.3 X 9 X 0.8
1
18 WS-0410002-KN SPRING WASHER
ばね座金 M 4
1
19 NM-6040001-SC NUT M4
六角ナット M 4
1
20 E2089-721-0A0 CONVEYOR PULLEY B ASM.
搬送プ−リ B 組
4
21 E2055-721-000 PULLEY SPACER
プーリスペーサ
4
22 SM-4042501-SC SCREW M4X0.7 L=25
なべ小ねじ M 4 X 0.7 L =25
4
23 WP-0430801-SC WASHER 4.3X9X0.8
平座金 4.3 X 9 X 0.8
4
24 WS-0410002-KN SPRING WASHER
ばね座金 M 4
4
25 NM-6040001-SC NUT M4
六角ナット M 4
4
26 SM-6041002-TN BOLT
六角穴ボルト
4
27
#01
SM-6041002-TN BOLT
六角穴ボルト
8
28
#03
SM-6051002-TN BOLT
六角穴ボルト
8
29 E2160-721-000 PULLEY FLANGE
プーリフランジ
1
30 SL-6030892-TN SCREW M3 L=8
座金付き六角穴ボルト M 3 L =8
3
31 SL-6030892-TN SCREW M3 L=8
座金付き六角穴ボルト M 3 L =8
6
32 E2111-715-0A0 CONVEYOR PULLEY ASM.
搬送プ−リ(組)
3
33 WP-0430800-SC WASHER M4
平座金小形丸 M 4
3
34 E3931-750-000 PULLEY WASHER
プーリ スラスト ワッシャ
4
35 E2160-721-000 PULLEY FLANGE
プーリフランジ
2
36 400-00983 RAIL STAND RR
レールスタンド RR
1
37
#01
400-01066 RAIL STAND RR(L)
レールスタンド RR(L)
1
38
#03
E4024-725-000 RAIL STAND RR(E)
レールスタンド RR(E)
1
39 E2009-725-000 GUIDE SHAFT
ガイドシャフト
2
40
#01
E2209-725-000 GUIDE SHAFT
ガイドシャフト
4
41
#03
E4009-725-000 GUID SHAFT(E)
ガイドシャフト(E)
4
42 SL-6051292-TN BOLT
座金付き六角穴ボルト
2
43
#02
SL-6051292-TN BOLT
座金付き六角穴ボルト
4
44 SL-6052042-TN SCREW
座金付き六角穴ボルト
2
45
#02
SL-6052042-TN SCREW
座金付き六角穴ボルト
4
46 SL-6052092-TN SCREW
座金付き六角穴ボルト
2
47 SL-6052092-TN SCREW
座金付き六角穴ボルト
2
48 400-00982 RAIL STAND RL
レールスタンド RL
1
49
#01
400-01065 RAIL STAND RL(L)
レールスタンド RL(L)
1
50
#03
E4023-725-000 RAIL STAND RL
レールスタンド RL(E)
1
51 E4274-729-000 SUPPORT PLATE C(L)
サポートプレート C(L)
1
52
#02
E4074-725-000 SUPPORT PLATE C(E)
サポートプレート C(E)
1
53 400-00828 CONVEYOR RAIL
コンベアレール
1
54
#03
400-01839 CONVEYOR RAIL(E)
コンベアレール(E)
1
55 SM-4040855-SC SCREW
なべ小ねじ M 4 L =8
3
56
#02
SM-4040855-SC SCREW
なべ小ねじ M 4 L =8
6
57 400-00840 DRIVE PULLEY R
ドライブプーリ R
1
58 WP-0501046-SC WASHER 5 X 14 X 1
平座金 0.5 X 14 X 1
4
59
#02
WP-0501046-SC WASHER 5 X 14 X 1
平座金 0.5 X 14 X 1
8
60 SL-6042092-TN SCREW M4 L=20
座金付き六角穴ボルト
4

- 59 -
30.PWB CONVEYOR COMPONENTS (5)
基板搬送関係 (5)
3
21
20
9
21
9
22
22
25
23
24
14
16
3
14
16
17
19
22
25
23
48
49
27
28
7
5
26
26
8
20
10
8
51
54
6
11
24
12
13
11
12
13
10
4
21
20
22
25
23
24
26
51
54
30
52
31
33
37
38
34
42
44
40
41
2
1
53
50
45
46
29
32
29
32
47
55
22
31
52
30
22
31
52
30
6
7
5
4
35
36
39
43
1
53
2

- 60 -
NOTE( 注記 ) #01....FOR 1070L,1070CL,1080L 1070 L,1070 CL,1080 L 用
#02....FOR 1070L,1070CL,1080L,1080E 1070 L,1070 CL,1080 L,1080 E 用
#03....FOR 1080E 1080 E 用
*INSTALLATION PSITION AND DIRECTION VARY IF THE PWB TRANSFER
REFERENCE IS DIFFERENT.
基板搬送基準が異なると取付位置、方向が変わります。
REF.NO NOTE PART NO D E S C R I P T I O N
品 名
Qty
1 400-00861 PWB GUIDE U
PWB ガイド U
8
2 SL-6031092-TN SCREW
座金付き六角穴ボルト
16
3 SL-6041692-TN SCREW M4 L=16
座金付き六角穴ボルト M 4 L =16
8
4 SB-1080002-00 SIDE BEARING
サイドベアリング
4
5 WP-0320500-SF WASHER 3.2X7X0.5
平座金小形丸 M 3
8
6 WP-0330516-SC WASHER 3.3X8X0.5
平座金 3.3 X 8 X 0.5
4
7 SM-6030602-TN SCREW M3X6
六角穴ボルト M 3 X 6
4
8 E2141-721-000 STOPPER COLLAR
ストッパカラー
2
9 SM-8040402-TP SCREW M4X0.7 L=4
止めねじ M 4 X 0.7 L =4
4
10 E2156-721-000 PULLEY A
プーリ A
2
11 SM-8040602-TP SCREW M4X0.7 L=6
止めねじ
4
12 E2015-725-000 TIMING BELT
タイミングベルト
1
13
#02
E2146-721-000 TIMING BELT
タイミングベルト
1
14 400-15577 SCREW SHAFT
スクリュウシャフト
2
15
#01
400-15578 SCREW SHAFT(L)
スクリュシャフト(L)
2
16
#03
400-01855 SCREW SHAFT(E)
スクリュシャフト(E)
2
17 E2004-725-000 DRIVE SHAFT C
ドライブシャフト C
1
18
#01
E2152-721-000 DRIVE SHAFT C
ドライブシャフト C
3
19
#03
E4004-725-000 DRIVE SHAFT C(E)
ドライブシャフト C(E)
1
20 E2141-721-000 STOPPER COLLAR
ストッパカラー
3
21 SM-8040402-TP SCREW M4X0.7 L=4
止めねじ M 4 X 0.7 L =4
6
22 SB-1080002-00 SIDE BEARING
サイドベアリング
6
23 400-00850 DRIVE PULLEY F
ドライブプーリ F
3
24 SM-8040602-TP SCREW M4X0.7 L=6
止めねじ
6
25 400-00851 MOTOR_PULLEY_B
モータプーリ B
3
26 SL-6031642-TN SCREW
座金付き六角穴ボルト
9
27 E2155-721-000 DRIVE BELT C
ドライブベルト C
1
28
#01
400-01005 DRIVE BELT C(L)
ドライブベルト C(L)
1
29 400-00852 DRIVE BELT S
ドライブベルト S
2
30 WP-0320500-SF WASHER 3.2X7X0.5
平座金小形丸 M 3
12
31 WP-0330516-SC WASHER 3.3X8X0.5
平座金 3.3 X 8 X 0.5
6
32
#01
400-46033 DRIVE BELT S(6)
ドライブベルト S(6)
2
33 400-00854 ADJUST HAND WHEEL ASM.
アジャストハンドル組
1
34 E2018-715-000 PULLEY SLEEVE
プーリ スリーブ
(1)
35 SM-6052002-TN BOLT
六角穴ボルト
(1)
36 SM-6041002-TN BOLT
六角穴ボルト
(1)
37 400-00855 ADJUST HAND WHEEL
アジャストハンドル
(1)
38 400-00856 ADJUST HAND WHEEL COLLAR
アジャストハンドルカラー
(1)
39 400-00859 STOPER COLLAR
ストッパカラー
1
40 400-00977 STOPER SPRING
ストッパスプリング
1
41 RE-0320000-K0 E-RING 3.2
E 形止め輪 3.2
1
42 400-00857 ADJUST STOPER BRAKET
アジャストストッパベース
1
43 SL-6041292-TN SCREW
座金付き六角穴ボルト
2
44 400-00858 ADJUST STOPER
アジャストストッパ
1
45 SL-4031091-SC SCREW M3 X 10
なべ小ねじセムス
8
46 SL-6031092-TN SCREW
座金付き六角穴ボルト
16
47 400-00863 CONVEYOR BELT S
コンベアベルト S
4
48 400-00864 CONVEYOR BELT C
コンベアベルト C
2
49
#02
400-01070 CONVEYOR BELT C(L)
コンベアベルト C(L)
2
50 E2046-725-000 PWB INNER
PWB インナ
12
51 E2011-725-000 DRIVE SHAFT
ドライブシャフト S
2
52 SM-6030602-TN SCREW M3X6
六角穴ボルト M 3 X 6
6
53
#03
400-01858 PWB GUIDE U(E)
PWB ガイド U(E)
8
54
#03
E4051-725-000 DRIVE SHAFT S(E)
ドライブシャフト S(E)
2
55
#03
400-01860 CONVEYOR BELT S(E)
コンベアベルト S(E)
4