P-187-001 - 第210页
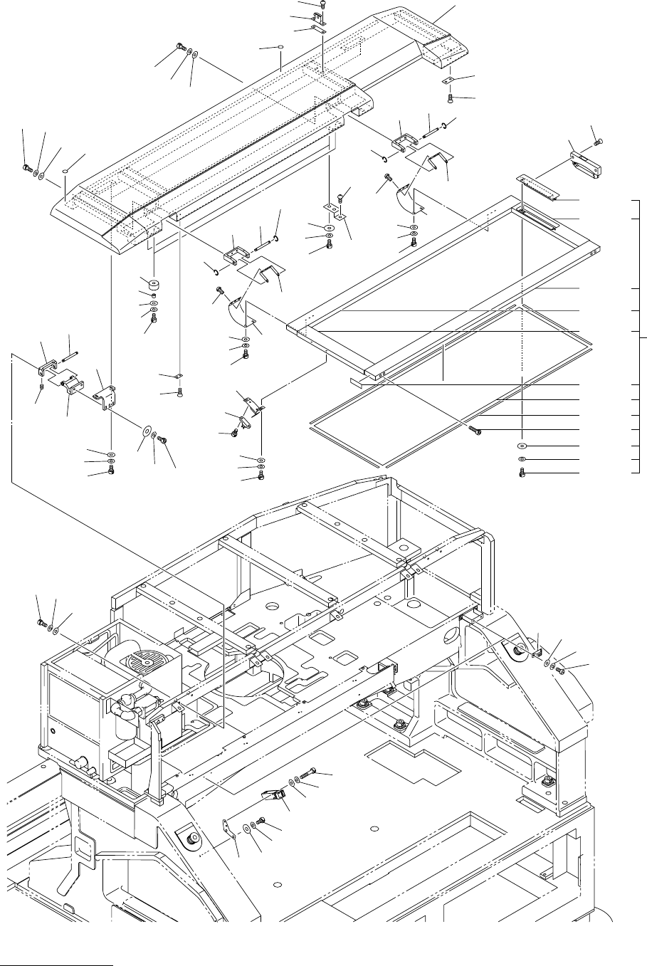
MODEL TCM-X300 0306-001 208 ࠞࡃㇱ COVER SECTION Fig. MA-8 ೨㕙ోᚺ Front Safety Door 705 749 748 747 733 740 741 721 731 742 743 744 742 731 723 705 746 706 707 707 715 71 1 738 738 725 739 740 734 718 717 741 740 705 746 72…

MODEL TCM-X300
0306-001
Key No. PART No. PART NAME Q’ty REMARKS
NOTE
207
MA-7
601 630 119 6718 BRACKET 2 812MA-010-601
602 630 050 7492 BRACKET 2 812MA-010-602
603 630 030 0031 MECH PARTS(BRACKET) 8 812MA-010-603
604 630 097 4591 COVER(BC) 1 812MA-010-604
605 630 120 2303 COVER(BT) 1 812MA-010-605
606 630 119 6725 BRACKET 1 812MA-010-606
607 630 038 9698 COLLAR 2 812MA-010-607
608 630 028 9909 MECH PARTS(URETHANES) 2 812MA-010-608
609 630 119 6732 BRACKET 1 812MA-010-609
610 630 058 2468 BRACKET 1 812MA-010-610
611 630 117 0879 BRACKET 1 812MA-010-611
612 630 000 7893 BOLT,HEX-SCT 4 812MA-010-612
613 630 000 7916 BOLT,HEX-SCT 2 812MA-010-613
614 630 000 7763 BOLT,HEX-SCT 17 812MA-010-614
615 630 000 7756 BOLT,HEX-SCT 22 812MA-010-615
616 411 113 9109 SCR TRS 5X10 7 812MA-010-616
642 411 141 6705 WASHER SPR 5 39 812MA-010-642
643 411 141 4107 WASHER V 5X10X1 24 812MA-010-643
644 630 001 0220 WASHER 15 812MA-010-644
647 411 141 3001 WASHER SPR 6 6 812MA-010-647
648 411 141 4305 WASHER V 6X12.5X1.6 2 812MA-010-648
649 630 001 0237 WASHER 4 812MA-010-649

MODEL TCM-X300
0306-001
208
ࠞࡃㇱ COVER SECTION
Fig. MA-8 ೨㕙ోᚺ Front Safety Door
705
749
748
747
733
740
741
721
731
742
743
744
742
731
723
705
746
706
707
707
715
711
738
738
725
739
740
734
718
717
741
740
705
746
727
743
742
735
743
742
735
734
726
728
745
738
732
724
722
706
707
715
711
707
730
742
743
730
742
743
716
729
742
735
736
720
714
743
742
730
714
743
742
730
704
701
704
737
720
719
702
702-07
702-01
702-04
702-05
702-02
702-06
702-03
702-52
702-54
702-53
702-51
702-08

MODEL TCM-X300
0306-001
Key No. PART No. PART NAME Q’ty REMARKS
NOTE
209
MA-8
701 630 116 0283 COVER 1 812MA-010-701
702 630 118 7228 MECH PARTS(COVER) 1 812MA-010-702
702 -01 630 119 1928 MECH PARTS(FRAME) 1
702 -02 630 119 1935 MECH PARTS(FRAME) 1
702 -03 630 119 1942 MECH PARTS(FRAME) 1
702 -04 630 119 1959 MECH PARTS(FRAME) 1
702 -05 630 119 1973 COVER 1
702 -06 630 119 2147 MECH PARTS(CAP) 4
702 -07 630 118 0243 BRACKET 1
702 -08 630 119 2130 MECH PARTS(HOLDER) 1
702 -51 630 000 7763 BOLT,HEX-SCT 2
702 -52 630 065 2499 BOLT,HEX-SCT 8
702 -53 411 008 2109 WASHER SPR 5 2
702 -54 630 029 1391 WASHER 2
704 630 013 8986 MECH PARTS(RUBBER CUSHION 2 812MA-010-704
705 630 065 2376 MECH PARTS(MAGNET CATCHE) 2 812MA-010-705
706 630 115 4206 PIN,HINGE 2 812MA-010-706
707 630 008 1985 RING 4 812MA-010-707
711 630 118 8966 SUPPORT 2 812MA-010-711
714 630 119 8668 SUPPORT 2 812MA-010-714
715 630 118 8973 SUPPORT 2 812MA-010-715
716 630 038 9715 PIN,HINGE 2 812MA-010-716
717 630 089 3694 COLLAR 2 812MA-010-717
718 630 096 9344 MECH PARTS(URETHANES) 2 812MA-010-718
719 630 119 6770 PLATE 1 812MA-010-719
720 630 003 5032 HANDLE 1 812MA-010-720
721 630 120 4789 BRACKET 1 812MA-010-721
722 630 118 6849 BRACKET 1 812MA-010-722
723 630 120 2686 SWITCH,LIMIT 1 SQ8,21052 812MA-010-723
724 630 095 7914 PLATE(ACTUATOR) 1 812MA-010-724
725 630 119 6756 BRACKET 2 812MA-010-725
726 630 096 9023 SUPPORT 2 812MA-010-726
727 630 115 4411 SUPPORT 2 812MA-010-727
728 630 104 4507 HINGE 2 812MA-010-728
729 630 029 1391 WASHER 4 812MA-010-729
730 630 000 7763 BOLT,HEX-SCT 8 812MA-010-730
731 630 000 7756 BOLT,HEX-SCT 6 812MA-010-731
732 630 000 7732 BOLT,HEX-SCT 2 812MA-010-732
733 630 000 7695 BOLT,HEX-SCT 2 812MA-010-733
734 630 000 7626 BOLT,HEX-SCT 6 812MA-010-734
735 630 000 7763 BOLT,HEX-SCT 10 812MA-010-735
736 411 140 7406 SCR FLT 5X20 2 812MA-010-736
737 411 113 7501 SCR TRS 4X10 2 812MA-010-737
738 411 113 9109 SCR TRS 5X10 8 812MA-010-738
739 630 001 0213 WASHER 4 812MA-010-739
740 411 141 2905 WASHER SPR 4 8 812MA-010-740
741 411 141 4008 WASHER V 4X9X0.8 4 812MA-010-741
742 411 141 6705 WASHER SPR 5 26 812MA-010-742
743 411 141 4107 WASHER V 5X10X1 20 812MA-010-743
744 630 001 0220 WASHER 2 812MA-010-744