00197016-04_UM_X-Serie-S_DK - 第389页
Betjeningsvejledning SIPLACE X-serie 6 Stationsudvidelser Fra softwareversion 706.1 SP1 Udgave 10/2014 DK 6.8 Forbinde lsesstation til komponentvog n SIPLACE X-serie 389 6.8.4 Betjenings- og visningselementer 6 Fig. 6.8 …

6 Stationsudvidelser Betjeningsvejledning SIPLACE X-serie
6.8 Forbindelsesstation til komponentvogn SIPLACE X-serie Fra softwareversion 706.1 SP1 Udgave 10/2014 DK
388
6
6
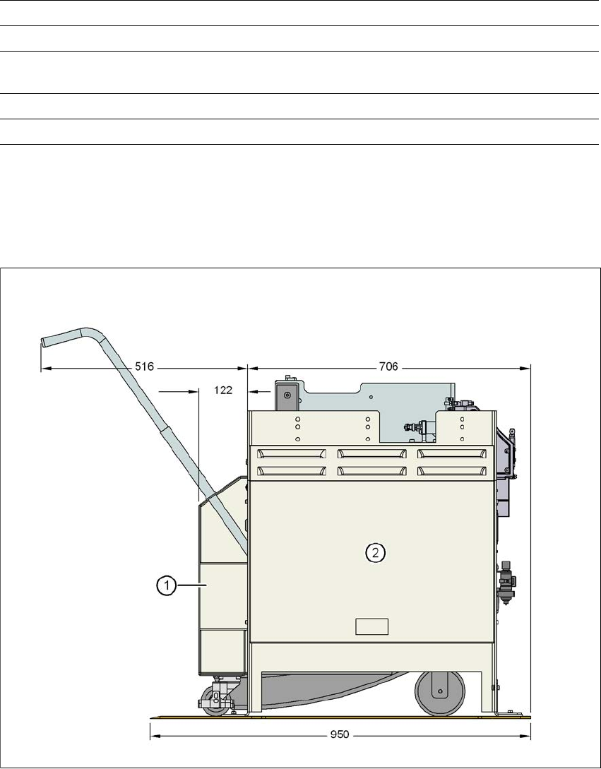
6.8.3 Dimensioner til forbindelsesstationen med tilkoblet komponentvogn
6
Fig. 6.8 - 3 Forbindelsesstationen med tilkoblet komponentvogn - mål i millimeter
(1) Komponentvogn
(2) Forbindelsesstation
Trykluftforbrug 50 Nl/min
*a
Tilslutningsspænding 88 - 264 V~
Nominel strøm 3,5 A (230 V~)
7 A (115 V~)
Nominel skineffekt 0,8 kW
Sikring 2 x 8 A
*)a Under atmosfæriske, normale betingelser ved 20°C og 1013 hPa

Betjeningsvejledning SIPLACE X-serie 6 Stationsudvidelser
Fra softwareversion 706.1 SP1 Udgave 10/2014 DK 6.8 Forbindelsesstation til komponentvogn SIPLACE X-serie
389
6.8.4 Betjenings- og visningselementer
6
Fig. 6.8 - 4 Forbindelsesstation - Betjenings- og visningselementer

6 Stationsudvidelser Betjeningsvejledning SIPLACE X-serie
6.8 Forbindelsesstation til komponentvogn SIPLACE X-serie Fra softwareversion 706.1 SP1 Udgave 10/2014 DK
390
Billedtekst til fig. 6.8 - 4
, side 389.
(1) Knap med kontrollampe til netforsyningen
(2) Knap til låsning og oplåsning af fødemodulerne på komponentvognen
(3) Horisontalspænder til fastgørelse af komponentbordet - arm i stilling "lukket"
(4) Mærkat med visning af afbryder S1 og S2 til CAN-bus-adressering
(5) Afbryder S1 og S2 til indstilling af CAN-bus-adresse
(6) Netafbryder
(7) Drejeknap til indstilling af driftstrykket
(8) Manometer til visning af driftstrykket