CM402-L Mechanical Parts 20070703 - 第280页
17-A 下流延長 コ ン ベア : 305 mm Downstream Extension Conveyor:305mm パー ツレイ アウト Kit No. キ ット 品番 Kit Name キ ット 名称 N610003227AA セクション No . PARTS LAYOUT Section No. - - S53 ( KN610003227AA-03-1 )

Ref
No.
Remarks
R
1
Q'ty
16-D
上流延長
コンベア
:
305
mm
Upstream Extension Conveyor:305mm
イラスト
No.
Part No.
品 名品番 数量
R
2
パーツリスト
Kit No.
キット
品番
Kit Name
キット名称
N610003226AA
Part Name
備 考
セクション
No
.
PARTS LIST
Section No.
R
3
COVER
1
1 N210006399AA
S
COVER
1
2 N210006400AA
S
COVER
1
3 N210006401AA
PLATE
1
4 N210028743AA
COVER
1
5 N210006402AA
S
COVER
1
6 N210009673AA
S
COVER
1
7 N210009675AA
S
BRACKET
1
8 N210009676AA
BRACKET
1
9 N210009677AA
S
NUT-PLATE
1
10 KXFB03UPA00
NUT-PLATE
1
11 N210004525AA
SCREW
16
12 N510018282AA
Cross recessed Truss head machine screw M4X8-4.8 A2J (Trivalent)
HINGE
2
13 KXF0DXYXA00 BP-19-1-2-B
RUBBER-CUSHION
2
14 KXF01E2AA00 C-30-CS-4
NUT
4
15 KXF0DX7PA00 SQN4-32-20
CAP
2
16 KXF0DLNAA01 CP-328-B-4-ivory(DA KXF0DLNAA01)
BOLT
2
17 N510017616AA
Hexagon socket Flat head bolt M4X12-10.9 A2J (Trivalent)
BOLT
8
18 N510017517AA
Hexagon socket button head screw M4X12-10.9 A2J (Trivalent)
SW(1000mm)
1
19 N610002227AA
S
PULL
1
20 KXF0DYFRA00 AP-291-3
S52
-
-
( KN610003226AA-03-4 )

17-A
下流延長
コンベア
:
305
mm
Downstream Extension Conveyor:305mm
パーツレイアウト
Kit No.
キット
品番
Kit Name
キット
名称
N610003227AA
セクション
No
.
PARTS LAYOUT
Section No.
-
-
S53
( KN610003227AA-03-1 )

Ref
No.
Remarks
R
1
Q'ty
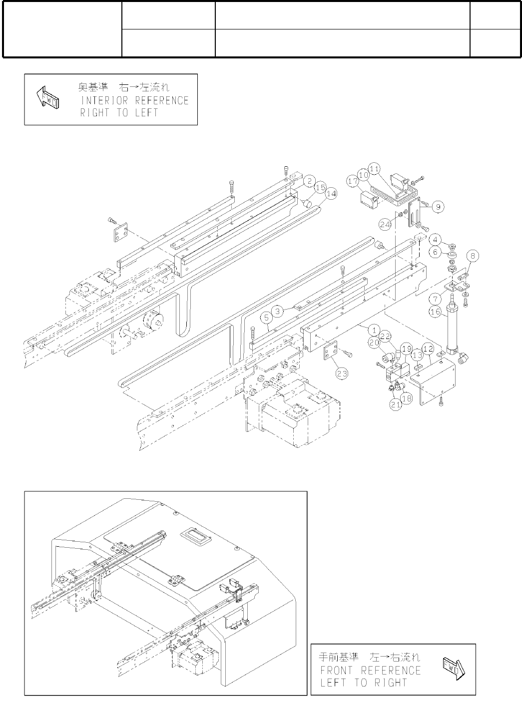
17-A
下流延長
コンベア
:
305
mm
Downstream Extension Conveyor:305mm
イラスト
No.
Part No.
品 名品番 数量
R
2
パーツリスト
Kit No.
キット
品番
Kit Name
キット名称
N610003227AA
Part Name
備 考
セクション
No
.
PARTS LIST
Section No.
R
3
FRAME
1
1 N210001589AC
FRAME
1
2 N210001590AC
GUIDE
2
3 N210001591AB
NUT
1
4 N210020696AA
BEAM
2
5 KXFB02KPB00
STOPPER
1
6 N210020697AA
BRACKET
1
7 KXFB02KWB00
NUT-PLATE
1
8 KXFB01JGA00
BRACKET
1
9 KXFB07SWA00
BRACKET
1
10 KXFB02RDA00
NUT-PLATE
1
11 KXFB02RMA00
BRACKET
1
12 KXFB02KUA00
NUT
2
13 KXFB02KVA00
BELT
2
14 N510004586AA XVT-952 8.5X1535E
PULLEY
2
15 N510010794AA MB054000
CYLINDER
1
16 KXF0DWWEA00 CJ2B16-35S
SENSOR
2
17 KXF0DWVSA00 HPB-D1(DA KXF0DWVSA00)
JOINT
2
18 KXF02BTAA00 KQL04-M5
VALVE
1
19 KXF0CVNAA00 VQD1121-5MO-M5
JOINT
1
20 KXF02C3AA00 KQL06-M5
PLUG
1
21 KXF02TGAA00 M-5P
SILENCER
1
22 KXF00WCAA00 AN120-M5
PLATE
2
23 N210024738AA
SPACER
2
24 KXF08UWAA00 CU-402
S54
-
-
( KN610003227AA-03-1 )