SM310 Introduction(Chi, Ver4).pdf - 第14页

Samsung Component Placer SM310 Intr oduction ii 󰏞󳋃󳕭 󰠸󱕃󱇽󰐁󲢓󳕐󲵊󰐁󲣉󰋣 󲢅󲱒󱍙󰏞󱍙󲚙󱘏 󳕎  󰐁󲢓󱍙󰆢󲵊󱍙󰐁 󳕎  󲖚󰆢󳕐󲳗 󰁺󰆢󰈮󱶇  󰖕󰨠󲢓󰏉󰀷󲶽 󱯉󰋋󳕐󰊂󱈊󰭥  …

100%1 / 104
󲛕
i
󲛕
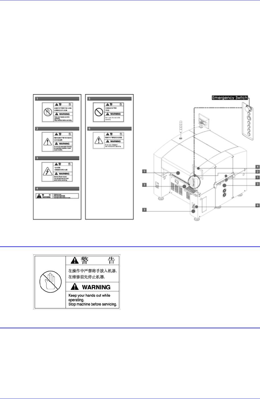
󳐳󲣷󲨂.󰋴󰧅󱚦󰓿󱘓󱇴󱍙󳞭󲳴󲨉󰼜󰐏(󱛅󲢓)󰠹󲢓󱍙
󱃛󰌄󲶽󲶽󰂥󲖚󱱃󰉮,󰸋󲖚󲨉󰂥󱍙 PCB

󰠹󲢓󳞭󲳴󲲥󲔡,󱏴󱝏󲲥󲔡󲖚󱱃󳞭󱈊󰑱󰏞󲢓󰆢󰠸
󱕃󰏞󱷒󲳵󰀴󰡐
󰆢󲱄󱯫󱛠󲖚󰐁󱧐󱮴󱕁󳌙󲖚󱱃󰉮󱍙󱯉
󱯉
󱇽󲢓
󱇽󰐁󲢓󳕐󳋚󲣐󰐁󲣉󰋣󱃛󲚸󲣉󰋣󱍙󰆢
󲣐󰐁󲣉󰋣󲣌󱡶󲮀󲲎󳍤󰋋󰒺󲢷󱉦󳋃󰶎
󰏿󰁺󲲜󰏞󰐁󲢓󲢂󱍙󱙖󰠷󰆢󰠹󲢓
󰐁󲲭󲲰󲔡󱚢󲖚󲲥󱇽󲢂󲢻󱮛󳕎󲣌󰐁 SMT Global
Training Center 󲢷
󱕃󲢓󰆢󱯉󰆢󳕐󰫚󰘯󲢓󰰱󱍙󳌾󱇴󰏉
󲣌󰸼
󰦽󳓚
(Safety Precaution) (iii
󳕊
)
󰑱󰆢󰏿󱮤󰋴󰧅󱚦󰓿󱘓󱍙󰈎󲳵󲢓󰥶󰏞
󰸼󰠹󱇽󲣉󰋣󱍙󰊎󰦪󱯉󲢓󰏞󱷒󲺢󰀴󲢓
󱮲󱇽󰏿󱮤󰋴󰧅󱚦󰓿󱘓󲡹󱍙󰊎󰦪󲢓󲲰󲔡󰈎󲳵󱯉
Samsung Techwin Co., Ltd.
Semi-conductor Systems business division
(
HTUhttp://www.samsung-smt.comUTH)
STS Co., Ltd.
The Representative C/S Company
DongBang Rental B/D 3F, 333-1, Sangdaewon1-dong, Joongwon-gu, Sungnam-shi,
Gyeonggi-do, Republic of Korea (Post Code: 462-807)
Tel: +82-31-743-6500, 6732~4
Fax: +82-31-743-6784
Samsung Component Placer SM310 Introduction
ii
󰏞󳋃󳕭
󰠸󱕃󱇽󰐁󲢓󳕐󲵊󰐁󲣉󰋣󲢅󲱒󱍙󰏞󱍙󲚙󱘏
󳕎
󰐁󲢓󱍙󰆢󲵊󱍙󰐁󳕎
󲖚󰆢󳕐󲳗󰁺󰆢󰈮󱶇
󰖕󰨠󲢓󰏉󰀷󲶽󱯉󰋋󳕐󰊂󱈊󰭥
󰐁󰥶󰏞󲢅󲱒󱍙󰏞󱯉󱍙󱈆󰐁󱍙󳕓󰏢󱍙
󰐺󲔡󲢺󱇽󳕓󰿁󱺿󱍙󰊂󰐺󲲰󲔡󲲮󱷒󲩌
󱍙󰈚
󰐁󲢓󱍙󲲥󲱁󲢍󲮀󱍙󲶽󲶽󱠞󰈓󲢓󲶽
󱍙󱿘󰋨
󱷒󲱐󰈚󱍙󱛠󱘏󰈮󲣘󰉉󰐏󰋋󲙖󱏉󰈓
󰆢󳐷󰑔󱘏󰈮󱎧󱍙 EMG 󳆃(󱧼󰠷󳆃)󱷒󳍤󰋋󰠷󰐏

󲙖󰺘󰣩󲺢󰤶󰒨󱍙󱂄󰐶󱇽󰐏
󰐁󲣉󰋣󲢅󲱒󱍙󱍙󰦽󳕎
󳌾
󰑱󱂅󰠹󰆢󱇴󰆢
󲺢󰈚󳕐󱕃󰆢
󲠻
󰑱󱂅󰠹󰆢󱇴󰆢
󲺢󰈚󳕐󱕃󰆢
󰦽
󰑱󱂅󰠹󰆢󲢓󱕁󲱄
󰉅󰁃󱔉󱇴󰆢󰈚󳕐󱕃
󰆢
󲛕
iii
󰦽󳓚(Safety Precaution)
󱘏󲢓󱍙󱱃󲨉󰏞󰓜󱡓󰸼󰓜󱡓󱍙󰆢󲢓
󰑱󰒥󰓜󱡓󰁞󰐺󰏞󰢖󰀴󰸼󳐷󱍙󰉅󰊅󰓜󱡓󲨉󲳗󱍙󱱃
󲡷󲨂󰊅󰓜󱡓󳋃󳕭󰈎󲢃󲣌󱴩󱧐󰐁󲃺󲶽󳊽󰐁
󱍙 C/S (STS)
󲢓󳐷
󲢓󳐷󲨉󰏞󰓜󱡓
0-1.
󲢓󳐷󱍙󰓜󱡓
󲲥󲔡󱙖󰠷󲚻󰅍.
󲨉󰏞󰠹󰓜󱡓󱍙󱱃󲢓󱱃󰏞󱛐󲶽󲲥󲔡
󰋋󰑱󲚸󱛐󲶽󱎫󲮀󰒥
󲶽󲢓󲶽󰌄󳐳󳌾󱍙
󰏢󰠷󲢓󲲥󲔡
󱯉󱃛󲢓󱭵󰠸󳇮󰆢󲙖
󰠷󲢓󲲥󲔡