SI-F130 Manual(EN)_jpg_ Rev1 - 第218页
LED Control Board Periphe ral Circuit CDF-10403-01 LED Control Board Peripheral Circuit SHEET 1/1 LED-C1 LED SEN1 1st CONNECTION PANEL 3 r d CO NNE C TI ON PANEL LED2 LED1 LED - 1 ( PWB ILLUMINATION ) LED - 2 ( ILLUMINAT…

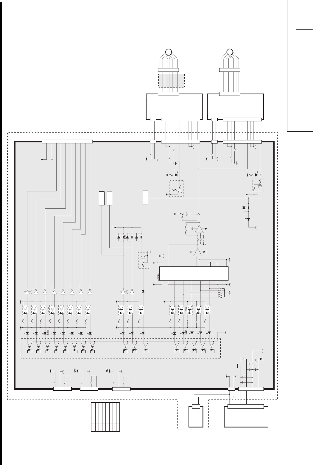
Conveyor Control Board Peripheral Circuit
CDF-10402-01
Conveyor Control Board Peripheral
Circuit
SHEET
2/2
CONVEYOR CONTROL BOARD
(
2/2
)
I/O UNIT
+
24V
+
5
V
Q6
DTA124
LED
13
LED
12
1
2
DRIVER UNIT
(Refer:CDF-10204)
DV-1
+24B1
G24B1
1
2
LED CONTROL BOARD
(Refer:CDF-10403)
TB1
+24B1
G24B1
1
2
4
3
1
2
TB1
TB2
+
+
+
+
5V
+24V
G24V
+12
V
C11 C6
C12
C9
C13
G
N
D
+
24V
TO CONVEYOR
CONTROL
BOARD (1/2) A
TO CONVEYOR
CONTROL
BOARD (1/2) B
Q5
DTA
12
4
6
3
4
5
-
12V
+5A
+12A
GND
-12A
FROM CONVEYOR
CONTROL
BOARD (1/2) C
Q7
1
2
3
4
7
11
10
9
2
1
12
6
3
4
8
5
1
2
CONVEYOR
CONTROL
MOTOR 5
GRY(U)
RED(V)
ORE(W)
PW
GND
U
V
W
1
2
3
4
5
6
7
8
CN3 CV5-3
CV5
CABLE
CONDUIT
CONVEYOR MOTOR
DRIVER 5
1
2
3
4
5
6
7
8
+24V
G24V
ALARM RESET
START/STOP
RUN/BREAKE
CW/CCW
S-OUT
ALARM
NC
VRH
GND
VRL
EXT/INT
VRM
CV5-1 CN1
CV5-2 CN2
7
11
10
9
2
6
12
5
3
4
8
1
1
2
CONVEYOR
CONTROL
MOTOR 6
GRY(U)
RED(V)
ORE(W)
PW
GND
U
V
W
1
2
3
4
5
6
7
8
CN3 CV6-3 CV6
CONVEYOR MOTOR
DRIVER 6
1
2
3
4
5
6
7
8
+24V
G24V
ALARM RESET
START/STOP
RUN/BREAKE
CW/CCW
S-OUT
VRH
NC
VRM
GND
VRL
EXT/INT
ALARM
CV6-1 CN1
CV6-2 CN2
1
2
1
2
3
4
5
6
8
9
7
10
12
11
G5V
G5V
CN14 CC-14
CN15 CC-15
+24V
G24V
CR13
CR10
CR11
1
2
3
4
5
8
9
11
7
10
12
6
1
2
+2
4V
G5V
G5V
CN16 CC-16
CN17 CC-17
+24V
G24V
CR13
CR10
CR11
+
5V
G
24
V
LED1
0
D95
C
R
7
S
ERIAL DI
O
U
1
3
LD17
LD1
8
LD1
9
LD2
0
G12VG5V
G5V
P
C
2
0
P
C
2
1
P
C
2
3
+
5V
+12V
+5
V
+
24V
+
5V
P
C
1
7
P
C
1
8
P
C
1
9
LD22
LD2
3
LD
2
4
P
C
2
4
SW6
3
1
+5V
G5V
+
12V
-
12V
-
+
+12
V
-
12V
-
+
G
12
V
V
S
RFB
OUT1
OUT2
NC
NC
GND
VREF
BIT1
BIT2
BIT3
BIT4
BIT5
BIT6
BIT7
BIT8
U8
14
1
2
16
12
1
3
3
1
5
4
5
6
7
8
9
10
11
+
24V
G
24
V
U5G
U5H
C
R1
0
C
R1
1
C
R1
2
D
93
D
92
G24V
LD2
5
LD2
6
+
5V
+2
4V
P
C
2
5
P
C
2
6
P
C
2
7
+2
4V
G
24
V
U
1
5A
U
1
5B
U
1
5C
LD2
8
LD2
9
LD
30
P
C
2
9
PC3
0
U
1
5D
U
1
5E
U
1
5
F
LD
31
LD
32
P
C31
P
C32
U
1
5G
U
1
5H
1
2
3
4
5
6
7
8
9
10
+24V
G24V
CN19
NC
D9
4
+
24V
G
24
V
CR3
CR3
CN4
1
2
3
4
G
24
V
CR6
CR6
CN5
1
2
3
4
G
24
V
CR12
CR12
CN18
M
M
A 1-829-442
REF CABLE PARTS NO.
B 1-829-711-2
C
1-829-556-2
D 1-829-498-1
E 1-824-716-2
F 1-829-557-2
G 1-824-715-3
A
B
C
D
E
F
G

LED Control Board Peripheral Circuit
CDF-10403-01
LED Control Board Peripheral Circuit
SHEET
1/1
LED-C1
LED
SEN1
1st CONNECTION
PANEL
3
r
d
CO
NNE
C
TI
ON
PANEL
LED2
LED1
LED
-
1
(
PWB ILLUMINATION
)
LED
-
2
(
ILLUMINATION GROUP UNIT
)
X FLAT
RBT CABLE
Y CABLE
CONDUIT
CONVEYOR CONTROL BOARD
(Refer:CDF-10402)
1
2
CN2 CC-2
1
2
LC-1 CN1 (IN)
LC-2 CN2 (OUT)
1
2
+24V
G24V
CR2
CR2
CN10
+24V
G24V
CR3
CR3
CN11
+24V
G24V
CR4
CR4
CN12
+24V
G24V
CR5
CR5
CN13
(NC)
(NC)
(NC)
(NC)
1
2
1
2
1
2
1
2
CN4 LC-4
CN6 LC-6
CN8 LC-8
CN17 LC-17
FIX
1
2
3
4
5
6
7
8
9
1
2
3
4
5
6
7
8
9
1
2
1
2
1
2
1
2
3
4
1
2
CN3 LC-3
CN9 LC-9
CN15 LC-15
CN5 LC-5
CN7 LC-7
1
2
3
4
5
6
7
8
9
1
2
3
4
5
6
7
8
1
2
3
4
5
6
7
8
9
1
2
3
4
5
6
1
2
3
4
5
6
1
2
S
ERIAL DI
O
OUT
LED CONTROL BOARD
(
I/O UNIT
)
+24V
G24V
CR1
CR1
+24V
TP1
HK-3-S-T
G24V
D
5
REF
VOUTA
VOUTB
+5V
IC30
LTC1661CMS8
4
8
5
+
5V
VCC
6
SCK
DIN
CS/LD
2
3
1
GND
+24V
O
FFB
4
+
24V
4
C
R
5
G
24
V
REF
VOUTA
VOUTB
+5V
IC33
LTC1661CMS8
4
8
5
+
5V
VCC
6
SCK
DIN
CS/LD
2
3
1
GND
REF
VOUTA
VOUTB
+5V
IC26
LTC1661CMS8
4
8
5
+
5V
VCC
6
SCK
DIN
CS/LD
2
3
1
GND
REF
VOUTA
VOUTB
+5V
IC20
LTC1661CMS8
4
8
5
+
5V
VCC
6
SCK
DIN
CS/LD
2
3
1
GND
SAME CIRCUIT AS ABOVE
FRAMED WITH
SAME CIRCUIT AS ABOVE
FRAMED WITH
SAME CIRCUIT AS ABOVE
FRAMED WITH
REF
VOUTA
VOUTB
+5V
IC32
LTC1661CMS8
4
8
5
+5V
VCC
6
SCK
DIN
CS/LD
2
3
1
GND
SAME CIRCUIT AS ABOVE
FRAMED WITH
REF
VOUTA
VOUTB
+5V
IC21
LTC1661CMS8
4
8
5
+5V
VCC
6
SCK
DIN
CS/LD
2
3
1
GND
SAME CIRCUIT AS ABOVE
FRAMED WITH
REF
VOUTA
VOUTB
+5V
IC24
LTC1661CMS8
4
8
5
+5V
VCC
6
SCK
DIN
CS/LD
2
3
1
GND
SAME CIRCUIT AS ABOVE
FRAMED WITH
REF
VOUTA
VOUTB
+5V
IC27
LTC1661CMS8
4
8
5
+5V
VCC
6
SCK
DIN
CS/LD
2
3
1
GND
SAME CIRCUIT AS ABOVE
FRAMED WITH
+12
V
-12
V
+
-
+
-
A 1- -
REF CABLE PARTS NO.
B 1- -
C
D
1-791-398
E
1-791-344
F
1-829-493
G
1-829-494
H
1-791-480
1-757-146
A
B
C
TB1TB1
1
2
TB2
1
2
3
4
GND
-12A
+12A
+5A
+24B1
G24B1
1
2
DGEF
EF
EF
EF
EF
H
+24V
G
24
V
SD-OP1
1
2
3
TO
SERIAL DIO
BOARD
4
5
3
6
1
2
DRIVER UNIT
(Refer:CDF-10204)
DV-1

Preceding / Following Device I/O Signal Circuit
CDF-10404-01
Preceding / Following Device I/O
Signal Circuit
SHEET
1/1
1
2
3
4
5
1
2
3
4
5
1
2
3
4
8
R-I/FN R-I/FN
R-I/F
206043-1(AMP)
PWB FLOW DIRECTION LEFT TO RIGHT
RIGHT MACHINE
INTERNAL CIRCUIT
1
2
3
4
5
1
2
3
4
5
1
2
3
4
8
L-I/FN L-I/FN
L-I/F
206043-1(AMP)
PWB FLOW DIRECTION LEFT TO RIGHT
LEFT MACHINE
INTERNAL CIRCUIT
RIGHT MACHINE
INTERNAL CIRCUIT
R-I/F
206043-1(AMP)
R-I/FN
1
2
3
4
5
1
2
3
4
8
1
2
3
4
5
L-I/FN
1
2
3
4
8
L-I/F
206043-1(AMP)
LEFT MACHINE
INTERNAL CIRCUIT
+24V
+24V
+24V
G24V G24V
PH1
PH5
PH2
PH6
+24V
G24V G24V
+24V
+24V
+24V
+24V
G24V G24V
PH7
PH3
PH8
PH4
G24V G24V
1
2
3
4
5
6
7
8
CN30 EL-30
1
2
3
4
5
6
7
8
CN29 EL-29
I/O UNIT
EMG I/L BOARD
(Refer:CDF-10401)
SERIAL DIO
D1015 (OUT)
RIGHT M/C I/F OUTPUT1
E42 (IN)
RIGHT M/C I/F INPUT1
D1016 (OUT)
RIGHT M/C I/F OUTPUT2
E43 (IN)
RIGHT M/C I/F INPUT2
D1017 (OUT)
LEFT M/C I/F OUTPUT1
E44 (IN)
LEFT M/C I/F INPUT1
D1018 (OUT)
LEFT M/C I/F OUTPUT2
EE45 (IN)
LEFT M/C I/F INPUT2
EE
E
E
A 1-791-323
REF
CABLE PARTS NO.
B
1-791-324
C
D
1-791-325
E
1-791-326
F
1-791-327
1-791-328
AB
DE
CB
FE