SI-F130 Manual(EN)_jpg_ Rev1 - 第224页
Y -Axis Servo Driver Peripheral Circuit CDF-10504-01 Y -Axis Servo Driver Peripheral Circuit SHEET 1/1 CP5 MC1 PS1 L N FG + - 3 4 6 7 8 9 2 3 24 1 2 3 4 5 6 7 8 ALM + ALM - + 24V IN P- OT N- OT / DE C /SO2 + /SO 2 - L1C …

X-Axis Servo Driver Peripheral Circuit
CDF-10503-01
X-Axis Servo Driver Peripheral
Circuit
SHEET
1/1
CP5
MC1
PS1
L
N
FG
+
-
3
4
6
7
8
9
2
3
24
1
2
3
4
5
6
7
8
ALM +
ALM -
+2
4V IN
P-
OT
N
-
OT
/
DE
C
/SO
2
+
/SO
2
-
L1C
L2C
L1
L2
L3
B1
B2
B3
+1
+2
SV-XP
500
501
503
504
505
XB1
XB2
507
DRV-X
SGDS-15A12A
DRV-Y (Refer:CDF-10504)
1
2
5
6
FG
CN2 SV-X2
XE
X ENCODER
1
2
3
4
5
PG5V
PG0V
PS
*PS
1
2
3
4
XM
U
V
W
SV-XM
SERVO UNIT
(Refer:CDF-10203)
DRIVER UNIT
(Refer:CDF-10204)
DV-ACOUT1
1
2
3
4
5
6
7
8
9
POWER UNIT
(Refer:CDF-10301)
PW-2
1
2
3
4
5
6
DV-ACIN
1
2
3
4
5
6
DV-EMG1
1
2
3
4
1
2
3
4
5
6
7
8
9
SV-ACIN
500
501
502
503
504
505
SERVO I/F UNIT
IF2 LS BOARD
(
Refer:CDF-10502
)
SY-IF2 BOARD (Refer:CDF-10502)
1
2
3
S
ERV
O
ALARM
C
N1
0
LB-10
X MOTOR
S
V-X1
C
N1
SV-X6A CN6A
SV-X6B CN6B
SV-Y6A CN6A
CN7 SI-7
X-R1
X-R2
X AXIS MOTOR
assembly
X AXIS ENCODER
assembly
J
H
E
M
A 1-791-233
REF CABLE PARTS NO.
B 1- -
C 1-829-455
D 1-829-458
E
F
1- -
G
1- -
H
1-829-456
J
1-829-457
1- -
A B
D
E
F
G
JEPMC-W6002-04 (YASKAWA)
JEPMC-W6002-A5
(YASKAWA)
I/O UNIT
EM
G
I
/
L B
O
AR
D
(
Refer:CDF-10401
)
C
N
9
+
24V
CR3
8
3
4
1
2
C

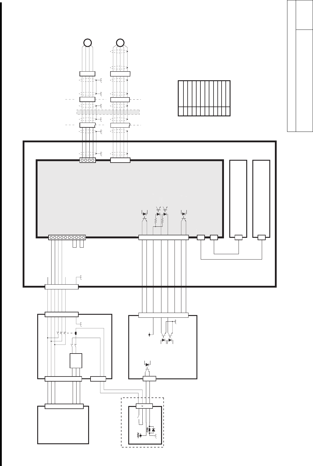
Y-Axis Servo Driver Peripheral Circuit
CDF-10504-01
Y-Axis Servo Driver Peripheral Circuit
SHEET
1/1
CP5
MC1
PS1
L
N
FG
+
-
3
4
6
7
8
9
2
3
24
1
2
3
4
5
6
7
8
ALM +
ALM -
+
24V IN
P-
OT
N-
OT
/
DE
C
/SO2
+
/SO
2
-
L1C
L2C
L1
L2
L3
B1
B2
B3
+1
+2
SV-YP
501
502
503
504
508
509
DRV-Y
SGDS-08A12A
DRV-H (Refer:CDF-10507)
1
2
5
6
FG
CN2 SV-Y2
PG5V
PG0V
PS
*PS
U
V
W
SV-YM
SERVO UNIT
(Refer:CDF-10203)
DRIVER UNIT
(Refer:CDF-10204)
DV-ACOUT1
1
2
3
4
5
6
7
8
9
POWER UNIT
(Refer:CDF-10301)
PW-2
1
2
3
4
5
6
DV-ACIN
1
2
3
4
5
6
DV-EMG1
1
2
3
4
1
2
3
4
5
6
7
8
9
SV-ACIN
500
501
502
503
504
505
IF2 LS BOARD
(Refer:CDF-10502)
SI-2 CN2
1
2
3
S
ERV
O
ALARM
C
N1
1
LB-11
S
V-Y1
C
N1
S
V-Y
6A
C
N
6A
SV-Y6B CN6B
SV-H6A CN6A
DRV-X (Refer:CDF-10503)
SV-X6B CN6B
K
G
H
H
L
J
Y ENCODER
1
2
3
4
5
Y MOTOR
Y AXIS
MOTOR
assembly
Y AXIS
ENCODER
assembly
E
M
A 1-791-233
REF CABLE PARTS NO.
B 1- -
C 1-829-455
D 1-829-470
E
F
1- -
G
1- -
H
1-829-493
J
1-829-461
K
1-829-465
L
1-829-466
1-829-459
A B
D
E
F
M1 YM2 YM
E1 YE2 YE
X FLAT
RBT CABLE
1st CONNECTION
PANEL
2nd CONNECTION
PANEL
1
2
3
4
1
2
3
4
1
2
3
4
1
2
3
4
5
1
2
3
4
5
JEPMC-W6002-A5 (YASKAWA)
JEPMC-W6002-A5
(YASKAWA)
I/O UNIT
EMG I/L BOARD
(Refer:CDF-10401)
C
N
9
D
9
C
R
38
3
1
2
C

FF-Axis Servo Driver Peripheral Circuit
CDF-10505-01
FF-Axis Servo Driver Peripheral
Circuit
SHEET
1/1
CP5
MC1
PS1
L
N
FG
+
-
3
4
6
7
8
9
2
3
24
1
2
3
4
5
6
7
8
ALM +
ALM -
+
24V IN
P-
OT
N-
OT
/
DE
C
/SO2
+
/SO
2
-
L1C
L2C
L1
L2
B1
B2
-
SV-FFP
500
501
504
505
DRV-FF
SGDS-04A12A
1
2
5
6
FG
CN2 SV-FF2
PG5V
PG0V
PS
*PS
U
V
W
SV-FFM
SERVO UNIT
(Refer:CDF-10203)
DRIVER UNIT
(Refer:CDF-10204)
DV-ACOUT1
1
2
3
4
5
6
7
8
9
POWER UNIT
(Refer:CDF-10301)
PW-2
1
2
3
4
5
6
DV-ACIN
1
2
3
4
5
6
DV-EMG1
1
2
3
4
1
2
3
4
5
6
7
8
9
SV-ACIN
500
501
502
503
504
505
IF2 LS BOARD
(Refer:CDF-10502)
1
2
3
S
ERV
O
ALARM
C
N1
3
LB-13
S
V-FF1
C
N
1
S
V-FF
6A
C
N
6A
SV-FF6B CN6B
DRV-H (Refer:CDF-10507)
SV-H6B CN6B
K
G
H
H
L
J
FF ENCODER
1
2
3
4
5
FF MOTOR
FF AXIS
MOTOR
assembly
FF AXIS
ENCODER
assembly
E
M
A 1-791-233
REF CABLE PARTS NO.
B 1- -
C 1-829-455
D 1-829-472
E
F
1- -
G
1- -
H
1-829-493
J
1-829-461
K
1-829-465
L
1-829-467
1-829-459
A B
D
E
F
M1 FFM2 FFM
E1 FFE2 FFE
X FLAT
RBT CABLE
1st CONNECTION
PANEL
2nd CONNECTION
PANEL
5
6
7
8
1
2
3
4
1
2
3
4
1
2
3
4
5
6
7
8
9
JEPMC-W6002-A5 (YASKAWA)
I/O UNIT
EMG I/L BOARD
(Refer:CDF-10401)
C
N
9
D
9
CR3
8
3
1
2
C