NPM-D3A说明书 - 第100页
NPM-D3A 2021.0219 - 94 - 6. 其他标准规格 6.1 程序功能 数据编制都是在数据编制系统 NPM-DGS 进行。在 NPM -DG S 作成的生产数据 ,通过 LN B (FA 电脑 ) 下载于设备 。 但是,部分数据修正也可在机器主体 上进行。 在设备主体修正的数据以及校正内容 被保存,可以再利用。 ※ NPM-DGS 用 的硬件,请客户准备。 (NPM-DGS 是其他产品 。 ) 有关 NPM-DGS 的详…

NPM-D3A 2021.0219
- 93 -
■ 基本构成
项 目 内 容
LCR 检查器(供料器形状类型)
此为计测元件的电气特性的机器。
LCR 检查器许可证 每台设备都需要许可证。

NPM-D3A 2021.0219
- 94 -
6. 其他标准规格
6.1 程序功能
数据编制都是在数据编制系统 NPM-DGS 进行。在 NPM-DGS 作成的生产数据,通过 LNB (FA 电脑)下载于设备。
但是,部分数据修正也可在机器主体上进行。
在设备主体修正的数据以及校正内容被保存,可以再利用。
※ NPM-DGS 用的硬件,请客户准备。(NPM-DGS 是其他产品。)
有关 NPM-DGS 的详细情况,请参照别册的「NPM-DGS 规格说明书」。
6.2 信号塔
信号灯的颜色和亮灯标准
信号灯
颜色
分 类 亮灯标准
红色 紧急停止错误
・ 马达等的轴异常
・ 空气压力下降
・ 基板支撑部异常
・ 贴装头故障
・ 编带故障 等
黄色 中途停止错误
・ 吸附错误
・ 贴装错误
・ 基板传送错误
・ 元件用完
・ 吸嘴更换错误 等
绿色 运转中
自动运转等动力为 ON 时
(但是,红色和黄色闪烁时熄灯)
蓝色或者
红色
连接的设备中,成为瓶颈的设备(循环时间最长的设备)蓝色灯亮。
另外,按紧急停止开关,红色灯亮。
※ 亮灯规格,可以变更设定。
数据编制系统 NPM-DGS
设备设定 PCB 数据
元件数据
最佳化
生产数据
标准
:
横置
距离地面
1 514 mm
红
黄
绿
(
蓝色或者红色
)
红
黄
绿
距离地面
1 629 mm
也可以纵置。
高度从地面起是
1 629 mm
。
(
蓝色或者红色
)
网板 Gerber 数据
(锡膏检查时)

NPM-D3A 2021.0219
- 95 -
7. 印刷基板设计基准
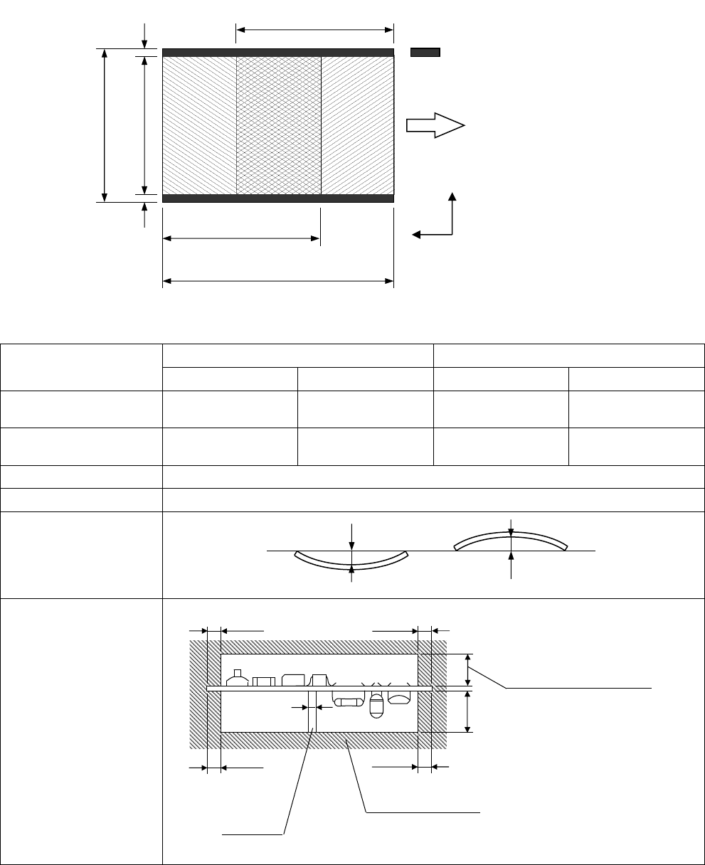
7.1 印刷基板规格概要
※1 ( ) 内的数値: 单轨模式时
※
2 ( )
内的数値
:
短型规格传送带时
项 目
长型规格传送带 短型规格传送带
双轨模式 单轨模式 双轨模式 单轨模式
基板尺寸
50 × 50 mm ~
510 × 300 mm
50 × 50 mm ~
510 × 590 mm
50 × 50 mm ~
460 × 300 mm
50 × 50 mm ~
460 × 590 mm
贴装/检查可能范围
50 × 43 mm ~
510 × 293 mm
50 × 43 mm ~
510 × 583 mm
50 × 43 mm ~
460 × 293 mm
50 × 43 mm ~
460 × 583 mm
基板厚度
0.3 mm ~ 8.0 mm
基板重量 1.5 kg以下 (实装后的状态,包括载体重量。)
※
3
基板弯曲容许
基板断面
贴装前基板状态
※3 基板重量(包括载体重量)超过 1.5 kg 的情况时,请另行联络。
※4 使用支撑销自动更换功能的情况时,支撑销形状、销的配置条件等有异。
详细请参阅「9. 选购件: 支撑销的自动更换」。
※ 有关陶瓷基板的对应请另行联络。
Max. 0.5 mm
Max. 0.5 mm
禁止有元件的范围
轻量
16
吸嘴贴装头
V3
: 6.5 mm
轻量
8
吸嘴贴装头
: 12 mm
2
吸嘴贴装头
: 28 mm
支撑销
※
4
(
设置在与反面元件距离隔开
2 mm
以上的位置。
)
28 mm
3.5 mm
3.5 mm
3.5 mm
φ
3
3.5 mm
Y
X
固定侧
禁止有元件
(
或者锡膏等
)
的范围
3.5 mm
3.5 mm
分割实装时的贴装范围
350 mm (260 mm)
※
2
43 mm ~ 293 mm
(43 mm ~ 583 mm)
※
1
50 mm ~ 300 mm
(50 mm ~ 590 mm)
※
1
分割实装时的贴装范围
350 mm (260 mm)
※
2
50 mm ~ 510 mm
(50 mm ~ 460 mm)
※
2
流向