HM-Series_TRM(Ver2.2_CS20.11) - 第246页
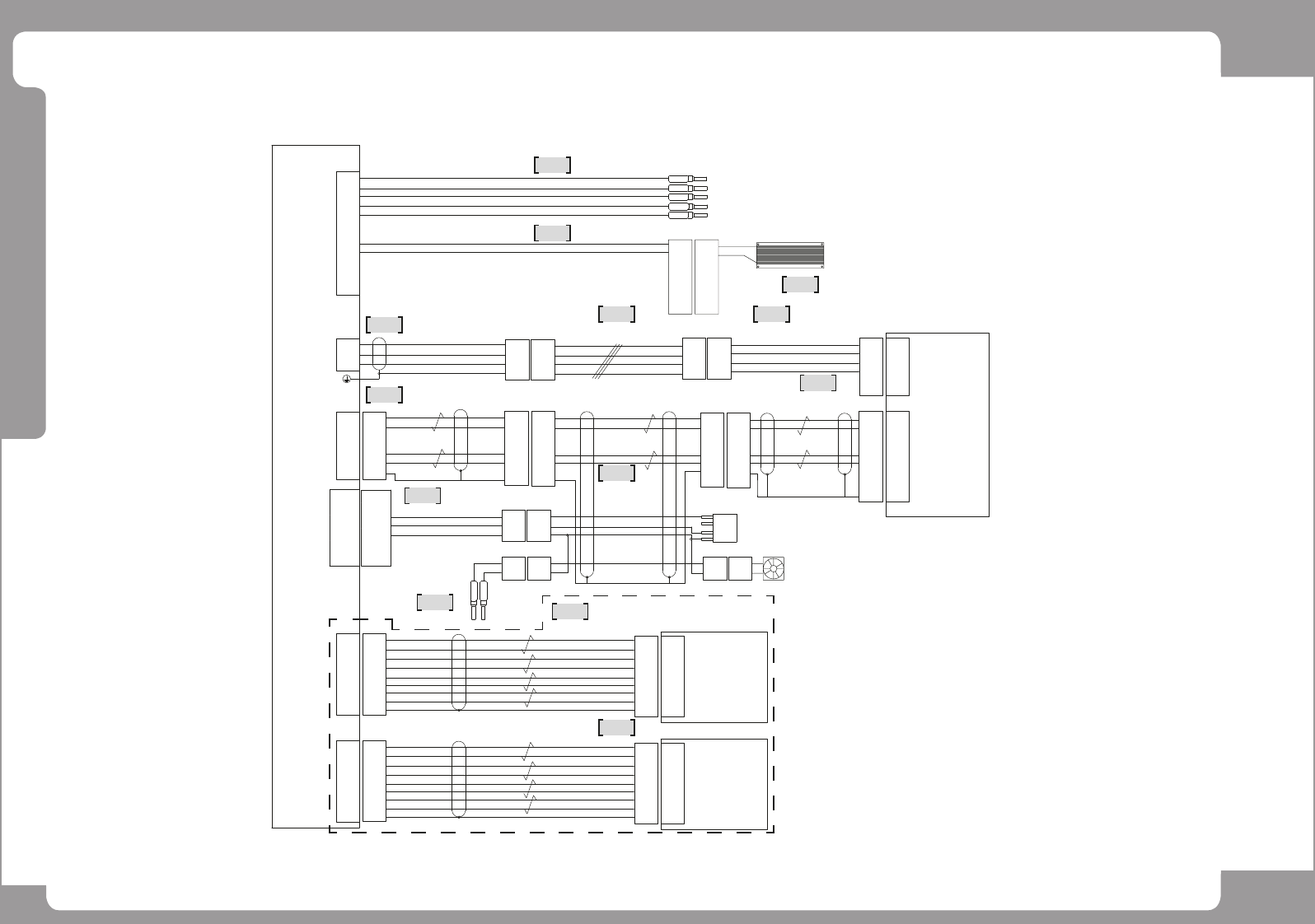
Page ohu~oh 244 HM520 / HM520h X-Y Servo Board (1/5) 1 2 3 4 6 5 8 9 11 12 13 FRONT X L2 B3 B2 B1 L2C L1C L3 L1 DRIVER - -2 -1 TB #2 - 2C TB #2 - 5C TB #2 - 1 1B TB #2 - 13B TB #2 - 15B NXD_PW-027 (AM03-025683A) NXD_MD-0…

Page
ohu~oh
243
HM520 /
HM520h
Conveyor Interface Board (9/9)
NO. PART NO. PART NAME Q'TY Old No. Supply Supply LT Reference
1 AM03-025813A CABLE ASSY-STEP BD2 TO DRV CABLE 1
2 AM03-025800A CABLE ASSY-FX BELT MOTOR CABLE 1
3 AM03-025677A CABLE ASSY-TB2_BELT STEP DRV 24V 1
AM03-034902A CABLE ASSY-TB2_BELT STEP DRV 24V 1 HM520h Option
4 AM03-025801A CABLE ASSY-FM BELT MOTOR CABLE 1
5 AM03-025796A CABLE ASSY-RM BELT MOTOR CABLE 1
6 AM03-025803A CABLE ASSY-RF BELT MOTOR CABLE 1
7 AM03-027561A CABLE ASSY-WORK2 STOP SEN SIG EXT CABLE 1
8 AM03-025882B CABLE ASSY-FAN_PUMP_ALARM EXT CABLE 1
9 EP08-900073 STEP_MOTOR 4 AM03-025797A

Page
ohu~oh
244
HM520 /
HM520h
X-Y Servo Board (1/5)
1
2
3
4 6
5
8
9
11
12
13
FRONT X
L2
B3
B2
B1
L2C
L1C
L3
L1
DRIVER
-
-2
-1
TB #2 - 2C
TB #2 - 5C
TB #2 - 11B
TB #2 - 13B
TB #2 - 15B
NXD_PW-027
(AM03-025683A)
NXD_MD-015
(AM03-027968A)
NXD_MD-015-1
(AM03-027970B)
L2
L2C
L1C
L3
L1
B2
B1
REGENERATIVE RESISTOR
(40OHM, 150W, 5%)
V
W
U
X-PWR
02
04
03
01
RED
WHITE
BLACK
GREEN
U
V
W
E
02
04
03
01
02
04
03
01
02
04
03
01
NXD_FL-002 #1
(AM03-028965A)
X-MOT-PWR
NXD_MD-001-02
(AM03-025626A)
03
06
05
01
02
04
03
06
05
01
02
04
U
V
W
E
U
V
W
FG
X-MOT-PW
FRONT
02
06
05
04
03
01
CN2
02
06
05
04
03
01
A2
B4
B3
A4
A3
B2
B1
A1
5V
0V
PS
-PS
SHELL
A2
B4
B3
A4
A3
B2
B1
A1
SHIELD
FL-X-ENC
A2
B4
B3
B1
A3
B2
A4
A1
X-MOT-ENC
NXD_FL-002 #2
(AM03-028965A)
+5V
GND
SD
/SD
RED
BLK
GRN
BLK
02
03
01
02
03
01
FL-X-HOME
02
01
02
01
X-FAN-EX
OUT
-
L
+
02
01
02
01
X-FAN
FG
24V
HOME
GND
24V
GND
FRONT X
MOTOR FAN
FRONT X
HOME SENSOR
NXD_MD-002-02
(AM03-025627A)
03
08
07
05
04
02
01
06
A2
B4
B3
B1
A3
B2
A4
A1
09
SHELL
03
08
07
05
04
02
01
06
09
SHELL
SHIELD
+5V
GND
SD
/SD
X
MOTOR
NXD_PW-047
(AM03-025904B)
CN1
1
2
6
12
16
~
26
1
2
6
12
16
~
26
REFER TO SILL
BOARD
24V
02
08
07
06
05
04
03
01
02
08
07
06
05
04
03
01
TB #3 - 3D
TB #3 - 8D
HOME
GND
CN6A
02
06
05
06
03
01
SHELL
08
07
02
05
04
06
03
01
SHELL
08
07
CN6B
SHELL
SHELL
CH1
SHELL
SHELL
SMC
BOARD
TD+
TD-
RD+
RD-
SHIELD
NXD_VM-001
(AM03-025542A)
02
05
04
06
03
01
08
07
02
05
04
06
03
01
08
07
02
06
05
06
03
01
08
07
02
05
04
06
03
01
08
07
6A
SHELL
SHELL
FRONT Y
DRIVER
TD+
TD-
RD+
RD-
SHIELD
NXD_VM-001-1
(AM03-025543A)
02
06
05
06
03
01
08
07
02
05
04
06
03
01
08
07
HM520(HS,MF,LED) Option
NXD_MD-001
AM03-025620B
AM03-034892A(HM520h Option)
7
NXD_MD-002
AM03-025621B
AM03-034896A(HM520h Option)
10
NXD_PW-043-1
AM03-025902B
AM03-034955A
(HM520h Option)

Page
ohu~oh
245
HM520 /
HM520h
X-Y Servo Board (1/5)
NO. PART NO. PART NAME Q'TY Old No. Supply Supply LT Reference
1 AM03-025683A CABLE ASSY-F X DRIVER AC PWR 1
2 AM03-027970B CABLE ASSY-REGEN RESISTOR EXT 1
3 AM03-025620B CABLE ASSY-F X MOTOR PWR EXT 1
AM03-034892A CABLE ASSY-F X MOTOR PWR EXT 1 HM520h Option
4 AM03-028965A CABLE ASSY- NXD Y FLAT CABLE_NXD_FL-002 1
5 AM03-027968A CABLE ASSY-REGEN RESISTOR 1
6 AM03-025626A CABLE ASSY-X MOTOR PWR 2
7 AM03-025621B CABLE ASSY-F X MOTOR ENC EXT 1
AM03-034896A CABLE ASSY-F X MOTOR ENC EXT 1 HM520h Option
8 AM03-025627A CABLE ASSY-X MOTOR ENC 2
9 AM03-028965A CABLE ASSY- NXD Y FLAT CABLE_NXD_FL-002 1
10 AM03-025902B CABLE ASSY-HEAD ILL #1 PWR_RS422 1
AM03-034955A CABLE ASSY-HEAD ILL #1 PWR_RS422 1 HM520h Option
11 AM03-025904B CABLE ASSY-FRONT X MOTOR FAN PWR 1
12 AM03-025542B CABLE ASSY-SMC FX ETHERCAT 1
13 AM03-025543B CABLE ASSY-FX_FY ETHERCAT 1