HM-Series_TRM(Ver2.2_CS20.11) - 第247页
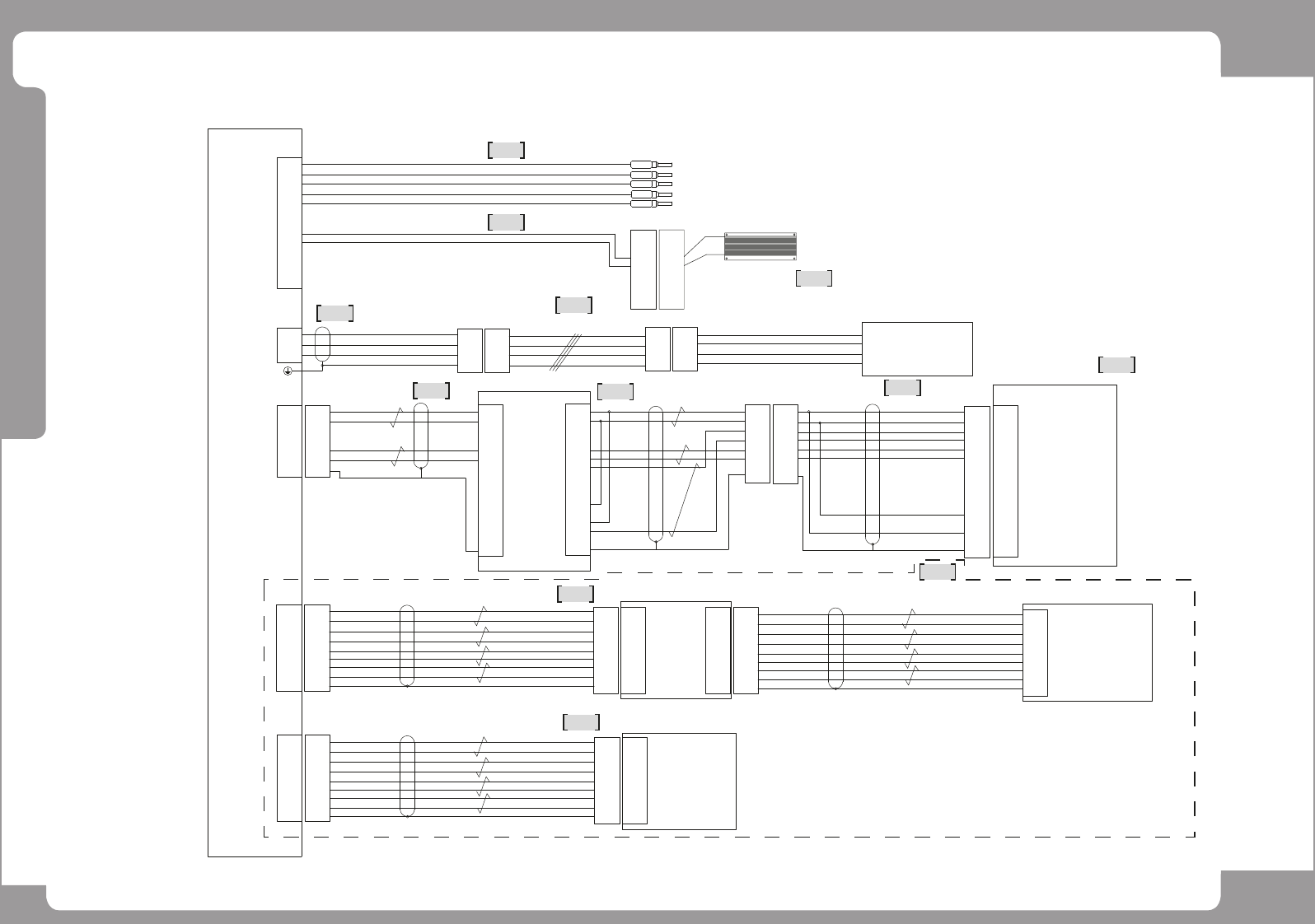
Page ohu~oh 245 HM520 / HM520h X-Y Servo Board (1/5) NO. P A RT NO. P ART NA ME Q'TY Old No. Supply Supply L T Reference 1 AM0 3-025683A CABLE ASSY - F X DRIVER AC PWR 1 2 AM0 3-027970B CABLE ASSY - REGEN RESISTOR E…

Page
ohu~oh
244
HM520 /
HM520h
X-Y Servo Board (1/5)
1
2
3
4 6
5
8
9
11
12
13
FRONT X
L2
B3
B2
B1
L2C
L1C
L3
L1
DRIVER
-
-2
-1
TB #2 - 2C
TB #2 - 5C
TB #2 - 11B
TB #2 - 13B
TB #2 - 15B
NXD_PW-027
(AM03-025683A)
NXD_MD-015
(AM03-027968A)
NXD_MD-015-1
(AM03-027970B)
L2
L2C
L1C
L3
L1
B2
B1
REGENERATIVE RESISTOR
(40OHM, 150W, 5%)
V
W
U
X-PWR
02
04
03
01
RED
WHITE
BLACK
GREEN
U
V
W
E
02
04
03
01
02
04
03
01
02
04
03
01
NXD_FL-002 #1
(AM03-028965A)
X-MOT-PWR
NXD_MD-001-02
(AM03-025626A)
03
06
05
01
02
04
03
06
05
01
02
04
U
V
W
E
U
V
W
FG
X-MOT-PW
FRONT
02
06
05
04
03
01
CN2
02
06
05
04
03
01
A2
B4
B3
A4
A3
B2
B1
A1
5V
0V
PS
-PS
SHELL
A2
B4
B3
A4
A3
B2
B1
A1
SHIELD
FL-X-ENC
A2
B4
B3
B1
A3
B2
A4
A1
X-MOT-ENC
NXD_FL-002 #2
(AM03-028965A)
+5V
GND
SD
/SD
RED
BLK
GRN
BLK
02
03
01
02
03
01
FL-X-HOME
02
01
02
01
X-FAN-EX
OUT
-
L
+
02
01
02
01
X-FAN
FG
24V
HOME
GND
24V
GND
FRONT X
MOTOR FAN
FRONT X
HOME SENSOR
NXD_MD-002-02
(AM03-025627A)
03
08
07
05
04
02
01
06
A2
B4
B3
B1
A3
B2
A4
A1
09
SHELL
03
08
07
05
04
02
01
06
09
SHELL
SHIELD
+5V
GND
SD
/SD
X
MOTOR
NXD_PW-047
(AM03-025904B)
CN1
1
2
6
12
16
~
26
1
2
6
12
16
~
26
REFER TO SILL
BOARD
24V
02
08
07
06
05
04
03
01
02
08
07
06
05
04
03
01
TB #3 - 3D
TB #3 - 8D
HOME
GND
CN6A
02
06
05
06
03
01
SHELL
08
07
02
05
04
06
03
01
SHELL
08
07
CN6B
SHELL
SHELL
CH1
SHELL
SHELL
SMC
BOARD
TD+
TD-
RD+
RD-
SHIELD
NXD_VM-001
(AM03-025542A)
02
05
04
06
03
01
08
07
02
05
04
06
03
01
08
07
02
06
05
06
03
01
08
07
02
05
04
06
03
01
08
07
6A
SHELL
SHELL
FRONT Y
DRIVER
TD+
TD-
RD+
RD-
SHIELD
NXD_VM-001-1
(AM03-025543A)
02
06
05
06
03
01
08
07
02
05
04
06
03
01
08
07
HM520(HS,MF,LED) Option
NXD_MD-001
AM03-025620B
AM03-034892A(HM520h Option)
7
NXD_MD-002
AM03-025621B
AM03-034896A(HM520h Option)
10
NXD_PW-043-1
AM03-025902B
AM03-034955A
(HM520h Option)

Page
ohu~oh
245
HM520 /
HM520h
X-Y Servo Board (1/5)
NO. PART NO. PART NAME Q'TY Old No. Supply Supply LT Reference
1 AM03-025683A CABLE ASSY-F X DRIVER AC PWR 1
2 AM03-027970B CABLE ASSY-REGEN RESISTOR EXT 1
3 AM03-025620B CABLE ASSY-F X MOTOR PWR EXT 1
AM03-034892A CABLE ASSY-F X MOTOR PWR EXT 1 HM520h Option
4 AM03-028965A CABLE ASSY- NXD Y FLAT CABLE_NXD_FL-002 1
5 AM03-027968A CABLE ASSY-REGEN RESISTOR 1
6 AM03-025626A CABLE ASSY-X MOTOR PWR 2
7 AM03-025621B CABLE ASSY-F X MOTOR ENC EXT 1
AM03-034896A CABLE ASSY-F X MOTOR ENC EXT 1 HM520h Option
8 AM03-025627A CABLE ASSY-X MOTOR ENC 2
9 AM03-028965A CABLE ASSY- NXD Y FLAT CABLE_NXD_FL-002 1
10 AM03-025902B CABLE ASSY-HEAD ILL #1 PWR_RS422 1
AM03-034955A CABLE ASSY-HEAD ILL #1 PWR_RS422 1 HM520h Option
11 AM03-025904B CABLE ASSY-FRONT X MOTOR FAN PWR 1
12 AM03-025542B CABLE ASSY-SMC FX ETHERCAT 1
13 AM03-025543B CABLE ASSY-FX_FY ETHERCAT 1

Page
ohu~oh
246
HM520 /
HM520h
X-Y Servo Board (2/5)
1
2
4
5
6
8
9
10
12
11
FRONT Y
L2
B3
B2
B1
L2C
L1C
L3
L1
DRIVER
-
-2
-1
TB #2 - 3A
TB #2 - 6A
TB #2 - 11D
TB #2 - 13D
TB #2 - 15D
NXD_PW-028
(AM03-025688A)
NXD_MD-015
(AM03-027968A)
NXD_MD-015-1
(AM03-027970B)
02
08
07
06
05
04
03
01
L2
L2C
L1C
L3
L1
B2
B1
REGENERATIVE RESISTOR
(30OHM, 150W, 5%)
V
W
U
Y-PWR
02
04
03
01
RED
WHITE
BLACK
GREEN
U
V
W
E
02
04
03
01
02
04
03
01
02
04
03
01
NXD_FL-002 #3
(AM03-028965A)
Y-MOT-PWR
U
V
W
E
FRONT
NXD_MD-006-02
(AM03-026076A)
02
06
05
04
03
01
CN2
02
06
05
04
03
01
2
6
5
15
8
3
1
4
5V
0V(WHT/GRN)
PS(VIOLET)
-PS(YEL)
SHELL
SHIELD
EIB 3391Y
NXD_FL-002 #4
(AM03-028965A)
Y LINEAR
MOTOR
02
08
07
06
05
04
03
01
(BRN/GRN)
12
11
10
9
7
14
13
2
3
1
15
8
13
5
4
11
10
9
7
6
14
12
COVER
SHELL
FRONT
Y LINEAR
SCALE
HEAD
U
V
W
E
FC28-000188
2
6
5
15
8
3
1
4
12
11
10
9
7
14
13
SHELL
Up
0V
DATA+
DATA-
A2
B4
A3
B2
B1
A4
B3
A1
A2
B4
A3
B2
B1
A4
B3
A1
Up
0V
DATA
/DATA
CLOCK
/CLOCK
SNS Up
SNS 0V
SHIELD
SHIELD
+5V(RED)
+5V(YEL)
0V(BLK)
0V(BLK)
+REQ/+DT(GRN)
-REQ/-DT(BLK)
CLOCK(BLU)
/CLOCK(BLK)
2
3
1
15
8
13
5
4
11
10
9
7
6
14
12
COVER
CN6A
02
06
05
06
03
01
SHELL
08
07
02
05
04
06
03
01
SHELL
08
07
CN6B
SHELL
SHELL
6B
SHELL
SHELL
FRONT X
DRIVER
TD+
TD-
RD+
RD-
SHIELD
02
06
05
06
03
01
08
07
02
05
04
06
03
01
08
07
02
06
05
06
03
01
08
07
02
05
04
06
03
01
08
07
SHELL
SHELL
ETHERNET
COUPLER
TD+
TD-
RD+
RD-
SHIELD
NXD_VM-001-1
(AM03-025543A)
02
06
05
06
03
01
08
07
02
05
04
06
03
01
08
07
NXD_VM-001-1
(AM03-025543A)
SHELL
02
05
04
06
03
01
08
07
SHELL
02
06
05
06
03
01
08
07
SHELL
TD+(WHITE)
TD-(BLUE)
RD+(YELLOW)
RD-(ORANGE)
SHIELD
F NXD_FL-001 #3
(AM03-028964A(HS, MF Option))
(AM03-029742A(HS-LED Option))
02
04
03
07
06
01
08
05
F HS BASE
BOARD
CN7(IN)
HM520(HS,MF,LED) Option
3
NXD_MD-005
AM03-025629B
AM03-034899A(HM520h Option)
7
NXD_MD-006
AM03-025628B
AM03-034898C(HM520h Option)