HM-Series_TRM(Ver2.2_CS20.11) - 第251页
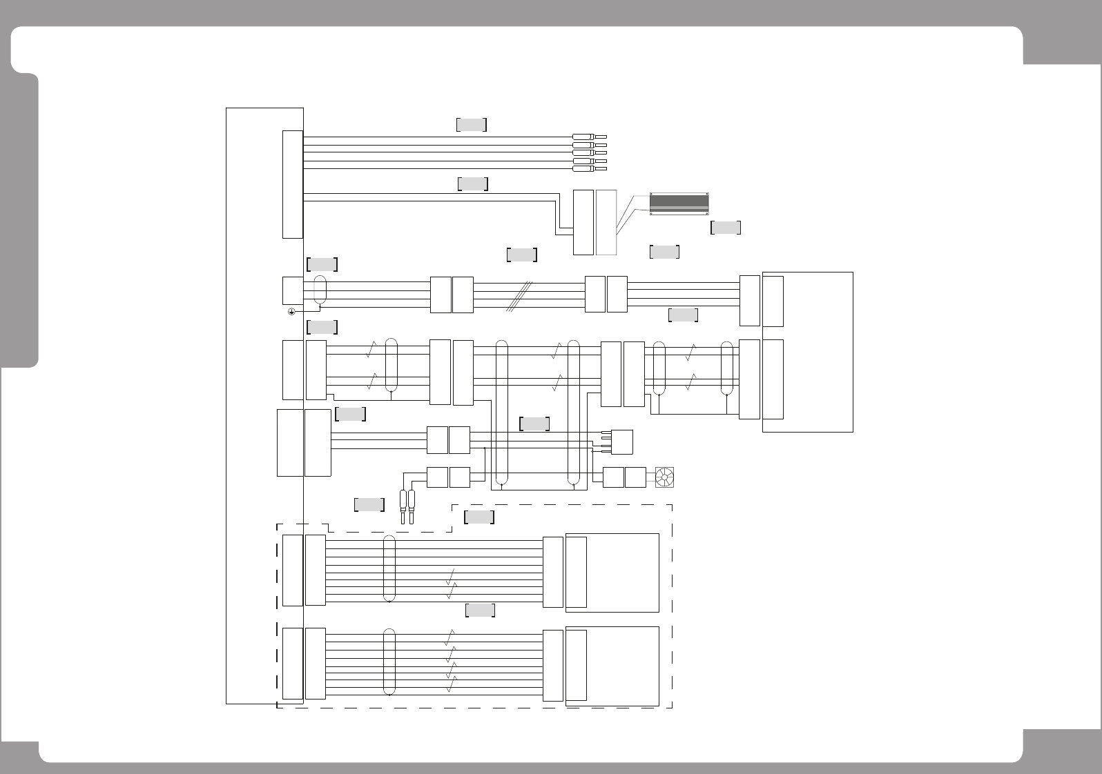
Page ohu~oh 249 HM520 / HM520h X-Y Servo Board (3/5) NO. P A RT NO. P ART NAME Q'TY Old No. Supply Supply L T Reference 1 AM0 3-025691A CABLE ASSY -R X DRIV ER AC PWR 1 2 AM0 3-027970B CABLE ASSY - REGEN RESISTOR EX…

Page
ohu~oh
248
HM520 /
HM520h
X-Y Servo Board (3/5)
1
2
3
5
6
8
9
11
12
13
REAR X
L2
B3
B2
B1
L2C
L1C
L3
L1
DRIVER
-
-2
-1
TB #2 - 2D
TB #2 - 5D
TB #2 - 11C
TB #2 - 13C
TB #2 - 15C
NXD_PW-029
(AM03-025691A)
NXD_MD-015
(AM03-027968A)
NXD_MD-015-1
(AM03-027970B)
02
08
07
06
05
04
03
01
L2
L2C
L1C
L3
L1
B2
B1
REGENERATIVE RESISTOR
V
W
U
X-PWR
02
04
03
01
RED
WHITE
BLACK
GREEN
U
V
W
E
02
04
03
01
02
04
03
01
02
04
03
01
NXD_FL-002 #1
(AM03-028965A)
X-MOT-PWR
NXD_MD-001-02
(AM03-025626A)
03
06
05
01
02
04
03
06
05
01
02
04
U
V
W
E
U
V
W
FG
X-MOT-PW
REAR
02
06
05
04
03
01
CN2
02
06
05
04
03
01
A2
B4
B3
A4
A3
B2
B1
A1
5V
0V
PS
-PS
SHELL
A2
B4
B3
A4
A3
B2
B1
A1
SHIELD
FL-X-ENC
A2
B4
B3
B1
A3
B2
A4
A1
X-MOT-ENC
NXD_FL-002 #2
(AM03-028965A)
+5V
GND
SD
/SD
RED
BLK
GRN
BLK
02
03
01
02
03
01
FL-X-HOME
02
01
02
01
X-FAN-EX
OUT
-
L
+
02
01
02
01
X-FAN
FG
24V
HOME
GND
24V
GND
REAR X
MOTOR FAN
REAR X
HOME SENSOR
NXD_MD-002-02
(AM03-025627A)
03
08
07
05
04
02
01
06
A2
B4
B3
B1
A3
B2
A4
A1
09
SHELL
03
08
07
05
04
02
01
06
09
SHELL
SHIELD
+5V
GND
SD
/SD
X
MOTOR
NXD_PW-048
(AM03-025905B)
CN1
REFER TO SILL
BOARD
02
08
07
06
05
04
03
01
TB #3 - 4A
TB #3 - 9A
1
2
6
12
16
~
26
1
2
6
12
16
~
26
24V
HOME
GND
06
05
06
SHELL
08
07
05
04
06
SHELL
08
07
CN6B
SHELL
SHELL
SHELL
SHELL
BOARD
TD+
TD-
RD+
RD-
SHIELD
NXD_VM-002
(AM03-025557A)
05
04
08
07
05
04
08
07
02
06
05
06
03
01
08
07
02
05
04
06
03
01
08
07
6A
SHELL
SHELL
REAR Y
DRIVER
TD+
TD-
RD+
RD-
SHIELD
NXD_VM-002-1
(AM03-025548A)
02
06
05
06
03
01
08
07
02
05
04
06
03
01
08
07
CN6A
02
03
01
02
03
01
02
03
01
02
03
01
06
06
SMC
CH2
HM520(HS,MF,LED) Option
4
NXD_MD-003
AM03-025622B
AM03-034901A(HM520h Option)
7
NXD_MD-004
AM03-025624B
AM03-034897A(HM520h Option)
10
NXD_PW-045-1
AM03-025903B
AM03-034957A
(HM520h Option)

Page
ohu~oh
249
HM520 /
HM520h
X-Y Servo Board (3/5)
NO. PART NO. PART NAME Q'TY Old No. Supply Supply LT Reference
1 AM03-025691A CABLE ASSY-R X DRIVER AC PWR 1
2 AM03-027970B CABLE ASSY-REGEN RESISTOR EXT 1
3 AM03-027968A CABLE ASSY-REGEN RESISTOR 1
4 AM03-025622B CABLE ASSY-R X MOTOR PWR EXT 1
AM03-034901A CABLE ASSY-R X MOTOR PWR EXT 1 HM520h Option
5 AM03-028965A CABLE ASSY- NXD Y FLAT CABLE_NXD_FL-002 1
6 AM03-025626A CABLE ASSY-X MOTOR PWR 2
7 AM03-025624B CABLE ASSY-R X MOTOR ENC EXT 1
AM03-034897A CABLE ASSY-R X MOTOR ENC EXT 1 HM520h Option
8 AM03-025627A CABLE ASSY-X MOTOR ENC 2
9 AM03-028965A CABLE ASSY- NXD Y FLAT CABLE_NXD_FL-002 1
10 AM03-025903B CABLE ASSY-HEAD ILL #2 PWR_RS422 1
AM03-034957A CABLE ASSY-HEAD ILL #2 PWR_RS422 1 HM520h Option
11 AM03-025905B CABLE ASSY-REAR X MOTOR FAN PWR 1
12 AM03-025557A CABLE ASSY-SMC RX ETHERCAT 1
13 AM03-025548A ASSY,OPTICS-MFH FID CAMERA 2

Page
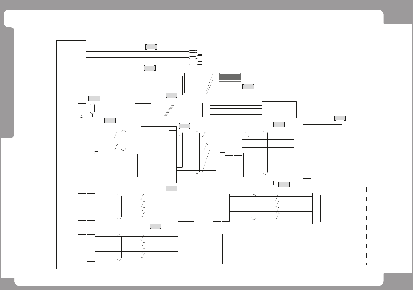
ohu~oh
250
HM520 /
HM520h
X-Y Servo Board (4/5)
1
5
2
3
8
9
6
10
12
11
REAR Y
L2
B3
B2
B1
L2C
L1C
L3
L1
DRIVER
-
-2
-1
TB #2 - 3B
TB #2 - 6B
TB #2 - 12A
TB #2 - 14A
TB #2 - 16A
NXD_PW-030
(AM03-025692A)
NXD_MD-015
(AM03-027968A)
NXD_MD-015-1
(AM03-027970B)
02
08
07
06
05
04
03
01
L2
L2C
L1C
L3
L1
B2
B1
REGENERATIVE RESISTOR
(30OHM, 150W, 5%)
V
W
U
Y-PWR
02
04
03
01
RED
WHITE
BLACK
GREEN
U
V
W
E
02
04
03
01
02
04
03
01
02
04
03
01
NXD_FL-002 #3
(AM03-028965A)
Y-MOT-PWR
U
V
W
E
REAR
Y LINEAR
MOTOR
02
08
07
06
05
04
03
01
U
V
W
E
NXD_MD-006-02
(AM03-026076A)
02
06
05
04
03
01
CN2
02
06
05
04
03
01
2
6
5
15
8
3
1
4
5V
0V(WHT/GRN)
PS(VIOLET)
-PS(YEL)
SHELL
SHIELD
EIB 3391Y
NXD_FL-002 #4
(AM03-028965A)
(BRN/GRN)
12
11
10
9
7
14
13
2
3
1
15
8
13
5
4
11
10
9
7
6
14
12
COVER
SHELL
REAR
Y LINEAR
SCALE
HEAD
FC28-000188
2
6
5
15
8
3
1
4
12
11
10
9
7
14
13
SHELL
Up
0V
DATA+
DATA-
A2
B4
A3
B2
B1
A4
B3
A1
A2
B4
A3
B2
B1
A4
B3
A1
Up
0V
DATA
/DATA
CLOCK
/CLOCK
SNS Up
SNS 0V
SHIELD
SHIELD
+5V(RED)
+5V(YEL)
0V(BLK)
0V(BLK)
+REQ/+DT(GRN)
-REQ/-DT(BLK)
CLOCK(BLU)
/CLOCK(BLK)
2
3
1
15
8
13
5
4
11
10
9
7
6
14
12
COVER
CN6A
02
06
05
06
03
01
SHELL
08
07
02
05
04
06
03
01
SHELL
08
07
CN6B
SHELL
SHELL
6B
SHELL
SHELL
REAR X
DRIVER
TD+
TD-
RD+
RD-
SHIELD
02
06
05
06
03
01
08
07
02
05
04
06
03
01
08
07
02
06
05
06
03
01
08
07
02
05
04
06
03
01
08
07
SHELL
SHELL
ETHERNET
COUPLER
TD+
TD-
RD+
RD-
SHIELD
NXD_VM-002-2
(AM03-025560A)
02
06
05
06
03
01
08
07
02
05
04
06
03
01
08
07
NXD_VM-002-1
(AM03-025558A)
SHELL
02
05
04
06
03
01
08
07
SHELL
02
06
05
06
03
01
08
07
SHELL
TD+(WHITE)
TD-(BLUE)
RD+(YELLOW)
RD-(ORANGE)
SHIELD
R NXD_FL-001 #3
AM03-028964A(HS, MF Option)
AM03-029742A(HS-LED Option)
02
04
03
07
06
01
08
05
R HS BASE
BOARD
CN7(IN)
HM520(HS,MF,LED) Option
4
NXD_MD-007
AM03-025630A
AM03-034904A(HM520h Option)
7
NXD_MD-008
AM03-025575B
AM03-034900C(HM520h Option)