SM481_TechnicalReference(Eng_Ver1[1].1) - 第108页
Page SAMSUNG TECHWIN 98 SM481 AXIO BD#1(2/4) AXIO BD #1 BOARD 01 03 07 09 27 17 19 21 23 22 24 29 02 04 08 10 14 16 06 CN1 1 01 03 07 09 27 17 19 21 23 22 24 29 02 04 08 10 14 16 06 03 04 05 06 07 29 30 27 31 37 39 41 21…

Page
SAMSUNG TECHWIN
97
SM481
AXIO BD#1(1/4)
NO. Lev. PART NO. PART NAME Q'TY Old No. Supply Supply LT Reference
1 AM03-006922A CABLE ASSY-AXIS1_HD_POWER 1 SM48_SC007
2 AM03-006920A CABLE ASSY-AXIS_SNS_BD_CN10 1 SM48_AX005-1
3 AM03-007150A FLAT_CABLE_ASSY 1 SM481_FL001
4 AM03-007484A CABLE ASSY-HD_VAC-BLOW_H3-H10 1 SM481_VI006
5 AM03-007482A CABLE ASSY-HD_VAC-BLOW_CTRL 1 SM481_AX008-1
6 AM03-007047A CABLE_ASSY-AXIO_CN5 1 SM481_AX008
7 AM03-007151A FLAT_CABLE_ASSY 1 SM481 FL002
8 AM03-007046A CABLE_ASSY-AXIO_CN7_9 1 SM481_AX006
9 AM03-006919A CABLE ASSY-AXIS_SNS_BD_CN9 1 SM48_AX005
10 AM03-007080A CABLE_ASSY_LIMIT_&_HD_PWR_EXT 1 SM481_AX006-1
11 AM03-007483A X AXIS SENSOR CABLE ASSY 1 SM481_AX002

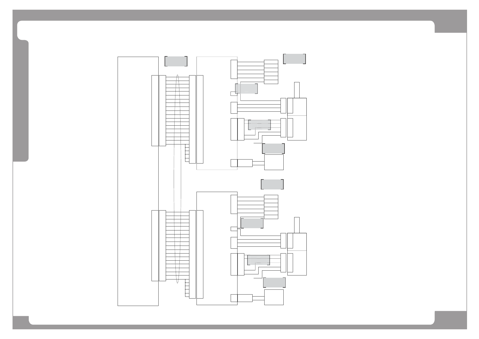
Page
SAMSUNG TECHWIN
98
SM481
AXIO BD#1(2/4)
AXIO BD #1
BOARD
01
03
07
09
27
17
19
21
23
22
24
29
02
04
08
10
14
16
06
CN11
01
03
07
09
27
17
19
21
23
22
24
29
02
04
08
10
14
16
06
03
04
05
06
07
29
30
27
31
37
39
41
21
22
48
49
23
24
25
13
36
38
09
08
03
04
05
06
07
29
30
27
31
37
39
41
21
22
48
49
23
24
25
13
36
38
09
08
Y1 SERVO
DRIVER
P. E
W
V
U
01
02
03
04
05
06
X6
4
3
2
1
Y1
W
V
U
4
5
2
3
6
01
02
03
04
05
06
SHIELD
4
5
2
3
6
MOTOR
IRN150S
RESISTER
Y1-RB1
Y1-RB2
RB1
RB2
SM48_VM003
SM48-MD005
SM48-MD006
SM48_MD036
PE
L1
L2
L3
r
t
TB1-18B
TB1-20B
TB1-22B
TB1-14B
TB1-16B
PE13
01
03
07
09
27
17
19
21
23
22
24
29
02
04
08
10
14
16
06
CN12
01
03
07
09
27
17
19
21
23
22
24
29
02
04
08
10
14
16
06
03
04
05
06
07
29
30
27
31
37
39
41
21
22
48
49
23
24
25
13
36
38
09
08
03
04
05
06
07
29
30
27
31
37
39
41
21
22
48
49
23
24
25
13
36
38
09
08
Y2 SERVO
DRIVER
SM48-PW020
FG
SD/
SD
5G
+5V
W
V
U
P. E
W
V
U
01
02
03
04
05
06
X6
D
C
B
A
4
5
2
3
6
01
02
03
04
05
06
SHIELD
IRN150S
RESISTER
Y2-RB1
Y2-RB2
RB1
RB2
SM48-MD007
SM48-MD008
SM48_MD037
L1
L2
L3
r
t
TB1-17C
TB1-19C
TB1-21C
TB1-13C
TB1-15C
PE16
SM48-PW019
FG
SD/
SD
5G
+5V
W
V
U
GND PLATE
Y2
W
V
U
4
5
2
3
6
MOTOR
PE
1
2
5
6
7
SD/SD/
SDSD
5G5G
8
8
8
//
//
9
SD/SD/
SDSD
5
G
5
G
4
4
4
3
EE
EE

Page
SAMSUNG TECHWIN
99
SM481
AXIO BD#1(2/4)
NO. Lev. PART NO. PART NAME Q'TY Old No. Supply Supply LT Reference
1 AM03-006907A CABLE ASSY-Y1-Y2_DRV_CMD_AXIO 1 SM48_VM003
2 AM03-006961A CABLE ASSY-Y1_SERVO_POWER 1 SM48-PW020
3 AM03-006944A CABLE ASSY-Y1_MOTOR_POWER 1 SM48-MD005
4 AM03-006945A CABLE ASSY-Y1_MOTOR_ENC 1 SM48-MD006
5 AM03-007203A Y1_REGEN_RESISTOR_CABLE_ASSY SM41-MD036 1 SM48_MD036
6 AM03-006960A CABLE ASSY-X-Y2_SERVO_POWER 1 SM48-PW019
7 AM03-006946A CABLE ASSY-Y2_MOTOR_POWER 1 SM48-MD007
8 AM03-006947A CABLE ASSY-Y2_MOTOR_ENC 1 SM48-MD008
9 AM03-007204A Y2_REGEN_RESISTOR_CABLE_ASSY SM41-MD037 1 SM48_MD037