SM481_TechnicalReference(Eng_Ver1[1].1) - 第145页
Page SAMSUNG TECHWIN 135 SM481 Front Feeder IF B/D(2/2) NO. Lev . P ART NO . P AR T NAME Q'TY Old N o. S upply Supply L T Reference 1 J90800838D CABLE ASSY -LEFT FDR SOL OUTPUT CAB LE ASSY 1 SM_FD003 2 EP02-000588A …

Page
SAMSUNG TECHWIN
134
SM481
Front Feeder IF B/D(2/2)
11
60
~
60
CN5S
CN5P
60P
~
CN7P
12P
1
CN7S
FRONT FEEDER BASE
LEFT B/D
FEEDER #1~#29
SM_FD003
FRONT FEEDER I/F
BOARD
2
3
4
5
6
7
8
1
2
3
4
5
6
7
8
9
10
11
12
9
10
11
12
1
2
3
4
5
6
7
8
9
10
11
12
1
2
3
4
5
6
7
8
9
10
11
12
SM411N_FD001
1
2
4
5
6
4
5
6
8P
CN13P
3
3
CN13S
1
2
1
2
8
7
8
7
1
2
FD-CN7-EX
FD-CN13-EX
1
1
GND
+24V
SM48_FD002
RY 3-8
RY 3-7
1
1
RY 4-8
RY 4-7
1
1
1
2
3

Page
SAMSUNG TECHWIN
135
SM481
Front Feeder IF B/D(2/2)
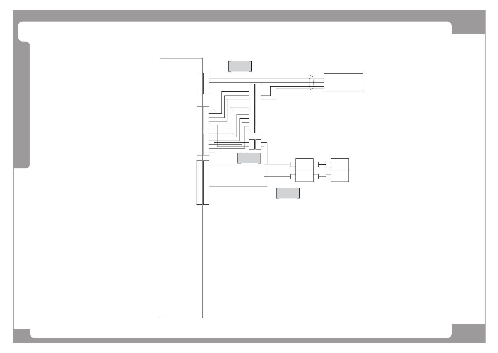
NO. Lev. PART NO. PART NAME Q'TY Old No. Supply Supply LT Reference
1 J90800838D CABLE ASSY-LEFT FDR SOL OUTPUT CABLE ASSY 1 SM_FD003
2 EP02-000588A FEEDER CN7 EXT CABLE ASSY 1 SM411N_FD001
3 AM03-006884A CABLE ASSY-F FDR PWR RELAY 1 SM48_FD002

Page
SAMSUNG TECHWIN
136
SM481
Head IF B/D(1/3)
A1
B1
A2
B2
A3
B3
A4
B4
A5
B5
CN19
AXIO BD #2
Z2-HOME
Z1-HOME
R5-HOME
R4HOME
R3-HOME
R2-HOME
R1-HOME
SW-HOME
GND
01
02
07
08
13
14
19
20
30
~
A1
B1
A2
B2
A3
B3
A4
B4
A5
B5
HEAD IF BOARD
CN1
B1
B2
A1
A2
A1
B1
A2
B2
A3
B3
A4
B4
A5
B5
CN18
01
02
03
04
B1
B2
A1
A2
AXIO BD #2
Z10-HOME
Z9-HOME
Z8-HOME
Z7-HOME
Z6-HOME
Z5-HOME
Z4-HOME
Z3-HOME
GND
01
02
07
08
13
14
19
20
30
~
A1
B1
A2
B2
A3
B3
A4
B4
A5
B5
A1
A2
A3
B1
B2
B3
CN2
A1
A2
A3
B1
B2
B3
1
2
3
4
5
6
CAN_H
CAN_L
/IO_RESET
+24V
24G
+12V
CN4
CN5
01
03
05
07
09
11
02
04
06
08
10
12
01
03
05
07
09
11
02
04
06
08
10
12
01
03
05
07
09
11
02
04
06
08
10
12
01
03
05
07
09
11
02
04
06
08
10
12
01
03
05
07
09
11
02
04
06
08
10
12
13
15
14
16
01
02
03
04
AXIO BD
F FEEDER I/F B/D
#2
SM471_VI006
1
2
3
4
5
6
1
2
3
4
5
6
CN2
A6
B1
B2
B3
B4
B5
B6
A1
A2
A3
A4
A5
A6
B1
B2
B3
B4
B5
B6
A1
A2
A3
A4
A5
H10-VAC
H9-VAC
H8-VAC
H7-VAC
H6-VAC
H5-VAC
H10-BLOW
H9-BLOW
H8-BLOW
H7-BLOW
H6-BLOW
H5-BLOW
01
03
05
07
09
11
02
04
06
08
10
12
13
15
14
16
CN5
H4_VAC
H3_VAC
H2_VAC
H1_VAC
H4_BLOW
H3_BLOW
H2_BLOW
H1_BLOW
B2
B3
B4
A1
A2
A3
A4
B1
B2
B3
B4
A1
A2
A3
A4
B1
6
7
8
1
2
3
4
5
+24V
+24V
24G
24G
+24V
+24V
24G
24G
01
02
03
04
01
02
03
04
01
02
03
04
+24V
+24V
24G
24G
01
02
03
04
01
02
03
04
SACO B/D
CN28
01
02
07
08
13
14
19
20
30
~
CN7
HEAD IF BOARD
01
02
07
08
13
14
19
20
30
~
CN9
SM481 FL002
#10
SM481_CA104
SM481_FL001
#11
SM481_FL002
#11
SM481_FL001
#12
SM481_AX006-1
SM48_SC007
1
2 3
4
5
6
1
7
7