SM481_TechnicalReference(Eng_Ver1[1].1) - 第166页
Page SAMSUNG TECHWIN 156 SM481 Power Block Diagram(5/8) * UPS 사용시만결선 * UPS 사용시결선변경 PE04 PE05 PE03 2 2 2 2 SM33_PW026 TO REAR MONITOR TO FRONT MONIT OR FROM CP1 1L2 1L1 1L1 1L2 AC220V SM48_PW021 SM48_PW022 1L1 1L2 OUTLET …

Page
SAMSUNG TECHWIN
155
SM481
Power Block Diagram(4/8)
NO. Lev. PART NO. PART NAME Q'TY Old No. Supply Supply LT Reference
1 J90831063A MAIN_POWER_CABLE_ASSY SM33-PW001 1 SM41_PW001
2 J90831344B MCCB_NF1-CABLE-ASSY 1 SM41_PW003
3 J90831345A NF1_MAIN SWITCH CABLE ASS'Y 1 SM41_PW004
4 J90831067B MAIN_SWITCH_TB2_CABLE_ASSY 1 SM33_PW005
5 AM03-006872A CABLE ASSY-CP1_TB1 1 SM482_PW007
6 AM03-003859A CABLE ASSY-TRANS_CP1_2 1 SM421_PW106
7 AM03-006873A CABLE ASSY-CP2_TB1-MC1 1 SM48_PW008

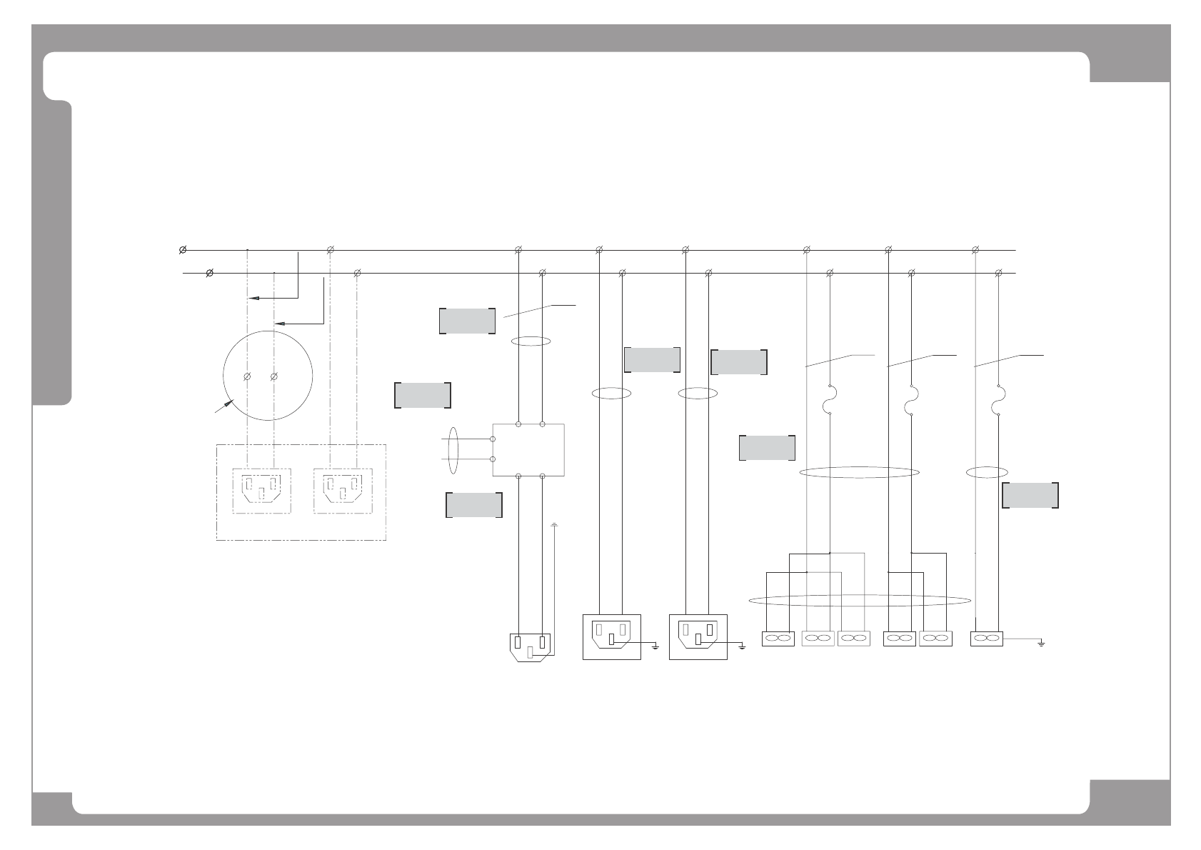
Page
SAMSUNG TECHWIN
156
SM481
Power Block Diagram(5/8)
* UPS사용시만결선
* UPS사용시결선변경
PE04 PE05
PE03
2
2 2 2
SM33_PW026
TO REAR MONITOR TO FRONT MONITOR
FROM CP1
1L2
1L1
1L1 1L2
AC220V
SM48_PW021 SM48_PW022
1L1 1L2
OUTLETINLET
UPS OPTION INSTALL
-UPS
(800VA)
ADDITIONANL
TERMINAL BLOCK
CONTROL BOX
1L1 1L2
1.5mm
912
58
RY 11
SC-CN24
+24V
24G
SM48_PW044
13
14
SM48_PW145
SM48_PW145-1
(PC RACK)
0.75mm
(RIGHT SIDE)
-FAN1
-FUSE5 (AC250V,5A)
-FAN2
0.75mm
1L1 1L2(F3) 1L1
0.75mm
1L1 1L2
-FUSE3 (AC250V,5A)
-FAN3
(LEFT SIDE)
-FAN4
1L1
1L1
1L2(F4)
-FUSE4 (AC250V,5A)
1L2
(SERVO DRIVER RACK)
-FAN5
1L2(F5)
1L21L1
SM-FAN00
SM471_PW112
SM48_PW113
-FUMP
SM-FAN00 SM-FAN00 SM-FAN00 SM-FAN00 SM-FAN00
6A
6C
1A
1C
7A
2A 3A1A1A
6A
1A1A
U1-A
U1-B
U2-A
U2-B
B
AA
B
6D
1B
A
2B
7D
B
8D
3B
8A
1
2
3
4
5
6
7

Page
SAMSUNG TECHWIN
157
SM481
Power Block Diagram(5/8)
NO. Lev. PART NO. PART NAME Q'TY Old No. Supply Supply LT Reference
1 AM03-006903A CABLE ASSY-CONTROL_RACK_PWR 1 SM48_PW145
2 AM03-006963A CABLE ASSY-SACO_+24V_RELAY 1 SM48_PW044
3 AM03-006904A CABLE ASSY-CONTROL_RACK_PWR-EXT 1 SM48_PW145-1
4 AM03-006894A CABLE ASSY-FRONT_MONITOR_PW 1 SM48_PW021
5 AM03-006895A CABLE ASSY-REAR_MONITOR_PW 1 SM48_PW022
6 AM03-005488A CABLE ASSY-FAN_POWER 1 SM471_PW112
7 AM03-006900A CABLE ASSY-SERVO_FAN_POWER 1 SM48_PW113