PTS-XPFL-02JE - 第167页
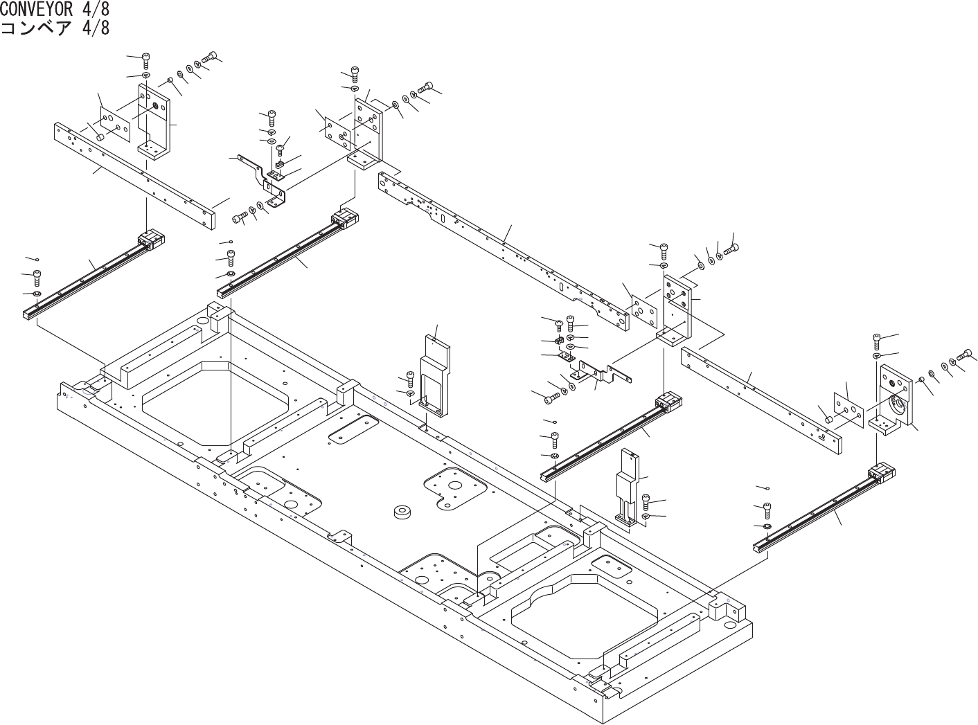
CONVEYOR 4/8 コンベア 4/8 AGGQC9004 No. Drg.No. & Code No. QTY Description Rating Materials Remarks 番号 図番 & コード番号 個 数 品名 規格 材質 備考 1 GGQC0072 1 PLATE プレート FE 2 GGQC2170 2 BLOCK ブロック AL 3 GGQC1940 2 SHEET シート OT 4 GGQ…

A
AA
AA
54
55
56
52
53
51
11
12
13
50
11
47
48
49
43
36
39
40
41
42
37
27
32
33
11
20
19
18
17
31
30
29
28
4
10
9
8
7
5
6
2
3
1
11
12
13
12
13
21
14
15
16
27
26
22
23
24
25
35
34
26
22
12
13
44
45
46
21
38
23
24
25
2
3
10.1
57
57.1
11.1
11.1
11.1
11.1
AGGQC9004
166
PTS-XPFL-02JE

CONVEYOR 4/8
コンベア 4/8 AGGQC9004
No. Drg.No. & Code No. QTY Description Rating Materials Remarks
番号 図番 & コード番号 個数 品名 規格 材質 備考
1 GGQC0072 1 PLATE プレート FE
2 GGQC2170 2 BLOCK ブロック AL
3 GGQC1940 2 SHEET シート OT
4 GGQC2152 1 BKT, CONVEYOR BKT コンベア FE
5 H5290A 2 BOLT, HEX SOCKET ボルト 六角穴 M04X015 FE
6 W1022A 2 WASHER, LOCK ワッシャ スプリング 4M/M FE
7 H5324A 2 BOLT, HEX SOCKET ボルト 六角穴 M06X020 FE
8 W1024A 2 WASHER, LOCK ワッシャ スプリング 6M/M FE
9 W1040W 2 WASHER, FLAT ワッシャ 平 6M/MX1.6X12.5(1W-6)(3カ クロ) FE
10 GGQC2390 2 WASHER, FLAT ワッシャ 平 PL
10.1 GGQC2410 2 COLLAR カラー OT
11 GGQC0742 4 GUIDE, RAIL ガイド レール OT
11.1 K20087 24 CAP キャップ C03 OT
12 H5277A 24 BOLT, HEX SOCKET ボルト 六角穴 M03X012 FE
13 W1010A 24 WASHER, CONICAL ワッシャ 皿 M- 3-L FE
14 GGQC1863 1 BKT, CONVEYOR BKT コンベア FE
15 H5290A 2 BOLT, HEX SOCKET ボルト 六角穴 M04X015 FE
16 W1022A 2 WASHER, LOCK ワッシャ スプリング 4M/M FE
17 H5322A 4 BOLT, HEX SOCKET ボルト 六角穴 M06X015 OT
18 W1024A 4 WASHER, LOCK ワッシャ スプリング 6M/M FE
19 W1040W 4 WASHER, FLAT ワッシャ 平 6M/MX1.6X12.5(1W-6)(3カ クロ) FE
20 GGQC2400 4 WASHER, FLAT ワッシャ 平 PL
21 GGQC1960 2 SHEET シート OT
22 GGQC0281 2 BKT BKT FE
23 H5276A 4 BOLT, HEX SOCKET ボルト 六角穴 M03X010 FE
24 W1021A 4 WASHER, LOCK ワッシャ スプリング 3M/M FE
25 W1042A 4 WASHER, FLAT ワッシャ 平 4W- 3 FE
26 S3125K 2 SW, PHOTOELECTRIC SW 光電 E3T-ST13 OT
27 K5175Y 4 SCREW, C/R PAN 小ネジ 十穴鍋 M02X010 ステンレス FE
28 GGQC0262 1 BKT BKT FE
29 H5275A 2 BOLT, HEX SOCKET ボルト 六角穴 M03X008 FE
30 W1021A 2 WASHER, LOCK ワッシャ スプリング 3M/M FE
31 W1042A 2 WASHER, FLAT ワッシャ 平 4W- 3 FE
32 GGQC1973 1 PLATE プレート FE
33 GGQC1520 1 BLOCK, REFERENCE ブロック 基準 FE
34 H5300A 2 BOLT, HEX SOCKET ボルト 六角穴 M05X015 FE
35 W1023A 2 WASHER, LOCK ワッシャ スプリング 5M/M FE
36 GGQC1883 1 BKT, CONVEYOR BKT コンベア FE
167
PTS-XPFL-02JE

CONVEYOR 4/8
コンベア 4/8 AGGQC9004
No. Drg.No. & Code No. QTY Description Rating Materials Remarks
番号 図番 & コード番号 個数 品名 規格 材質 備考
37 H5290A 2 BOLT, HEX SOCKET ボルト 六角穴 M04X015 FE
38 W1022A 2 WASHER, LOCK ワッシャ スプリング 4M/M FE
39 H5322A 4 BOLT, HEX SOCKET ボルト 六角穴 M06X015 OT
40 W1024A 4 WASHER, LOCK ワッシャ スプリング 6M/M FE
41 W1040W 4 WASHER, FLAT ワッシャ 平 6M/MX1.6X12.5(1W-6)(3カ クロ) FE
42 GGQC2400 2 WASHER, FLAT ワッシャ 平 PL
43 GGQC0271 1 BKT BKT FE
44 H5275A 2 BOLT, HEX SOCKET ボルト 六角穴 M03X008 FE
45 W1021A 2 WASHER, LOCK ワッシャ スプリング 3M/M FE
46 W1042A 2 WASHER, FLAT ワッシャ 平 4W- 3 FE
47 GGQC1371 1 BLOCK, REFERENCE ブロック 基準 FE
48 H5300A 2 BOLT, HEX SOCKET ボルト 六角穴 M05X015 FE
49 W1023A 2 WASHER, LOCK ワッシャ スプリング 5M/M FE
50 GGQC0092 1 PLATE プレート FE
51 GGQC2162 1 BKT, CONVEYOR BKT コンベア FE
52 H5290A 2 BOLT, HEX SOCKET ボルト 六角穴 M04X015 FE
53 W1022A 2 WASHER, LOCK ワッシャ スプリング 4M/M FE
54 H5324A 2 BOLT, HEX SOCKET ボルト 六角穴 M06X020 FE
55 W1024A 2 WASHER, LOCK ワッシャ スプリング 6M/M FE
56 W1040W 2 WASHER, FLAT ワッシャ 平 6M/MX1.6X12.5(1W-6)(3カ クロ) FE
57 GGQC2390 2 WASHER, FLAT ワッシャ 平 PL
57.1 GGQC2410 2 COLLAR カラー OT
168
PTS-XPFL-02JE