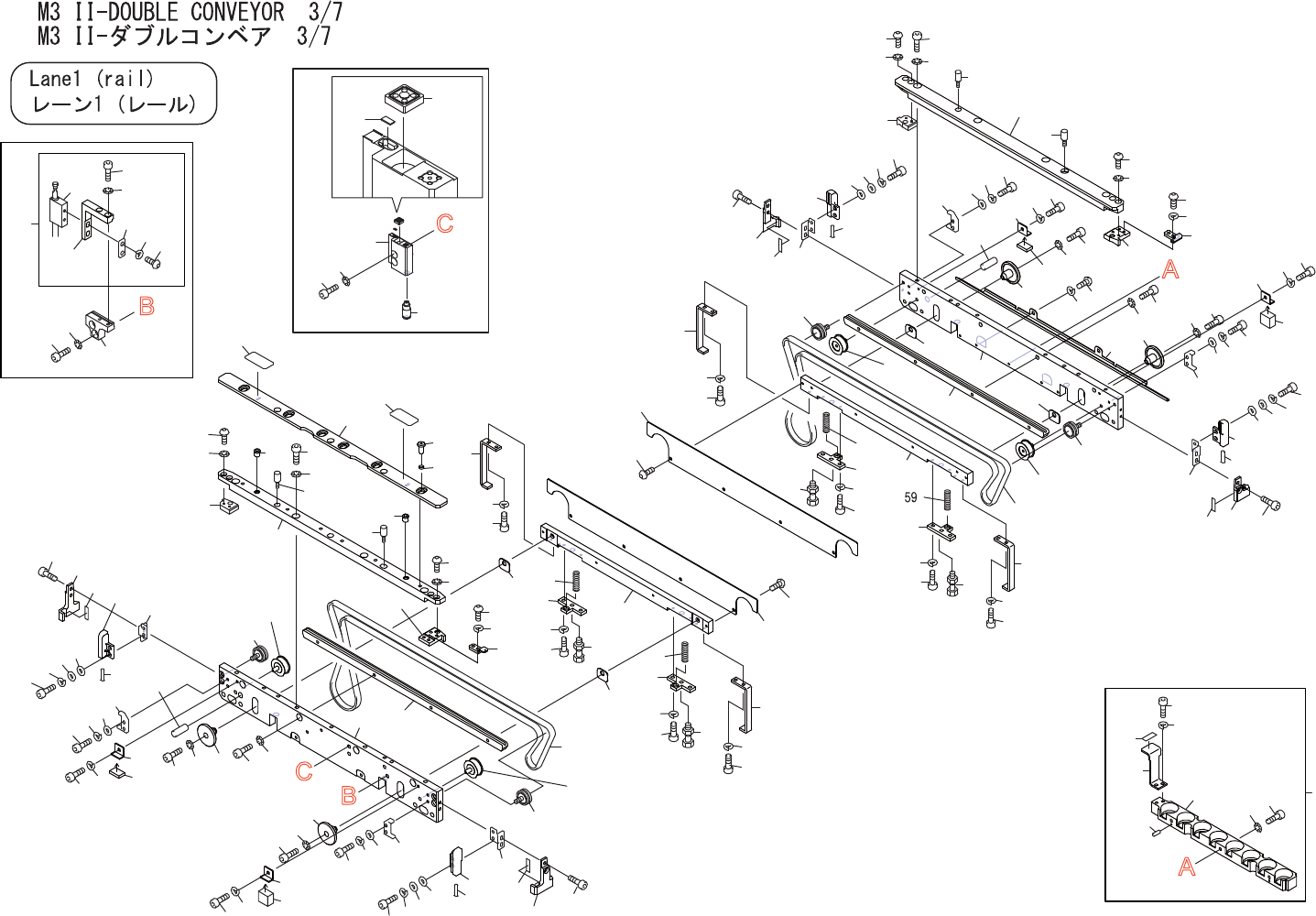
PTS-NXT2-06JE.pdf - 第639页
M3II-DOUBLECONVEYOR3/7 M3II-ダブルコンベア3/7 UQ04217 No. Dr g .No.&CodeNo. QTY Descri p tion Ratin g Materials Remarks 番号 図番 &コー ド番号 個数 品名 規 格 材質 備考 1 PM052G9 1 PLATE,RETAINING プ レー ト 押 え FE 2 PM0KDA1 6 B…

B
B
A
A
C
C
4
4
2
3
1
5
6
7
8
9
10
11.1
13
12
13
12
10
9
44
18
21
33
74
75
76
73
74
75
76
73
73
34
31
42
45
46
33
34
31
35
38
55
56
57
56
57
59
59
48
55
35
74
75
76
73
74
75
76
11
52
53
51
31
33
34
45
46
43
8.1
44
31
33
34
18
48
55
56
57
59
55
57
56
4
68
68
96
97
95
58
58
62
63
65
62
63
61
4
15
15
41
39
22
24
98
100
99
101
102
36
37
19
20
40
23
58
58
62
63
61
62
63
61
70
71
69
70
71
69
70
71
69
70
71
69
32
32
32
32
80
81
79
77
78.1
78.2
78
78.1
78.2
86
87
88
89
90
91
92
93
85
69.2
69.1
69.1
69.2
105
5.1
51.1
95.1
111
112
110
115
118
116
110.1
47
47
16
17
17
16
16
17
17
16
27
28
29
25
29
25
27
28
29
29
27
28
29
29
27
28
29
29
49
50
49
50
14
14
103
104
26
26
26
26
25
25
16.1
16.1
16.1
16.1
47.1
47.1
UQ04217
262
PTS-NXT2-06JE
Vol.2

M3II-DOUBLECONVEYOR3/7
M3II-ダブルコンベア3/7
UQ04217
No. Dr
g
.No.&CodeNo. QTY Descri
p
tion Ratin
g
Materials Remarks
番号 図番&コード番号 個数 品名
規
格 材質 備考
1 PM052G9 1 PLATE,RETAINING
プ
レート 押え FE
2 PM0KDA1 6 BOLT ボルト FE
3 PM07KC1 6 COLLAR カラー FE
4 PM23705 5 PIN,REFERENCE ピン 基準 FE
5 PM085L5 1 RAIL レール FE
5.1 PM09WC3 1 RAIL レール FE Thin
p
anelo
p
tion
6 H5289A 4 BOLT,HEXSOCKET ボルト 六角穴 M04X012 FE
7 W1011A 4 WASHER,CONICAL ワッシャ 皿 M-4-L FE
8 PT01224 1 GUIDE ガイド FE
8.1 PT01233 1 GUIDE ガイド FE
9 K5255T 4 SCREW,HEXSOCKETBUTTON 小ネジ 六角穴ボタン M03X006 FE
10 W1010A 4 WASHER,CONICAL ワッシャ 皿 M-3-L FE
11 PT01213 1 GUIDE ガイド FE
11.1 PT01243 1 GUIDE ガイド FE
12 K5255T 4 SCREW,HEXSOCKETBUTTON 小ネジ 六角穴ボタン M03X006 FE
13 W1010A 4 WASHER,CONICAL ワッシャ 皿 M-3-L FE
14 H3170B 2 PLUNGER,BALL
プ
ランジャ ボール SBP-4 OT
15 PZ14131 2 SEAL シール PL
16 AA9EZ00 4 PULLEY
プ
ーリ OT
16.1 AB07600 4 PULLEY
プ
ーリ OT Thin
p
anelo
p
tion
17 ADBPP8012 4 PULLEY
プ
ーリ OT
18 PM92402 2 BKT,SENSOR BKTセンサ FE
19 PM05AE2 1 GUIDE ガイド FE
20 PS03151 1 SHEET シート OT ConsumableParts
21 H60284 2 BOLT,HEXSOCKET ボルト 六角穴 M03×008テイトウ(LH0308) FE
22 PM05AH2 1 GUIDE ガイド FE
23 PS03151 1 SHEET シート OT ConsumableParts
24 H60284 2 BOLT,HEXSOCKET ボルト 六角穴 M03×008テイトウ(LH0308) FE
25 XS03503 2 SENSOR,FIBER センサ ファイバ OT SET
26 PZ37622 4 TUBE チュー
ブ
OT
27 H5274A 8 BOLT,HEXSOCKET ボルト 六角穴 M03X006 FE
28 W1021A 8 WASHER,LOCK ワッシャ ス
プ
リン
グ
3M
/
M FE
29 W1041F 16 WASHER,FLAT ワッシャ 平 ゚3X6コガタヒラザガネ FE
31 PM05AC1 4 GUIDE ガイド FE
32 PP02472 4 SPACER スペーサ FE
33 H5277A 4 BOLT,HEXSOCKET ボルト 六角穴 M03X012 FE
34 W1010A 4 WASHER,CONICAL ワッシャ 皿 M-3-L FE
35 PM92392 2 BKT,SENSOR BKTセンサ FE
36 PM05AF2 1 GUIDE ガイド FE
37 PS03151 1 SHEET シート OT ConsumableParts
38 H60284 2 BOLT,HEXSOCKET ボルト 六角穴 M03×008テイトウ(LH0308) FE
39 PM05AG2 1 GUIDE ガイド FE
40 PS03151 1 SHEET シート OT ConsumableParts
41 H60284 2 BOLT,HEXSOCKET ボルト 六角穴 M03×008テイトウ(LH0308) FE
42 PM050M6 1 PLATE
プ
レート FE
43 PM050N2 1 PLATE
プ
レート FE
44 PM059W1 2 GUIDE,BELT ガイド ベルト AL
45 H5288A 8 BOLT,HEXSOCKET ボルト 六角穴 M04X010 FE
46 W1011A 8 WASHER,CONICAL ワッシャ 皿 M-4-L FE
47 XB04160 2 CONVEYOR,BELT コンベア ベルト OT ConsumableParts
47.1 XB04210 2 CONVEYOR,BELT コンベア ベルト OT Thin
p
anelo
p
tion,ConsumableParts
263
PTS-NXT2-06JE
Vol.2

M3II-DOUBLECONVEYOR3/7
M3II-ダブルコンベア3/7
UQ04217
No. Dr
g
.No.&CodeNo. QTY Descri
p
tion Ratin
g
Materials Remarks
番号 図番&コード番号 個数 品名
規
格 材質 備考
48 PM059T4 2 PLATE,GUIDE
プ
レート ガイド FE
49 PM0FNY0 2 PLATE,CLAMPING
プ
レート クラン
プ
FE
50 K5255A 8 SCREW,HEXSOCKETBUTTON 小ネジ 六角穴ボタン M03X004 FE
51 PM085N3 1 RAIL レール FE
51.1 PM09WD2 1 RAIL レール FE Thin
p
anelo
p
tion
52 H5289A 4 BOLT,HEXSOCKET ボルト 六角穴 M04X012 FE
53 W1011A 4 WASHER,CONICAL ワッシャ 皿 M-4-L FE
55 PM05AD2 4 PLATE
プ
レート FE
56 H5275A 8 BOLT,HEXSOCKET ボルト 六角穴 M03X008 FE
57 W1021A 8 WASHER,LOCK ワッシャ ス
プ
リン
グ
3M
/
M FE
58 H55037 4 BOLT ボルト PSST4-15 FE ConsumableParts
59 PZ14451 4 SPRING ス
プ
リン
グ
FE
61 PB90253 4 HOOK フック FE
62 H5275A 8 BOLT,HEXSOCKET ボルト 六角穴 M03X008 FE
63 W1021A 8 WASHER,LOCK ワッシャ ス
プ
リン
グ
3M
/
M FE
68 H2014R 2 PIN ピン MSIP6-10 OT
69 PB90502 4 BKT BKT FE
69.1 PS03132 2 SHEET シート OT ConsumableParts
69.2 PS03142 2 SHEET シート OT ConsumableParts
70 H5274A 4 BOLT,HEXSOCKET ボルト 六角穴 M03X006 FE
71 W1021A 4 WASHER,LOCK ワッシャ ス
プ
リン
グ
3M
/
M FE
73 PM97051 4 BLOCK,LOCATING
ブ
ロック 位置決め FE
74 H5275A 8 BOLT,HEXSOCKET ボルト 六角穴 M03X008 FE
75 W1021A 8 WASHER,LOCK ワッシャ ス
プ
リン
グ
3M
/
M FE
76 W1041F 8 WASHER,FLAT ワッシャ 平 ゚3X6コガタヒラザガネ FE
77 PT01921 1 PLATE,REFERENCE
プ
レート 基準 FE
78 PT01931 1 PLATE,REFERENCE
プ
レート 基準 FE
78.1 K5255T 4 SCREW,HEXSOCKETBUTTON 小ネジ 六角穴ボタン M03X006 FE
78.2 W1021A 4 WASHER,LOCK ワッシャ ス
プ
リン
グ
3M
/
M FE
79 PP02490 1 COVER,WIRING カバー 配線 FE
80 K5255A 2 SCREW,HEXSOCKETBUTTON 小ネジ 六角穴ボタン M03X004 FE
81 W1021A 2 WASHER,LOCK ワッシャ ス
プ
リン
グ
3M
/
M FE
85 AA61R03 1 HOLDER,PIN ホルダ ピン OT
86 AA61N04 1 HOLDER,PIN ホルダ ピン OT
87 H5280A 3 BOLT,HEXSOCKET ボルト 六角穴 M03X020 FE
88 W1010A 3 WASHER,CONICAL ワッシャ 皿 M-3-L FE
89 PB91002 1 BKT BKT FE
90 H5274A 2 BOLT,HEXSOCKET ボルト 六角穴 M03X006 FE
91 W1021A 2 WASHER,LOCK ワッシャ ス
プ
リン
グ
3M
/
M FE
92 H21924 2 PIN,PARALLEL ピン 平行 ゚2X5AシュSUS OT
93 PX07522 1 SEAL,BARCODE シール バーコード PL unitserialnumber
95 PM057F1 1 BKT,SENSOR BKTセンサ FE
95.1 PM09WG0 1 BKT,SENSOR BKTセンサ FE Thin
p
anelo
p
tion
96 H5288A 2 BOLT,HEXSOCKET ボルト 六角穴 M04X010 FE
97 W1011A 2 WASHER,CONICAL ワッシャ 皿 M-4-L FE
98 PM057E1 1 BKT,SENSOR BKTセンサ FE
99 PB12714 1 WASHER ワッシャ FE
100 XS01247 1 SENSOR,TOUCH センサ タッチ OT
101 K5257H 2 SCREW,HEXSOCKETBUTTON 小ネジ 六角穴ボタン M04X012 FE
102 W1022A 2 WASHER,LOCK ワッシャ ス
プ
リン
グ
4M
/
M FE
103 H5275A 2 BOLT,HEXSOCKET ボルト 六角穴 M03X008 FE
264
PTS-NXT2-06JE
Vol.2