CM212规格说明书 - 第56页
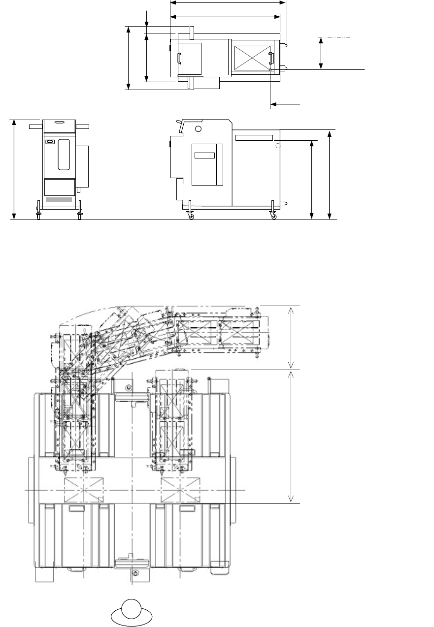
CM212-M 2005.1201 - 50 - ■ 直接托盘式供料器 DT40S-20 ( 选购件 ) 外形尺寸 ( 单体 ) ( 单位 : mm) 外形尺寸 ( 连接时 ) ※ 1 托盘供给面的高度 888 mm 是 CM212-M 的基板搬送高度为 900 mm 时的标准值。 其可调整范围为 888 mm 。 ※ 2 400 mm × 250 mm 尺寸的基板中心位置。 +139.5 -16.5 317 203 基板中心 ※ 2 …

CM212-M 2005.1201
- 49 -
※交换整体交换台车
(
选购件
)
时,需要的最小限空间。
设置机器时请注意。
(
单位
: mm)
※整体交换台车(选购件)设置范围的地面倾斜度,必须在台车的左右方向
6 mm
以下、前方向
4mm
以下、后方向
11 mm
以下。若地面的倾斜超过此范围时,整体交换台车的搬入无法进行。
955
4 400
651
操作员侧

CM212-M 2005.1201
- 50 -
■ 直接托盘式供料器
DT40S-20 (
选购件
)
外形尺寸
(
单体
)
(
单位
: mm)
外形尺寸
(
连接时
)
※
1
托盘供给面的高度
888 mm
是
CM212-M
的基板搬送高度为
900 mm
时的标准值。
其可调整范围为
888
mm
。
※
2
400 mm × 250 mm
尺寸的基板中心位置。
+139.5
-16.5
317
203
基板中心※2
908
888 (托盘供给面) ※1
986
1 050
517
414
51
(自基板中心※2)
1 097
1 385
647
操作员侧
※在维护作业时因为有拉出托
盘式供料器的情况,设置时请
确保左示尺寸。

本资料所记载的商品
(
或技术
)
如果符合外汇,或国际贸易法所规定的
限制货物
(
或限制技术
)
,从日本出口
(
或提供技术
)
时,需按照本条例
获得出口许可
(
或劳务交易许可
)
。
441-13 Nagahasu, Tateishi-machi, Tosu-city, Saga 841-8585, Japan
TEL (0942) 84 – 2644
~
46
FAX (0942)84 – 2636
※
本规格说明书是使用再生纸印制而成。