OM-1605-008w_GT-28x - 第212页
OM-1605 10-2 10. 電気回路 10.2 フィーダ制御回路図(GT-12162) 0906-002 -(M804WG---1001)

OM-1605
10-1
10. 電気回路
0906-002 A(M804WW---3001)
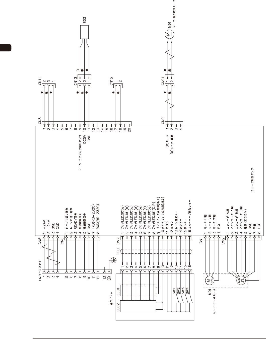
10.電気回路
10.1 フィーダ制御回路図
(GT-28080/GT-28082)

OM-1605
10-2
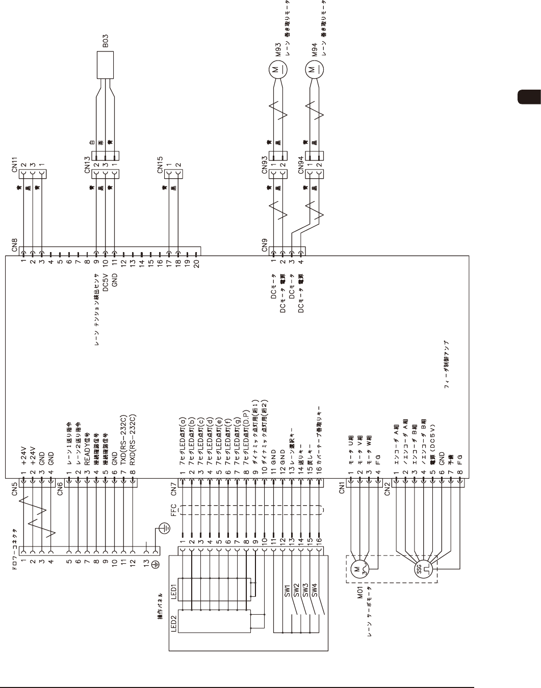
10. 電気回路
10.2 フィーダ制御回路図(GT-12162)
0906-002 -(M804WG---1001)

OM-1605
10-3
10. 電気回路
1002-003 B(M804WP---0001)
10.3 フィーダ制御回路図
(GT-24322/GT-44562/GT-72002/GT-88002)