OM-1605-008w_GT-28x - 第216页
OM-1605 10-6 10. 電気回路 10.6 フィーダ制御回路図(GD-12162) 0906-002 -(M804WG---2001)

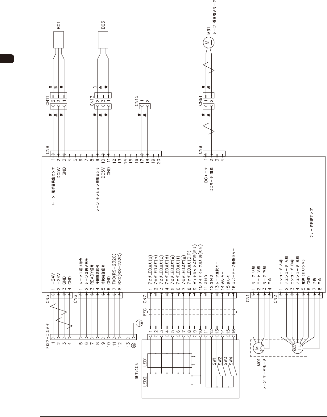
OM-1605
10-5
10. 電気回路
10.5 フィーダ制御回路図(GD-28081/GD-28083)
0906-002 -(M926WM---0001)

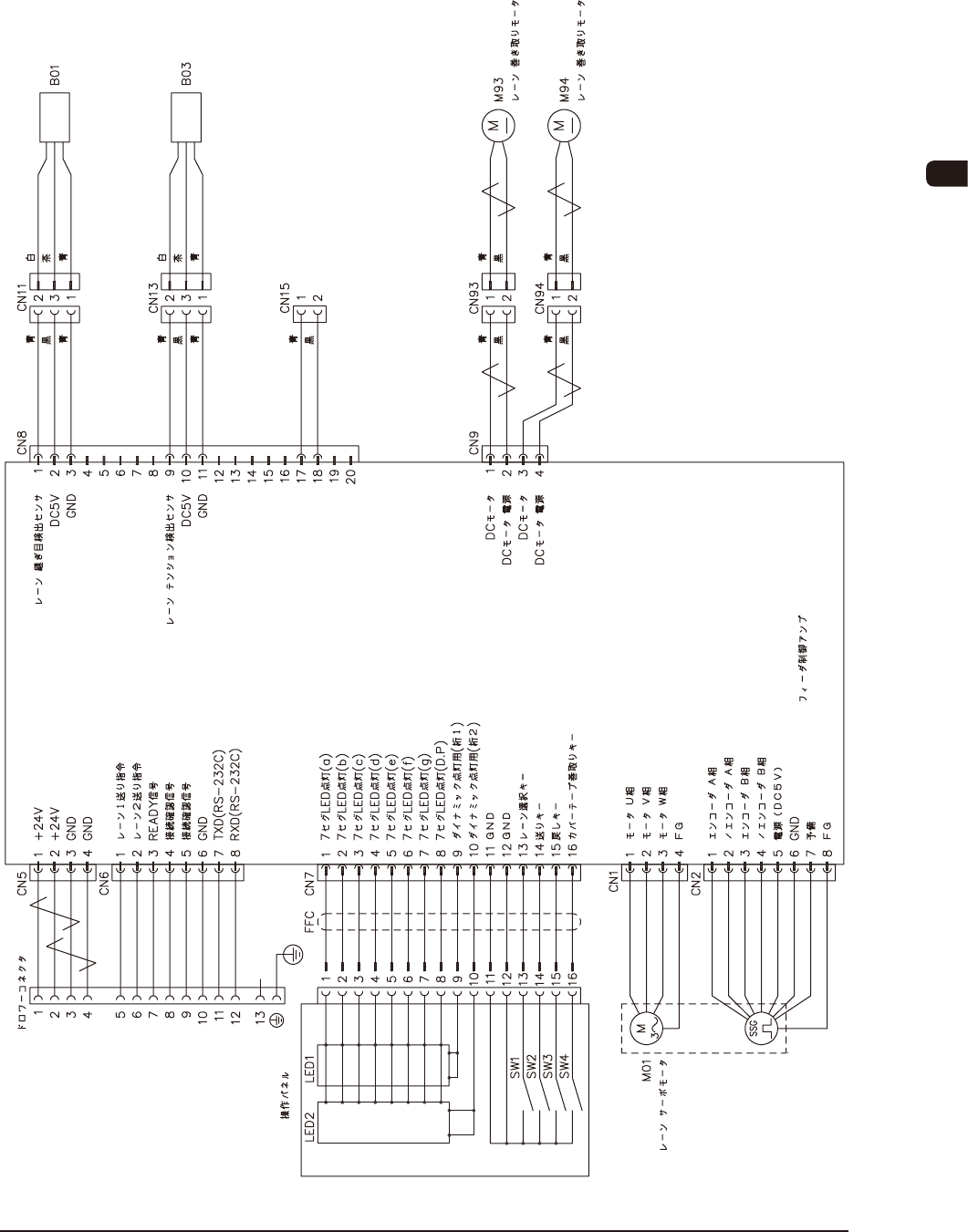
OM-1605
10-6
10. 電気回路
10.6 フィーダ制御回路図(GD-12162)
0906-002 -(M804WG---2001)

OM-1605
10-7
10. 電気回路
10.7 フィーダ制御回路図
(GD-24322/GD-44562/GD-72002/GD-88002)
1011-003 -(M804WP---1001)