CM602 Parts List - 第41页
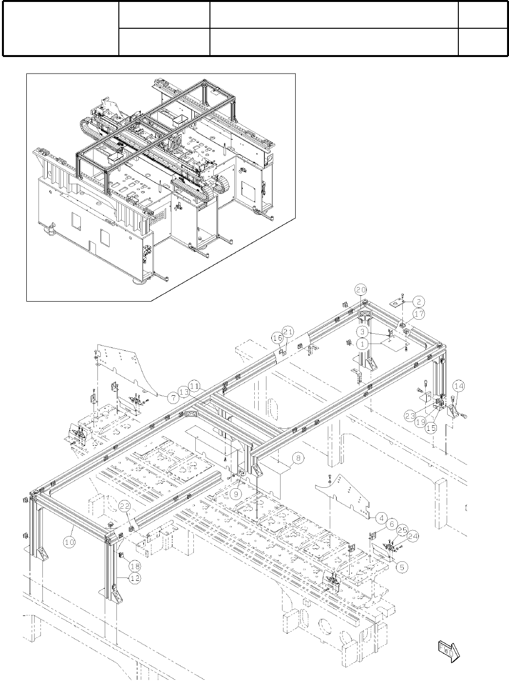
Ref No. Remark s R 1 Q'ty 1-H 本 体部 Mai n Bo dy イラスト No. Part No. 品 名 品番 数量 R 2 パーツリスト Kit N o . キット品 番 Kit Name キット名称 N610040204AA Part Name 備 考 セクションNo. PARTS LIST Section No. R 3 BRACKET 1 1 N210028681AA BOTTLE 1 …

1-H
本
体部
Main Body
パーツレイアウト
Ki
t
N
o
.
キット
品番
Kit Name
キット名称
N610040204AA
セクションNo.
PARTS LAYOUT
Section No.
M15

Ref
No.
Remarks
R
1
Q'ty
1-H
本
体部
Main Body
イラスト
No.
Part No.
品 名品番 数量
R
2
パーツリスト
Kit N
o
.
キット品
番
Kit Name
キット名称
N610040204AA
Part Name
備 考
セクションNo.
PARTS LIST
Section No.
R
3
BRACKET
1
1 N210028681AA
BOTTLE
1
2 KXF07M8AA00 5-010-03
JOINT
1
3 KXF07G7AA00 No.392 LC-3/8
NIPPLE
2
4 KXF0568AA00 Nipple 3/8
VALVE
1
5 N510036414AA 600RP-LL 3/8
HOSE
1
6 N510002541AA OUA8X12-5M-03B
PRESSURE-SW
1
7 KXFX03EHA00
REGULATOR
1
8 N510010273AA AWM40-03BD-R-X2108
VALVE
1
9 KXFX061NA00
S
JOINT
1
10 KXF08SVAA00 KQL10-99
SW
1
11 KXF0DWVZA00 ISE30-01-25-M-X114
JOINT
1
12 KXF0CS5AA00 KQE04-01
PLATE
1
13 KXF0DU5AA00 VP500-2-2P
JOINT
1
14 KXF02BAAA00 KQH08-03S
SILENCER
1
15 KXF00WGAA00 AN303-03
NIPPLE
2
16 KXF0568AA00 Nipple 3/8
TEES
1
17 KXF054JAA00 Cheese 3/8
VALVE
1
18 KXF0DYX0A00 30-VP544-1D-A
M16

1-I
本
体部
Main Body
パーツレイアウト
Ki
t
N
o
.
キット
品番
Kit Name
キット名称
N610040204AA
セクションNo.
PARTS LAYOUT
Section No.
M17