N7205A119B - 第291页
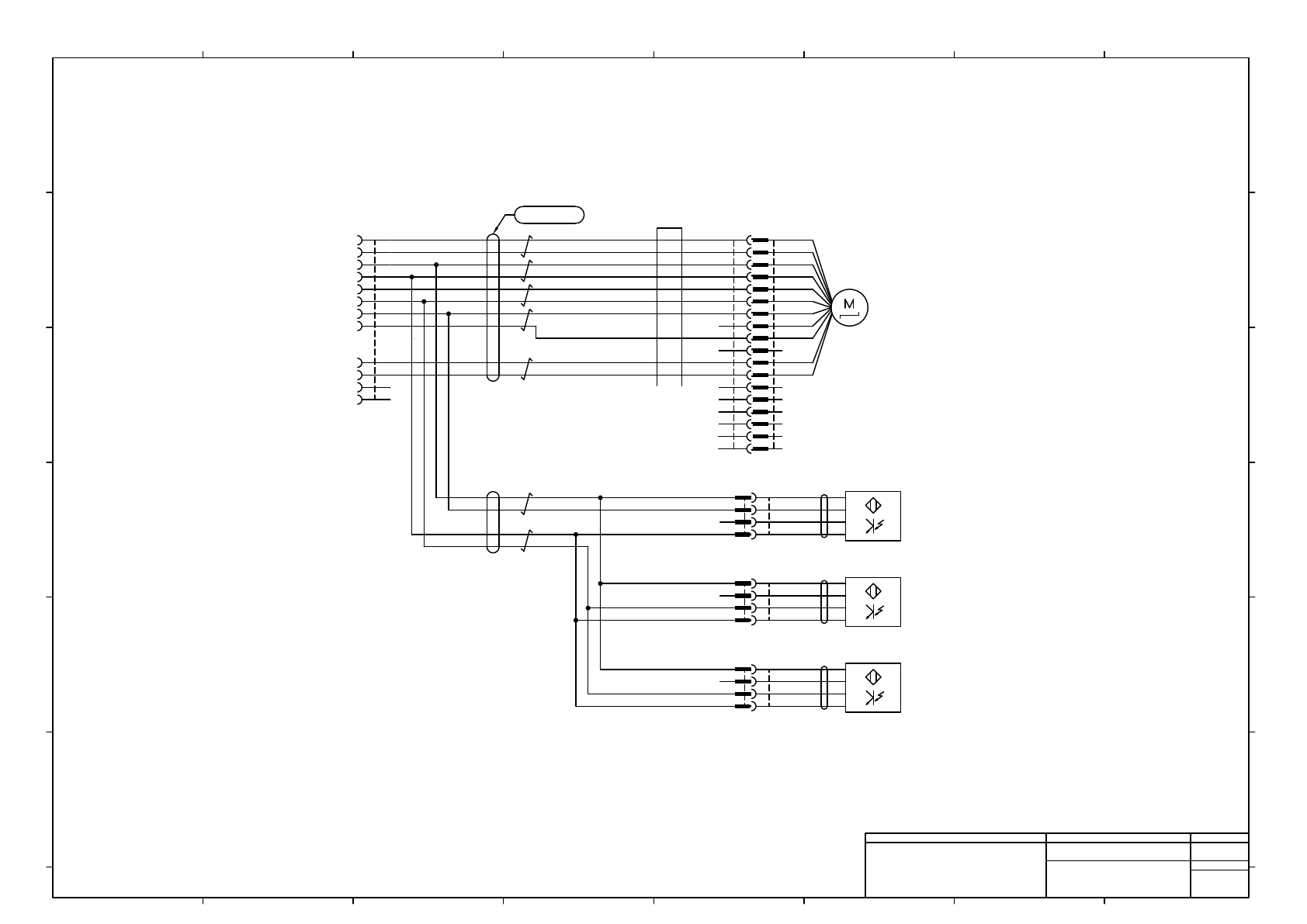
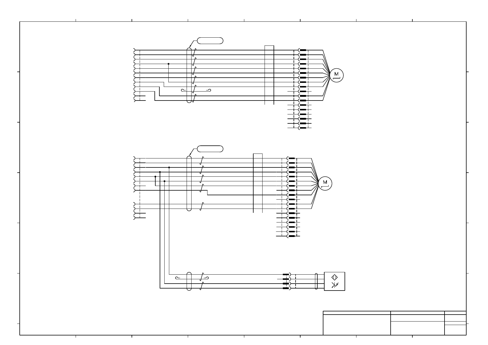
→ P003 - 1M652P → P003 - 1M656P L2(4) conveyor motor 12 11 10 9 8 7 177905-1 1M652R 6 5 4 3 2 1 4 6 14 3 2 1 13 12 8 7 5 PHDR-18VS M652R 1 2 3 14 6 4 5 7 8 9 12 13 10 11 15 16 17 18 -M652 10 11 15 16 17 18 9 YE YE/WH BN …

→ P004 - 1M623P
L1(1)
Width Adjustment axis
+OVR (= Single mode ORG)
L1(1)
Width Adjustment axis
ORG (= Dual mode ORG)
-B1F00
BN
BK
WH
BU
L1(1) Width Adjustment axis motor
-B1F01
BN
BK
WH
BU
1
2
3
14
6
4
5
7
8
9
12
13
10
11
15
16
17
18
-M623
4
B1F01R
177900-1
3
2
1
4
B1F00R
177900-1
3
2
1
L1(1) Single mode detection
-B1F02
BN
BK
WH
BU
4
B1F02R
177900-1
3
2
1
※Attention)
P24(M)
GND(M)
P24(C)
GND(C)
-LS
ORG
+LS
EMG
DATA+
DATA-
CW/CCW
BUSY
NC
OUTPUT COM
NC
NC
NC
NC
※Attention)
P24(M)
G24(M)
P24(C)
G24(C)
G24(C)
D+MAIN
D-MAIN
EMG_OUT20
1
2
3
1M623R
177905-1
4
5
6
7
8
9
10
11
12
4
B1F01P
177908-1
3
2
1
4
B1F00P
177908-1
3
2
1
16
15
11
10
13
12
9
8
7
5
4
6
14
M623R
PHDR-18VS
3
2
1
18
17
4
B1F02P
177908-1
3
2
1
BN/WH
BN
YE/WH
YE
GN/WH
GN
BK/WH
BK
RD/WH
RD
BK/WH
BK
RD/WH
RD
2464-1061/ⅡA(PF) LF 2P×24AWG
2464-1061/ⅡA(PF) LF 5P×24AWG
N610126555AA
SEIWA
E04SR200932
Panasonic Factory Solutions Co.,Ltd. パナソニック ファクトリーソリューションズ株式会社
Name
Drawing No.
Loc. No.
F4K1020-05A
1 2 3 4 5 6 7 8
A
B
C
D
E
F
1 2 3 4 5 6 7 8
A
B
C
D
E
F
Page. No.
Flex Conveyor ST R Control:NPM-D
(L2(4) conveyor motor)
N610126534+005AA
P005
UL1007 24AWG BU BU
UL1007 24AWG BU BU
UL1007 24AWG BU BU
UL1007 24AWG BU BU
UL1007 24AWG BU BU

→ P003 - 1M652P
→ P003 - 1M656P
L2(4)
conveyor motor
12
11
10
9
8
7
177905-1
1M652R
6
5
4
3
2
1
4
6
14
3
2
1
13
12
8
7
5
PHDR-18VS
M652R
1
2
3
14
6
4
5
7
8
9
12
13
10
11
15
16
17
18
-M652
10
11
15
16
17
18
9
YE
YE/WH
BN
BN/WH
BU
BK
BK/WH
RD
RD/WH
GN
GN/WH
BU/WH
P24(M)
GND(M)
P24(C)
GND(C)
Reverce
Start/Stop
SPD H/L
EMG
DATA+
DATA-
CW/CCW
N610126556AA
2464-1061/ⅡA(PF) LF 6P×24AWG
BUSY
OUT1
NC
NC
NC
NC
OUTPUT COM
L2(4) Width Adjustment axis
ORG (Dual mode)
L2(4) Width Adjustment axis motor
-B1J01
BN
BK
WH
BU
1
2
3
14
6
4
5
7
8
9
12
13
10
11
15
16
17
18
-M656
4
B1J01R
177900-1
3
2
1
P24(M)
GND(M)
P24(C)
GND(C)
-LS
ORG
+LS
EMG
DATA+
DATA-
CW/CCW
BUSY
NC
OUTPUT COM
NC
NC
NC
NC
P24(M)
G24(M)
P24(C)
G24(C)
S-REV31
OUT121
S-SPD31
D+SUB
D-SUB
EMG_OUT10
P24(M)
G24(M)
P24(C)
G24(C)
G24(C)
EMG_OUT20
D+SUB
D-SUB
SEIWA
E04SR200932
4
B1J01P
177908-1
3
2
1
16
15
11
10
13
12
9
8
7
5
4
6
14
M656R
PHDR-18VS
3
2
1
18
17
BN/WH
BN
YE/WH
YE
GN/WH
GN
BK/WH
BK
RD/WH
RD
1
2
3
1M656R
177905-1
4
5
6
7
8
9
10
11
12
BK/WH
BK
RD/WH
RD
2464-1061/ⅡA(PF) LF 2P×24AWG
2464-1061/ⅡA(PF) LF 5P×24AWG
N610126557AA
SEIWA
E04SR200932
Panasonic Factory Solutions Co.,Ltd. パナソニック ファクトリーソリューションズ株式会社
Name
Drawing No.
Loc. No.
F4K1020-05A
1 2 3 4 5 6 7 8
A
B
C
D
E
F
1 2 3 4 5 6 7 8
A
B
C
D
E
F
Page. No.
Flex Conveyor ST R Control:NPM-D
(L2(4) Width adjusting motor)
N610126534+006AA
P006

→ P003 - 2B1114P
→ P008 - B1021R
P24
OUT
IN
GND
1
2
3
4
-B1114
1
2
3
4
PAP-04V-S
B1114
L1(1) Board stop sensor 2
L2(4) Board stop sensor 1
L2(4) Board stop sensor 2
6
5
4
1B1114R
177901-1
3
2
1
6
5
4
1B1116R
177901-1
3
2
1
P24
OUT
IN
GND
1
2
3
4
-B1012
1
2
3
4
PAP-04V-S
B1012
L1(1) Board stop sensor 1
P24
OUT
IN
GND
1
2
3
4
-B1116
1
2
3
4
PAP-04V-S
B1116
P24
OUT
IN
GND
1
2
3
4
-B1107
1
2
3
4
PAP-04V-S
B1107
YE/WH
YE
GN/WH
GN
BK/WH
BK
RD/WH
RD
2464-1061/ⅡA(PF) LF 4PX24AWG
N610126559AA
YE/WH
YE
GN/WH
GN
BK/WH
BK
RD/WH
RD
2464-1061/ⅡA(PF) LF 4PX24AWG
N610126560AA
6
5
4
1B1114P
177909-1
3
2
1
6
5
4
1B1116P
177909-1
3
2
1
9
8
7
6
5
4
2B1114R
177903-1
3
2
1
4
3
2
1
177908-1
B1021P
YE/WH
YE
GN
BK/WH
BK
RD/WH
RD
GN/WH
BN
2464-1061/ⅡA(PF) LF 5P×24AWG
BN/WH
N610126558AB
IN114
IN116
OUT106
P24
G24
R_OPEN
IN012
OUT113
IN107
Panasonic Factory Solutions Co.,Ltd. パナソニック ファクトリーソリューションズ株式会社
Name
Drawing No.
Loc. No.
F4K1020-05A
1 2 3 4 5 6 7 8
A
B
C
D
E
F
1 2 3 4 5 6 7 8
A
B
C
D
E
F
Page. No.
Flex Conveyor ST R Control:NPM-D
(Sensor wiring)
N610126534+007AB
P007
UL1007 24AWG BU BU
UL1007 24AWG BU BU
UL1007 24AWG BU BU
UL1007 24AWG BU BU
UL1007 24AWG BU BU