7OM-1625-004_w - 第42页
7OM-1603 Chapter 1 : 1. Outline 1-1 1 102-003 1. Outline 1.1 What is Multi-Layer T ray Feeder? This unit consists of the JEDEC / FULL size traverse cart and cutter unit and elevator unit and is used to supply the tray co…

7OM-1603
0908-001 1-B

7OM-1603
Chapter 1 : 1. Outline
1-11102-003
1. Outline
1.1 What is Multi-Layer Tray Feeder?
This unit consists of the JEDEC / FULL size traverse cart and cutter unit and
elevator unit and is used to supply the tray components to be setup on the elevator
unit to the "chip mounter SIGMA-G4/G5"
1.2 Specications
noitpircseDmetI
1. Model Name GS-FP100 : JEDEC Size Multi-Layer Tray Feeder
GS-FP200 : FULL Size Multi-Layer Tray Feeder
2. Construction of
Device
• JEDEC / FULL Size Traverse Cart
• Cutter Unit
• Elevator Unit
• Magazine (GS-MG100) : 2 pieces / Elevator Unit
For 15 Steps pf Pallet (Total Component Thickness 8 mm or less)
• Pallet (GS-MP100) : 15 Pieces / Magazine
Notes : (a) The magazine (GS-MG100) is dedicated to the multi-layer
tray feeder for SIGMA-G4/G5.
The use of the magazine (MG-G110/115) for GXH-1/3 is not
available.
(b) The pallet (GS-MP100) is dedicated to the multi-layer
tray feeder for SIGMA-G4/G5.
The use of the pallet (MP-G100) for GXH-1/3 is not available.
• Tray Fixing Magnet (GS-MF100) : 30 Pieces / Magazine
T7A1

7OM-1603
1-2
Chapter 1 : 1. Outline
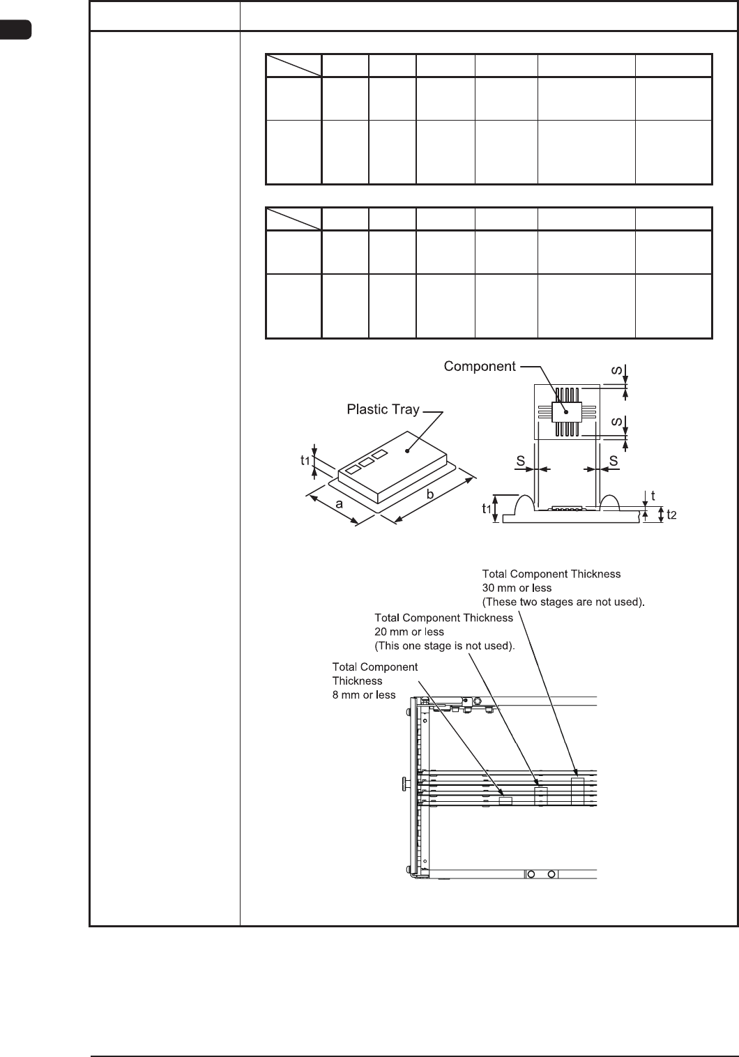
Item Description
3. Applicable Tray
JEDEC Size Multi-Layer Tray Feeder (GS-FP100)
a b t1 t2 S (Leeway) Mass
Min. 100 100 3 3
Note f
- -
Max. 136 323 30
Note a
Note e
30
Note a
Note e
-
Note b
2 kg
Note c
FULL Size Multi-Layer Tray Feeder (GS-FP200)
a b T1 t2 S (Leeway) Mass
Min. 100 100 3 3
Note f
- -
Max. 230 330 30
Note a
Note e
30
Note a
Note e
-
Note b
2 kg
Note c
Unit : mm
Unit : mm
T7A2
1003-002