NPM-W2 20170725 - 第229页
Ref No. Remarks R 1 Q'ty 5-A 延長コンベ ア(シングル ):NPM- W2 Extension C onveyor(Single):NPM -W 2 イラスト No. Part No. 品 名 品 番 数量 R 2 パーツリスト Kit No. キット品番 Kit Name キット名称 MTKA001466AA Part Nam e 備 考 セク ショ ンNo . PARTS LIST Sectio…

5-A
延長コンベア(シングル):NPM-W2
Extension Conveyor(Single):NPM-W2
パーツレイアウト
Kit No.
キット品番
Kit Name
キット名称
MTKA001466AA
セクションNo.
PARTS LAYOUT
Section No.
--
O23
( KMTKA001466AA-04-1 )

Ref
No.
Remarks R
1
Q'ty
5-A
延長コンベア(シングル):NPM-W2
Extension Conveyor(Single):NPM-W2
イラスト
No.
Part No.
品 名品 番 数量
R
2
パーツリスト
Kit No.
キット品番
Kit Name
キット名称
MTKA001466AA
Part Name
備 考
セクションNo.
PARTS LIST
Section No.
R
3
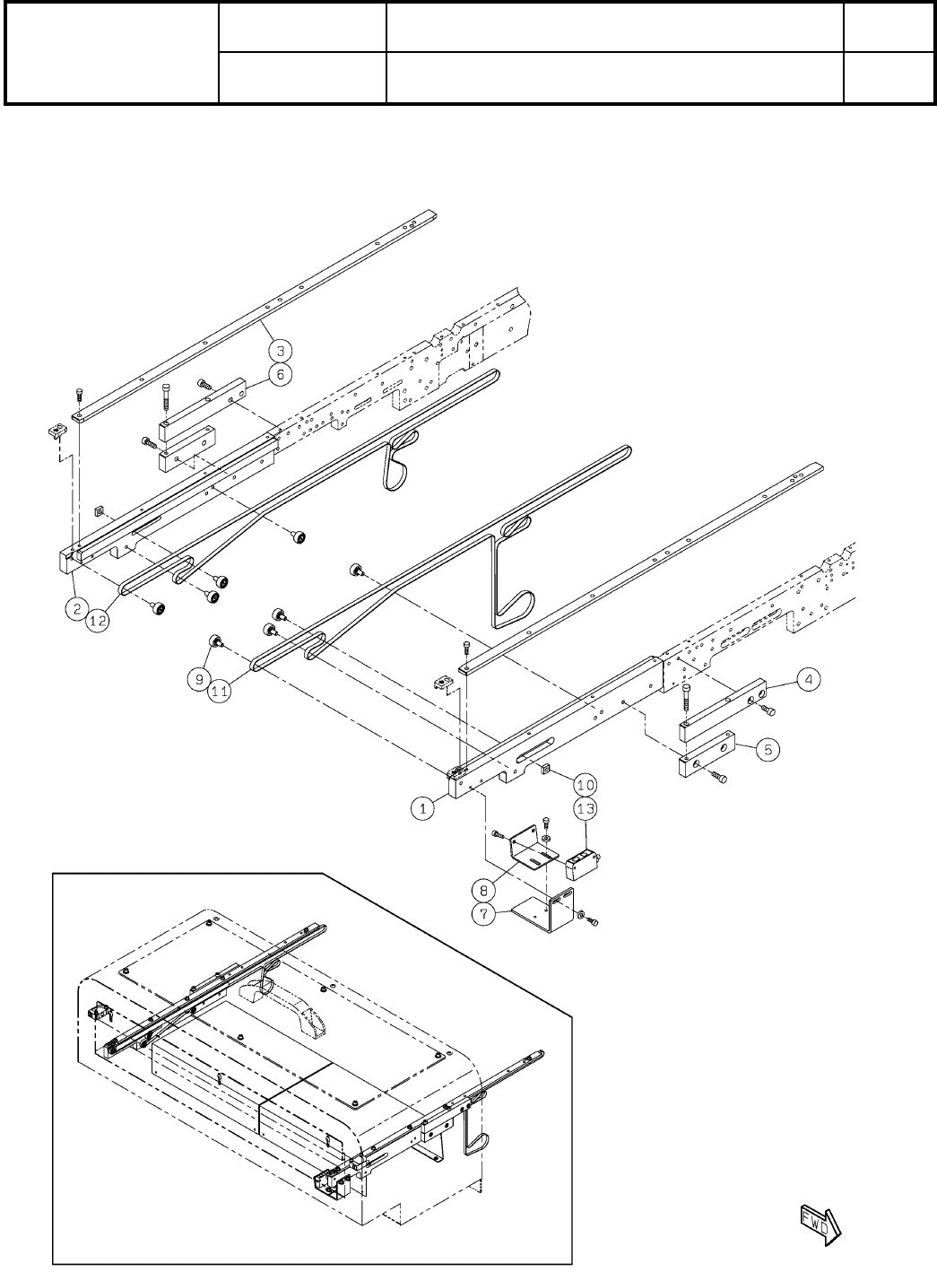
FRAME
1
1 MTPA002247AA
FRAME
1
2 MTPA002248AA
GUIDE
2
3 MTPA002249AA
PLATE
1
4 MTPA002250AA
PLATE
2
5 MTPA002251AA
PLATE
1
6 MTPA002796AA
BRACKET
1
7 N210162350AA
BRACKET
1
8 N210143083AA
PULLEY
8
9 N610127907AA
NUT
2
10 N510048038AA NSMT-04-4
BELT
1
11 MTNK002592AA
A
TA-4UEB M/D2 4.5WX0.65TX1602L
BELT
1
12 MTNK002597AA
A
TA-4UEB M/D2 4.5WX0.65TX1394L
SENSOR(E3S-LS3N:900mm)
1
13 N610102197AA
O24
--
( KMTKA001466AA-04-1 )

5-B
延長コンベア(シングル):NPM-W2
Extension Conveyor(Single):NPM-W2
パーツレイアウト
Kit No.
キット品番
Kit Name
キット名称
MTKA001466AA
セクションNo.
PARTS LAYOUT
Section No.
--
O25
( KMTKA001466AA-04-2 )