TR8S_使用说明书 - 第31页
TR 8S 使用说明书 4-4 4-3-2 Z 轴装置 ( 1 )清洗 请擦洗掉滚珠螺 杆和导轴的灰尘、油 污等。 如果有润 滑油滞留的情况, 请 予擦拭。 若把 润滑油 擦掉时,须再涂上新 润 滑油 。 使用工具:毛刷 、 抹布 ( 2 )加油 请在轨道面上薄 薄地涂敷润滑油。 使用工具:毛刷 < TR8S /TR8S R > 涂抹润滑油后, 在 Z 轴上下动作 5 ~ 10 分 钟左右之后,如果有 润滑油滞留,请予擦拭。 ① 滚珠螺…

TR8S 使用说明书
4-3
<TR8SR>
① Y 轴直动轨 1(6459 Grease N)
② Y 轴直动轨 2(6459 Grease N)
③ Y 滑块直动轨(6459 Grease N)
④ Y 夹持器直动轨(6459 Grease N)
⑤ Y 轴树脂导轨及其周围。
⑥ Y 轴皮带周围。
③
④
②
①
⑤
⑥

TR8S 使用说明书
4-4
4-3-2 Z 轴装置
(1)清洗
请擦洗掉滚珠螺杆和导轴的灰尘、油污等。
如果有润滑油滞留的情况,请予擦拭。
若把润滑油擦掉时,须再涂上新润滑油。
使用工具:毛刷、抹布
(2)加油
请在轨道面上薄薄地涂敷润滑油。
使用工具:毛刷
<TR8S/TR8SR>
涂抹润滑油后,在 Z 轴上下动作 5~10 分钟左右之后,如果有润滑油滞留,请予擦拭。
① 滚珠螺杆
(6459 Grease N)
② 导轴
(6459 Grease N)
4-3-3 空气压缩机
请确认没有漏气。
<TR8S/TR8SR>
①
②
发生润滑油滞留的位置

TR8S 使用说明书
4-5
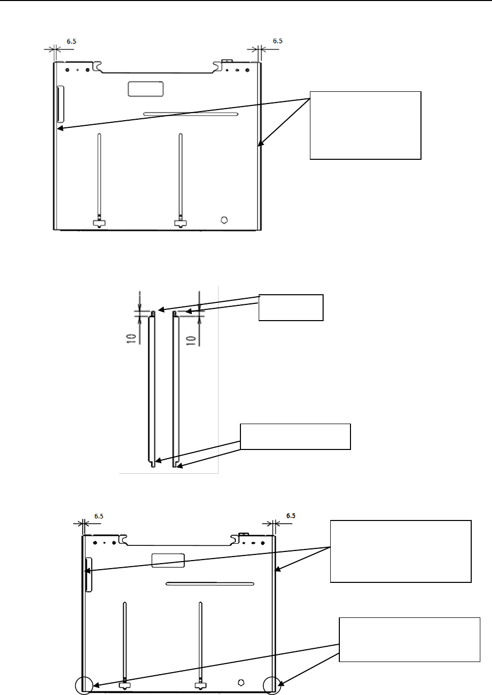
4-3-4 托盘座板
托盘座板的背面两侧粘贴有胶带。当胶带磨损到暴露出托盘座板面时,请更换胶带。
托盘座板(背面)
① 揭掉旧胶带,用酒精擦除胶带粘贴面的污垢。
② 将更换用胶带的两端分别剪掉 10mm。
③ 粘贴胶带。注意不要让气泡进入胶带和托盘座板之间或者起皱。
胶带
产品编号:40138460
共 2 条
粘贴到从侧面算起 6.5mm
为止的地方。多余部分折向
侧面粘贴。
两端折向反面粘贴。
剪掉
不要剪掉这一端