Vario Grid Pepperl Fuchs - 第10页
1 Nachrüstanleitung SOKO Vario Grid Pepperl&Fuchs (00166280-01) SOKO Ausgabe 06/2006 10 Je Bestü ckberei ch stellt ei ne Li cht schranke, welche auf die bew egliche Seite des T ransports mon- tiert wird, sicher , das…

SOKO 1 Nachrüstanleitung SOKO Vario Grid Pepperl&Fuchs (00166280-01)
Ausgabe 06/2006
9
1
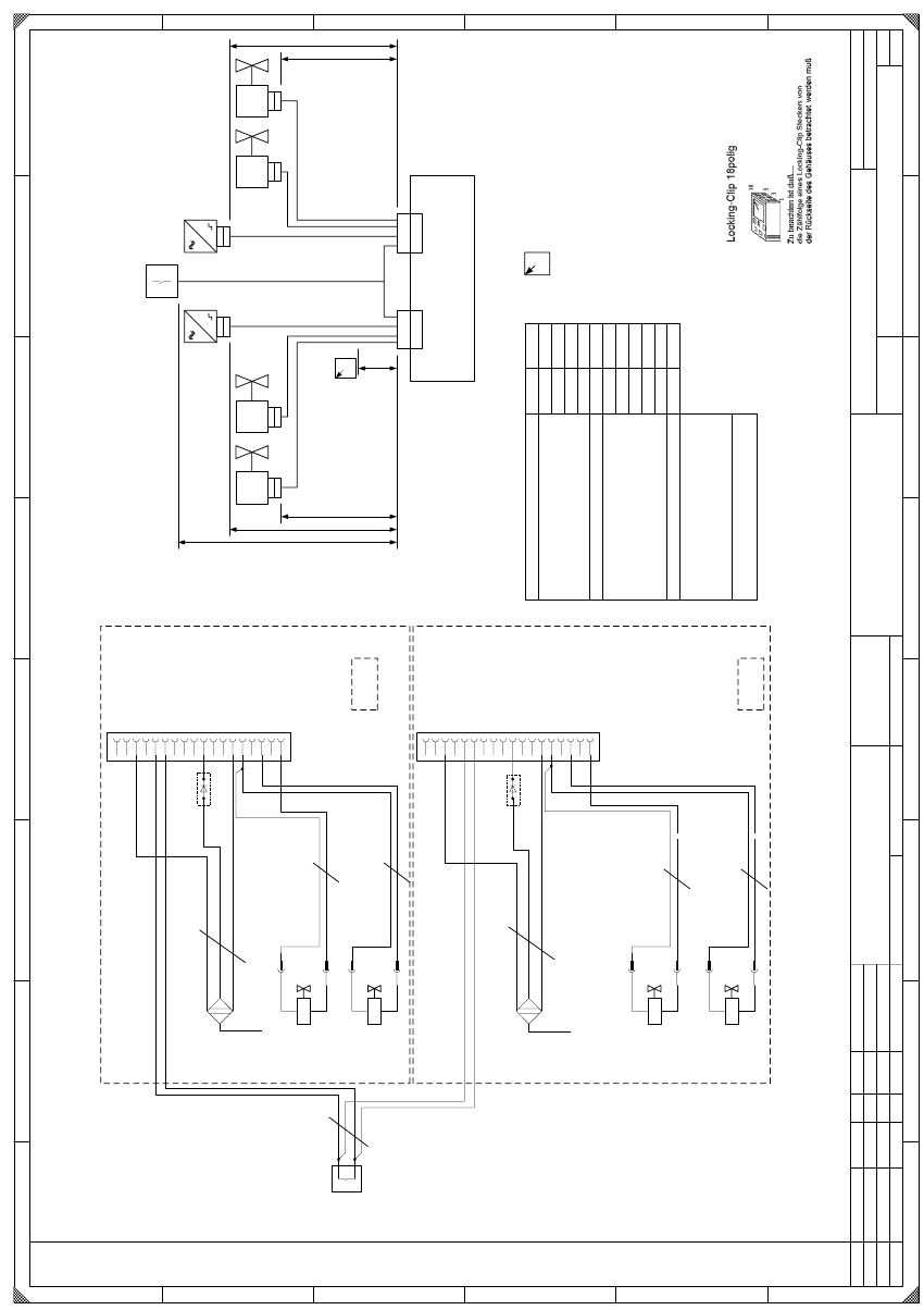
Abb. 1.10 - 3 Stromlaufplan
1 2345678
1 2345678
A
B
C
D
E
F
A
B
C
D
E
F
Stat. Modification Date Name Standards
Checked
Author
Date
SIEMENS AG
A&D
Sheet
of
=
+
Designer 9
Weitergabe sowie Vervielfältigung dieser Unterlage, Verwertung und
Mitteilung ihres Inhalts nicht gestattet, soweit nicht ausdrücklich zugestanden.
Zuwiderhandlungen verpflichten zu Schadenersatz. Alle Rechte vorbehalten,
insbesondere für den Fall der Patenterteilung oder GM-Eintragung.
Proprietary data, company confidential. All rights reserved.
Confie a titre de secret d'entreprise. Tous droits reserves.
Comunicado como segredo empresarial. Reservados todos os direitos.
Confiado como secrete industrial. Nos reservamos todos los derechos.
Item name / Benennung
Dokument - No. /
Unterlagen - Nr. :
Orig. Repl. f. Repl. by
1
1
Ansteuerung VarioGrid Stromlaufplan
90010891-010101LD3
Control VarioGrid Wiring
18.05.06
Hein
1
2
3
4
5
6
7
8
9
10
11
12
13
14
15
16
17
18
Key
Key
+ 24V
Coding for SW special function ( +24)
Coding for SW special function
GND
GND
Ventil Stifte hoch und runterfahren
Ventil Stifte ver- und entriegeln
X36
Endschalter
1
2
3
4
5
6
7
8
9
10
11
12
13
14
15
16
17
18
Key
Key
+ 24V
Coding for SW special function ( +24)
Coding for SW special function
GND
GND
Ventil Stifte hoch und runterfahren
Ventil Stifte ver- und entriegeln
X37
Endschalter
WH
BN
GN
YE
W
1
Codierschalter
Y1
1
2
Magnetventil
MHE3-M1H -
3/2G-1/8
1
2
Y2
1
2
Magnetventil
MHE3-M1H -
3/2G-1/8
2
1
Y1
1
2
Magnetventil
MHE3-M1H -
3/2G-1/8
1
2
Y2
1
2
Magnetventil
MHE3-M1H -
3/2G-1/8
2
W
2
W
2
W
2
W
2
BU
1
Reflexions-Lichttaster
Pepperl + Fuchs
ML7-8-H350-IR
BN
BK
V1
1N4007
WH
unbenutze Adern
einschrumpfen
BU
Reflexions-Lichttaster
Pepperl + Fuchs
ML7-8-H350-IR
BN
BK
V1
1N4007
WH
unbenutze Adern
einschrumpfen
W
4
W
3
*
*
*) Diode
eingelötet und
eingeschrumpft
**)
Abmantel Länge für alle Kabel bei X3x
Die Kabel sind im Bereich des Mantelendes
mit einem Schrumpfschlauch zusammen
zufassen
Stromlauf Ansteuerung Vario Grid
Verkabelung Ansteuerung Vario Grid
Umsetzplatine Transport
(X-Serie: 00359425-xx)
X36
X36
X37
X37
Maße / Kabeltypen
Dimensions / cable type
Maße Kabel / Cable dimensions
Rohlänge laut Stückliste / Basic length acc. to parts list
Abmantellänge / strip length
Konfektionierte Gesamtlänge / Toleranz
Assemblied overall length / torleance
Beschriftungsedikett / Inscription label
Kabeltyp / Cable type :
W1: Unitronic LIYY 4*0,34 mm
2
W2: Festo Steckdosenkabel KMYZ-3-24-2,5-LED-PUR-E
W3: V31-WM-5M-PVC
Anschlußstecker winklig, M8, 4-polig mit 5 m PVC Kabel
W4: V31-GM-5M-PVC
Anschlußstecker gerade, M8, 4-polig mit 5 m PVC Kabel
Materialnummer:
Material number:
W1
L1W2
**)
L in mm
1550
800 +/-10
50
1500 +/-10LW1
W2
W3
W4
2500
5000
5000
70L2W1
LW3 2200 +/-10
700 +/-10L2W2
Codierschalter
BB 1
BB 2
LW4 2200 +/-10
Ventil
Reflexions-
lichttaster
Ventil
Ventil
Reflexions-
lichttaster
Ventil
LW1
LW4
L1W2
LW3
L2W2
L2W1
Der Pfeil zeigt immer in die linke obere Ecke des Beschriftungsfeldes.
Angaben über Aufdruck und Beschaffenheit siehe
aktuelle TBL (technische Bestell und Lieferbedingungen).
The arrow always points to the upper lift corner of the inscription label.
For details concerning the inscription and design of the labels,
please refer to the current TCOD (Technical Conditions of Orders an
Deliveries).
Wichtig: nicht angeschlossene Kabel sind separat
einzuschrumpfen
Important: Shrink cables separatly when they are not connected
Adernanschlusstechnik / Wire connection technology:
A: Adernendhülse / Wire end ferrules
C: Crimpkontakt / Crimp contact
C/Bu.: Crimpkontakt Buchse / Crimp contact, socket
C/St.: Crimpkontakt Stecker / Crimp contact, plug
F: Flachsteckhülse / Flat pun bushing
L: Lötanschluß / Soldered joint
KR: Kabelschuhe (Ring) / Cable lugs (ring-type)
KS: Kabelschuhe (Stift) / Cable lugs (pin)
KG: Kabelschuhe (Gabel) / Cable lugs (fork-type)
SCH: Schirmmontage / Screen installation
Stecker X36/X37
1 Nachrüstanleitung SOKO Vario Grid Pepperl&Fuchs (00166280-01) SOKO
Ausgabe 06/2006
10
Je Bestückbereich stellt eine Lichtschranke, welche auf die bewegliche Seite des Transports mon-
tiert wird, sicher, dass der Transport nicht verfahren kann, solange sich Gegenstände im Sichtbe-
reich der Lichtschranke befinden. 1
Wird versucht den Transport mit aktivierter Lichtschranke zu verfahren, so erscheint folgende
Fehlermeldung: 1
„15431 Endschalter von eingebauter Option BBx (x=1 oder 2) betätigt Transport 1“ 1
Wurde der Sensor aktiviert, so kann die automatische Breitenverstellung nur reaktiviert werden,
wenn der Sitest geöffnet und wieder geschlossen wird. Ansonsten muss die Transportbreite über
die manuelle Breitenverstellung eingestellt werden. 1

SOKO 1 Nachrüstanleitung SOKO Vario Grid Pepperl&Fuchs (00166280-01)
Ausgabe 06/2006
11
1.7 Transport Firmware
Das Vario Grid ist als Option des Vacuum Tools angelegt. Hierzu muss der entsprechende Para-
meter über das Hyperterminal ausgewählt werden (über einen externen Rechner muss man sich
mit dem Schnittstellen-Kabel (RS232) auf die Transportsteuerung via Hyperterminal verbinden.1
1
Manchmal kann es beim Anzeigen zu Formatierungsproblemen kommen.
Die Parameter können nach wie vor eingegeben werden. 1
1
: Rufen Sie das Hyperterminal auf und wählen Sie die Parameter wie folgt:
Mit der Leertaste rufen Sie das Hauptmenü auf.
1
Hauptmenue Transport 1
Trace-Meldungen aus: ’Strg’ + ’A’, ein: Strg’ + ’E’ 1
1 - Bug Report 1
2 - Transport Info 1
3 - Einstellen Meldungen 1
4 - Steuerplatine 1
5 - Einzelkomponenten 1
6 - Dauerlauf 1
7 - Firmware-Test 1
8 - Koppeln Barcode-Schnittstelle 1
9 - parameter 1
1
parameter track 1 (and common parameter) 1
1 - list parameter 1
2 - modify parameter 1
3 - save to EEPROM 1
t - change track 1
0 - quit 1
parameter track 1 1
1, 6, // version 1
10, 500, // [mm/s] maximum velocity conveyor 1
11, 350, // [mm/s] velocity drive-in machine 1
12, 350, // [mm/s] velocity drive-out machine 1
13, 50, // [0.1m/s
2
] maximum acceleration 1
14, 60, // [mm/s] velocity laser-light barrier 1
15, 25, // [0.1m/s
2
] deceler. laser-light barrier 1