CP-842E-02 PART LIST - 第360页
DUST BOX(PV) ダストボックス(PV) 番号 図番 & コード番号 個数 品名 規格 材質 備考 No. Drg.No. & Code No. QTY Description Rating Materials Remarks 77 T5012Y 1 HANDLE 取手 THA-255(3202) OT 78 K5209A 2 SCREW, C/R TRUSS 小ネジ 十穴トラス M04X008 ユニクロメッキ…

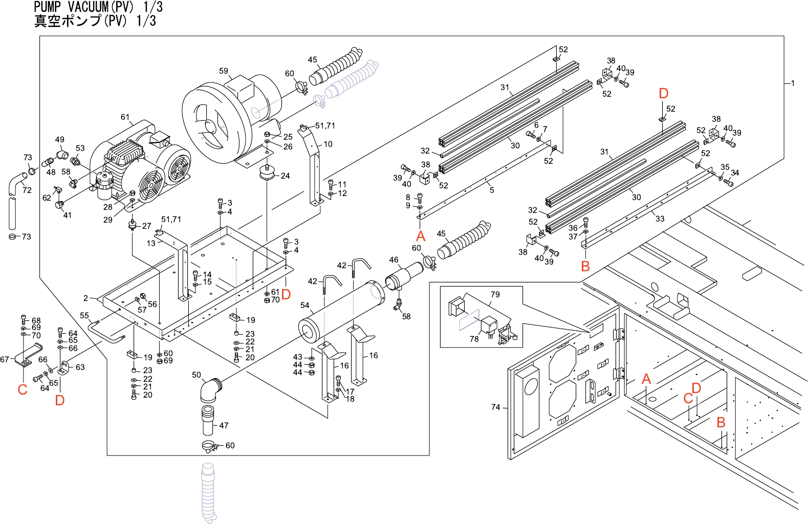
DUST BOX(PV)
ダストボックス(PV)
番号 図番 & コード番号 個数 品名 規格 材質 備考
No. Drg.No. & Code No. QTY Description Rating Materials Remarks
39 K5255T 10 SCREW, HEX SOCKET BUTTON
小ネジ 六角穴ボタン
M03X006 FE
40 DGPV0270 2 BKT
BKT
FE
41 H5298A 4 BOLT, HEX SOCKET
ボルト 六角穴
M05X010 FE
42 W1023A 4 WASHER, LOCK
ワッシャ スプリング
5M/M FE
43 W1044A 4 WASHER, FLAT
ワッシャ 平
4W- 5 FE
44 DCPV0780 1 PIPE
パイプ
FE
45 WPV5070 1 PIPE, PIPING
パイプ 配管
FE
46 H5069E 2 BALL CATCH
ボールキャッチ
TL-91(NO.1) OT
47 K5186T 4 SCREW, C/R COUNTERSUNK
小ネジ 十穴皿
M03X006 ニッケルメッキ FE
48 K5170A 4 SCREW, C/R COUNTERSUNK
小ネジ 十穴皿
M03X012 ニッケルメッキ FE
49 W1021A 4 WASHER, LOCK
ワッシャ スプリング
3M/M FE
50 W1042A 4 WASHER, FLAT
ワッシャ 平
4W- 3 FE
51 N1076A 4 NUT, HEX
ナット 六角
M 3 P=0.5 FE
52 ADGPV8141 1 DOOR 扉 OT Door plate only
53 DGPV1030 1 PACKING
パッキン
CR25°テープ付 OT Packing only
54 DCPV0681 1 PACKING
パッキン
CR25°テープ付 OT Packing only
55 K1152K 3 GASKET
ガスケット
E02S130055B(1M) OT
56 T4047B (1) TAPE
テープ
E052020A(20M/マキ) OT
57 DGPV0280 1 DOOR 扉 FE
58 ADGPV8040 1 PLATE, ACRYLIC
プレート アクリル
OT DGPV0190+WWM0210
59 DGPV0061 1 HOSE
ホース
WT50 OT
60 DGPV0200 1 PLATE
プレート
FE
61 H5287A 6 BOLT, HEX SOCKET
ボルト 六角穴
M04X008 ゼンネジ FE
62 W1022A 6 WASHER, LOCK
ワッシャ スプリング
4M/M FE
63 W1041A 6 WASHER, FLAT
ワッシャ 平
4M/MX0.8X9(1W-4) FE
64 DGPV0211 1 JOINT, HOSE
ジョイント ホース
PL
65 DGPV0290 2 PLATE
プレート
FE
66 H5289A 4 BOLT, HEX SOCKET
ボルト 六角穴
M04X012 FE
67 W1022A 4 WASHER, LOCK
ワッシャ スプリング
4M/M FE
68 W1043A 4 WASHER, FLAT
ワッシャ 平
4W- 4 FE
69 DCPV0621 2 BKT
BKT
FE
70 H5300A 8 BOLT, HEX SOCKET
ボルト 六角穴
M05X015 FE
71 W1023A 8 WASHER, LOCK
ワッシャ スプリング
5M/M FE
72 W1044A 8 WASHER, FLAT
ワッシャ 平
4W- 5 FE
73 DCPV0770 1 HOSE
ホース
φ50X1.7M(カフスツキ) OT
74 H11543 2 BAND, HOSE
バンド ホース
ハイ・グリップ 2X゚45カラ60 OT
75 H11545 1 BAND, HOSE
バンド ホース
ハイ・グリップ 3 ゚55カラ70 OT
76 H11548 2 BAND, HOSE
バンド ホース
ハイ・グリップ 3X゚60カラ80 OT
349

DUST BOX(PV)
ダストボックス(PV)
番号 図番 & コード番号 個数 品名 規格 材質 備考
No. Drg.No. & Code No. QTY Description Rating Materials Remarks
77 T5012Y 1 HANDLE
取手
THA-255(3202) OT
78
K5209A
2
SCREW, C/R TRUSS
小ネジ 十穴トラス
M04X008 ユニクロメッキ
FE
350

351