d-YTF_YS_mpl_e.pdf - 第6页

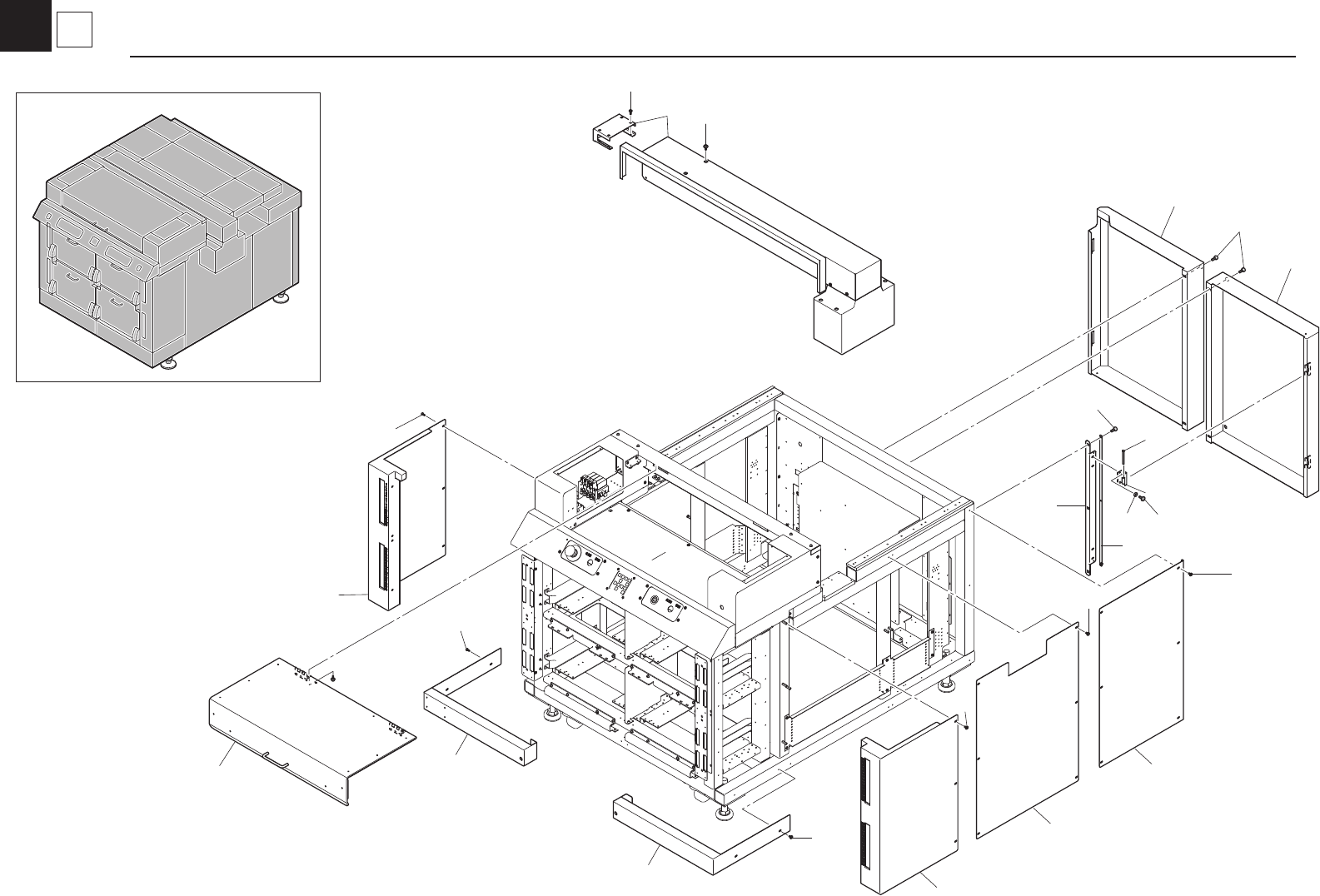
13 19 16 5, 6 5, 7 16 16 8 1 1 15 14 17 16 16 9 10 2 4 3 16 16 12 1 16 17 18 KJN-0901 2 1 Cover/Door/Cover Adapter Cover

100%1 / 28
No. Part No. Part Name Q'ty Remarks Rank Level No. Part No. Part Name Q'ty Remarks Rank Level
1 KV5-M1140-00 LEVEL ADJUSTER 4 /
39
2 K33-M2699-00 CASTER (FUJ75) 4 /
40
3 $UEDW8-6 JOINT 1 /
41
4 $UP6 JOINT 2 /
42
5 $ULA8 JOINT 1 /
43
6 91312-03018 BOLT,HEX.SOCKET HEAD 2 M3X18 44
7 91312-08012 BOLT HEX.SOCKET HEAD 16 M8X12 45
8 46
9 47
10 48
11 49
12 50
13 51
14 52
15 53
16 54
17 55
18 56
19 57
20 58
21 59
22 60
23 61
24 62
25 63
26 64
27 65
28 66
29 67
30 68
31 69
32 70
33 71
34 72
35 73
36 74
37 75
38 76
KJN-0901
1
1
Base/Magazine Base
Base
13
19
16
5, 6
5, 7
16
16
8
11
15
14
17
16
16
9
10
2
4
3
16
16
12
1
16
17
18
KJN-0901
2
1
Cover/Door/Cover Adapter
Cover
No. Part No. Part Name Q'ty Remarks Rank Level No. Part No. Part Name Q'ty Remarks Rank Level
1
KGW-M13C1-L1 COVER IND.,L 1
/
37
2
KGW-M13C1-R1 COVER IND.,R 1
/
38
3
KGW-M13C2-L1 COVER UNDER L 1
/
39
4
KGW-M13C2-R1 COVER UNDER R 1
/
40
5
KGW-M13A1-00 FRONT DOOR 1
/
41
6
KGW-M13A1-R0 FRONT DOOR R 1 R>L
/
42
7
KGW-M13A1-L0 FRONT DOOR L 1 L>R
/
43
8
KGW-M13A2-00 BRKT.,FRONT DOOR 2
/
44
9
KGW-M13A3-00 COVER SIDE 1 2
/
45
10
KGW-M13A4-00 COVER SIDE 2 2
/
46
11
KGW-M13A5-00 PLATE,BRACKET 2
/
47
12
KGW-M13D0-00 ACRYL COVER ASSY 1
/
48
13
KJN-M13F0-00 TRAVERSER COVER ASSY 1 Front S.T.D
/
49
KJN-M13F0-20 TRAVERSER COVER ASSY 1
Back S.T.D R>L
/
50
KJN-M13F0-30 TRAVERSER COVER ASSY 1
Back S.T.D L>R
/
51
14
KG2-M1372-00 PIECE B HINGE 4
/
52
15
K46-M1373-00 SHAFT HINGE 4
/
53
16
90990-12J001 SCREW BIN.HEAD W/W 71
54
17
98904-04008 SCREW BINDING HEAD 14
55
18
92903-04200 WASHER PLAIN 8
56
19 91312-04006 BOLT,HEX.SOCKET HEAD 16 M4X6 57
20 58
21 59
22 60
23 61
24 62
25 63
26 64
27 65
28 66
29 67
30 68
31 69
32 70
33 71
34 72
35 73
36 74
KJN-0901
2
1
Cover/Door/Cover Adapter
Cover