RS-1-Rev02PDFA - 第118页
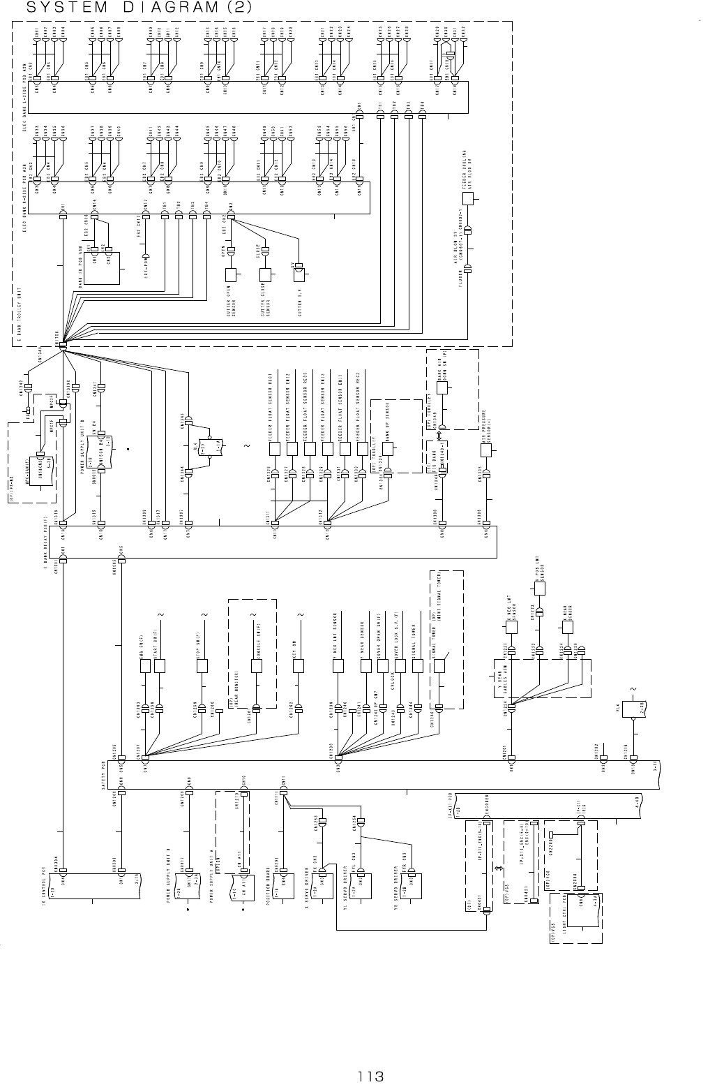
- - 57. SYSTEMD IAGRAM(2) 9 7 9 8 9 9 1 0 0 1 0 1 1 0 2 1 0 3 1 0 4 1 0 5 1 0 6 1 0 7 1 0 8 1 0 9 1 1 0 1 1 1 1 2 9 6 8 3 8 4 9 3 9 4 9 5 9 2 9 1 9 0 8 9 8 8 8 7 8 6 8 5 7 4 7 6 7 5 7 7 8 0 7 9 7 8 8 1 4 7 4 9 5 9 5…

- -
REF.NO NOTE PARTNO DESCRIPTION Qty
1 401-29648 POSITIONBOARD 1
2 401-29627 OPTICALFIBERCABLE1M 1
3 401-29652 XAXISDRIVER 1
4 401-82237 FXAMP-XYBEARENCCABLEASM 1
5 401-82234 FXAMP-YBEARPWRCABLEASM 1
6 401-82273 YBEARCABLE 1
7 401-29148 X-MOTORENCCABLEASM 1
8 400-44546 XMTRPWRCABLE 1
9 401-29653 XAXISMOTOR 1
10 401-82256 FXAMP-FGWIREASM 1
11 401-29654 YAXISDRIVER 1
12 401-29628 OPTICALFIBERCABLE0.15M 1
13 400-45401 YLENCCABLEASM 1
14 401-82269 YLMOTORCABLEASM 1
15 401-46348 YAXISSERVOMOTOR 1
16 401-82257 FYLAMP-FGWIREASM 1
17 400-45403 YRENCCABLEASM 1
18 401-82270 YRMOTORCABLEASM 1
19 400-48070 OPTICALFIBERCABLE7M 1
20 401-82258 FYRAMP-FGWIREASM 1
21 401-83536 POWERSUPPLYUNITBASM 1
22
#01
401-87824 POWERSUPPLYUNITBASM_EN 1
23 401-82272 XYBEARCABLE 1
24 401-33060 XYBEARAMPPWR-FGWIREASM 1
25 401-28874 HEADRELAYPCBASM 1
26 401-82243 EUTOP-FXYBEARAMPPWRCABLEASM 1
27 401-86992 BREAKER-NFWIREASM 1
28
#01
HK-0429900-7A CAP 1
29 401-91282 NOISEFILTER 1
30
#01
401-91283 NOISEFILTER 1
31 401-86994 NF-SWWIREASM 1
32
#01
401-88159 EUCNA4-CN0001CABLEASM(EN) 1
33 401-88712 SWITCH 1
34 401-28954 NF-FGWIREASM 1
35 401-86995 SW-TF/MTSWIREASM2 1
36 401-82231 MS-ELECTRICALUNITCABLEASM 1
37 401-83500 MTSPWRCABLEASM 1
38 401-83535 POWERSUPPLYUNITAASM 1
39
#01
401-87823 POWERSUPPLYUNITAASM_EN 1
40 401-82230 CNA3-AMPCNP2CABLEASM 1
41 401-91280 TRANSFORMER
1
42 401-83414 TRANS-EUCABLEASM 1
43 401-82214 ELEUNITCNA2-CNB3CABLEASM 1
44 401-82232 EUCNA6-EUCNB2CABLEASM 1
45 401-82255 EUTOP-ATXRELAYCABLEASM 1
46 EZ-1756647-11 BATTERYPACK(BS06A-H24/2.5L) 1
47 401-82264 VACUUMPUMPRELAYWIREASM 1
48 401-90921 IP-X11SETGENASM(RS-1) 1
49 401-28871 IOCONTROLPCBASM 1
50 401-82240 EUTOP-FXYBEARHDMPWRCABLEASM 1
51 401-23242 CPUBOARD 1
52 401-36338 LANCABLE5M 1
53 HK-0849200-80 CONNECTOR 1
54 401-89336 HDR-ZVACSENSORCABLEASM 1
55 401-82216 LNCLANCABLEASM 1
56 401-82791 LNC120-8 1
57 401-82217 LNCENCODERCABLEASM 1
58 401-82218 HDR-LNCLEDCABLEASM 1
59 401-86497 ATXRELAY-ATX250VCABLEASM 1
60 EZ-1468979-11 POWER(ENSP-300P-S20-11S) 1
61 401-72724 ATX-CPCIWIREASM3 1
62 401-83537 CTRL_UNIT_ASM 1
63 401-82220 HDR-SVCABLEASM2 1
64 401-82558 CN0707-T1/T2/T3ORIGINCABLEASM 1
65 401-82560 T1/T2/T3/T4ORIGINSENSORASM 1
66 401-83385 FIBERUNIT2M 1
67 401-72512 CPCIBACKBOARD6SLOT 1
68 401-29244 VACUUMPUMPASM 1
69 401-82233 ATX-SWCABLEASM 1
70 401-82559 CN0724-T4ORIGINCABLEASM 1
71 401-82238 IPX-FXYBEARCAMERACABLEASM 1
72 401-82239 IO-FXYBEARSERIALCABLEASM 1
73 401-28873 HEADMAINPCBASM 1
74 401-82241 HDM-HDRSERIALCABLEASM 1
75 401-29105 HDM-HDRPWRCABLEASM 1
76 401-29102 HDM-OCCLCABLEASM 1
77 401-29273 HDM-OCCLIGHTLCABLEASM 1
78 401-29639 OCC 1
79 401-29640 OCCLENS 1
80 401-28879 OCCCPCBASM 1
81 401-28878 OCCAPCBASM 1
82 401-29106 HDM-HMSLRELAYCABLEASM 1
83 401-29108 HMSCABLEASM 1
84 401-85429 NZL-UPSVEXTENSIONCABLEASM 1
85 401-83349 NZL-UPSVCABLEASM 1
86 401-86318 HDM-TMPSENSORCABLEASM 1
87 401-28883 THERMALSENSORPCBASM 1
88 HD-0030600-00 SENSOR 1
89 401-19461 HEADFANMOTORAASSY 1
90 401-36334 SERVOMOTOR30W 1
91 EZ-1492148-11 AMPLIFIERSERVO 1
92 401-82565 ZCCN2ACABLEASM 1
93 401-82563 ZCCNP2ACABLEASM 1
94 401-87431 SERVOMOTOR30W 1
95 401-29650 4AXISINTEGRALTYPETAXISDRIVER 1
96 401-36335 SERVOMOTOR30W 1
97 401-82252 HDR-ZAAMPPWRCABLEASM 1
98 401-82253 HDR-ZBAMPPWRCABLEASM 1
99 401-82254 HDR-ZCAMPPWRCABLEASM 1
100 401-82222 HDR-TAAMPPWRCABLEASM 1
101 401-82250 TAMP-HDRSERIALCABLEASM 1
102 401-82215 TACN5-CN0713CABLEASM 1
103 401-82251 HDR-SVCABLEASM 1
104 401-33002 NZLUPSENSOR6TLCABLEASM 1
105 401-33003 NZLUPSENSOR6TRCABLEASM 1
106 401-89336 HDR-ZVACSENSORCABLEASM 1
107 401-82489 VACCUM_UNIT 1
108
#01
401-88158 EUBTM-BANKUPCABLEASM(EN) 1
109
#01
400-02344 BUPSHORTWIRE(EN)ASM 1
110
#01
400-02287 BSWCABLEASM(EN) 1
111 401-82229 CNA5-X/YL/YRCNP1CABLEASM 1

- -
57.SYSTEMDIAGRAM(2)
9 7
9 8
9 9
1 0 0
1 0 1
1 0 2
1 0 3
1 0 4
1 0 5
1 0 6
1 0 7
1 0 8
1 0 9
1 1 0
1 1 1
1 2
9 6
8 3
8 4
9 3
9 4
9 5
9 2
9 1
9 0
8 9
8 8
8 7
8 6
8 5
7 4
7 6
7 5
7 7
8 07 97 8
8 1
4 7
4 9
5 9
5 8
6 1
4 5
6 0
6 3
6 2
6 4 6 6
7 0
6 7
6 8 6 9 6 8 6 9 6 9 6 8
7 1 7 2
5 7
1 4 5
2 3 1 1 5 7
9
1 1
6 8 1 0 1 0
1 3
1 6
1 5
1 4
1 7
1 8
1 9
2 0
2 2
2 3 2 5 2 6 2 8
2 1
2 9 3 4
3 0 3 3 3 5 3 7
3 8
3 9 4 0 4 1 4 2 4 3
1 1 2
4 5
4 6
3 9
4 8
3 9
4 0
5 2
5 6
5 3 5 5
8 2
4 4
1 1 4
1 1 3
5 0 5 1
1 1 6
1 1 7
7 3
1 1 9
1 2 0
1 1 8

- -
REF.NO NOTE PARTNO DESCRIPTION Qty
1 401-28871 IOCONTROLPCBASM 1
2 401-82247 IO-FBKRSERIALCABLEASM 1
3 401-29320 IO-SFSERIALCABLEASM 1
4 401-83536 POWERSUPPLYUNITBASM 1
5
#01
401-87824 POWERSUPPLYUNITBASM_EN 1
6 401-83413 POSITIONBOARD 1
7 401-82224 SF-XYAMPRELAYCABLEASM 1
8 401-29652 XAXISDRIVER 1
9 401-33006 SFRELAY-FXAMPCABLEASM 1
10 401-29654 YAXISDRIVER 1
11 401-82823 SFRELAY-FYLAMPCABLEASM 1
12 401-82197 BANKCABLE(31_32-EB1CN18)ASM 1
13 401-82225 IPXXENCRELAYCABLEASM 1
14 401-90921 IP-X11SETGENASM(RS-1) 1
15 401-32991 LIGHTCONTROLPCBASM 1
16 401-90013 CAMERATRIGCABLEASM 1
17 401-28872 SAFETYPCBASM 1
18 401-86309 FBKR-SFCABLEASM 1
19 401-29020 SF-OPSWRELAYWIREASM 1
20 401-29025 EMGSWCABLEASM 1
21 401-29021 STARTSWCABLEASM 1
22 401-29022 STOPSWCABLEASM 1
23 HA-0055200-40 SWITCH 1
24 HA-0055200-30 SWITCH 1
25 HA-0055200-1B SWITCH 1
26 HA-0055200-40 SWITCH 1
27 HA-0055200-30 SWITCH 1
28 HA-0055200-10 SWITCH 1
29 401-29023 CONSOLESWCABLEASM 1
30 HA-0055200-40 SWITCH 1
31 HA-0055200-30 SWITCH 1
32 HA-0055200-1C SWITCH 1
33 HA-0053400-70 SWITCH 1
34 401-29024 KEYSWCABLEASM
1
35 HA-0063800-10 SWITCH 1
36 HA-0055200-20 SWITCH 1
37 HA-0053500-3A SWITCH 1
38 401-82244 SF-YFTOPSENSORRELAYCABLEASM 1
39 401-65028 XYLMTSENSORASM 1
40 401-29002 NEARSENSORCABLEASM 1
41 400-02254 COVEROPENSWCABLEASM 1
42 401-46405 COVERLOCKSVASM 1
43 401-29009 SIGNALTOWERCABLEASM 1
44 401-29010 MINISIGNALTOWERCABLEASM(OP) 1
45 401-82249 SF-FXYBEARCABLEASM 1
46 401-82273 YBEARCABLE 1
47 401-86335 FEEDERAIRBLOWCABLEASM 1
48 401-29001 XLMTRELAYCABLEASM 1
49 401-83349 NZL-UPSVCABLEASM 1
50 401-83535 POWERSUPPLYUNITAASM 1
51
#01
401-87823 POWERSUPPLYUNITAASM_EN 1
52 401-82223 CN1202SHORTWIREASM 1
53 HB-0018100-00 RELAY 1
54 HB-0004800-10 RELAY 1
55 HB-0002100-10 RELAYHOLOERPYC-A1 1
56 401-86333 CUTTERSAFETYCABLEASM 1
57 401-28876 EBANKRELAYPCBASM 1
58 401-29247 FEBKRFGCABLEASM 1
59 401-82227 EBKR-OUTLOADERSERIALCABLEASM 1
60 401-29073 FBKR-EUTOPPWRCABLEASM 1
61 401-82226 CNB4/B5-CN1341/1441CABLEASM 1
62 401-84380 CN1307/1407-CN1344/1444CABLEASM 1
63 401-84106 CN1343/1344-RL4_5/9CABLEASM 1
64 HB-0018100-00 RELAY 1
65 HB-0004800-10 RELAY 1
66 HB-0002100-10 RELAYHOLOERPYC-A1 1
67 401-85779 BKR-FDFLOATECABLEASM 1
68 401-81501 SEPARATESENSORRECEIVERASM 1
69 401-81502 SEPARATESENSOREMISSIONASM 1
70 401-82265 BKR-FDFLOATLEFTECABLEASM 1
71 401-82818 BKR-BANKAIRSWRELAYCABLEASM 1
72 401-82260 FBKR-AIR(P)RELAYCABLEASM 1
73 401-29071 AIR(P)SENSORCABLEASM 1
74 401-82228 EBANKSERIALCABLEASM 1
75 401-69473 BANKIDPCB(RF)ASM 1
76 401-82213 BANKCABLE(IFS-NX)ASM 1
77 401-82211 BANKCABLE(EXT-POW)ASM 1
78 400-84835 CUTOPENSENSASM 1
79 400-84839 CUTCLOSESENSASM 1
80 400-84836 CUTSVCABLEASM 1
81 401-82212 EBANKPCB-ECUTTERIFCABLEASM 1
82 401-83784 ELECBANKR-SIDEPCBASM 1
83 401-82198 BANKCABLE(33_34-EB2CN3)ASM 1
84 401-82199 BANKCABLE(35_36-EB2CN4)ASM 1
85 401-82200 BANKCABLE(37_38-EB2CN5)ASM 1
86 401-82201 BANKCABLE(39_40-EB2CN6)ASM 1
87 401-82202 BANKCABLE(41_42-EB2CN7)ASM 1
88 401-82203 BANKCABLE(43_44-EB2CN8)ASM 1
89 401-82204 BANKCABLE(45_46-EB2CN9)ASM 1
90 401-82205 BANKCABLE(47_48-EB2CN10)ASM 1
91 401-82206 BANKCABLE(49_50-EB2CN11)ASM 1
92 401-82207 BANKCABLE(51_52-EB2CN12)ASM 1
93 401-82208 BANKCABLE(53_54-EB2CN13)ASM
1
94 401-82209 BANKCABLE(55_56-EB2CN14)ASM 1
95 401-82210 CANJAMPERCABLEASM 1
96 401-83783 ELECBANKL-SIDEPCBASM 1
97 401-82182 BANKCABLE(1_2-EB1CN3)ASM 1
98 401-82183 BANKCABLE(3_4-EB1CN4)ASM 1
99 401-82184 BANKCABLE(5_6-EB1CN5)ASM 1
100 401-82185 BANKCABLE(7_8-EB1CN6)ASM 1
101 401-82186 BANKCABLE(9_10-EB1CN7)ASM 1
102 401-82187 BANKCABLE(11_12-EB1CN8)ASM 1
103 401-82188 BANKCABLE(13_14-EB1CN9)ASM 1
104 401-82189 BANKCABLE(15_16-EB1CN10)ASM 1
105 401-82190 BANKCABLE(17_18-EB1CN11)ASM 1
106 401-82191 BANKCABLE(19_20-EB1CN12)ASM 1
107 401-82192 BANKCABLE(21_22-EB1CN13)ASM 1
108 401-82193 BANKCABLE(23_24-EB1CN14)ASM 1
109 401-82194 BANKCABLE(25_26-EB1CN15)ASM 1
110 401-82195 BANKCABLE(27_28-EB1CN16)ASM 1
111 401-82196 BANKCABLE(29_30-EB1CN17)ASM 1
112 HE-0005700-00 INDICATORLAMP 1
113 401-69048 MPC-CAN 1
114 401-87771 MPCCABLEASM(RS-1) 1
115 401-29011 EUTOP-SFPWRCABLEASM 1
116
#01
401-88157 EUBOTTOM-SFENCABLEASM 1
117 401-90012 IPXX-ENCRELAYCABLEASM 1
118 401-29070 BANKUPSENSORCABLEASM 1
119 401-29069 BKR-BANKAIRSWCABLEASM 1
120 PV-0151250-00 MANUALVALVE 1