RS-1-Rev02PDFA - 第46页
- - 21. PWBCONVEYOR COMPONENTS(1) 1 4 0 1 2 3 8 3 9 8 6 1 2 D C B A 1 3 1 3 4 2 4 1 C 1 7 1 1 3 2 5 6 7 9 7 2 4 D B 2 1 2 0 3 3 1 1 2 2 2 1 1 2 1 1 1 0 8 8 8 8 9 4 3 4 3 4 5 5 0 4 9 5 2 4 9 4 7 4 7 5 1 5 0 5 3 4 9 …

- -
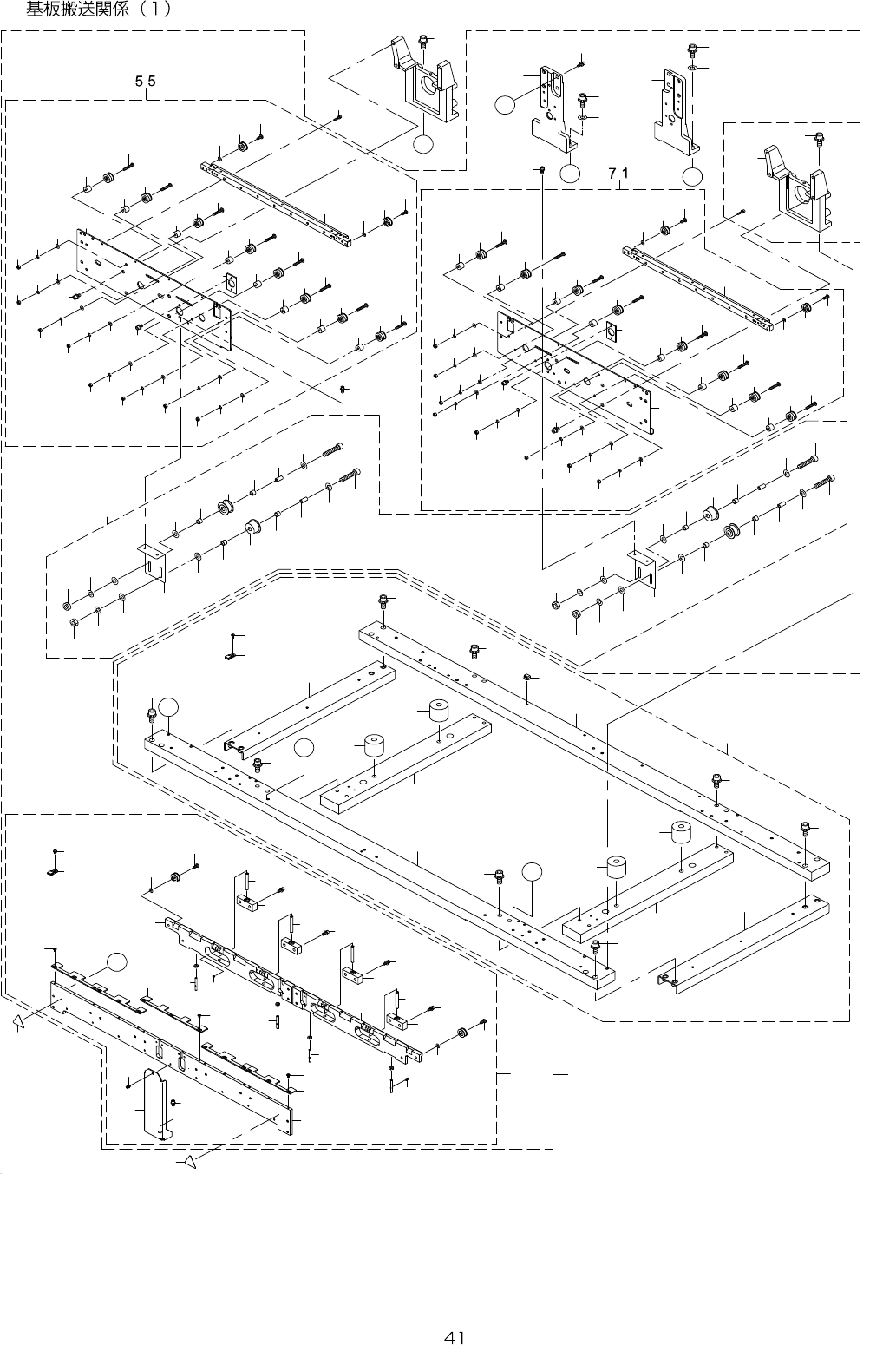
REF.NO NOTE PARTNO DESCRIPTION Qty
1 401-86336 BASE_BRIDGE_RS1 1
2 HX-0070600-0A MOUNTBASE 2
3 SL-6062592-TN SCREWM6L=25 4
4 SL-6064092-TN SCREW 6
5 401-83478 ATC_RS1_ASM 1
6 SL-6030692-TN SCREWM3L=6 (2)
7 401-82955 ATC_BASE_RS1 (1)
8 SL-4030891-SC SCREWM3L=8 (2)
9 401-82965 SENSOR_BR_RS1 (1)
10 PC-0105080-00 SPEEDCONTROLLER (2)
11 401-46937 ATC_SV_20VA_ASM (1)
12 PV-1505380-00 5-PORTSOLENOIDVALVE (1)
13 PX-0505010-00 SILENCER (2)
14 PJ-2100061-00 HALFUNION (1)
15 401-28203 ATC_SV_BRKT (1)
16 SL-6040892-TN SCREWM4L=8 (2)
17 401-82959 ATC_BASE_PLATE_RS1 (1)
18 401-82958 SLIDE_BASE_RS1 (1)
19 SM-1051452-TN PLATESCREWM5L=14 (4)
20 401-51721 GUIDE_SPACER (4)
21 401-82957 SLIDE_PLATE_RS1 (1)
22 E7308-700-000 THRUSTWASHER (8)
23 WP-0431005-SP PLAINWASHER (4)
24 401-83481 CAL_VALVE_RS1_ASM (1)
25 PV-1305410-00 3-PORTSOLENOIDVALVE (1)
26 PX-0505010-00 SILENCER (1)
27 PJ-3010405-05 HALFUNION (1)
28 SM-6031202-TN SCREWM3X12 (2)
29 401-82962 CAL_VALVE_BR_RS1 (1)
30 PF-0100030-A0 AIRSUCTIONFILTER (1)
31 SM-1030601-SC SCREWM3X6 (2)
32 PJ-3040605-02 ELBOWUNION6XM5 (1)
33 400-45978 SENSORDOG (1)
34 SL-6030692-TN SCREWM3L=6 (1)
35 400-01286 ATCSPACERRUBBER (1)
36 B2107-816-000 WASHER (1)
37 GLA-02335000 CLAMPWASHER (1)
38 E3528-729-000 ATCJOINT (1)
39 401-29062 PHOTOMICROSENSORASM (1)
40 401-29062 PHOTOMICROSENSORASM (1)
41 SM-4030501-SC SCREWM3X0.5L=5 (4)
42 401-82966 AIR_CYLINDER_6STROKE (1)
43 BT-0400251-EA URETHANETUBEBLUE4X2.5 (1.5)
44 401-82970 ATC_LABEL_RS1 (1)
45 401-82969 CHIP_BOX_HANGER_RS1 (1)
46 SM-1040852-TP DISHSCREW (2)
47 SL-6041092-TN SCREWM4L=10 (4)
48 401-82960 SLIDER_ANGLE_RS1 (1)
49 SL-6041042-TN BOLT (2)
50 SL-6044092-TN SCREW (2)
51 401-83479 CAL_BLOCK_RS1_ASM 1
52 401-83480 NOZZLE_CAL_PIECE_ASM (1)
53 401-82964 CAL_POST_HOUSING_RS1 (1)
54 NM-6050001-SC NUTM5X0.8TYPE1 (1)
55 401-29080 AIR(N)SENSORCABLEASM (1)
56 PJ-0205000-02 PLUG (1)
57 401-82963 CAL_POST_RS1 (1)
58 L203E-121-000 NOZZLECALPIECEOUTERSP (1)
59 SL-4030891-SC SCREWM3L=8 (2)
60 PJ-3010405-05 HALFUNION (1)
61 400-07376 CALBLOCKPCBASM (1)
62 401-82976 CAL_SUB_PLATE_RS1_CD (1)
63 SM-6040802-TN SCREWM4X0.7L=8 (1)
64 401-82961 CAL_PLATE_RS1 (1)
65 SM-1051452-TN PLATESCREWM5L=14 (2)
66 BT-0400251-EB URETHANEHOSE,BLACK (0.3)
67 L202E-521-000 CALSIDECOVER (1)
68 SM-6030602-TN SCREWM3X6 (2)
69 L202E-621-000 CALDIFFUSER (1)
70 SL-4030691-SC SCREWM3L=6 (2)
71 401-86273 ATC_SUPPORT_PIN 2

- -
21.PWBCONVEYORCOMPONENTS(1)
1
4 0
1 2
3 8
3 9
8 6
1 2
D
C
B
A
1 3
1 3
4 2
4 1
C
1 7
1 1
3 2
5
6
7
9
7
2 4
D
B
2 1
2 0
3 3
1 1
2
2
2
1 1
2
1 1
1 0
8
8
8
8
9
4
3
4 3
4 5
5 0
4 9
5 2
4 9
4 7
4 7
5 1
5 0
5 3
4 9
5 4
4 9
4 7
4 8
4 7
5 1
4 9
4 9
4 6
5 2
4 8
2 3
2 5
2 8
2 8
3 1
3 1
3 1
3 1
2 9
3 4
3 5
3 0
3 0
3 0
2 0
3 3
2 1
3 6
3 6
2 2
2 2
2 7
2 6
1 8
3 7
A
1 9
6 8
4 9
5 0
5 1
4 9
5 0
5 1
5 2
5 2
5 3
4 9
4 9
4 9
4 7
4 8
4 7
5 4
4 6
4 7
4 8
4 7
4 9
5 7
5 8
6 7
6 5
6 2
6 4
6 3
5 9
1 4
6 3
6 2
6 4
6 2
6 3
6 4
6 3
6 2
6 4
6 3
6 2
7 0
6 3
6 2
7 0
6 3
6 2
6 4
4 4
6 0
6 1
6 0
5 9
6 1
6 6
6 7
6 6
6 5
6 7
6 6
6 5
6 7
6 5
6 6
6 7
6 5
6 6
6 7
6 6
6 5
6 7
6 6
6 5
6 7
6 6
6 5
5 6
1 4
8 1
8 0
7 3
7 3
7 5
7 8
7 7
7 6
7 3
7 3
7 5
7 3
7 3
7 5
7 3
7 3
7 5
7 3
7 4
7 5
7 4
7 3
7 5
7 4
7 3
7 5
7 4
7 3
7 5
8 4
8 2
8 5
7 2
8 5
8 2
7 2
7 9
7 8
7 7
7 6
7 8
7 7
7 6
7 8
7 7
7 6
7 8
7 7
7 6
7 8
7 6
7 7
7 8
7 7
7 6
7 8
7 7
7 6
8 3
4 4
2 7
2 2
3 6
2 7
2 2
3 6
2 7
6 3
6 2
6 4
6 9
1 5
1 5
1 6

- -
REF.NO NOTE PARTNO DESCRIPTION Qty
1 401-83567 BASE_BAR_ASM 1
2 SL-6063592-TN SCREW (8)
3 HX-0034400-00 HARNESSPARTS (1)
4 SM-4040601-SC SCREWM4X0.7L=6 (1)
5 401-83052 BASE_BAR_R (1)
6 401-86605 BASE_BAR_F_L_ADD (1)
7 400-70087 BASEBARS(L) (2)
8 401-83377 BASE_BAR_SPACER (2)
9 400-00996 BASEBARSS(L) (2)
10 HX-0070600-0A MOUNTBASE (4)
11 SL-6084092-TN BOLT (8)
12 400-46032 RAILSTANDF(L) 2
13 SL-6052092-TN SCREWM5L=20 4
14 SL-6031492-TN SCREWM3L=14 8
15 CM-3002000-03 ATTENTIONLABEL 2
16 401-83564 CONVEYOR_RAIL_F_ASM 1
17 401-83830 CONVEYOR_RAIL_FC_ASM (1)
18 SL-4030691-SC SCREWM3L=6 (6)
19 SL-6040892-TN SCREWM4L=8 (1)
20 WP-0430800-SC WASHERM4 (8)
21 SM-4040855-SC SCREW (8)
22 401-28609 SHAFT_SUPPORT_ASM (4)
23 401-83040 RAIL_GUIDE_F_650 (1)
24 SM-8030302-TP SCREWM3X3 (4)
25 401-83041 CONVEYOR_RAIL_C_A (1)
26 401-83029 CONVEYOR_RAIL_C_B (1)
27 SL-6041092-TN SCREWM4L=10 (8)
28 401-83027 PWB_GUIDE_PLATE_A (4)
29 401-83056 PWB_GUIDE_PLATE_C (1)
30 EZ-4453818-01 BOLT(CBSTSR3-5) (15)
31 401-83077 CLAMP_SHAFT (4)
32 SM-8040602-TP SCREWM4X0.7L=6 (2)
33 E2111-715-0A0 CONVEYORPULLEYASM. (8)
34 401-83379 RAIL_GUIDE_SUPPORT (1)
35 SL-6030692-TN SCREWM3L=6 (1)
36 401-28520 NEEDLE_ROLLER (4)
37 HX-0034400-00 HARNESSPARTS (6)
38 WP-0501046-SC WASHER5X14X1 (2)
39 SL-6052092-TN SCREWM5L=20 (2)
40 400-00802 RAILSTANDCL (1)
41 SL-6052092-TN SCREWM5L=20 (2)
42 400-00805 RAILSTANDCR (1)
43 SL-6041292-TN SCREWM4L=12 (4)
44 SL-6041092-TN SCREWM4L=10 (4)
45 401-84582 PULLEY_BRAKET_ASM (1)
46 E2016-715-000 IDLERPULLEY (2)
47 E2017-715-000 MLINERBUSH (8)
48 E2018-715-000 PULLEYSLEEVE (4)
49 WP-0531001-SC WASHERM5 (12)
50 WS-0510002-KN SPRINGWASHERM5 (4)
51 NM-6050001-SC NUTM5X0.8TYPE1 (4)
52 SM-6052502-TN SCREW (4)
53 400-00976 PULLEYBRAKET (2)
54 E2157-721-000 PULLEYB (2)
55 401-83828 RAIL_PLATE_FL_ASM (1)
56 SL-6051092-TN SCREWM5L=10 (4)
57 E2012-721-000 ADJUSTPLATE (1)
58 SL-6030692-TN SCREWM3L=6 (2)
59 E2111-715-0A0 CONVEYORPULLEYASM. (2)
60 WP-0430800-SC WASHERM4 (2)
61 SM-4040855-SC SCREW (2)
62 E2089-721-0A0 CONVEYORPULLEYBASM. (8)
63 E2055-721-000 PULLEYSPACER (8)
64 SM-4042501-SC SCREWM4X0.7L=25 (6)
65 WP-0430801-SC WASHERM4 (8)
66 WS-0410002-KN SPRINGWASHERM4 (8)
67 NM-6040001-SC NUTM4X0.7TYPE1 (8)
68 401-83032 CONVEYOR_RAIL_S (1)
69 401-83043 RAIL_PLATE_FL (1)
70 SM-4042301-SC SCREWM4X0.7L=23 (2)
71 401-83829 RAIL_PLATE_FR_ASM (1)
72 SM-4040855-SC SCREW (2)
73 E2089-721-0A0 CONVEYORPULLEYBASM. (8)
74 E2055-721-000 PULLEYSPACER (8)
75 SM-4042501-SC SCREWM4X0.7L=25 (8)
76 WP-0430801-SC WASHERM4 (8)
77 WS-0410002-KN SPRINGWASHERM4 (8)
78 NM-6040001-SC NUTM4X0.7TYPE1 (8)
79 401-83032 CONVEYOR_RAIL_S (1)
80 E2012-721-000 ADJUSTPLATE (1)
81 SL-6030692-TN SCREWM3L=6 (2)
82 E2111-715-0A0 CONVEYORPULLEYASM. (2)
83 401-83044 RAIL_PLATE_FR (1)
84 SL-6051092-TN SCREWM5L=10 (4)
85 WP-0430800-SC WASHERM4 (2)
86 WP-0501046-SC WASHER5X14X1 (2)