RX-7_RX-7R-Rev09 - 第15页
A-8 A3 【共通】 XYZ フレーム -2 【 COMMON 】 XYZfra me-2 イラスト番号 Ref.No. 品番 PartNumber Description 品名 個数 Q'ty 備考 Remarks 1 EZ1-798-475-1 1 SWITCH(A V630564) スイツチ(AV630564) 2 2 EZ2-022-865 -0…

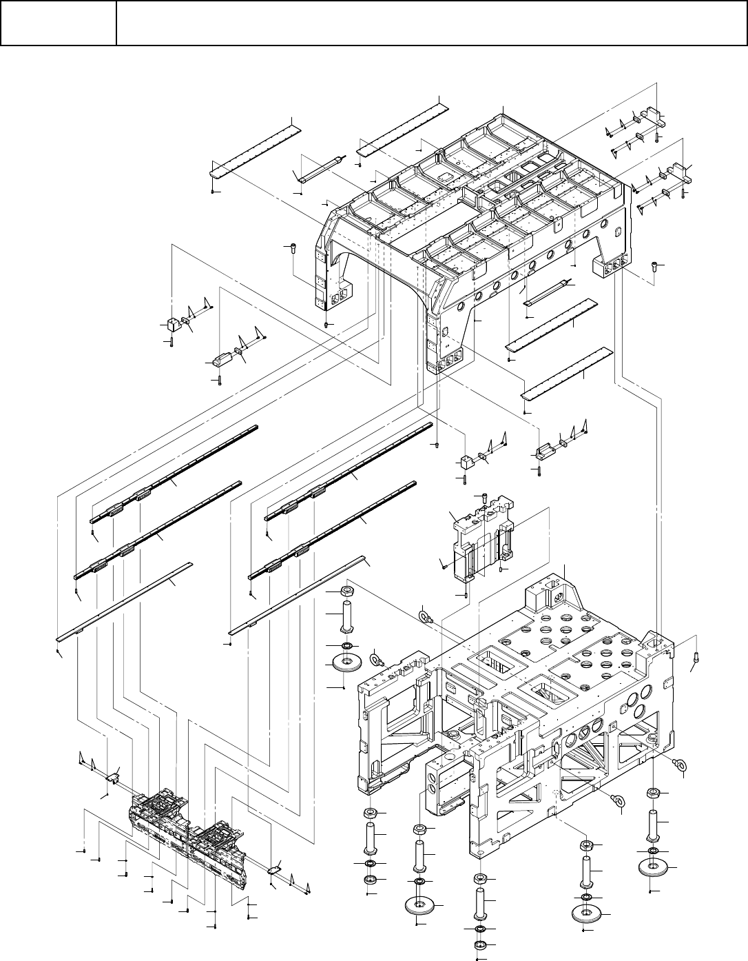
A-7
A3
【共通】XYZ フレーム-2
【COMMON】XYZframe-2
25
30
22
23
1
33
32
3
11
4
27
20
19
18
9
5
28
2
26
3030
17
13
12
17
29
16
24
6
31
21
7
30
31
4
31
30
4
10
30
30
8
21
26
26
21
26
30
30
15
14
15
31

A-8
A3
【共通】XYZ フレーム-2
【COMMON】XYZframe-2
イラスト番号
Ref.No.
品番
PartNumber
Description
品名
個数
Q'ty
備考
Remarks
1 EZ1-798-475-11 SWITCH(AV630564) スイツチ(AV630564) 2
2 EZ2-022-865-01 PIN,PARALLEL(DIA.3M6X10) ヘイコウピン(フアイ3M6X10) 2
RX-7
3 EZ3-879-759-01 FOLLOWER(NART6-VR),ROLLER ロ-ラフオロア(NART6-VR) 2
4 EZ4-152-940-11 FOLLOWER(CFS4),MINIATURECAM ミニチユアカムフオロア(CFS4) 8
5 EZ4-474-883-01 JOINT,ELBOW(KQ2K08-01AS) エルボカンツギテ(KQ2K08-01AS) 2
6 EZ4-442-207-01 JOINT,ELBOW(KQ2K06-M5N) エルボカンツギテ(KQ2K06-M5N) 2
7 EZ4-455-643-01 BRACKET,ROLLER ロ-ラ-ブラケツト 2
8 EZ4-455-644-01 SHAFT,ROLLER ロ-ラ-シヤフト 2
9 EZ4-455-646-04 PLATE,BASE ベ-スプレ-ト 2
10 EZ4-455-649-01 HEADRETAINERBLOCK,ZAXIS Zジクガワヘツドウケブロツク 2
11 EZ4-455-650-02 BRACKET,CAMFOLLOWER カムフオロワブラケツト 2
12 EZ4-455-652-02 SHAFT,CAM カムシヤフト 2
RX-7
13 EZ4-455-653-02 CAM カム 2
RX-7
14 EZ4-455-654-02 BRACKET,CAM カムブラケツト 2
RX-7
15 EZ4-455-655-01 PLATE,SIDE サイドプレ-ト 4
RX-7
16 EZ4-455-656-01 HANDLE ハンドル 2
RX-7
17 EZ4-455-665-01 BUSHING(30F-0810),FLANGE フランジブツシユ(30F-0810) 4
RX-7
18 EZ4-455-698-01 PACKING(VACUME) パツキン(バキユ-ム) 2
19 EZ4-455-699-01 PACKING(BLOW) パツキン(ブロ-) 2
20 EZ4-455-700-01 HOLDER,PACKING パツキンホルダ- 2
21 EZ4-457-189-01 CLIP(AB-2N9,NYLON ナイロンクリツプ(AB-2N) 6
22 EZ4-459-059-01 BRACKET,SENSOR センサ-ブラケツツト 2
23 EZ4-459-060-01 NUTPLATE(ZAXIS) イタナツト(Z ジク) 2
24 EZ4-459-186-01 INDEXPLUNGER(PMX-4-A) インデツクスプランジヤ(PMX-4-A) 2
RX-7
25 EZ4-459-203-01 BOLTHEXAGONSOCKET2.3X10 ロツカクアナツキボルト2.3X10 4
26 EZ4-716-688-01 SCREW,CAP(M4X6) キヨクテイトウキヤツプスクリユ-(M4X6) 12
27 EZ7-621-555-39 SCREW+K2X5 +K2X5 4
28 EZ7-626-317-31 PIN,SPRING2.5X16 スプリングピン2.5X16 2
RX-7
29 EZ7-626-320-71 PIN,SPRING3X20 スプリングピン3X20 2
RX-7
30 EZ7-683-403-04 BOLT,HEXAGONSOCKET3X6 6 カクアナツキボルト3X6 40
31 EZ7-683-420-04 BOLT,HEXAGONSOCKET4X10 6 カクアナツキボルト4X10 20
32 EZ7-684-025-04 N5TYPE2 N5TYPE2 2
33 EZ7-688-005-11 W5,MIDDLE W5,MIDDLE 2

A-9
A4-1
【RX-7】架台 ASSY-1
【RX-7】Baseframeassy-1
36
26
24
24
27
27
35
35
13
33
18
15
19
28
33
28
28
18
35
35
27
24
36
23
27
24
35
35
27
24
36
13
28
28
19
28
14
18
18
33
33
24
27
36
25
35
27
24
22
29
20
20
16
7
3
5
1
3
2
4
7
8
13
7
4
2
33
1
5
4
2
33
1
5
4
2
33
1
5
4
2
33
6
5
4
2
33
6
5
7
20
34
20
17
31
34
34
31
32
37
21
30
33
33
34
38
34
38
33
33
38
38
34
34
30
21
37
32
34
36
13
10
12
11
11
35
23
27
24
9
26
36
25