NXTII partlist - 第323页
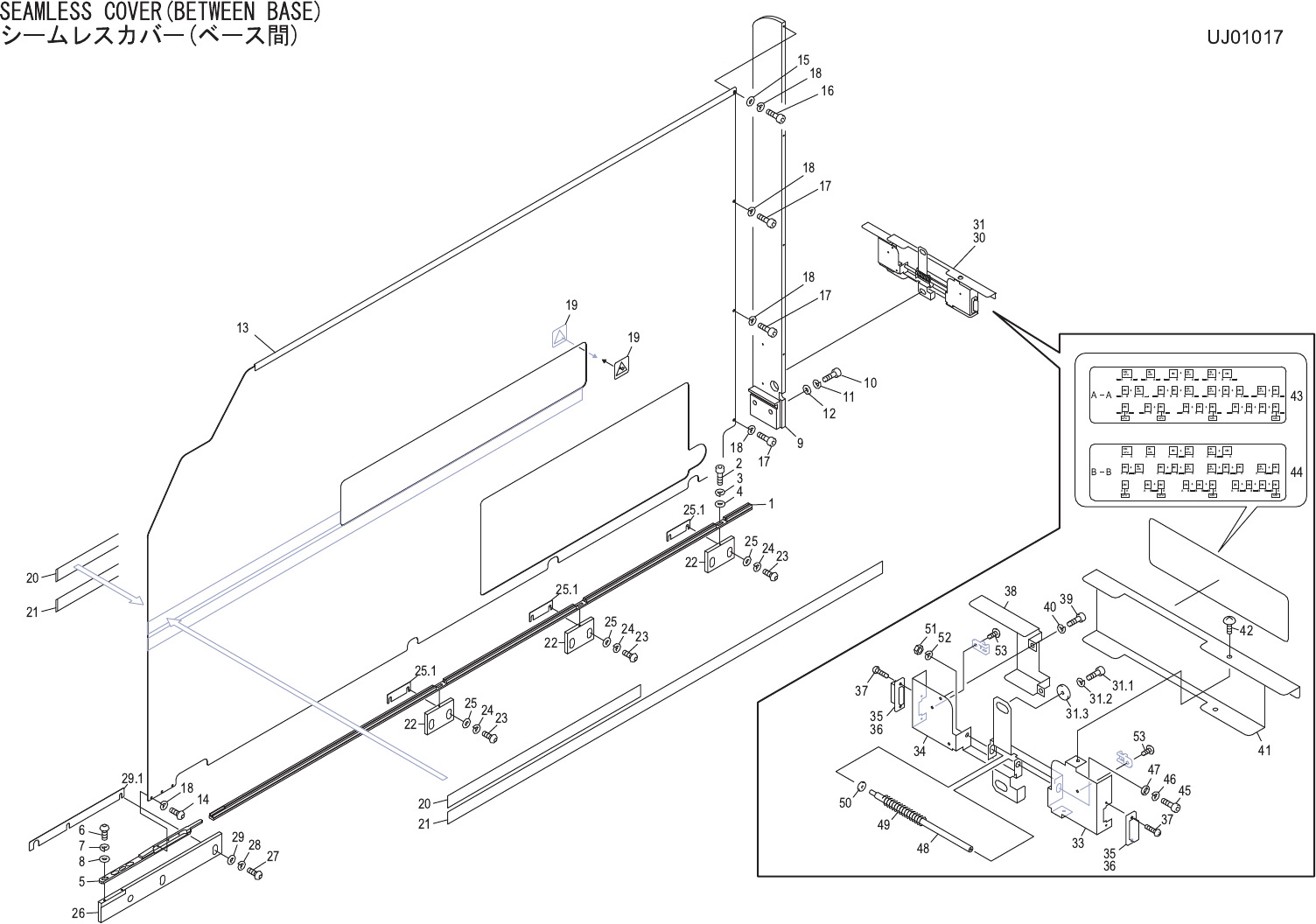
SEAMLESS COVER(BETWEEN BASE) シームレスカバー(ベース間) UJ01017 No. Drg.No. & Code No. QTY Description Rating Materials Remarks 番号 図番 & コード番号 個 数 品名 規格 材質 備考 1 PT00551 1 RAIL, LOWER レール 下 AL 2 H5289A 3 BOLT, HEX SOCKET ボルト …

322
PTS-NXT2-04JE Vol.1

SEAMLESS COVER(BETWEEN BASE)
シームレスカバー(ベース間) UJ01017
No. Drg.No. & Code No. QTY Description Rating Materials Remarks
番号 図番 & コード番号 個数 品名 規格 材質 備考
1 PT00551 1 RAIL, LOWER レール 下 AL
2 H5289A 3 BOLT, HEX SOCKET ボルト 六角穴 M04X012 FE
3 W1022A 3 WASHER, LOCK ワッシャ スプリング 4M/M FE
4 W1040S 3 WASHER, FLAT ワッシャ 平 4M/MX0.8X9(1W-4)(3カ クロ) FE
5 PM55253 1 BKT, COVER BKT カバー FE
6 K5258Z 2 SCREW, HEX SOCKET BUTTON 小ネジ 六角穴ボタン M05X015(3カ シロ) FE
7 W1023A 2 WASHER, LOCK ワッシャ スプリング 5M/M FE
8 W1040T 2 WASHER, FLAT ワッシャ 平 5M/MX1.0X10(1W-5)(3カ クロ) FE
9 PM69224 1 STAND スタンド FE
10 H5342A 2 BOLT, HEX SOCKET ボルト 六角穴 M08X025 FE
11 W1025A 2 WASHER, LOCK ワッシャ スプリング 8M/M FE
12 W1046A 2 WASHER, FLAT ワッシャ 平 4W- 8 FE
13 PB00CN0 1 COVER カバー FE
14 K5258K 3 SCREW, HEX SOCKET BUTTON 小ネジ 六角穴ボタン M04X006(3カ シロ) FE
15 W1043A 1 WASHER, FLAT ワッシャ 平 4W- 4 FE
16 H5289A 1 BOLT, HEX SOCKET ボルト 六角穴 M04X012 FE
17 H5287A 3 BOLT, HEX SOCKET ボルト 六角穴 M04X008 ゼンネジ FE
18 W1022A 7 WASHER, LOCK ワッシャ スプリング 4M/M FE
19 PZ25391 2 SEAL シール PL
20 PZ45970 2 TAPE テープ OT
21 PZ45980 2 TAPE テープ OT
22 PM49083 3 BKT BKT FE
23 K5258X 6 SCREW, HEX SOCKET BUTTON 小ネジ 六角穴ボタン M05X010(3カ シロ) FE
24 W1023A 6 WASHER, LOCK ワッシャ スプリング 5M/M FE
25 W1040T 6 WASHER, FLAT ワッシャ 平 5M/MX1.0X10(1W-5)(3カ クロ) FE
25.1 PB077G0 3 SHIM シム FE NOTE.1 t=0.5
26 PM51873 1 BKT BKT FE
27 K5258X 2 SCREW, HEX SOCKET BUTTON 小ネジ 六角穴ボタン M05X010(3カ シロ) FE
28 W1023A 2 WASHER, LOCK ワッシャ スプリング 5M/M FE
29 W1040T 2 WASHER, FLAT ワッシャ 平 5M/MX1.0X10(1W-5)(3カ クロ) FE
29.1 PB077E0 1 SHIM シム FE NOTE.2 t=0.5
30 AA2LW03 1 CONNECTOR コネクタ OT "With-With CPU" "CPU有有"
31 AA2LX03 1 CONNECTOR コネクタ OT
"With-Without CPU" "CPU有無"
31.1 H5288A 2 BOLT, HEX SOCKET ボルト 六角穴 M04X010 FE
31.2 W1022A 2 WASHER, LOCK ワッシャ スプリング 4M/M FE
31.3 W10922 2 WASHER ワッシャ WSSM16-4-3 FE
33 PB43612 1 BKT BKT FE
34 PB43622 1 BKT BKT FE
323
PTS-NXT2-04JE Vol.1

SEAMLESS COVER(BETWEEN BASE)
シームレスカバー(ベース間) UJ01017
No. Drg.No. & Code No. QTY Description Rating Materials Remarks
番号 図番 & コード番号 個数 品名 規格 材質 備考
35 RH20110 1 HARNESS ハーネス OT "With-With CPU" "CPU有有"
36 RH20120 1 HARNESS ハーネス OT
"With-Without CPU" "CPU有無"
37 K51757 4 SCREW, C/R PAN 小ネジ 十穴鍋 M02.5X006 ステンレス FE
38 PB43643 1 COVER カバー FE
39 H5286A 2 BOLT, HEX SOCKET ボルト 六角穴 M04X006 FE
40 W1022A 2 WASHER, LOCK ワッシャ スプリング 4M/M FE
41 PB43633 1 COVER カバー FE
42 K5172L 2 SCREW, C/R TRUSS 小ネジ 十穴トラス M04X006(3カ シロ) FE
43 PZ20701 1 SEAL シール PL "With-With CPU" "CPU有有"
44 PZ20711 1 SEAL シール PL
"With-Without CPU" "CPU有無"
45 H5274A 1 BOLT, HEX SOCKET ボルト 六角穴 M03X006 FE
46 W1021A 1 WASHER, LOCK ワッシャ スプリング 3M/M FE
47 W1098G 1 WASHER ワッシャ UW-0310-15 OT
48 PM74221 1 SHAFT シャフト FE
49 S3019R 1 SPRING スプリング WY8-70 OT
50 S3058F 1 SPACER スペーサ CU-602 OT
51 N10796 1 NUT, HEX ナット 六角 M04(3カ クロ) FE
52 W1022A 1 WASHER, LOCK ワッシャ スプリング 4M/M FE
53 K5172L 2 SCREW, C/R TRUSS 小ネジ 十穴トラス M04X006(3カ シロ) FE
NOTE.1:[Interchangeable parts/選択部品]PB077H0(t=1.0)
NOTE.2:[Interchangeable parts/選択部品]PB077F0(t=1.0)
324
PTS-NXT2-04JE Vol.1