NXTII partlist - 第333页
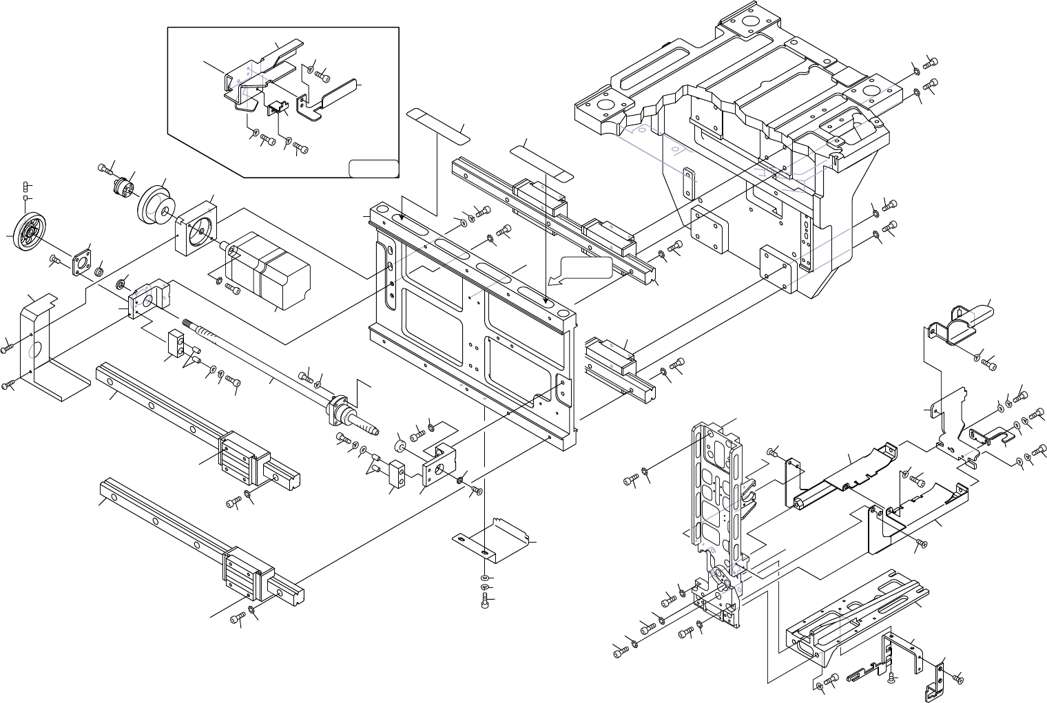
M3 II-X SLIDE 2/3 M3 II-Xスライド 2/3 US01315 No. Drg.No. & Code No. QTY Description Rating Materials Remarks 番号 図番 & コード番号 個 数 品名 規格 材質 備考 1 XG01352 2 GUIDE, RAIL ガイド レール OT 2 H5263B 10 BOLT, HEX SOCKET ボルト 六角穴 M04…

AA
AA
VIEW Z
VIEW Z
CC
BB
BB
CC
DD
DD
59
57
58
52
53
51
56
55
54
6
7
6
7
6
7
6
7
1
1
2
8
3
2
3
42
41
24
25
18
31
30
17
43
15
14
13
12
19
19
16
20
20
22.1
22.1
21
21
49
50
44
36
26
27
22
22
23
87
88
11
10
11
10
9
66
66.1
65
68
69
90
92
89
91
74
78
79
70
71
75
84
81
82
83
80
85
86
81
82
83
76
77
61
62
63
64
72
73
9.1
39
40
94
95
96
93
28
29
29
32
35
34
33
38
46
47
45
48
37
0,,;ࢫࣛࢻ
0,,;6/,'(
US01315
332
PTS-NXT2-04JE Vol.1

M3 II-X SLIDE 2/3
M3 II-Xスライド 2/3 US01315
No. Drg.No. & Code No. QTY Description Rating Materials Remarks
番号 図番 & コード番号 個数 品名 規格 材質 備考
1 XG01352 2 GUIDE, RAIL ガイド レール OT
2 H5263B 10 BOLT, HEX SOCKET ボルト 六角穴 M04X016 FE
3 W1011A 10 WASHER, CONICAL ワッシャ 皿 M- 4-L FE
6 H5289A 16 BOLT, HEX SOCKET ボルト 六角穴 M04X012 FE
7 W1011A 16 WASHER, CONICAL ワッシャ 皿 M- 4-L FE
8 PM07CF3 1 SLIDE, INTERMEDIATE スライド 中間 FE
9 XG02110 1 GUIDE, RAIL ガイド レール OT
9.1 XG02100 1 GUIDE, RAIL ガイド レール OT
10 H5263B 10 BOLT, HEX SOCKET ボルト 六角穴 M04X016 FE
11 W1011A 10 WASHER, CONICAL ワッシャ 皿 M- 4-L FE
12 PB92891 1 DOG, SW ドッグ SW FE
13 H5275A 2 BOLT, HEX SOCKET ボルト 六角穴 M03X008 FE
14 W1021A 2 WASHER, LOCK ワッシャ スプリング 3M/M FE
15 W1042A 2 WASHER, FLAT ワッシャ 平 4W- 3 FE
16 PM00348 1 HOLDER, BEARING ホルダ ベアリング FE
17 H5298A 2 BOLT, HEX SOCKET ボルト 六角穴 M05X010 FE
18 W1012A 2 WASHER, CONICAL ワッシャ 皿 M- 5-L FE
19 PH01830 2 STOPPER ストッパ PL
20 PM40621 4 COLLAR カラー FE
21 H5277A 4 BOLT, HEX SOCKET ボルト 六角穴 M03X012 FE
22 W1021A 4 WASHER, LOCK ワッシャ スプリング 3M/M FE
22.1 W1040R 4 WASHER, FLAT ワッシャ 平 3M/MX0.5X7(1W-3)(3カ クロ) FE
23 PM58054 1 HOLDER, BEARING ホルダ ベアリング FE
24 H5287A 2 BOLT, HEX SOCKET ボルト 六角穴 M04X008 ゼンネジ FE
25 W1011A 2 WASHER, CONICAL ワッシャ 皿 M- 4-L FE
26 PM00333 1 RETAINER, BEARING 押え ベアリング FE
27 K5357M 4 SCREW, HEX SOCKET COUNTERSUNK 小ネジ 六角穴皿 M03X006 FE
28 PB015G1 1 COVER カバー FE
29 K5177W 2 SCREW, C/R PAN 小ネジ 十穴鍋 M02.6X004(0バン1シュ) FE
30 PB00331 1 WASHER ワッシャ FE
31 K5357T 1 SCREW, HEX SOCKET COUNTERSUNK 小ネジ 六角穴皿 M03X008 FE
32 H4900Y 1 BEARING ベアリング MR126ZZ OT
33 XB00785 1 BALL SCREW ボールネジ OT
34 H5277A 4 BOLT, HEX SOCKET ボルト 六角穴 M03X012 FE
35 W1021A 4 WASHER, LOCK ワッシャ スプリング 3M/M FE
36 PM00352 1 COLLAR カラー FE
37 XB00801 1 BEARING ベアリング OT
38 PM0CEG2 1 GEAR, HELICAL ギヤ ヘリカル FE
333
PTS-NXT2-04JE Vol.1

M3 II-X SLIDE 2/3
M3 II-Xスライド 2/3 US01315
No. Drg.No. & Code No. QTY Description Rating Materials Remarks
番号 図番 & コード番号 個数 品名 規格 材質 備考
39 K52633 3 BLOCK, CLAMP 駒 クランプ SEPNS3 OT
40 N4018A 3 SCREW, HEX SOCKET SET ネジ 六角穴止め M03X003 クボミサキ FE
41 H5263C 2 BOLT, HEX SOCKET ボルト 六角穴 M05X016 FE
42 W1023A 2 WASHER, LOCK ワッシャ スプリング 5M/M FE
43 W1044A 2 WASHER, FLAT ワッシャ 平 4W- 5 FE
44 PM00408 1 BKT, MOTOR BKT モータ FE
45 XM00212 1 MOTOR, AC SERVO モータ ACサーボ OT
46 H5289A 2 BOLT, HEX SOCKET ボルト 六角穴 M04X012 FE
47 W1011A 2 WASHER, CONICAL ワッシャ 皿 M- 4-L FE
48 PM0CCF2 1 GEAR, HELICAL ギヤ ヘリカル FE
49 K1001F 1 COUPLING カップリング MA-8-21 OT
50 H5289A 4 BOLT, HEX SOCKET ボルト 六角穴 M04X012 FE
51 PB91796 1 BKT, WIRING BKT 配線 FE
52 H5275A 2 BOLT, HEX SOCKET ボルト 六角穴 M03X008 FE
53 W1021A 2 WASHER, LOCK ワッシャ スプリング 3M/M FE
54 PB02SR0 1 RETAINER, WIRING 押え 配線 FE
55 H5273A 1 BOLT, HEX SOCKET ボルト 六角穴 M03X005 FE
56 W1021A 1 WASHER, LOCK ワッシャ スプリング 3M/M FE
57 PB032M1 1 RETAINER, WIRING 押え 配線 FE
58 H5274A 2 BOLT, HEX SOCKET ボルト 六角穴 M03X006 FE
59 W1021A 2 WASHER, LOCK ワッシャ スプリング 3M/M FE
61 H5288A 7 BOLT, HEX SOCKET ボルト 六角穴 M04X010 FE
62 W1011A 7 WASHER, CONICAL ワッシャ 皿 M- 4-L FE
63 H5263B 1 BOLT, HEX SOCKET ボルト 六角穴 M04X016 FE
64 W1011A 1 WASHER, CONICAL ワッシャ 皿 M- 4-L FE
65 PM0AXA2 1 BKT BKT FE
66 H5289A 1 BOLT, HEX SOCKET ボルト 六角穴 M04X012 FE
66.1 W1011A 1 WASHER, CONICAL ワッシャ 皿 M- 4-L FE
68 H5288A 2 BOLT, HEX SOCKET ボルト 六角穴 M04X010 FE
69 W1022A 2 WASHER, LOCK ワッシャ スプリング 4M/M FE
70 PB90963 1 COVER カバー FE
71 K5169A 2 SCREW, C/R COUNTERSUNK 小ネジ 十穴皿 M02.5X004(ステンレス) FE
72 H5289A 1 BOLT, HEX SOCKET ボルト 六角穴 M04X012 FE
73 W1011A 1 WASHER, CONICAL ワッシャ 皿 M- 4-L FE
74 PB01GW1 1 COVER カバー FE
75 K5169A 2 SCREW, C/R COUNTERSUNK 小ネジ 十穴皿 M02.5X004(ステンレス) FE
76 H5289A 1 BOLT, HEX SOCKET ボルト 六角穴 M04X012 FE
77 W1011A 1 WASHER, CONICAL ワッシャ 皿 M- 4-L FE
334
PTS-NXT2-04JE Vol.1