NXTII partlist - 第635页
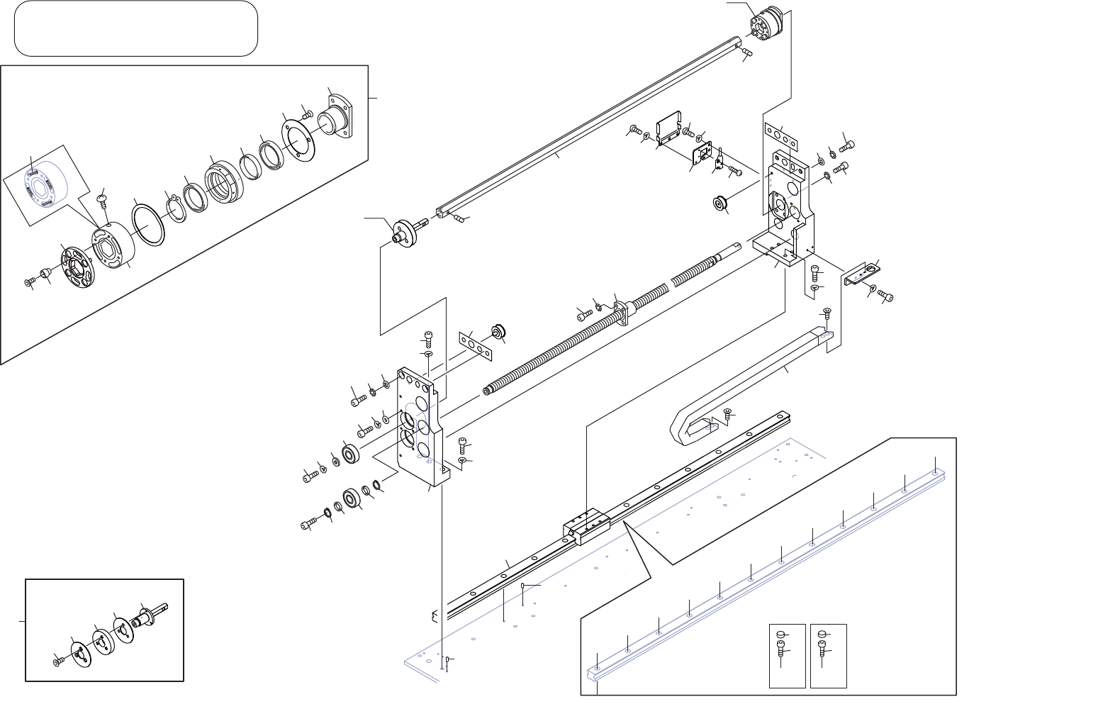
M6 II-SINGLE CONVEYOR 5/6 M6 II-シングルコンベア 5/6 UQ04310 No. Drg.No. & Code No. QTY Description Rating Materials Remarks 番号 図番 & コード番号 個 数 品名 規格 材質 備考 1 H2096H 3 PIN, PARALLEL ピン 平行 ゚3X6 Bシュ(ステンレス) OT 2 PM04XG4 1 BK…

WW
AA
BB
AA
AA
AA
BB
AA
AA
AA
BB
AA
AA
AA
BB
&RQYH\DQFHGULYHD[LV
ᦙ㏦㥑ື㍈
VV
DETAIL WW
DETAIL VV
14
2
21
8
28
73
76
105
9
27
106
59
3
6
22
25
4
5
10
11
24
23
1
60
60
68
69
70
79
80
81
71
72
72
74
75
75
32
34
35
29
30
31
77
78
96
94
97
103
95
93
99
102
104
99
91
92
98
100
101
84
84
85
86
87
15.1
60.1
60.1
4.1
23.1
12
13
13
12
15
16
17
55
57
56
58
56
36
37
90
83
0,,ࢩࣥࢢࣝࢥࣥ࣋
0,,6,1*/(&219(<25
UQ04310
158
PTS-NXT2-04JE Vol.2

M6 II-SINGLE CONVEYOR 5/6
M6 II-シングルコンベア 5/6 UQ04310
No. Drg.No. & Code No. QTY Description Rating Materials Remarks
番号 図番 & コード番号 個数 品名 規格 材質 備考
1 H2096H 3 PIN, PARALLEL ピン 平行 ゚3X6 Bシュ(ステンレス) OT
2 PM04XG4 1 BKT BKT FE
3 PJ16803 1 SHEET シート OT Consumable Parts
4 H5298A 2 BOLT, HEX SOCKET ボルト 六角穴 M05X010 FE
4.1 PM015W0 2 BOLT, HEX SOCKET ボルト 六角穴 FE Thin panel option
5 W1012A 2 WASHER, CONICAL ワッシャ 皿 M- 5-L FE
6 PJ12922 2 WASHER ワッシャ OT
8 H5324A 2 BOLT, HEX SOCKET ボルト 六角穴 M06X020 FE
9 W1024A 2 WASHER, LOCK ワッシャ スプリング 6M/M FE
10 H54275 1 BOLT, HEX SOCKET ボルト 六角穴 M06X030(3カ シロ) FE
11 W1024A 1 WASHER, LOCK ワッシャ スプリング 6M/M FE
12 S1031A 2 CIR-CLIP サークリップ STW 10 OT
13 W10049 2 WASHER ワッシャ LRB10-1.0 OT
14 H4202Z 1 BEARING ベアリング 6900ZZ OT
15 XN00223 1 SCREW ネジ OT
15.1 H52966 1 BOLT, HEX SOCKET ボルト 六角穴 M05X006 FE
16 H5506E 2 BOLT, HEX SOCKET ボルト 六角穴 CBS4-10 FE
17 W1011A 2 WASHER, CONICAL ワッシャ 皿 M- 4-L FE
21 PM04XK5 1 BKT BKT FE
22 PJ16803 1 SHEET シート OT Consumable Parts
23 H5298A 2 BOLT, HEX SOCKET ボルト 六角穴 M05X010 FE
23.1 PM015W0 2 BOLT, HEX SOCKET ボルト 六角穴 FE Thin panel option
24 W1012A 2 WASHER, CONICAL ワッシャ 皿 M- 5-L FE
25 PJ12922 2 WASHER ワッシャ OT
27 H5290A 4 BOLT, HEX SOCKET ボルト 六角穴 M04X015 FE
28 W1022A 4 WASHER, LOCK ワッシャ スプリング 4M/M FE
29 PP03290 1 BKT, SENSOR BKT センサ FE
30 K5255T 2 SCREW, HEX SOCKET BUTTON 小ネジ 六角穴ボタン M03X006 FE
31 W1021A 2 WASHER, LOCK ワッシャ スプリング 3M/M FE
32 PP02501 1 RETAINER, WIRING 押え 配線 FE
34 K5255A 2 SCREW, HEX SOCKET BUTTON 小ネジ 六角穴ボタン M03X004 FE
35 W1021A 2 WASHER, LOCK ワッシャ スプリング 3M/M FE
36 XS03381 1 SENSOR センサ OT
37 K5175T 2 SCREW, C/R PAN 小ネジ 十穴鍋 M02X005(0バン1シュ)SUS FE
55 XG01311 1 GUIDE, RAIL ガイド レール OT
56 K20089 12 CAP キャップ C04 OT
57 PZ09961 9 BOLT, HEX SOCKET ボルト 六角穴 OT
58 H5426S 3 BOLT, HEX SOCKET ボルト 六角穴 M04X018(3カ シロ) FE
159
PTS-NXT2-04JE Vol.2

M6 II-SINGLE CONVEYOR 5/6
M6 II-シングルコンベア 5/6 UQ04310
No. Drg.No. & Code No. QTY Description Rating Materials Remarks
番号 図番 & コード番号 個数 品名 規格 材質 備考
59 H2096H 5 PIN, PARALLEL ピン 平行 ゚3X6 Bシュ(ステンレス) FE
60 AA9EZ00 2 PULLEY プーリ OT
60.1 AB07600 2 PULLEY プーリ OT Thin panel option
68 PB91062 1 BKT BKT FE
69 H5274A 2 BOLT, HEX SOCKET ボルト 六角穴 M03X006 FE
70 W1021A 2 WASHER, LOCK ワッシャ スプリング 3M/M FE
71 K41622 1 FLEXIBLE TRACK ケーブルベア 07.10-018-0-19-060.10.12 OT
72 K5357M 4 SCREW, HEX SOCKET COUNTERSUNK 小ネジ 六角穴皿 M03X006 FE
73 H4175A 1 BEARING ベアリング 6000ZZ OT
74 PM06368 1 SHAFT シャフト FE
75 N40930 4 SCREW, HEX SOCKET SET ネジ 六角穴止め スプリングボルト M4X4 ヒラサキ SUS FE
76 PM0KYN0 1 WASHER ワッシャ FE
77 H5299A 1 BOLT, HEX SOCKET ボルト 六角穴 M05X012 FE
78 W1023A 1 WASHER, LOCK ワッシャ スプリング 5M/M FE
79 H5287A 2 BOLT, HEX SOCKET ボルト 六角穴 M04X008 ゼンネジ FE
80 W1022A 2 WASHER, LOCK ワッシャ スプリング 4M/M FE
81 W1043A 2 WASHER, FLAT ワッシャ 平 4W- 4 FE
83 AA6TR04 1 PULLEY プーリ OT
84 PP02310 2 FLANGE フランジ FE
85 PZ39081 1 PULLEY プーリ OT
86 K5358C 3 SCREW, HEX SOCKET COUNTERSUNK 小ネジ 六角穴皿 M03X012 FE
87 PM087H3 1 SHAFT シャフト FE
90 AA60B03 1 PULLEY プーリ OT
91 PM02051 4 COLLAR カラー FE
92 PZ31901 4 SCREW, HEX SOCKET COUNTERSUNK 小ネジ 六角穴皿 OT
93 PH01510 1 PULLEY プーリ OT
94 PM61335 1 PULLEY プーリ AL
95 PZ31891 4 SCREW, C/R TRUSS 小ネジ 十穴トラス OT
96 PZ14361 4 SPRING スプリング FE
97 S1046A 1 CIR-CLIP サークリップ WR19 OT
98 PP02280 1 FLANGE フランジ FE
99 H4104A 2 BEARING ベアリング DDA-2520 OT
100 PP02270 1 FLANGE フランジ FE
101 PZ31881 3 SCREW, C/R COUNTERSUNK 小ネジ 十穴皿 OT
102 PM10313 1 COLLAR カラー FE
103 PZ16793 1 PULLEY プーリ AL
104 PM63091 1 HOLDER ホルダ FE
105 H5289A 4 BOLT, HEX SOCKET ボルト 六角穴 M04X012 FE
160
PTS-NXT2-04JE Vol.2