NXTII partlist - 第651页
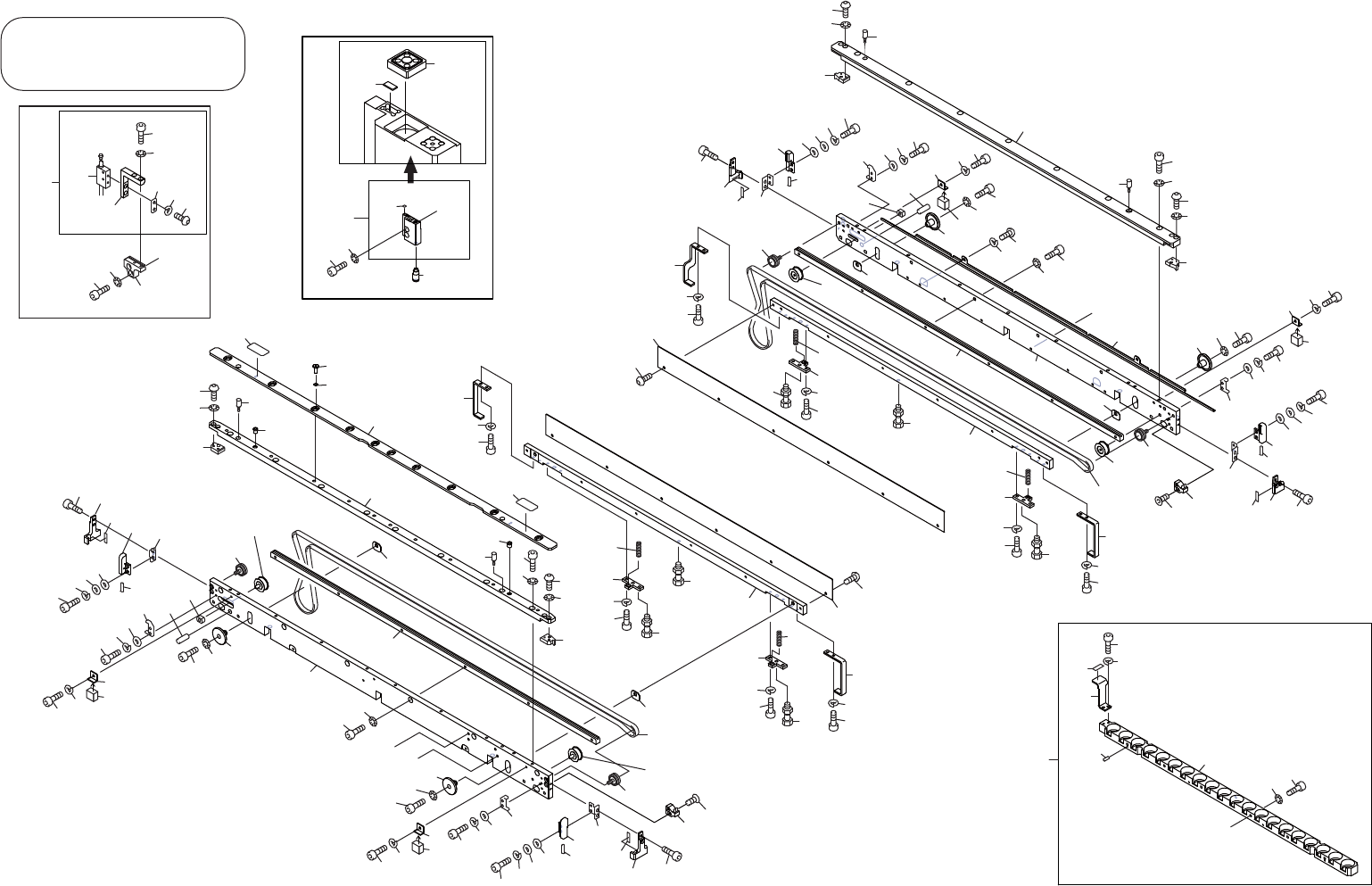
M6 II-DOUBLE CONVEYOR 3/7 M6 II-ダブルコンベア 3/7 UQ04411 No. Drg.No. & Code No. QTY Description Rating Materials Remarks 番号 図番 & コード番号 個 数 品名 規格 材質 備考 1 PM0BBR1 1 PLATE, RETAINING プレート 押え FE 2 PM0KDA1 10 BOLT ボルト FE …

BB
CC
BB
/DQHUDLO
࣮࣮ࣞࣥࣞࣝ
AA
AA
CC
118
4
4
2
3
1
5
6
7
8
9
10
11
13
12
13
12
10
9
44
18
21
33
74
75
76
73
74
75
76
73
73
34
31
42
45
46
33
34
31
35
38
55
56
57
56
57
59
59
48
55
35
74
75
76
73
74
75
76
11
52
53
51
31
33
34
45
46
43
8
44
31
33
34
18
48
55
56
57
59
59
55
57
56
4
68
68
96
97
95
58
58
66
67
64
66
67
65
4
15
15
41
39
22
24
98
100
99
101
102
36
37
19
20
40
23
58
58
58
58
62
63
61
62
63
60
70
71
69
70
71
69
70
71
69
70
71
69
32
32
32
32
80
81
79
86
87
88
89
90
91
92
93
111
112
114
110
115
85
69.1
69.1
69.1
69.1
105
95.1
110.1
5.1
51.1
116
47
47
16
17
17
16
30
16
17
17
16
30
27
28
29
25
29
25
27
28
29
29
25
27
28
29
29
25
27
28
29
29
49
50
49
50
14
14
103
104
77
78
77
78
26
26
26
26
47.1
47.1
16.1
16.1
16.1
16.1
0,,ࢲࣈࣝࢥࣥ࣋
0,,'28%/(&219(<25
UQ04411
174
PTS-NXT2-04JE Vol.2

M6 II-DOUBLE CONVEYOR 3/7
M6 II-ダブルコンベア 3/7 UQ04411
No. Drg.No. & Code No. QTY Description Rating Materials Remarks
番号 図番 & コード番号 個数 品名 規格 材質 備考
1 PM0BBR1 1 PLATE, RETAINING プレート 押え FE
2 PM0KDA1 10 BOLT ボルト FE
3 PM07KC1 10 COLLAR カラー FE
4 PM23704 4 PIN, REFERENCE ピン 基準 FE
5 PM085S5 1 RAIL レール FE
5.1 PM0BYN1 1 RAIL レール FE Thin panel option
6 H5289A 8 BOLT, HEX SOCKET ボルト 六角穴 M04X012 FE
7 W1011A 8 WASHER, CONICAL ワッシャ 皿 M- 4-L FE
8 PT01224 2 GUIDE ガイド FE
9 K5255T 4 SCREW, HEX SOCKET BUTTON 小ネジ 六角穴ボタン M03X006 FE
10 W1010A 4 WASHER, CONICAL ワッシャ 皿 M- 3-L FE
11 PT01213 2 GUIDE ガイド FE
12 K5255T 4 SCREW, HEX SOCKET BUTTON 小ネジ 六角穴ボタン M03X006 FE
13 W1010A 4 WASHER, CONICAL ワッシャ 皿 M- 3-L FE
14 H3170B 2 PLUNGER, BALL プランジャ ボール SBP-4 OT
15 PZ14131 2 SEAL シール PL
16 AA9EZ00 4 PULLEY プーリ OT
16.1 AB07600 4 PULLEY プーリ OT Thin panel option
17 ADBPP8012 4 PULLEY プーリ OT
18 PM92402 2 BKT, SENSOR BKT センサ FE
19 PM05AE2 1 GUIDE ガイド FE
20 PS03151 1 SHEET シート OT Consumable Parts
21 H5429N 2 BOLT, HEX SOCKET ボルト 六角穴 CBS3-8 FE
22 PM05AH2 1 GUIDE ガイド FE
23 PS03151 1 SHEET シート OT Consumable Parts
24 H5429N 2 BOLT, HEX SOCKET ボルト 六角穴 CBS3-8 FE
25 XS03502 2 SENSOR, FIBER センサ ファイバ OT SET
26 PZ37622 4 TUBE チューブ OT
27 H5274A 8 BOLT, HEX SOCKET ボルト 六角穴 M03X006 FE
28 W1021A 8 WASHER, LOCK ワッシャ スプリング 3M/M FE
29 W1041F 16 WASHER, FLAT ワッシャ 平 ゚3X6 コガタヒラザガネ FE
30 N10790 2 NUT, SQUARE ナット 四角 M 4 P=0.7(3カ シロ) FE
31 PM05AC1 4 GUIDE ガイド FE
32 PP02471 4 SPACER スペーサ FE
33 H5277A 4 BOLT, HEX SOCKET ボルト 六角穴 M03X012 FE
34 W1010A 4 WASHER, CONICAL ワッシャ 皿 M- 3-L FE
35 PM92392 2 BKT, SENSOR BKT センサ FE
36 PM05AF2 1 GUIDE ガイド FE
175
PTS-NXT2-04JE Vol.2

M6 II-DOUBLE CONVEYOR 3/7
M6 II-ダブルコンベア 3/7 UQ04411
No. Drg.No. & Code No. QTY Description Rating Materials Remarks
番号 図番 & コード番号 個数 品名 規格 材質 備考
37 PS03151 1 SHEET シート OT Consumable Parts
38 H5429N 2 BOLT, HEX SOCKET ボルト 六角穴 CBS3-8 FE
39 PM05AG2 1 GUIDE ガイド FE
40 PS03151 1 SHEET シート OT Consumable Parts
41 H5429N 2 BOLT, HEX SOCKET ボルト 六角穴 CBS3-8 FE
42 PM04XW6 1 PLATE プレート FE
43 PM04XX3 1 PLATE プレート FE
44 PM05AA1 2 GUIDE, BELT ガイド ベルト AL
45 H5288A 12 BOLT, HEX SOCKET ボルト 六角穴 M04X010 FE
46 W1011A 12 WASHER, CONICAL ワッシャ 皿 M- 4-L FE
47 XB04180 2 CONVEYOR, BELT コンベア ベルト OT Consumable Parts
47.1 XB04230 2 CONVEYOR, BELT コンベア ベルト OT
Thin panel option, Consumable Parts
48 PM059Z4 2 PLATE, GUIDE プレート ガイド FE
49 PM059Y2 2 PLATE, CLAMPING プレート クランプ FE
50 K5255A 12 SCREW, HEX SOCKET BUTTON 小ネジ 六角穴ボタン M03X004 FE
51 PM085W3 1 RAIL レール FE
51.1 PM0BYW1 1 RAIL レール FE Thin panel option
52 H5289A 7 BOLT, HEX SOCKET ボルト 六角穴 M04X012 FE
53 W1011A 7 WASHER, CONICAL ワッシャ 皿 M- 4-L FE
55 PM05AD2 4 PLATE プレート FE
56 H5275A 8 BOLT, HEX SOCKET ボルト 六角穴 M03X008 FE
57 W1021A 8 WASHER, LOCK ワッシャ スプリング 3M/M FE
58 H55037 6 BOLT ボルト PSST4-15 FE Consumable Parts
59 PZ14451 4 SPRING スプリング FE
60 PB90312 1 HOOK フック FE
61 PB90322 1 HOOK フック FE
62 H5275A 4 BOLT, HEX SOCKET ボルト 六角穴 M03X008 FE
63 W1021A 4 WASHER, LOCK ワッシャ スプリング 3M/M FE
64 PB90322 1 HOOK フック FE
65 PB00BZ3 1 HOOK フック FE
66 H5275A 4 BOLT, HEX SOCKET ボルト 六角穴 M03X008 FE
67 W1021A 4 WASHER, LOCK ワッシャ スプリング 3M/M FE
68 H2014R 2 PIN ピン MSIP6-10 OT
69 PB90501 4 BKT BKT FE
69.1 PS03132 4 SHEET シート OT Consumable Parts
70 H5274A 4 BOLT, HEX SOCKET ボルト 六角穴 M03X006 FE
71 W1021A 4 WASHER, LOCK ワッシャ スプリング 3M/M FE
73 PM97051 4 BLOCK, LOCATING ブロック 位置決め FE
176
PTS-NXT2-04JE Vol.2